Suis-je éligible à une réduction des droits d’enregistrement ?
Grotte 46
PRIX : 395 000 €
Type: Petite maison | Région: Brabant Wallonne | Commune: La Hulpe
Charmante et lumineuse maison 2 façades, en parfait état (de grosses rénovations ont été faites en 2019 ) Au rez-de-chaussée, un hall d’entrée avec une toilette, puis un espace bureau suivi d'une salle de jeux, d'un salon et d'une grande cuisine/salle à manger entièrement équipée avec un puits de lumière. Les arrivées de câblages y sont prévues pour des panneaux photovoltaïques éventuels. La maison bénéficie en outre d'un bel espace de 28m², avec une belle grande baie vitrée qui peut se replier sur 2 pans, donnant sur une grande terrasse de 45m² et son jardin plat d'environ 490m². Au premier étage se trouve 3 pièces en enfilade dont 2 chambres de 16 et 13m² et une salle de bain/ douche avec évier et WC d'environ 8m². La maison dispose aussi d'une cave de+/- 23m²offrant de multiples espaces de rangement. Maison comprenant une chaudière neuve à condensation, un adoucisseur d’eau au CO2, des volets électriques, des moustiquaires, sol parquet chêne semi massif, une tondeuse électrique pour le jardin. Parking facile. PEB catégorie C. Électricité conforme. Revenu cadastral de seulement 712 euros! Libre à la signature de l'acte.
Surface habitable: 127.60 m²
Chambres: 2
Salle de douche: 1
Cave: 1
Vidéo
Découvrez le bien en visualisant cette vidéo
VISITE VIRTUELLE
Vous voulez en voir plus ? Visitez le bien comme si vous y étiez à travers cette visite virtuelle
Localisation
Ce bien vous correspond ? Découvrez maintenant si sa localisation vous convient !
Commerces
Pharmacies
Restaurants
Boulangeries
Crèches
Parcs
Écoles
Universités
Déplacements
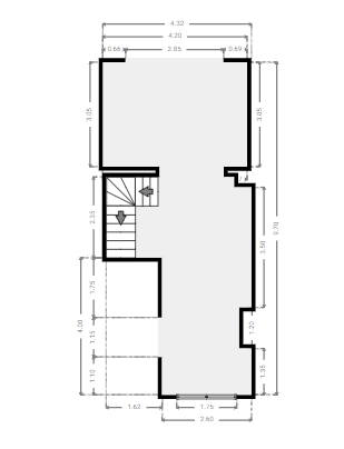
Plans intérieurs
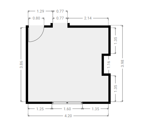
Sous-sol
SURFACE TOTALE : 22.37 m² | SURFACE HABITABLE : 22.37 m | PIÈCES : 1
1x Cave
Cave
SURFACE : 22.38 m²
Rez-de-chaussée
SURFACE TOTALE : 67.22 m² | SURFACE HABITABLE : 67.22 m² | PIÈCES : 4
1x Entrée
1x Séjour
1x Cuisine
Entrée
SURFACE : 4.37 m²
Séjour
SURFACE : 33.12 m²
Cuisine
SURFACE : 28.26 m²
1er étage
SURFACE TOTALE : 38.01 m² | SURFACE HABITABLE : 38.01 m² | PIÈCES : 4
2x Chambres
1x S.D.D.
Chambre A
SURFACE : 15.89 m²
S.D.D.
SURFACE : 7.18 m²
Chambre B
SURFACE : 12.99 m²
RECHERCHE CADASTRALE
Vous souhaitez mieux connaître votre parcelle et connaître la surface dont vous jouirez en achetant ce bien, alors consulter le cadastre est nécessaire !
Surface : 583.15 m²
Parcelle : B291b
Certificats
Informez-vous sur la performance énergétique de ce bien et assurez-vous que ses installations électriques sont bien aux normes !
PERFORMANCE ÉNERGÉTIQUE
Économe
Très énergivore
CERTIFICATEUR ÉLECTRIQUE
PROCES VERBAL D’EXAMEN DE CONFORMITE ET/OU DE VISITE DE CONTROLE D’UNE INSTALLATION ELECTRIQUE BASSE TENSION
La nouvelle installation Conforme
Agent
visiteur
Vincent Dehaes
Date
de certification
09/12/2022
Doit être
contrôlée avant
09/12/2047
Audit technique
En prévoyant un budget précis des transformations et/ou réparations à opérer sur ce bien, l'expertise réalisée par un architecte neutre et indépendant vous permet de mieux évaluer la valeur de ce bien !
Score général attribué par l’auditeur *
Conseils généraux en termes de performances énergétiques du bâtiment :
La maison a été entièrement rénovée. L'enveloppe, toitures, murs, sols sont bien isolés, les châssis double vitrage sont performants. La ventilation est assurée en partie par l'extracteur dans la salle de bain et il est compliqué d'en ajouter 1 dans le wc en bas. Afin de garantir un bon renouvellement de l'air dans la maison, il est nécessaire d'aérer régulièrement en l'absence de grilles de ventilation dans les châssis.
Avis général et conseils de l'inspecteur :
La maison est dans un excellent état général. Pas d'autre remarque particulière.
DISCLAIMER
La conclusion et les conseils donnés sont le résultat d’une inspection indépendante, réalisée par un architecte expérimenté et agréé par ImmoPass.
Les éventuelles estimations budgétaires contenues dans ce rapport sont données à titre indicatif et ne constituent pas un devis. Nous recommandons de réaliser un Cahier des Charges sur tout ou partie des travaux à entreprendre et une analyse des devis reçus. Les estimations sont exprimées hors taxes.
L’inspection a été réalisée de manière non-destructive, de manière visuelle uniquement. Ce rapport ne peut donc garantir l’absence totale de vices techniques cachés.
100 %
Zone inondable, zone acoustique, plan de secteurs, permis d’urbanisme ...
100 %
Certification énergétique, conformité électrique, cuve à mazout, sol, ...
98 %
Sécurité, aménagements, structures extérieures, entretien végétation, ...
100 %
Humidité généralisée, présence d’amiante, mérule, termites ...
98 %
Toiture, murs extérieurs, châssis et portes, évacuation eau de pluie, ...
98 %
Défauts structurels, humidité localisée, salubrité, état de fonctionnement..
89 %
Halls et escaliers, caves, combles et grenier, locaux techniques, ...
86 %
Système de chauffage, eau chaude sanitaire, électricité, entretiens techniques, ...
Le bloc béton visible au bas des murs est à refermer afin de garantir une bonne finition de l'ensemble. Budget estimé entre 250€ et 500€
Le crépi isolé est taché de vert en façade arrière. La cause probable est le dépôt de mousses et lichen. Le jardin contigu a été complètement nettoyé récemment et le problème devrait être résolu de ce côté. Un traitement a déjà été appliqué sur le crépi. A réitérer si nécessaire afin que ces taches ne s'incrustent pas à trop long terme. Budget estimé entre 150€ et 350€
Des détecteurs incendies devraient être placés, au moins 1 en bas et 1 en haut.
Il est toujours conseillé d'installer un extracteur mécanique dans les wc et salles de bain/buanderie afin d'éviter les problèmes d'odeurs, d'humidité et de manque de ventilation dans ces locaux.
Le wc du rez-de-chaussée n'a pas d'extracteur vers l'extérieur. Il est possible mais plus compliqué d'installer ici une extraction mécanique, elle devrait traverser le hall jusqu'à la façade qui a été isolée ou jusqu'en toiture. Budget estimé entre 500 € et 1000€
La cave n'est pas humide en soi mais la prise de mesure indique un taux d'humidité moyen à élevé dans les murs enterrés. La période hivernale et pluvieuse n'aide pas aux résultats, il serait intéressant de reprendre ces mesures en période chaude et sèche, le taux d'humidité pourrait être nettement plus bas. Il faut bien veiller à ventiler la cave naturellement (laisser le soupirail ouvert et l'ouverture arrière également). Un traitement à la chaux (plutôt qu'au ciment) pourrait aider à protéger les murs tout en permettant un transfert naturel de l'humidité à travers celui-ci. Budget estimé entre 35€ et 60€/m²
voir 6.7
DATA ROOM
Nous avons mis tous les documents importants dans la date room, n’hésitez pas à télécharger ce dont vous avez besoin !
Nous avons mis tous les documents importants dans la date room, n’hésitez pas à télécharger ce dont vous avez besoin !
Besoin de crédit
Maintenant que vous êtes sûrs d’avoir fait le bon choix, calculez la valeur totale de cette acquisition (valeur du bien et frais annexes) et estimez vos besoins en crédit !
Simulation de crédit
| Prix d'achat | € |
| Rénovation | € |
| Rénovation HTVA | {{ calculeData.renovationHTVA | number:2 }} € |
| TVA | {{ calculeData.tva | number:2 }} € |
| Fonds propres | € |
| Acompte dû (disponible au compromis de vente) | {{ calculeData.prix * 0.1 | number:2 }} € |
| Reste des liquidités (disponible à l'acte) | {{ calculeData.avance | number:2 }} € |
| Crédit pont | {{ calculeData.creditPont | number:2 }} € |
| Prix de vente de votre bien existant | € |
| Solde du crédit existant | € |
| Frais d'acte d'achat | {{ calculeData.droit + calculeData.fraisNotaire | number:2 }} € |
| Droits d'enregistrement | {{ calculeData.droit | number:2 }} € |
|
Abattement
Suis-je éligible à une réduction des droits d’enregistrement ? |
|
| Frais de notaire | {{ calculeData.fraisNotaire | number:2 }} € |
| Autres frais | {{ calculeData.inscription + calculeData.fraisDossier + calculeData.autreFrais | number:2 }} € |
| Frais liés à l'acte hypothécaire | {{ calculeData.inscription | number:2 }} € |
| Frais de dossier et expertise bancaire | {{ calculeData.fraisDossier | number:2 }} € |
| Autres frais | € |
| Montant du crédit | {{ calculeData.montantCredit | number:2 }} € | |
Choix du type de crédit
| Taux | Type | CAP | Mensualité | Mensualité Min | Mensualité Max | |
|---|---|---|---|---|---|---|
| {{ tx.banque }} | {{ tx.taux | number:2 }}% | {{ tx.type }} | -{{ tx.capNeg }}%/+{{ tx.capPos }}% | {{ tx.mens | number:2 }}€ | {{ tx.min | number:2 }}€ - | {{ tx.max | number:2 }}€ - |
| Taux | Type | CAP | Mensualité | Mensualité Min | Mensualité Max | |
|---|---|---|---|---|---|---|
| {{ tx.banque }} | {{ tx.taux | number:2 }}% | {{ tx.type }} | -{{ tx.capNeg }}%/+{{ tx.capPos }}% | {{ tx.mens | number:2 }}€ | {{ tx.min | number:2 }}€ - | {{ tx.max | number:2 }}€ - |
| Taux | Type | CAP | Mensualité | Mensualité Min | Mensualité Max | |
|---|---|---|---|---|---|---|
| {{ tx.banque }} | {{ tx.taux | number:2 }}% | {{ tx.type }} | -{{ tx.capNeg }}%/+{{ tx.capPos }}% | {{ tx.mens | number:2 }}€ | {{ tx.min | number:2 }}€ - | {{ tx.max | number:2 }}€ - |
Rentabilité
Cout total de l’acquisition
| Prix d'achat | {{ calculeData.prix | number:2 }} € |
| Rénovation | + {{ calculeData.prixTransRenovation | number:2 }} € |
| Frais | + {{ calculeData.frais | number:2 }} € |
| Coût total | + {{ calculeData.frais + calculeData.prixTransRenovation + calculeData.prix | number:2 }} € |
| Fonds propres + crédit pont | {{ calculeData.totalFP+calculeData.creditPont | number:2 }} € |
| Montant du crédit | {{ calculeData.montantCredit | number:2 }} € |
| Coût total | + {{ calculeData.creditPont + calculeData.totalFP + calculeData.montantCredit | number:2 }} € |
Rentabilité sur actifs
Durée de détention année(s)
Gain réel {{ calculeData.gainReel | number:0 }} €
Rendement sur actif {{ calculeData.rendementSurActif | number:2 }} %
Revenus
| Revenu locatif annuel Brut | € |
| Charge annuelle {{ calculeData.pourcentageCharge | number:2 }}% | {{ calculeData.chargeLocatifAnnuel | number:2 }} € |
| Précompte immobilier | {{ calculeData.precomteImmo | number:2 }} € |
| Autre charge annuelle | € |
| Revenu locatif annuel net | {{ calculeData.revenuLocatifAnnuelNet | number:2 }} € |
| Total revenu locatif après {{ calculeData.dureeDetention }} année(s) tenant compte d'une inflation de % |
{{ calculeData.totalRevenuLocatif | number:2 }} € |
| Plus-value latente | {{ calculeData.pluvalueLatente | number:2 }} % |
| Plus-value du bien après {{calculeData.dureeDetention}} année(s) | {{ calculeData.pluvalueBien | number:2 }} € |
| Total revenu locatif après {{ calculeData.dureeDetention }} année(s) | {{ calculeData.totalRevenuLocatif | number:2 }} € |
| Gain brut sur le prix de base après {{ calculeData.dureeDetention }} année(s) | +{{ calculeData.gainBrut | number:2 }} € |
Charges
| Durée du crédit | {{ calculeData.duree | number:2 }} ans |
| Taux | {{ calculeData.taux | number:2 }} % |
| Mensualité | {{ calculeData.mensualite | number:2 }} € |
| Total interêts après {{calculeData.dureeDetention}} année(s) | {{ calculeData.totalInteret | number:2 }} € |
| Total frais | {{ calculeData.frais | number:2 }} € |
| Total | {{ calculeData.InteretFrais | number:2 }} € |
Gain réel
Rendement sur actif
Cash flow
| Année | Coût | Revenu locatif | Gain |
|---|---|---|---|
| {{ $index }} | {{ ch.payment | number:2 }} € | {{ ch.revenuLocatif | number:2 }} € | {{ - ch.fondPropre | number:2 }} € |
Av. Louise 433 Louizalaan 1050 Bruxelles - Brussel
Drève Richelle, 96 - 1410 Waterloo