Suis-je éligible à une réduction des droits d’enregistrement ?
Globe
PRIX : 340 000 €
Type: Appartement | Région: Bruxelle | Commune: Uccle
Localisé dans une rue calme à sens unique, à deux pas des nombreux commerces et transports en communs du Globe, By the Way vous propose ce charmant appartement de +/- 89m2 rénové entièrement en 2015 (cuisine, salle de douche, châssis, etc.). Il se situe au 3ème étage sur 4 d’un immeuble bien entretenu avec ascenseur. L’appartement se compose comme suit : Un hall d’entrée avec placards intégrés +/- 10m2, un séjour lumineux +/- 32m2 avec cuisine ouverte entièrement équipée (frigo, congélateur, four, taques à induction, hotte) donnant accès à un petit balcon avec une vue dégagée, une buanderie +/- 3m2, une salle de douche à l’italienne +/- 4m2, un WC séparé, 2 chambres (+/- 13m2 et +/- 15,5m2) dont l’une donnant accès à une terrasse arrière +/- 8,5m2 orientée Sud avec vue sur les jardins. PEB : F (sera amélioré grâce à l'isolation de la toiture déjà financée). Charges : +/- 340€/mois (communs, chauffage privatif, eau chaude, prêt rénovations jusqu’en 2028). Alimentation du fonds de réserve : +/- 22€/mois. Box de garage fermé en supplément obligatoire (20.000€). Divers : Cave privative, Local poubelles, Châssis double vitrage récents (2015), Electricité conforme jusqu’en 2040, Chaudière commune au gaz récente (2015).
Surface habitable: 88 m²
Chambres: 2
Salle de douche: 1
Terrasses: 2
Garage: 1
Cave: 1
Vidéo
Découvrez le bien en visualisant cette vidéo
VISITE VIRTUELLE
Vous voulez en voir plus ? Visitez le bien comme si vous y étiez à travers cette visite virtuelle
Localisation
Ce bien vous correspond ? Découvrez maintenant si sa localisation vous convient !
Commerces
Pharmacies
Restaurants
Boulangeries
Crèches
Parcs
Écoles
Universités
Déplacements
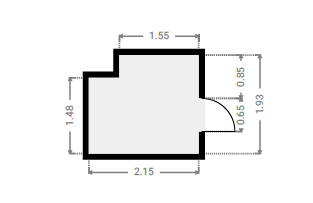
Plans intérieurs
3e étage
SURFACE HABITABLE : 88 m² | PIÈCE(S) : 8
1x Hall
1x S.D.D.
1x Buanderie
1x Cuisine
1x Séjour
1x Balcon
2x Chambre(s)
1x Terrasse
Hall
SURFACE : 9.06 m²
S.D.D.
SURFACE : 3.88 m²
W.C.
SURFACE : 0.94 m²
Buanderie
SURFACE : 2.78 m²
Cuisine
SURFACE : 7.3 m²
Séjour
SURFACE : 25.06 m²
Balcon
SURFACE : 1.66 m²
Chambre 1
SURFACE : 15.49 m²
Chambre 2
SURFACE : 12.93 m²
Terrasse
SURFACE : 8.69 m²
RECHERCHE CADASTRALE
Vous souhaitez mieux connaître votre parcelle et connaître la surface dont vous jouirez en achetant ce bien, alors consulter le cadastre est nécessaire !
Surface : 597.83 m²
Parcelle : A174x23
Certificats
Informez-vous sur la performance énergétique de ce bien et assurez-vous que ses installations électriques sont bien aux normes !
PERFORMANCE ÉNERGÉTIQUE
Économe
Très énergivore
CERTIFICAT ÉLECTRIQUE
PROCES VERBAL D’EXAMEN DE CONFORMITE ET/OU DE VISITE DE CONTROLE D’UNE INSTALLATION ELECTRIQUE BASSE TENSION
La nouvelle installationConforme
Agent
visiteur
T'jampens
Date
de certification
23/11/2015
Visite de contrôle
à effectuer avant le
23/11/2040
SYNTHÈSE DES CHARGES
Des dépenses seront nécessairement engagées pour l’administration de la copropriété, son entretien, l’installation d’équipements et la maintenance de ces derniers. Evaluez dès à présent le montant de vos charges mensuelles !
Assemblées générales
Extrait des derniers procès-Verbaux des assemblées générales
Charges et répartition
1- Charges
Ce tableau des charges comprend : Communs généraux – Chauffage et eau – Honoraires - Assurances – Administration – Assurances - Charges bancaires
| 2021 | |||
| T1 | T2 | T3 | T4 |
| 873 € | 1024 € | 901 € | 1059 € |
| 2022 | |||
| T1 | T2 | T3 | T4 |
| 708 € | 1301 € | 1210 € | 1128 € |
2- Répartition des charges - APC Globe - 2021/2022
DATA ROOM
Nous avons mis tous les documents importants dans la date room, n’hésitez pas à télécharger ce dont vous avez besoin !
Nous avons mis tous les documents importants dans la date room, n’hésitez pas à télécharger ce dont vous avez besoin !
Besoin de crédit
Maintenant que vous êtes sûrs d’avoir fait le bon choix, calculez la valeur totale de cette acquisition (valeur du bien et frais annexes) et estimez vos besoins en crédit !
Simulation de crédit
| Prix d'achat | € |
| Rénovation | € |
| Rénovation HTVA | {{ calculeData.renovationHTVA | number:2 }} € |
| TVA | {{ calculeData.tva | number:2 }} € |
| Fonds propres | € |
| Acompte dû (disponible au compromis de vente) | {{ calculeData.prix * 0.1 | number:2 }} € |
| Reste des liquidités (disponible à l'acte) | {{ calculeData.avance | number:2 }} € |
| Crédit pont | {{ calculeData.creditPont | number:2 }} € |
| Prix de vente de votre bien existant | € |
| Solde du crédit existant | € |
| Frais d'acte d'achat | {{ calculeData.droit + calculeData.fraisNotaire | number:2 }} € |
| Droits d'enregistrement | {{ calculeData.droit | number:2 }} € |
|
Abattement
Suis-je éligible à une réduction des droits d’enregistrement ? |
|
| Frais de notaire | {{ calculeData.fraisNotaire | number:2 }} € |
| Autres frais | {{ calculeData.inscription + calculeData.fraisDossier + calculeData.autreFrais | number:2 }} € |
| Frais liés à l'acte hypothécaire | {{ calculeData.inscription | number:2 }} € |
| Frais de dossier et expertise bancaire | {{ calculeData.fraisDossier | number:2 }} € |
| Autres frais | € |
| Montant du crédit | {{ calculeData.montantCredit | number:2 }} € | |
Choix du type de crédit
| Taux | Type | CAP | Mensualité | Mensualité Min | Mensualité Max | |
|---|---|---|---|---|---|---|
| {{ tx.banque }} {{ $index+1 }} | {{ tx.taux | number:2 }}% | {{ tx.type }} | -{{ tx.capNeg }}%/+{{ tx.capPos }}% | {{ tx.mens | number:2 }}€ | {{ tx.min | number:2 }}€ | {{ tx.max | number:2 }}€ |
| Taux | Type | CAP | Mensualité | Mensualité Min | Mensualité Max | |
|---|---|---|---|---|---|---|
| {{ tx.banque }} {{ $index+1 }} | {{ tx.taux | number:2 }}% | {{ tx.type }} | -{{ tx.capNeg }}%/+{{ tx.capPos }}% | {{ tx.mens | number:2 }}€ | {{ tx.min | number:2 }}€ | {{ tx.max | number:2 }}€ |
| Taux | Type | CAP | Mensualité | Mensualité Min | Mensualité Max | |
|---|---|---|---|---|---|---|
| {{ tx.banque }} {{ $index+1 }} | {{ tx.taux | number:2 }}% | {{ tx.type }} | -{{ tx.capNeg }}%/+{{ tx.capPos }}% | {{ tx.mens | number:2 }}€ | {{ tx.min | number:2 }}€ | {{ tx.max | number:2 }}€ |
Rentabilité
Cout total de l’acquisition
| Prix d'achat | {{ calculeData.prix | number:2 }} € |
| Rénovation | + {{ calculeData.prixTransRenovation | number:2 }} € |
| Frais | + {{ calculeData.frais | number:2 }} € |
| Coût total | + {{ calculeData.frais + calculeData.prixTransRenovation + calculeData.prix | number:2 }} € |
| Fonds propres + crédit pont | {{ calculeData.totalFP+calculeData.creditPont | number:2 }} € |
| Montant du crédit | {{ calculeData.montantCredit | number:2 }} € |
| Coût total | + {{ calculeData.creditPont + calculeData.totalFP + calculeData.montantCredit | number:2 }} € |
Rentabilité sur actifs
Durée de détention année(s)
Gain réel {{ calculeData.gainReel | number:0 }} €
Rendement sur actif {{ calculeData.rendementSurActif | number:2 }} %
Revenus
| Revenu locatif annuel Brut | € |
| Charge annuelle {{ calculeData.pourcentageCharge | number:2 }}% | {{ calculeData.chargeLocatifAnnuel | number:2 }} € |
| Précompte immobilier | {{ calculeData.precomteImmo | number:2 }} € |
| Autre charge annuelle | € |
| Revenu locatif annuel net | {{ calculeData.revenuLocatifAnnuelNet | number:2 }} € |
| Total revenu locatif après {{ calculeData.dureeDetention }} année(s) tenant compte d'une inflation de % |
{{ calculeData.totalRevenuLocatif | number:2 }} € |
| Plus-value latente | {{ calculeData.pluvalueLatente | number:2 }} % |
| Plus-value du bien après {{calculeData.dureeDetention}} année(s) | {{ calculeData.pluvalueBien | number:2 }} € |
| Total revenu locatif après {{ calculeData.dureeDetention }} année(s) | {{ calculeData.totalRevenuLocatif | number:2 }} € |
| Gain brut sur le prix de base après {{ calculeData.dureeDetention }} année(s) | +{{ calculeData.gainBrut | number:2 }} € |
Charges
| Durée du crédit | {{ calculeData.duree | number:2 }} ans |
| Taux | {{ calculeData.taux | number:2 }} % |
| Mensualité | {{ calculeData.mensualite | number:2 }} € |
| Total interêts après {{calculeData.dureeDetention}} année(s) | {{ calculeData.totalInteret | number:2 }} € |
| Total frais | {{ calculeData.frais | number:2 }} € |
| Total | {{ calculeData.InteretFrais | number:2 }} € |
Gain réel
Rendement sur actif
Cash flow
| Année | Coût | Revenu locatif | Gain |
|---|---|---|---|
| {{ $index }} | {{ ch.payment | number:2 }} € | {{ ch.revenuLocatif | number:2 }} € | {{ - ch.fondPropre | number:2 }} € |
Av. Louise 433 Louizalaan 1050 Bruxelles - Brussel
Drève Richelle, 96 - 1410 Waterloo