Suis-je éligible à une réduction d’impôt ?
Gergel 108
PRIX : 465 000,00€
+ obligatoire garage pack à 30.000 €
Type: Appartement | Région: Flandre | Commune: Wezembeek-Oppem
By the Way vous propose ce bel appartement de 120 m² en excellent état au 1er étage d'une petite copro de 2013 de 4 unités. Composition:
hall d’entrée, wc invités, vestiaire, lumineux séjour de 43 m² avec terrasse arrière orientée sud/sud-est, grande cuisine attenante super-équipée d'électro-ménagers de marque et beaucoup de rangement. Débarras avec la chaudière Bulex et le système de ventilation mécanique VMC. La chambre 1 offre 14,50 m² , de grandes penderies et sa salle de douche privative. La chambre 2 offre 12,20 m², sa salle de bain complète de 6m² (baignoire + douche et toilette). Revêtements de sol : parquet massif partout sauf les salles d’eau. Châssis double-vitrage alu de qualité (Pierret=HQ). Électricité conforme et PEB ‘B’ (132kWh/m²). Jardin privatif de +/-100 m² orienté sud/sud-est, cave de 5 m² et un 'pack garage' avec porte électrique télécommandée + 2 emplacements de parking réservés devant en option obligatoire à 30.000 €. Le tout est en très bon état général et bien entretenu. L’immeuble est pourvu d’un ascenseur PMC. Charges communes à 130€ pour syndic, assurances, entretien ascenseur et parties communes, …etc.
Surface totale: 119 m²
Jardin orienté sud/sud-est
Chambres: 2
Salle de bain: 1
Salle de douche: 1
Terrasse orientée sud/sud-est
Parking Extérieure: oui
Garage: 1
Cave: 1
Vidéo
Découvrez le bien en visualisant cette vidéo
VISITE VIRTUELLE
Vous voulez en voir plus ? Visitez le bien comme si vous y étiez à travers cette visite virtuelle
Localisation
Ce bien vous correspond ? Découvrez maintenant si sa localisation vous convient !
Commerces
Pharmacies
Restaurants
Boulangeries
Crèches
Parcs
Écoles
Universités
Déplacements
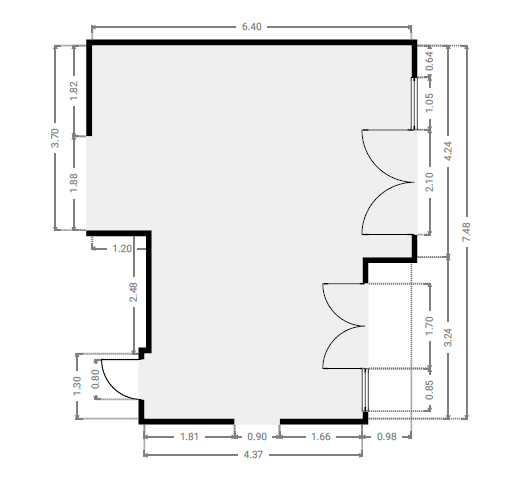
Plans intérieurs
1er étage
SURFACE TOTALE : 101.02 m² | SURFACE HABITABLE : 95,89 m² | PIÈCE(S) : 10
1x Séjour
1x Balcon
1x Buanderie
1x Cuisine
1x Couloir
1x S.D.B
1x Hall
1x W.C
2x Chambre(s)
1x S.D.D
1x Garage
Séjour
SURFACE : 40.35 m²
Balcon
SURFACE : 2.94 m²
Buanderie
SURFACE : 2.14 m²
Cuisine
SURFACE : 9.31 m²
Couloir
SURFACE : 3.89 m²
S.D.B
SURFACE : 6.4 m²
Chambre 2
SURFACE : 11.9 m²
Hall
SURFACE : 4.42 m²
W.C
SURFACE : 1.41 m²
Chambre 1
SURFACE : 13.25 m²
S.D.D
SURFACE : 5.07 m²
RECHERCHE CADASTRALE
Vous souhaitez mieux connaître votre parcelle et connaître la surface dont vous jouirez en achetant ce bien, alors consulter le cadastre est nécessaire !
État des sols
La pollution du sol a un impact sur l'environnement et sur la santé, les risques d’inondation ont un impact sur votre qualité de vie… Consultez les données relatives à ce bien pour en avoir le cœur net !
ÉTAT DE LA POLLUTION DES SOLS
Aucune remarque particulière pour la parcelle B78i
Source : Cliquez-ici
Légende :
Zone inondable
Pas d'inondation modélisée pour la parcelle B78i
Source : Cliquez-ici
Légende :
Certificats
Informez-vous sur la performance énergétique de ce bien et assurez-vous que ses installations électriques sont bien aux normes !
PERFORMANCE ÉNERGÉTIQUE
ÉconomeTrès énergivore
|
A+ A ≤ 0 |
A 0 < A ≤ 100 |
B 100 < B ≤ 200 |
C 200 < C ≤ 300 |
D 300 < D ≤ 400 |
E 400 < E ≤ 500 |
F F > 500 |
| 132 kWh/m².An |
CERTIFICAT ÉLECTRIQUE
PROCES VERBAL D’EXAMEN DE CONFORMITE ET/OU DE VISITE DE CONTROLE D’UNE INSTALLATION ELECTRIQUE BASSE TENSION
La nouvelle installationConforme
Agent
visiteur
150F.FRANGE
Date
de certification
13/06/2012
Visite de contrôle
à effectuer avant le
13/06/2037
SYNTHÈSE DES CHARGES
Des dépenses seront nécessairement engagées pour l’administration de la copropriété, son entretien, l’installation d’équipements et la maintenance de ces derniers. Evaluez dès à présent le montant de vos charges mensuelles !
Assemblées générales
S’agissant d’une petite copropriété de seulement 4 unités et occupés par les propriétaires, il n’a jamais été nécessaire jusqu’ici d’organiser des assemblées générales. De plus, l’immeuble est récent (10 ans) et d’une très bonne qualité et de bons matériaux (bâtisseur réputé et toujours T-Palm) Ils s’échangent les remarques, observations ou problèmes par email ou en se rencontrant brièvement chez l’un ou l’autre.
De plus, le bureau au rez-de-chaussée arrière est la propriété d’un bureau d’expert-comptable (Daka Team) et ils se chargent des décomptes annuels.
Les 3 autres copropriétaires se partagent les autres postes où l’un d’eux se charge du poste ‘ascenseur’ et ses entretiens, un autre se charge des contacts avec l’équipe de nettoyage, le 3ème des éclairages éventuellement défectueux à changer et le 4ème des petites réparations à envisager …
A noter que les charges étaient plus élevées en 2021 et 2022 car un jardinier venait entretenir et tondre les pelouses privées des 4 propriétaires.
Ce n’est plus le cas depuis 2023.
Charges et répartition
1- Charges
Ce tableau des charges comprend : Communs généraux et privés – Appel de fonds – Nettoyage et entretien - Assurances – syndic – frais de gestion
| Année 2021 |
| Total: 1.982 € = 130 €/mois |
| Année 2022 |
| Total: 1.563 € = 130,25 €/mois |
| Année 2023 |
| Total: 1.563 € = 130,25 €/mois |
DATA ROOM
Nous avons mis tous les documents importants dans la date room, n’hésitez pas à télécharger ce dont vous avez besoin !
Nous avons mis tous les documents importants dans la date room, n’hésitez pas à télécharger ce dont vous avez besoin !
Besoin de crédit
Maintenant que vous êtes sûrs d’avoir fait le bon choix, calculez la valeur totale de cette acquisition (valeur du bien et frais annexes) et estimez vos besoins en crédit !
Simulation de crédit
| Prix d'achat | € |
| Rénovation | € |
| Rénovation HTVA | {{ calculeData.renovationHTVA | number:2 }} € |
| TVA | {{ calculeData.tva | number:2 }} € |
| Fonds propres | € |
| Acompte dû (disponible au compromis de vente) | {{ calculeData.prix * 0.1 | number:2 }} € |
| Reste des liquidités (disponible à l'acte) | {{ calculeData.avance | number:2 }} € |
| Crédit pont | {{ calculeData.creditPont | number:2 }} € |
| Prix de vente de votre bien existant | € |
| Solde du crédit existant | € |
| Frais d'acte d'achat | {{ calculeData.droit + calculeData.fraisNotaire | number:2 }} € |
| Droits d'enregistrement | {{ calculeData.droit | number:2 }} € |
|
Abattement
Suis-je éligible à une réduction des droits d’enregistrement ? |
|
| Frais de notaire | {{ calculeData.fraisNotaire | number:2 }} € |
| Autres frais | {{ calculeData.inscription + calculeData.fraisDossier + calculeData.autreFrais | number:2 }} € |
| Frais liés à l'acte hypothécaire | {{ calculeData.inscription | number:2 }} € |
| Frais de dossier et expertise bancaire | {{ calculeData.fraisDossier | number:2 }} € |
| Autres frais | € |
| Montant du crédit | {{ calculeData.montantCredit | number:2 }} € | |
La présente simulation se base sur un taux d’intérêt du 23/04/2024. Ce calcul est indicatif et sujet à changement.
Choix du type de crédit
| Taux | Type | CAP | Mensualité | Mensualité Min | Mensualité Max | |
|---|---|---|---|---|---|---|
| {{ tx.banque }} {{ $index+1 }} | {{ tx.taux | number:2 }}% | {{ tx.type }} | -{{ tx.capNeg }}%/+{{ tx.capPos }}% | {{ tx.mens | number:2 }}€ | {{ tx.min | number:2 }}€ | {{ tx.max | number:2 }}€ |
| Taux | Type | CAP | Mensualité | Mensualité Min | Mensualité Max | |
|---|---|---|---|---|---|---|
| {{ tx.banque }} {{ $index+1 }} | {{ tx.taux | number:2 }}% | {{ tx.type }} | -{{ tx.capNeg }}%/+{{ tx.capPos }}% | {{ tx.mens | number:2 }}€ | {{ tx.min | number:2 }}€ | {{ tx.max | number:2 }}€ |
| Taux | Type | CAP | Mensualité | Mensualité Min | Mensualité Max | |
|---|---|---|---|---|---|---|
| {{ tx.banque }} {{ $index+1 }} | {{ tx.taux | number:2 }}% | {{ tx.type }} | -{{ tx.capNeg }}%/+{{ tx.capPos }}% | {{ tx.mens | number:2 }}€ | {{ tx.min | number:2 }}€ | {{ tx.max | number:2 }}€ |
Rentabilité
Cout total de l’acquisition
| Prix d'achat | {{ calculeData.prix | number:2 }} € |
| Rénovation | + {{ calculeData.prixTransRenovation | number:2 }} € |
| Frais | + {{ calculeData.frais | number:2 }} € |
| Coût total | + {{ calculeData.frais + calculeData.prixTransRenovation + calculeData.prix | number:2 }} € |
| Fonds propres + crédit pont | {{ calculeData.totalFP+calculeData.creditPont | number:2 }} € |
| Montant du crédit | {{ calculeData.montantCredit | number:2 }} € |
| Coût total | + {{ calculeData.creditPont + calculeData.totalFP + calculeData.montantCredit | number:2 }} € |
Rentabilité sur actifs
Durée de détention année(s)
Gain réel {{ calculeData.gainReel | number:0 }} €
Rendement sur actif {{ calculeData.rendementSurActif | number:2 }} %
Revenus
| Revenu locatif annuel Brut | € |
| Charge annuelle {{ calculeData.pourcentageCharge | number:2 }}% | {{ calculeData.chargeLocatifAnnuel | number:2 }} € |
| Précompte immobilier | {{ calculeData.precomteImmo | number:2 }} € |
| Autre charge annuelle | € |
| Revenu locatif annuel net | {{ calculeData.revenuLocatifAnnuelNet | number:2 }} € |
| Total revenu locatif après {{ calculeData.dureeDetention }} année(s) tenant compte d'une inflation de % |
{{ calculeData.totalRevenuLocatif | number:2 }} € |
| Plus-value latente | {{ calculeData.pluvalueLatente | number:2 }} % |
| Plus-value du bien après {{calculeData.dureeDetention}} année(s) | {{ calculeData.pluvalueBien | number:2 }} € |
| Total revenu locatif après {{ calculeData.dureeDetention }} année(s) | {{ calculeData.totalRevenuLocatif | number:2 }} € |
| Gain brut sur le prix de base après {{ calculeData.dureeDetention }} année(s) | +{{ calculeData.gainBrut | number:2 }} € |
Charges
| Durée du crédit | {{ calculeData.duree | number:2 }} ans |
| Taux | {{ calculeData.taux | number:2 }} % |
| Mensualité | {{ calculeData.mensualite | number:2 }} € |
| Total interêts après {{calculeData.dureeDetention}} année(s) | {{ calculeData.totalInteret | number:2 }} € |
| Total frais | {{ calculeData.frais | number:2 }} € |
| Total | {{ calculeData.InteretFrais | number:2 }} € |
Gain réel
Rendement sur actif
Cash flow
| Année | Coût | Revenu locatif | Gain |
|---|---|---|---|
| {{ $index }} | {{ ch.payment | number:2 }} € | {{ ch.revenuLocatif | number:2 }} € | {{ - ch.fondPropre | number:2 }} € |
Av. Louise 433 1050 Bruxelles - 02 648 01 20
Drève Richelle 96 1410 Waterloo - 02 354 29 39
Av. Prekelinden 83 1200 Woluwe-St-Lambert - 02 734 00 36