Suis-je éligible à une réduction des droits d’enregistrement ?
Général Jacques 78
PRIX : 845 000 €
Type: Maison | Région: Bruxelles | Commune: Ixelles
Maison de maître actuellement divisée en 4 unités à régulariser/ unifamiliale à rénover partiellement. En souplex et au rez-de-jardin, appartement 2 CH rénové donnant sur la terrasse et le jardin. Caves, buanderie et atelier complètent cette unité. Au 1er étage, appartement 1CH rénové avec cuisine ouverte sur le séjour. Splendide terrasse. Au 2e étage : Appartement 1 CH à rénover. Au 3e étage : Appartement à équiper, avec vaste grenier au 4e étage. PEB : E- & G. Electricité non-conforme.
Surface Totale: 490 M²
Surface habitable: 469 m²
Chambres: 4
Salles de bain: 3
Terrasse: 1
Caves: 2
Balcon: 1
Jardin: Oui
Grenier: 1
Vidéo
Découvrez le bien en visualisant cette vidéo
VISITE VIRTUELLE
Vous voulez en voir plus ? Visitez le bien comme si vous y étiez à travers cette visite virtuelle
Localisation
Ce bien vous correspond ? Découvrez maintenant si sa localisation vous convient !
Commerces
Pharmacies
Restaurants
Boulangeries
Crèches
Parcs
Écoles
Universités
Déplacements
Plans intérieurs
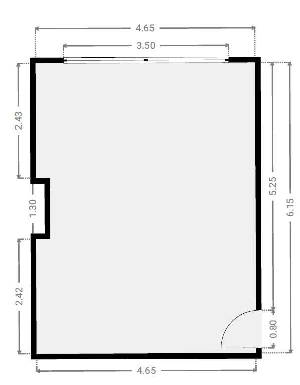
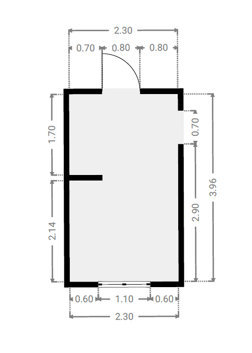
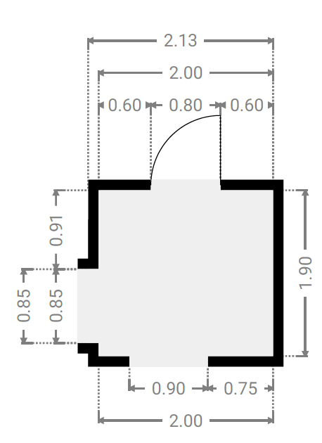
Sous-sol
SURFACE TOTALE : 109.06 m² | SURFACE HABITABLE : 109.06 m² | PIÈCE(S) : 7
1x S.D.B.1
1x Atelier
2x Cave(s)
1x Chambre1
S.D.B.1
SURFACE : 22.99 m²
Atelier
SURFACE : 13.34 m²
Cave
SURFACE : 13.68 m²
SURFACE : 29.57 m²
Chambre1
SURFACE : 18.95 m²
SURFACE : 4.93 m²
Cave
SURFACE : 5.65 m²
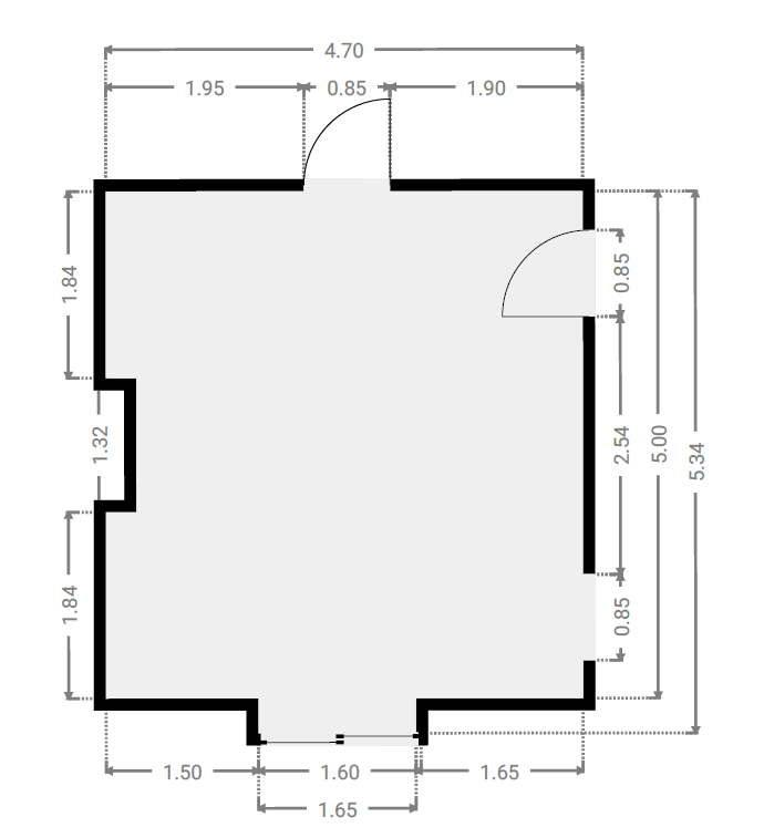
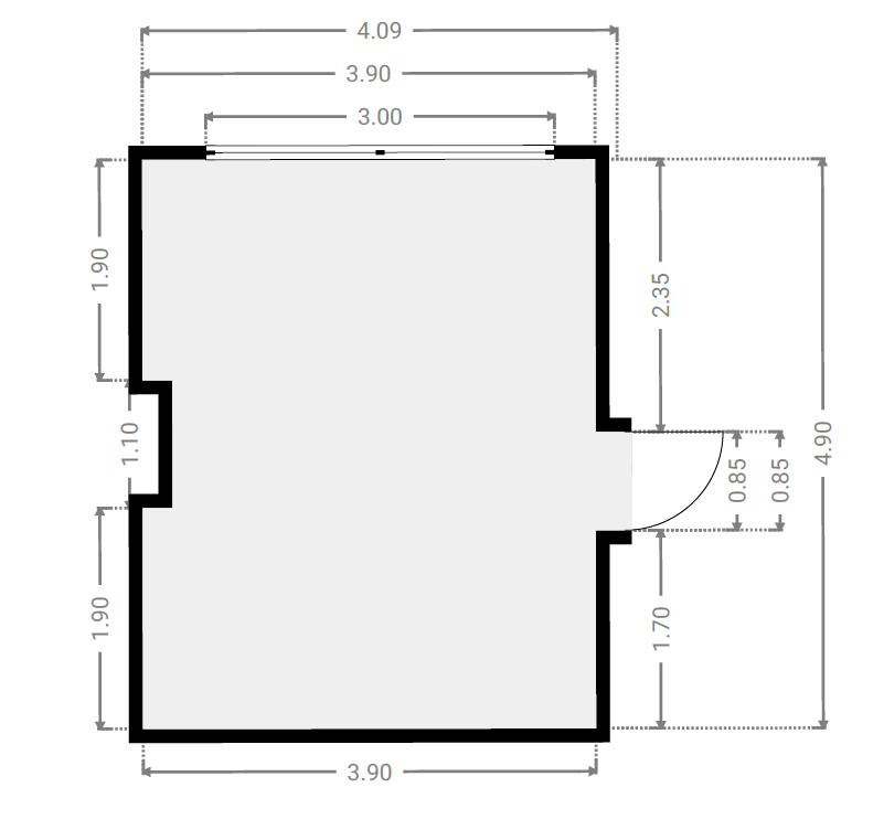
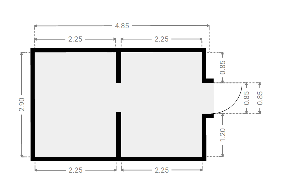
Rez-de-chaussée
SURFACE TOTALE : 106.96 m² | SURFACE HABITABLE : 106.96 m² | PIÈCE(S) : 8
1x Chambre 2
1x Séjour 1
1x Entrée
1x Cuisine 1
1x Salle à manger 1
Chambre 2
SURFACE : 22.39 m²
Séjour 1
SURFACE : 28.61 m²
Entrée
SURFACE : 2.19 m²
SURFACE : 17.03 m²
SURFACE : 4.89 m²
Cuisine 1
SURFACE : 10.74 m²
Salle à manger 1
SURFACE : 20.55 m²
W.C.
SURFACE : 0.61 m²
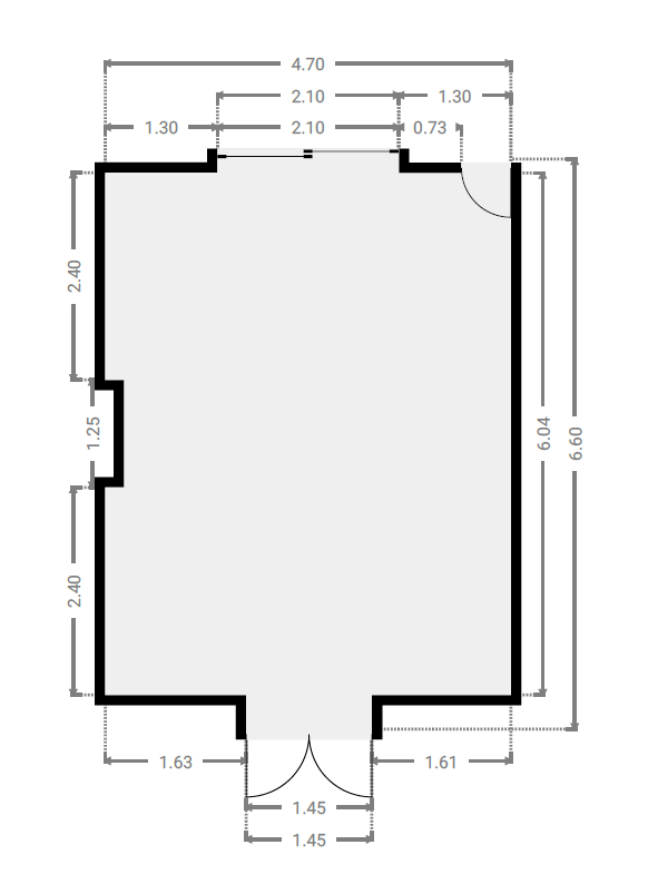
1er étage
SURFACE TOTALE : 122.16 m² | SURFACE HABITABLE : 122.16 m² | PIÈCE(S) : 8
1x Entrée 2
1x Cuisine 2
1x Séjour 2
1x Salle à manger 2
1x Terrasse
1x S.D.B. 2
1x Chambre 3
SURFACE : 11.2 m²
Entrée 2
SURFACE : 3.92 m²
Cuisine 2
SURFACE : 6.35 m²
Séjour 2
SURFACE : 29.04 m²
Salle à manger 2
SURFACE : 24.77 m²
Terrasse
SURFACE : 19.14 m²
S.D.B. 2
SURFACE : 10.76 m²
SURFACE : 2.76 m²
Chambre 3
SURFACE : 14.3 m²
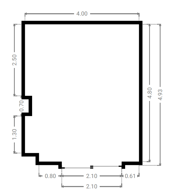
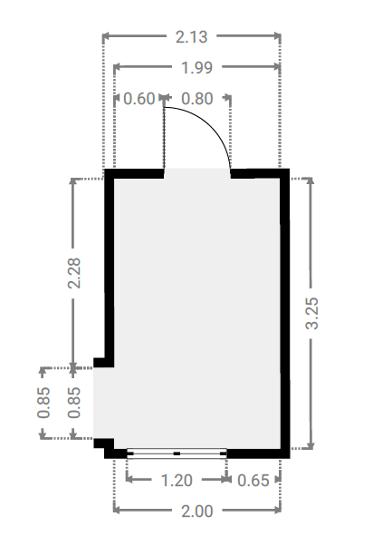
2e étage
SURFACE TOTALE : 76.36 m² | SURFACE HABITABLE : 74.37m² | PIÈCE(S) : 4
1x Séjour 3
1x Balcon
1x Chambre 4
1x Cuisine 3
Séjour 3
SURFACE : 23.62 m²
Balcon
SURFACE : 1.99 m²
Chambre 4
SURFACE : 28.39 m²
Cuisine 3
SURFACE : 6.58 m²
SURFACE : 15.81 m²
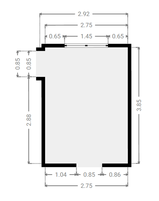
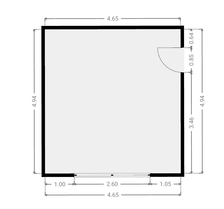
3e étage
SURFACE TOTALE : 75.95 m² | SURFACE HABITABLE : 75.95 m² | PIÈCE(S) : 7
1x Séjour 4
1x S.D.B. 3
1x Cuisine 4
1x Bureau
SURFACE : 8.16 m²
W.C.
SURFACE : 1.98 m²
SURFACE : 9.07 m²
Séjour 4
SURFACE : 28.2 m²
S.D.B. 3
SURFACE : 9.01 m²
Cuisine 4
SURFACE : 11.26 m²
Bureau
SURFACE : 8.31 m²
RECHERCHE CADASTRALE
Vous souhaitez mieux connaître votre parcelle et connaître la surface dont vous jouirez en achetant ce bien, alors consulter le cadastre est nécessaire !
Surface : 410.65 m²
Parcelle : C249v13
Certificats
Informez-vous sur la performance énergétique de ce bien et assurez-vous que ses installations électriques sont bien aux normes !
PERFORMANCE ÉNERGÉTIQUE SOUPLEX ETAGE 0 ET -1
Économe
Très énergivore
PERFORMANCE ÉNERGÉTIQUE 1ER ETAGE
Économe
Très énergivore
PERFORMANCE ÉNERGÉTIQUE 2EME ETAGE
Économe
Très énergivore
CERTIFICAT ÉLECTRIQUE ETAGE COMMUN
PROCES VERBAL D’EXAMEN DE CONFORMITE ET/OU DE VISITE DE CONTROLE D’UNE INSTALLATION ELECTRIQUE BASSE TENSION
La nouvelle installationNon conforme
Agent
visiteur
Hicham Benchaib
Date
de certification
24/03/2023
Visite de contrôle
à effectuer avant le
24/03/2024
CERTIFICAT ÉLECTRIQUE ETAGE RDC
PROCES VERBAL D’EXAMEN DE CONFORMITE ET/OU DE VISITE DE CONTROLE D’UNE INSTALLATION ELECTRIQUE BASSE TENSION
La nouvelle installationConforme
Agent
visiteur
Hicham Benchaib
Date
de certification
24/03/2023
Visite de contrôle
à effectuer avant le
24/03/2048
CERTIFICAT ÉLECTRIQUE 1ER ETAGE
PROCES VERBAL D’EXAMEN DE CONFORMITE ET/OU DE VISITE DE CONTROLE D’UNE INSTALLATION ELECTRIQUE BASSE TENSION
La nouvelle installationNon conforme
Agent
visiteur
Hicham Benchaib
Date
de certification
24/03/2023
Visite de contrôle
à effectuer avant le
24/03/2024
CERTIFICAT ÉLECTRIQUE 2EME ETAGE
PROCES VERBAL D’EXAMEN DE CONFORMITE ET/OU DE VISITE DE CONTROLE D’UNE INSTALLATION ELECTRIQUE BASSE TENSION
La nouvelle installationNon conforme
Agent
visiteur
Hicham Benchaib
Date
de certification
24/03/2023
Visite de contrôle
à effectuer avant le
24/03/2024
CERTIFICAT ÉLECTRIQUE 3EME ETAGE
PROCES VERBAL D’EXAMEN DE CONFORMITE ET/OU DE VISITE DE CONTROLE D’UNE INSTALLATION ELECTRIQUE BASSE TENSION
La nouvelle installationNon conforme
Agent
visiteur
Hicham Benchaib
Date
de certification
24/03/2023
Visite de contrôle
à effectuer avant le
24/03/2024
Audit technique
En prévoyant un budget précis des transformations et/ou réparations à opérer sur ce bien, l'expertise réalisée par un architecte neutre et indépendant vous permet de mieux évaluer la valeur de ce bien !
Score général attribué par l’auditeur *
Conseils généraux en termes de performances énergétiques du bâtiment :
L'immeuble ne possède aucune isolation thermique.
Le grenier sera le premier élément à isoler, suivi par les châssis qui ne l'ont pas encore été et ensuite par la façade arrière, par l'extérieur.
La façade principale sera isolée par l'intérieur.
Avis général et conseils de l'inspecteur :
Cet immeuble a conservé les qualités de son architecture dans les niveaux inférieurs.
Les derniers étages n'ont pas encore été rénovés.
Les infiltrations par les mitoyens doivent trouver réponse avant d'en entamer la rénovation à la hauteur des niveaux inférieurs.
La régularisation de la situation urbanistique exigera des travaux lourds de protection contre les incendies notamment entre les étages, les portes y donnant accès et la cage d'escalier.
DISCLAIMER
La conclusion et les conseils donnés sont le résultat d’une inspection indépendante, réalisée par un architecte expérimenté et agréé par ImmoPass.
Les éventuelles estimations budgétaires contenues dans ce rapport sont données à titre indicatif et ne constituent pas un devis. Nous recommandons de réaliser un Cahier des Charges sur tout ou partie des travaux à entreprendre et une analyse des devis reçus. Les estimations sont exprimées hors taxes.
L’inspection a été réalisée de manière non-destructive, de manière visuelle uniquement. Ce rapport ne peut donc garantir l’absence totale de vices techniques cachés.
67 %
Zone inondable, zone acoustique, plan de secteurs, permis d’urbanisme ...
50 %
Certification énergétique, conformité électrique, cuve à mazout, sol, ...
80 %
Sécurité, aménagements, structures extérieures, entretien végétation, ...
80 %
Humidité généralisée, présence d’amiante, mérule, termites ...
91 %
Toiture, murs extérieurs, châssis et portes, évacuation eau de pluie, ...
94 %
Défauts structurels, humidité localisée, salubrité, état de fonctionnement..
93 %
Halls et escaliers, caves, combles et grenier, locaux techniques, ...
100 %
Système de chauffage, eau chaude sanitaire, électricité, entretiens techniques, ...
La carte du brut des avions situe le bâtiment dans une zone où il est inférieur à 15 dB(A).
La division de l'immeuble en appartements n'a pas fait l'objet d'un permis d'urbanisme.
voir documents délivrés.
Seul le rez-de-chaussée est certifié conforme, les 4 autres ne le sont pas et font l'objet de remarques.
voir document délivré le 03/05/2022 par ""Chauffage Matagne"".
Infiltrations via mitoyens du 76, autant devant que derrière
Charnières de la porte de la terrasse avant à réparer, Porte-fenêtre bloquée fermée.
Peintures de la structure de la marquise arrière à refaire.
L'abri se trouve dans la cour anglaise arrière.
Piscine hors-sol
Bâche de protection ancienne.
Système de chauffage de l'eau par panneau solaire. à reprendre.
Isolation des canalisations de chauffage au sous-sol.
Faire réaliser un inventaire amiante.
Infiltrations au droit du mitoyen du 76
Au 2ème étage devant, au 1er étage et au rez derrière.
Voir point 2.3.
Façade arrière à rafraichir.
Finitions intérieures anciennes au 2ème étage et aux greniers
La couverture a été remplacée en 2009, selon l'occupant.
Citerne d'eaux de pluie +/- 10 mètres cubes
Certains supports n'ont plus de détecteur
Améliorer la ventilation de la salle de bain du 2ème étage
Salle de bain du 2ème étage : voire remarque ventilation
2eme étage
Un rafraichissement des peintures est conseillé.
Il manque une balustre à la volée de la cave
La panne du pan de toiture arrière à été renforcée par deux pieds métalliques.
Elle porte les traces d'anciennes infiltrations qui ont précédé la rénovation de la couverture.
Travaux anciens.
Attention : la structure du plancher du grenier ne couvre que la partie avant de l'immeuble.
La partie arrière n'est qu'un plafond.
Les deux grandes pièces avant et arrière des caves ont été respectivement aménagées en salle de douche et en chambre à coucher pour l'appartement du rez-de-chaussée.
Les pièces au centre de l'immeuble servent de cave et de local chaufferie.
Le couloir possède toujours son carrelage d'origine en excellent état.
DATA ROOM
Nous avons mis tous les documents importants dans la date room, n’hésitez pas à télécharger ce dont vous avez besoin !
Nous avons mis tous les documents importants dans la date room, n’hésitez pas à télécharger ce dont vous avez besoin !
Besoin de crédit
Maintenant que vous êtes sûrs d’avoir fait le bon choix, calculez la valeur totale de cette acquisition (valeur du bien et frais annexes) et estimez vos besoins en crédit !
Simulation de crédit
| Prix d'achat | € |
| Rénovation | € |
| Rénovation HTVA | {{ calculeData.renovationHTVA | number:2 }} € |
| TVA | {{ calculeData.tva | number:2 }} € |
| Fonds propres | € |
| Acompte dû (disponible au compromis de vente) | {{ calculeData.prix * 0.1 | number:2 }} € |
| Reste des liquidités (disponible à l'acte) | {{ calculeData.avance | number:2 }} € |
| Crédit pont | {{ calculeData.creditPont | number:2 }} € |
| Prix de vente de votre bien existant | € |
| Solde du crédit existant | € |
| Frais d'acte d'achat | {{ calculeData.droit + calculeData.fraisNotaire | number:2 }} € |
| Droits d'enregistrement | {{ calculeData.droit | number:2 }} € |
|
Abattement
Suis-je éligible à une réduction des droits d’enregistrement ? |
|
| Frais de notaire | {{ calculeData.fraisNotaire | number:2 }} € |
| Autres frais | {{ calculeData.inscription + calculeData.fraisDossier + calculeData.autreFrais | number:2 }} € |
| Frais liés à l'acte hypothécaire | {{ calculeData.inscription | number:2 }} € |
| Frais de dossier et expertise bancaire | {{ calculeData.fraisDossier | number:2 }} € |
| Autres frais | € |
| Montant du crédit | {{ calculeData.montantCredit | number:2 }} € | |
La présente simulation se base sur un taux d’intérêt du 02/06/2023. Ce calcul est indicatif et sujet à changement.
Choix du type de crédit
| Taux | Type | CAP | Mensualité | Mensualité Min | Mensualité Max | |
|---|---|---|---|---|---|---|
| {{ tx.banque }} {{ $index+1 }} | {{ tx.taux | number:2 }}% | {{ tx.type }} | -{{ tx.capNeg }}%/+{{ tx.capPos }}% | {{ tx.mens | number:2 }}€ | {{ tx.min | number:2 }}€ | {{ tx.max | number:2 }}€ |
| Taux | Type | CAP | Mensualité | Mensualité Min | Mensualité Max | |
|---|---|---|---|---|---|---|
| {{ tx.banque }} {{ $index+1 }} | {{ tx.taux | number:2 }}% | {{ tx.type }} | -{{ tx.capNeg }}%/+{{ tx.capPos }}% | {{ tx.mens | number:2 }}€ | {{ tx.min | number:2 }}€ | {{ tx.max | number:2 }}€ |
| Taux | Type | CAP | Mensualité | Mensualité Min | Mensualité Max | |
|---|---|---|---|---|---|---|
| {{ tx.banque }} {{ $index+1 }} | {{ tx.taux | number:2 }}% | {{ tx.type }} | -{{ tx.capNeg }}%/+{{ tx.capPos }}% | {{ tx.mens | number:2 }}€ | {{ tx.min | number:2 }}€ | {{ tx.max | number:2 }}€ |
Rentabilité
Cout total de l’acquisition
| Prix d'achat | {{ calculeData.prix | number:2 }} € |
| Rénovation | + {{ calculeData.prixTransRenovation | number:2 }} € |
| Frais | + {{ calculeData.frais | number:2 }} € |
| Coût total | + {{ calculeData.frais + calculeData.prixTransRenovation + calculeData.prix | number:2 }} € |
| Fonds propres + crédit pont | {{ calculeData.totalFP+calculeData.creditPont | number:2 }} € |
| Montant du crédit | {{ calculeData.montantCredit | number:2 }} € |
| Coût total | + {{ calculeData.creditPont + calculeData.totalFP + calculeData.montantCredit | number:2 }} € |
Rentabilité sur actifs
Durée de détention année(s)
Gain réel {{ calculeData.gainReel | number:0 }} €
Rendement sur actif {{ calculeData.rendementSurActif | number:2 }} %
Revenus
| Revenu locatif annuel Brut | € |
| Charge annuelle {{ calculeData.pourcentageCharge | number:2 }}% | {{ calculeData.chargeLocatifAnnuel | number:2 }} € |
| Précompte immobilier | {{ calculeData.precomteImmo | number:2 }} € |
| Autre charge annuelle | € |
| Revenu locatif annuel net | {{ calculeData.revenuLocatifAnnuelNet | number:2 }} € |
| Total revenu locatif après {{ calculeData.dureeDetention }} année(s) tenant compte d'une inflation de % |
{{ calculeData.totalRevenuLocatif | number:2 }} € |
| Plus-value latente | {{ calculeData.pluvalueLatente | number:2 }} % |
| Plus-value du bien après {{calculeData.dureeDetention}} année(s) | {{ calculeData.pluvalueBien | number:2 }} € |
| Total revenu locatif après {{ calculeData.dureeDetention }} année(s) | {{ calculeData.totalRevenuLocatif | number:2 }} € |
| Gain brut sur le prix de base après {{ calculeData.dureeDetention }} année(s) | +{{ calculeData.gainBrut | number:2 }} € |
Charges
| Durée du crédit | {{ calculeData.duree | number:2 }} ans |
| Taux | {{ calculeData.taux | number:2 }} % |
| Mensualité | {{ calculeData.mensualite | number:2 }} € |
| Total interêts après {{calculeData.dureeDetention}} année(s) | {{ calculeData.totalInteret | number:2 }} € |
| Total frais | {{ calculeData.frais | number:2 }} € |
| Total | {{ calculeData.InteretFrais | number:2 }} € |
Gain réel
Rendement sur actif
Cash flow
| Année | Coût | Revenu locatif | Gain |
|---|---|---|---|
| {{ $index }} | {{ ch.payment | number:2 }} € | {{ ch.revenuLocatif | number:2 }} € | {{ - ch.fondPropre | number:2 }} € |
Av. Louise 433 Louizalaan 1050 Bruxelles - Brussel
Drève Richelle, 96 - 1410 Waterloo