Suis-je éligible à une réduction des droits d’enregistrement ?
Gasperi 4
PRIX : 640 000 €
Type: Villa | Région: Wallonie | Commune: Ottignies
Charmante lumineuse villa de 380m² du surface totale avec piscine,4 chambres, terrasse, jardin, garage, 2 places du parking et 5 caves, située dans un quartier calme.
Surface habitable: 353.69 m²
Chambres: 4
Salles de bain: 2
Terrasse: 1
Garage: 1
Piscine: Oui
Jardin: Oui
Vidéo
Découvrez le bien en visualisant cette vidéo
VISITE VIRTUELLE
Vous voulez en voir plus ? Visitez le bien comme si vous y étiez à travers cette visite virtuelle
Localisation
Ce bien vous correspond ? Découvrez maintenant si sa localisation vous convient !
Commerces
Pharmacies
Restaurants
Boulangeries
Crèches
Parcs
Écoles
Universités
Déplacements
Plans intérieurs
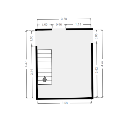
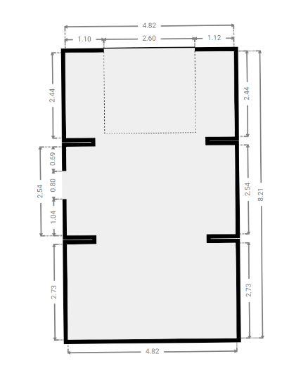
Sous-sol
SURFACE TOTALE : 145.54 m² | SURFACE HABITABLE : 164.43 m² | PIÈCE(S) : 7
5x Cave(s)
2x Couloir(s)
Cave 1
SURFACE : 44.8 m²
Cave 2
SURFACE : 17.01 m²
Couloir
SURFACE : 16.02 m²
Cave 4
SURFACE : 12.22 m²
Cave 3
SURFACE : 11.39 m²
Cave 5
SURFACE : 38.73 m²
Couloir
SURFACE : 5.44 m²
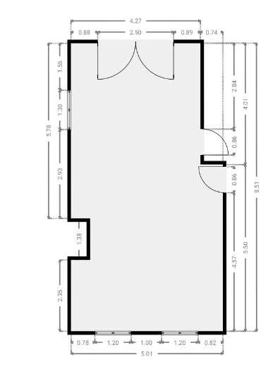
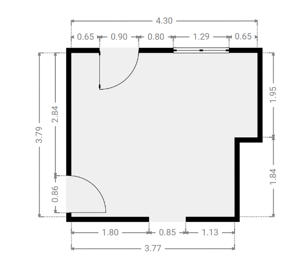
Rez-de-chaussée
SURFACE TOTALE : 128.38 m² | SURFACE HABITABLE : 149.1 m² | PIÈCE(S) : 8
1x Séjour / Salle à manger
1x Cuisine
1x Hall
1x Couloir
1x Bureau
1x Buanderie
1x Garage
Séjour / Salle à manger
SURFACE : 43.79 m²
Cuisine
SURFACE : 15.31 m²
Hall
SURFACE : 13.53 m²
Couloir
SURFACE : 1.58 m²
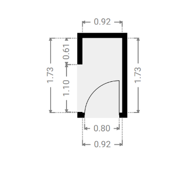
W.C
SURFACE : 1.4 m²
Bureau
SURFACE : 11.86 m²
Buanderie
SURFACE : 14.44 m²
Garage
SURFACE : 26.54 m²
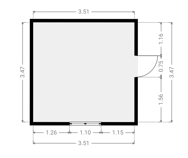
1er étage
SURFACE TOTALE : 106.31 m² | SURFACE HABITABLE : 123.58 m² | PIÈCE(S) : 8
4x Chambre(s)
1x Couloir
2x S.D.B (s)
Chambre 1
SURFACE : 22.86 m²
Chambre 2
SURFACE : 15.89 m²
Couloir
SURFACE : 7.63 m²
S.D.B 1
SURFACE : 7.29 m²
W.C
SURFACE : 1.36 m²
Chambre 3
SURFACE : 13.03 m²
S.D.B 2
SURFACE : 12.19 m²
Chambre 4
SURFACE : 26.13 m²
RECHERCHE CADASTRALE
Vous souhaitez mieux connaître votre parcelle et connaître la surface dont vous jouirez en achetant ce bien, alors consulter le cadastre est nécessaire !
Surface : 1105.6 m²
Parcelle : F308k7
Certificats
Informez-vous sur la performance énergétique de ce bien et assurez-vous que ses installations électriques sont bien aux normes !
PERFORMANCE ÉNERGÉTIQUE
Économe
Très énergivore
CERTIFICAT D’ÉTANCHÉITÉ DE LA CUVE À MAZOUT
PROCES VERBAL D’EXAMEN D’ÉTANCHÉITÉ ET/OU DE VISITE DE CONTROLE DE LA CUVE À MAZOUT
L'installation existante Étanche
Agent
visiteur
steyfkens Fabian
Date
de certification
13/11/2020
Visite de contrôle
à effectuer avant le
13/11/2023
Certificat électrique
procès verbal d'examen de conformité et /ou de visite de contrôle d'une installation électrique basse tension
Non Conforme
Agent
visiteur
Laurent Bergiers
Date
de certification
23/03/2023
Doit être
contrôlée avant
23/03/2024
Audit technique
En prévoyant un budget précis des transformations et/ou réparations à opérer sur ce bien, l'expertise réalisée par un architecte neutre et indépendant vous permet de mieux évaluer la valeur de ce bien !
Score général attribué par l’auditeur *
Conseils généraux en termes de performances énergétiques du bâtiment :
Nous recommandons de changer les châssis et les vitrages en premier lieu en prévoyant des grilles d'aération qui permettront une bonne ventilation des locaux en cas de rénovation énergétique.
Avis général et conseils de l'inspecteur :
Maison saine mais qui nécessite une rafraichissement général.
DISCLAIMER
La conclusion et les conseils donnés sont le résultat d’une inspection indépendante, réalisée par un architecte expérimenté et agréé par ImmoPass.
Les éventuelles estimations budgétaires contenues dans ce rapport sont données à titre indicatif et ne constituent pas un devis. Nous recommandons de réaliser un Cahier des Charges sur tout ou partie des travaux à entreprendre et une analyse des devis reçus. Les estimations sont exprimées hors taxes.
L’inspection a été réalisée de manière non-destructive, de manière visuelle uniquement. Ce rapport ne peut donc garantir l’absence totale de vices techniques cachés.
100 %
Zone inondable, zone acoustique, plan de secteurs, permis d’urbanisme ...
60 %
Certification énergétique, conformité électrique, cuve à mazout, sol, ...
84 %
Sécurité, aménagements, structures extérieures, entretien végétation, ...
100 %
Humidité généralisée, présence d’amiante, mérule, termites ...
80 %
Toiture, murs extérieurs, châssis et portes, évacuation eau de pluie, ...
94 %
Défauts structurels, humidité localisée, salubrité, état de fonctionnement..
92 %
Halls et escaliers, caves, combles et grenier, locaux techniques, ...
75 %
Système de chauffage, eau chaude sanitaire, électricité, entretiens techniques, ...
PEB C - voir rapport du 02/04/2023
Voir remarque rapport Certinergie du 23/03/2023
Présence de mousses au droit des joints des dalles de trottoirs.
L'étanchéité n'est plus assurée notamment au droit de la terrasse couverte.
Nous pensons que cette terrasse devrait être refaite. On constate notamment au niveau du garage la présence d'eau au niveau du plafond et des hourdis. Il faut démonter le revêtement actuel, permettre une étanchéité et carrelé par-dessus ou alors déposer des dalles sur plots ou un caillebotis bois.
Il faut compter un budget de 400 euros qui comprend notamment la pose d'une isolation au-dessus du garage.
La piscine doit être nettoyée
La pompe à chaleur ne fonctionne plus.
Le trop-plein eest relié à un puit perdu.
Le liner est ancien. prévoir un remplacement dans le futur.
Budget entre 5.000 -10.000 euros à prévoir
Le bâtiment est sec et très sain hormis le petit soucis d'humidité au niveau du garage dû au manque d'étanchéité de la terrasse.
En caves nous avons repris l'humidité au droit des blocs béton qui présentaient des traces humides mais l'humidimètre n'a relevé aucune zone problématique.
Les murs sont peu isolés (4cm polystyrène extrudé) et ne correspondent plus aux normes actuelles mais nous n'avons relevé aucun problème particulier.
Attention les maçonneries extérieures ne sont pas rejointoyées ce qui pourrait constituer une source d'humidité même si ce n'est pas le cas actuellement.
Nous n'avons pas pu vérifier la présence d'une sous-toiture sous les tuiles cependant toute la charpente est sèche et il n'y a aucune trace de coulée dans le grenier. Nous supposons donc qu'il y a bien une sous-toiture et qu'elle est en bon état.
L'isolation (12cm de laine de verre et pare-vapeur) est insuffisante au regard des normes actuelles mais a le mérite de déjà être présente.
Attention au manque de rejointoiement des maçonneries.
Prévoir un nettoyage des gouttières.
Attention - un sterfput est plus bas que le niveau de raccordement de l'égouttage. Nous conseillons de le boucher définitivement pour éviter des inondations de caves par débordement.
Présence d'une citerne de 3.000 litres avec récupération pour l'alimentation des WC et du robinet extérieur + système by-pass sur l'eau de ville.
Les châssis sont relativement ancien même si bien entretenu.
Il faudra envisager néanmoins un remplacement dans un délais de maximum 5 ans pour correspondre aux normes actuelles en matière d'isolation (U 1,1). Il faudra également que l'aspect aération soit prix en compte dans la perspective d'une transformation énergétique afin d'atteindre les performances demandées par la Région Wallonne à l'horizon 2050.
Les vélux devraient être remplacés, on constate déjà des traces d'humidité qui démontre que la condensation se fait en partie intérieure.
La porte devra également être améliorée à l'horizon 2050
Placer un détecteur incendie à chaque niveau.
On constate que le faux-plafond présente une légère fissuration dû notamment au fonctionnement d'une machine de cuisson à la vapeur. Problème mineur. Il faut réparer les petites fissures localement en plaçant un petit renfort au niveau du plafonnage et repeindre l'ensemble. Budget 30 euros/m2
La ventilation est assurée par la fenêtre présente dans la pièce.
A terme et dans l'optique d'une rénovation énergétique, il faudra prévoir un système de ventilation mécanique dans le WC. Cout inférieur 1.000 euros.
L'ensemble est relativement vieillot mais ne présente pas de défaut majeur.
Attention les lucarnes sont les points les plus faibles au niveau de l'habitation de la maison. Toujours assurer une bonne ventilation des SDB pour éviter la condensation et la présence de moisissures.
La ventilation est assurée par la fenêtre présente dans la pièce.
A terme et dans l'optique d'une rénovation énergétique, il faudra prévoir un système de ventilation mécanique dans la SDB. Cout inférieur 1.000 euros.
Ventilation naturelle - également assurée par le manque d'isolation et d'étanchéité de la maison. Attention une cas de rénovation énergétique.
Attention à l'humidité dans le plafond du garage du bas. Revoir l'étanchéité de la terrasse. Déjà repris par ailleurs.
Idéalement il faudra traiter la poutrelle métallique et remettre une bonne couche de peinture Rf en surface.
Attention, il n'y a pas de vannes thermostatiques dans toutes les pièces et il y a une trou dans le radiateur de la chambre parentale.
Il faut isoler les canalisations en cave pour diminuer les pertes.
Prévoir un budget de 3.000 à 5.000 euros.
Idéalement si des travaux de décors intérieurs sont réalisés, nous recommandons le changement des canalisations de chauffage.
Il faut isoler les canalisations en cave pour diminuer les pertes.
Attention au problème de sterfput. Le niveau du bas des caves est inférieur à celui du raccordement. Il faut soit condamner les canalisations soit raccordés le tout à une pompe de rehausse pour les remonter au niveau du raccordement d'égouttage.
L'électricité date de la construction. Voir rapport de réception par organisme agréé.
DATA ROOM
Nous avons mis tous les documents importants dans la date room, n’hésitez pas à télécharger ce dont vous avez besoin !
Nous avons mis tous les documents importants dans la date room, n’hésitez pas à télécharger ce dont vous avez besoin !
Besoin de crédit
Maintenant que vous êtes sûrs d’avoir fait le bon choix, calculez la valeur totale de cette acquisition (valeur du bien et frais annexes) et estimez vos besoins en crédit !
Simulation de crédit
| Prix d'achat | € |
| Rénovation | € |
| Rénovation HTVA | {{ calculeData.renovationHTVA | number:2 }} € |
| TVA | {{ calculeData.tva | number:2 }} € |
| Fonds propres | € |
| Acompte dû (disponible au compromis de vente) | {{ calculeData.prix * 0.1 | number:2 }} € |
| Reste des liquidités (disponible à l'acte) | {{ calculeData.avance | number:2 }} € |
| Crédit pont | {{ calculeData.creditPont | number:2 }} € |
| Prix de vente de votre bien existant | € |
| Solde du crédit existant | € |
| Frais d'acte d'achat | {{ calculeData.droit + calculeData.fraisNotaire | number:2 }} € |
| Droits d'enregistrement | {{ calculeData.droit | number:2 }} € |
|
Abattement
Suis-je éligible à une réduction des droits d’enregistrement ? |
|
| Frais de notaire | {{ calculeData.fraisNotaire | number:2 }} € |
| Autres frais | {{ calculeData.inscription + calculeData.fraisDossier + calculeData.autreFrais | number:2 }} € |
| Frais liés à l'acte hypothécaire | {{ calculeData.inscription | number:2 }} € |
| Frais de dossier et expertise bancaire | {{ calculeData.fraisDossier | number:2 }} € |
| Autres frais | € |
| Montant du crédit | {{ calculeData.montantCredit | number:2 }} € | |
Choix du type de crédit
| Taux | Type | CAP | Mensualité | Mensualité Min | Mensualité Max | |
|---|---|---|---|---|---|---|
| {{ tx.banque }} {{ $index+1 }} | {{ tx.taux | number:2 }}% | {{ tx.type }} | -{{ tx.capNeg }}%/+{{ tx.capPos }}% | {{ tx.mens | number:2 }}€ | {{ tx.min | number:2 }}€ | {{ tx.max | number:2 }}€ |
| Taux | Type | CAP | Mensualité | Mensualité Min | Mensualité Max | |
|---|---|---|---|---|---|---|
| {{ tx.banque }} {{ $index+1 }} | {{ tx.taux | number:2 }}% | {{ tx.type }} | -{{ tx.capNeg }}%/+{{ tx.capPos }}% | {{ tx.mens | number:2 }}€ | {{ tx.min | number:2 }}€ | {{ tx.max | number:2 }}€ |
| Taux | Type | CAP | Mensualité | Mensualité Min | Mensualité Max | |
|---|---|---|---|---|---|---|
| {{ tx.banque }} {{ $index+1 }} | {{ tx.taux | number:2 }}% | {{ tx.type }} | -{{ tx.capNeg }}%/+{{ tx.capPos }}% | {{ tx.mens | number:2 }}€ | {{ tx.min | number:2 }}€ | {{ tx.max | number:2 }}€ |
Rentabilité
Cout total de l’acquisition
| Prix d'achat | {{ calculeData.prix | number:2 }} € |
| Rénovation | + {{ calculeData.prixTransRenovation | number:2 }} € |
| Frais | + {{ calculeData.frais | number:2 }} € |
| Coût total | + {{ calculeData.frais + calculeData.prixTransRenovation + calculeData.prix | number:2 }} € |
| Fonds propres + crédit pont | {{ calculeData.totalFP+calculeData.creditPont | number:2 }} € |
| Montant du crédit | {{ calculeData.montantCredit | number:2 }} € |
| Coût total | + {{ calculeData.creditPont + calculeData.totalFP + calculeData.montantCredit | number:2 }} € |
Rentabilité sur actifs
Durée de détention année(s)
Gain réel {{ calculeData.gainReel | number:0 }} €
Rendement sur actif {{ calculeData.rendementSurActif | number:2 }} %
Revenus
| Revenu locatif annuel Brut | € |
| Charge annuelle {{ calculeData.pourcentageCharge | number:2 }}% | {{ calculeData.chargeLocatifAnnuel | number:2 }} € |
| Précompte immobilier | {{ calculeData.precomteImmo | number:2 }} € |
| Autre charge annuelle | € |
| Revenu locatif annuel net | {{ calculeData.revenuLocatifAnnuelNet | number:2 }} € |
| Total revenu locatif après {{ calculeData.dureeDetention }} année(s) tenant compte d'une inflation de % |
{{ calculeData.totalRevenuLocatif | number:2 }} € |
| Plus-value latente | {{ calculeData.pluvalueLatente | number:2 }} % |
| Plus-value du bien après {{calculeData.dureeDetention}} année(s) | {{ calculeData.pluvalueBien | number:2 }} € |
| Total revenu locatif après {{ calculeData.dureeDetention }} année(s) | {{ calculeData.totalRevenuLocatif | number:2 }} € |
| Gain brut sur le prix de base après {{ calculeData.dureeDetention }} année(s) | +{{ calculeData.gainBrut | number:2 }} € |
Charges
| Durée du crédit | {{ calculeData.duree | number:2 }} ans |
| Taux | {{ calculeData.taux | number:2 }} % |
| Mensualité | {{ calculeData.mensualite | number:2 }} € |
| Total interêts après {{calculeData.dureeDetention}} année(s) | {{ calculeData.totalInteret | number:2 }} € |
| Total frais | {{ calculeData.frais | number:2 }} € |
| Total | {{ calculeData.InteretFrais | number:2 }} € |
Gain réel
Rendement sur actif
Cash flow
| Année | Coût | Revenu locatif | Gain |
|---|---|---|---|
| {{ $index }} | {{ ch.payment | number:2 }} € | {{ ch.revenuLocatif | number:2 }} € | {{ - ch.fondPropre | number:2 }} € |
Av. Louise 433 Louizalaan 1050 Bruxelles - Brussel
Drève Richelle, 96 - 1410 Waterloo