Suis-je éligible à une réduction des droits d’enregistrement ?
Fond Thirion 37
PRIX : 548 000 €
Type: Maison | Région: Wallonie | Commune: Waterloo
Dans le quartier recherché du Chenois, By The Way vous présente cette charmante villa de +/- 140 m2 (net habitable) sise sur un terrain de 11 ares 32 ca. Elle se compose comme suit : Au rez-de-chaussée, un hall d'entrée avec WC séparé, un vaste salon/salle à manger avec feu ouvert (cheminée tubée) de +/- 33m2, donnant sur une belle terrasse et un grand jardin, joliment arboré orientés au Sud, une cuisine équipée de +/- 13,50m2 s'ouvrant également sur la terrasse et le jardin, une chambre de +/- 12m2. A l'étage, un hall de nuit, 4 chambres de +/- 10,50m2, 11,50m2, 15m2 et 16m2, dont une avec douche, une salle de bain avec WC. Grenier accessible par un escalier escamotable. Au sous-sol : caves, buanderie, garage.Châssis en bois double vitrage. Volets. Chauffage au mazout (2500L). Production d'eau chaude par boiler électrique. Citerne d'eau de pluie (3000 L).
Surface habitable: 226 m²
Surface terrain: 1132 m²
Chambres: 5
Salle de bain: 1
Garage: 1
Caves: 3
Jardin: Orientés au Sud
Vidéo
Découvrez le bien en visualisant cette vidéo
VISITE VIRTUELLE
Vous voulez en voir plus ? Visitez le bien comme si vous y étiez à travers cette visite virtuelle
Localisation
Ce bien vous correspond ? Découvrez maintenant si sa localisation vous convient !
Commerces
Pharmacies
Restaurants
Boulangeries
Crèches
Parcs
Écoles
Universités
Déplacements
Plans intérieurs
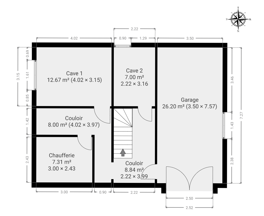
Sous-sol
SURFACE TOTALE : 69.98 m² | SURFACE HABITABLE : 82.18 m² | PIÈCE(S) : 6
2x Cave(s)
2x Couloir(s)
1x Chaufferie
1x Garage
Cave 1
SURFACE : 12.67 m²
Couloir
SURFACE : 8 m²
Chaufferie
SURFACE : 7.31 m²
Couloir
SURFACE : 8.84 m²
Cave 2
SURFACE : 7 m²
Garage
SURFACE : 26.2 m²
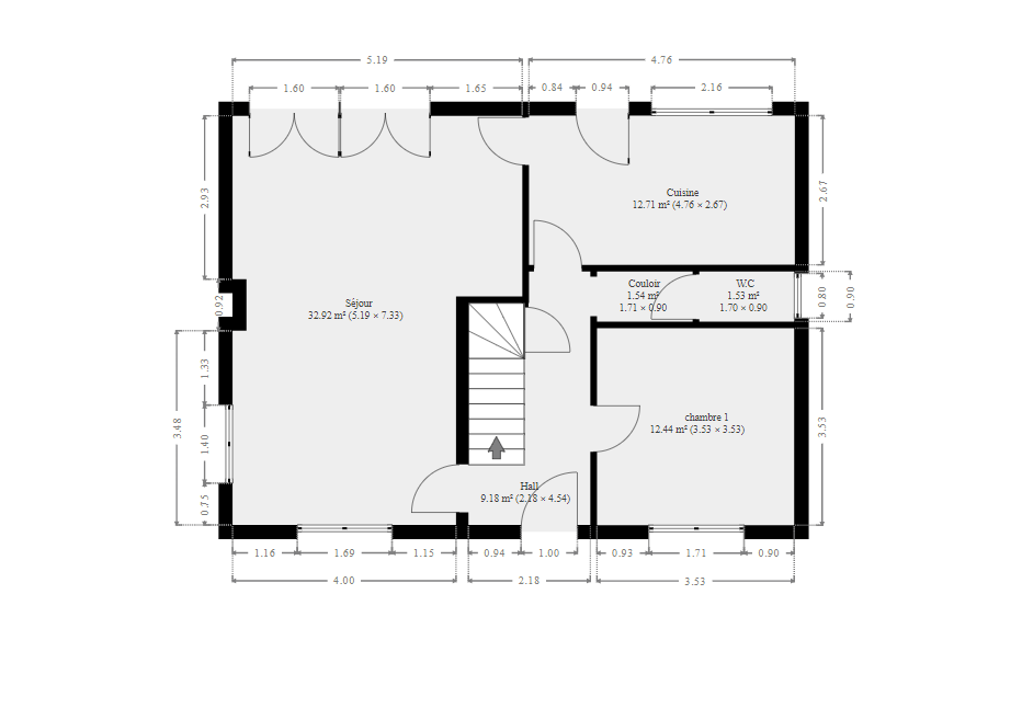
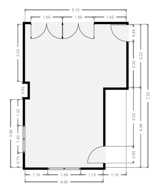
Rez-de-chaussée
SURFACE TOTALE : 70.28 m² | SURFACE HABITABLE : 82.55 m² | PIÈCE(S) : 6
1x Chambre 1
1x Hall
1x Séjour
1x Couloir
1x Cuisine
Chambre 1
SURFACE : 12.45 m²
Hall
SURFACE : 9.18 m²
Séjour
SURFACE : 32.92 m²
Couloir
SURFACE : 1.54 m²
W.C
SURFACE : 1.53 m²
Cuisine
SURFACE : 12.71 m²
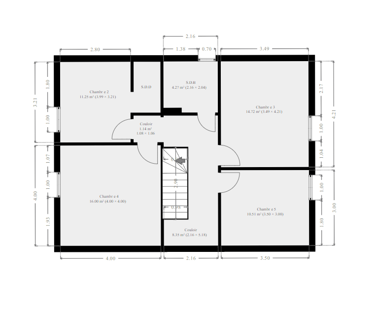
1er étage
SURFACE TOTALE : 66.2 m² | SURFACE HABITABLE : 79.95 m² | PIÈCE(S) : 7
2x Couloir(s)
4x Chambre(s)
1x S.D.B
Couloir
SURFACE : 8.35 m²
Chambre 4
SURFACE : 10.51 m²
S.D.B
SURFACE : 4.27 m²
Chambre 2
SURFACE : 14.72 m²
Chambre 3
SURFACE : 16 m²
Couloir
SURFACE : 1.14 m²
Chambre 1
SURFACE : 11.25 m²
2e étage
SURFACE TOTALE : 45.48 m² | SURFACE HABITABLE : 54.18 m² | PIÈCE(S) : 3
3x Grenier(s)
Grenier 1
SURFACE : 18.95 m²
Grenier 2
SURFACE : 10.22 m²
Grenier 3
SURFACE : 16.34 m²
RECHERCHE CADASTRALE
Vous souhaitez mieux connaître votre parcelle et connaître la surface dont vous jouirez en achetant ce bien, alors consulter le cadastre est nécessaire !
Surface : 1126.12 m²
Parcelle :D187 - D189c
Certificats
Informez-vous sur la performance énergétique de ce bien et assurez-vous que ses installations électriques sont bien aux normes !
PERFORMANCE ÉNERGÉTIQUE
Économe
Très énergivore
CERTIFICAT ÉLECTRIQUE
PROCES VERBAL D’EXAMEN DE CONFORMITE ET/OU DE VISITE DE CONTROLE D’UNE INSTALLATION ELECTRIQUE BASSE TENSION
La nouvelle installationNon conforme
Agent
visiteur
Youri Saweryniuk
Date
de certification
16/12/2022
Visite de contrôle
à effectuer avant le
18 mois prenant cours le jour de l’acte de vente
Audit technique
En prévoyant un budget précis des transformations et/ou réparations à opérer sur ce bien, l'expertise réalisée par un architecte neutre et indépendant vous permet de mieux évaluer la valeur de ce bien !
Score général attribué par l’auditeur *
Conseils généraux en termes de performances énergétiques du bâtiment :
Isoler la toiture
Isoler les murs
Changer le système de chauffage et de production d'eau chaude
Avis général et conseils de l'inspecteur :
La maison est relativement saine mais la toiture nécessite néanmoins selon nous d'être refaite afin de correspondre aux standards actuels.
Tout est comme à l'origine (1962) et un budget relativement important sera nécessaire si on veut en faire une maison correspondant aux normes d'isolations actuelles.
DISCLAIMER
La conclusion et les conseils donnés sont le résultat d’une inspection indépendante, réalisée par un architecte expérimenté et agréé par ImmoPass.
Les éventuelles estimations budgétaires contenues dans ce rapport sont données à titre indicatif et ne constituent pas un devis. Nous recommandons de réaliser un Cahier des Charges sur tout ou partie des travaux à entreprendre et une analyse des devis reçus. Les estimations sont exprimées hors taxes.
L’inspection a été réalisée de manière non-destructive, de manière visuelle uniquement. Ce rapport ne peut donc garantir l’absence totale de vices techniques cachés.
100 %
Zone inondable, zone acoustique, plan de secteurs, permis d’urbanisme ...
100 %
Certification énergétique, conformité électrique, cuve à mazout, sol, ...
94 %
Sécurité, aménagements, structures extérieures, entretien végétation, ...
50 %
Humidité généralisée, présence d’amiante, mérule, termites ...
82 %
Toiture, murs extérieurs, châssis et portes, évacuation eau de pluie, ...
89 %
Défauts structurels, humidité localisée, salubrité, état de fonctionnement..
68 %
Halls et escaliers, caves, combles et grenier, locaux techniques, ...
71 %
Système de chauffage, eau chaude sanitaire, électricité, entretiens techniques, ...
Voir rapport réception électrique
Le bien n'est pas repris en zone problématique à la BDES.
Nous avons constater que le muret à l'arrière n'a aucune protection contre l'humidité des terres. Nous pouvons constater une dégradation du muret et de son parement dû à l'humidité de ces terres. Nous conseillons de prévoir côté terre une membrane étanche et un Platon de protection. Côté intérieur, décaper le mur, refaire les joint et utiliser une peinture pour mur extérieur respirante.
Faire un démoussage de la terrasse et un nettoyage des joints, mais c'était prévu par le propriétaire actuel.
Présence d'amiante suspectée au droit des isolations des tuyauteries de chauffage.
Vérifier au niveau de la cuve à mazout
Nous recommandons un inventaire amiante avant travaux.
Nous pouvons voir des traces de passage d'insectes xylophages dans les bois de charpentes. Attention notamment aux fissures longitudinales dans les poutres en bois qui peuvent être le signe d'un délitement du bois. Pas de poussières visibles lors de notre passage, c'est peut-être un phénomène plus ancien vu l'âge de l'habitation.
La toiture devant être refaite, nous recommandons d'examiner la charpente et au minimum de la traiter lors des travaux de toiture.
Vérifier les anciennes canalisations d'eaux. Nous conseillons en cas de rénovation de remplacer les anciennes canalisations rouillées par de nouvelles canalisations en PVC.
Petit problème d'humidité au droit des caves mais normale pour une construction de 1965 dont les caves sont semi-enterrées. Les murs contre terres emmagasinent l'humidité qui ressort au niveau du parement intérieur via la dégradation de peinture et du salpêtre.
Un nettoyage complet des murs et une remise en peinture des caves sera déjà suffisant si les caves ne sont pas occupées. Attention surtout à prévoir une bonne ventilation des caves.
La toiture n'est plus tout à fait étanche (v. rubrique toiture)
A terme nous conseillons néanmoins de penser à isoler les murs par l'extérieur afin de correspondre aux normes actuelles en matière d'isolation.
Pas de sous-toiture en-dessous des tuiles qui ne sont pas 100% étanche. L'humidité passe à travers et l'isolation assez ancienne en laine de verre a sûrement déjà perdu beaucoup de son pouvoir calorifique. Nous conseillons une réfection complète du toit afin de fermer correctement l'habitation et le rendre conforme aux exigences actuelles en matière d'isolation. Il faut compter un budget de l'ordre de 300 euros/m2 pour la réalisation d'une nouvelle toiture isolée. Des primes sont disponibles pour ce type de travaux.
A divers endroits, nous avons relevé des pourcentage d'humidité dans le bois de plus de 30% alors qu'en théorie il ne devrait jamais dépassé 18%.
Attention, en cas de rénovation complète de la toiture, il faut penser à ce qu'un jour un isolant pourrait être posé par l'extérieur, nous préconisons de prévoir un débordement permettant au minimum de venir avec une isolation de 14cm + 2cm en parement extérieur. En prévoyant directement ces travaux futurs, cela limitera les interventions au moment d'éventuels travaux de façade.
A refaire en même temps que la toiture.
Présence d'une citerne EP de 3.000 litres.
Les châssis sont bien entretenus même si relativement ancien. Des doubles vitrages ont été posés sur les châssis d'origine.
Porte d'origine plus aux normes en matière d'isolation mais pas de problème particulier.
Placer des détecteurs à chaque étage.
Toutes les finitions sont très anciennes et probablement à refaire au goût du jour.
Le bois du châssis arrière a été endommagé comme gratté par un animal. A minima le châssis doit être poncée. Budget - de 500 euros
Toutes les finitions sont très anciennes et probablement à refaire au goût du jour.
Tous les éleectro-ménagers sont assez ancien et il faudra probablement installer une nouvelle cuisine avant d'emménager dans la maison.
Les canalisations sont assez anciennes. Nous recommandons de poser de nouvelles canalisations au fur et à mesure de l'avancement des travaux.
Tout le mobilier de cuisine est assez ancien et il faudra probablement installer une nouvelle cuisine avant d'emménager dans la maison.
Tous les murs étaient un peu crus lors de notre passage. Le degré d'humidité était un peu élevé du fait qu'il pleuvait et que la maison a été insuffisamment chauffée ces dernières semaines. Il faut veiller à garder une température minimale de 16 degrés en chauffant si nécessaire les pièces de vie. Le taux d'humidité redescendra et pour le reste la maison nous apparait saine.
La maison est fort peu isolée et le WC comprend une fenêtre. Une ventilation n'est pas nécessaire pour le moment mais elle deviendra obligatoire en cas d'isolation de l'enveloppe.
A changer au fur et à mesure.
Sanitaire relativement ancien mais en bon état.
La maison est fort peu isolée et la SDB comprend une fenêtre. Une ventilation n'est pas nécessaire pour le moment mais elle deviendra obligatoire en cas d'isolation de l'enveloppe.
La maison est fort peu isolée et le WC comprend une fenêtre. Une ventilation n'est pas nécessaire pour le moment mais elle deviendra obligatoire en cas d'isolation de l'enveloppe.
Mobilier sanitaire relativement ancien mais en bon état.
Déjà mentionné par ailleurs, la toiture est à refaire et le bois de charpente devra être au minimum traité. Voir si la charpente actuelle pourra supporter le poids d'une nouvelle toiture avec isolation et éventuellement panneaux solaires. Celle-ci devra peut-être partiellement être renforcée.
Toiture pas 100% étanche - voir par ailleurs
`Tous les panneaux sous les isolants sont remplis de traces de moisissures.
Les caves sont actuellement suffisamment ventilée de part le manque d'étanchéité et d'isolation des cloisons et des châssis. De plus elles sont en communication avec la porte de garage qui est également une source régulière de ventilation.
Attention néanmoins en cas de remplacement de ces châssis de prévoir une ventilation suffisante des caves!
Le garage est en connexion directe avec les caves. Les mêmes remarques sont applicables au garage qu'aux caves.
Voir caves
Un vitrage est fêlé sur la fenêtre latérale.
La chaudière actuelle est au mazout et relativement ancienne 1985. Elle est loin de présenter les rendements des chaudières actuels. Nous conseillons de revoir le système de chauffage à relativement court terme en fonction des travaux est de l'isolation qui sera faite à la maison.
Actuellement 2 boilers indépendant sont utilisés pour l'eau chaude sanitaire et aucun n'est raccordé à la chaudière. Nous conseillons de modifier cela au moment du changement de chaudière afin d'optimiser la production d'eau chaude sanitaire.
Présence d'une citerne d'eaux pluviales de 3.000 litres mais pas vraiment utilisée pour réduire les consommations d'eau.
L'ensemble de l'installation électrique est vétuste et doit être entièrement refaite. Voir remarque sur le contrôle électrique.
DATA ROOM
Nous avons mis tous les documents importants dans la date room, n’hésitez pas à télécharger ce dont vous avez besoin !
Nous avons mis tous les documents importants dans la date room, n’hésitez pas à télécharger ce dont vous avez besoin !
Besoin de crédit
Maintenant que vous êtes sûrs d’avoir fait le bon choix, calculez la valeur totale de cette acquisition (valeur du bien et frais annexes) et estimez vos besoins en crédit !
Simulation de crédit
| Prix d'achat | € |
| Rénovation | € |
| Rénovation HTVA | {{ calculeData.renovationHTVA | number:2 }} € |
| TVA | {{ calculeData.tva | number:2 }} € |
| Fonds propres | € |
| Acompte dû (disponible au compromis de vente) | {{ calculeData.prix * 0.1 | number:2 }} € |
| Reste des liquidités (disponible à l'acte) | {{ calculeData.avance | number:2 }} € |
| Crédit pont | {{ calculeData.creditPont | number:2 }} € |
| Prix de vente de votre bien existant | € |
| Solde du crédit existant | € |
| Frais d'acte d'achat | {{ calculeData.droit + calculeData.fraisNotaire | number:2 }} € |
| Droits d'enregistrement | {{ calculeData.droit | number:2 }} € |
|
Abattement
Suis-je éligible à une réduction des droits d’enregistrement ? |
|
| Frais de notaire | {{ calculeData.fraisNotaire | number:2 }} € |
| Autres frais | {{ calculeData.inscription + calculeData.fraisDossier + calculeData.autreFrais | number:2 }} € |
| Frais liés à l'acte hypothécaire | {{ calculeData.inscription | number:2 }} € |
| Frais de dossier et expertise bancaire | {{ calculeData.fraisDossier | number:2 }} € |
| Autres frais | € |
| Montant du crédit | {{ calculeData.montantCredit | number:2 }} € | |
Choix du type de crédit
| Taux | Type | CAP | Mensualité | Mensualité Min | Mensualité Max | |
|---|---|---|---|---|---|---|
| {{ tx.banque }} {{ $index+1 }} | {{ tx.taux | number:2 }}% | {{ tx.type }} | -{{ tx.capNeg }}%/+{{ tx.capPos }}% | {{ tx.mens | number:2 }}€ | {{ tx.min | number:2 }}€ | {{ tx.max | number:2 }}€ |
| Taux | Type | CAP | Mensualité | Mensualité Min | Mensualité Max | |
|---|---|---|---|---|---|---|
| {{ tx.banque }} {{ $index+1 }} | {{ tx.taux | number:2 }}% | {{ tx.type }} | -{{ tx.capNeg }}%/+{{ tx.capPos }}% | {{ tx.mens | number:2 }}€ | {{ tx.min | number:2 }}€ | {{ tx.max | number:2 }}€ |
| Taux | Type | CAP | Mensualité | Mensualité Min | Mensualité Max | |
|---|---|---|---|---|---|---|
| {{ tx.banque }} {{ $index+1 }} | {{ tx.taux | number:2 }}% | {{ tx.type }} | -{{ tx.capNeg }}%/+{{ tx.capPos }}% | {{ tx.mens | number:2 }}€ | {{ tx.min | number:2 }}€ | {{ tx.max | number:2 }}€ |
Rentabilité
Cout total de l’acquisition
| Prix d'achat | {{ calculeData.prix | number:2 }} € |
| Rénovation | + {{ calculeData.prixTransRenovation | number:2 }} € |
| Frais | + {{ calculeData.frais | number:2 }} € |
| Coût total | + {{ calculeData.frais + calculeData.prixTransRenovation + calculeData.prix | number:2 }} € |
| Fonds propres + crédit pont | {{ calculeData.totalFP+calculeData.creditPont | number:2 }} € |
| Montant du crédit | {{ calculeData.montantCredit | number:2 }} € |
| Coût total | + {{ calculeData.creditPont + calculeData.totalFP + calculeData.montantCredit | number:2 }} € |
Rentabilité sur actifs
Durée de détention année(s)
Gain réel {{ calculeData.gainReel | number:0 }} €
Rendement sur actif {{ calculeData.rendementSurActif | number:2 }} %
Revenus
| Revenu locatif annuel Brut | € |
| Charge annuelle {{ calculeData.pourcentageCharge | number:2 }}% | {{ calculeData.chargeLocatifAnnuel | number:2 }} € |
| Précompte immobilier | {{ calculeData.precomteImmo | number:2 }} € |
| Autre charge annuelle | € |
| Revenu locatif annuel net | {{ calculeData.revenuLocatifAnnuelNet | number:2 }} € |
| Total revenu locatif après {{ calculeData.dureeDetention }} année(s) tenant compte d'une inflation de % |
{{ calculeData.totalRevenuLocatif | number:2 }} € |
| Plus-value latente | {{ calculeData.pluvalueLatente | number:2 }} % |
| Plus-value du bien après {{calculeData.dureeDetention}} année(s) | {{ calculeData.pluvalueBien | number:2 }} € |
| Total revenu locatif après {{ calculeData.dureeDetention }} année(s) | {{ calculeData.totalRevenuLocatif | number:2 }} € |
| Gain brut sur le prix de base après {{ calculeData.dureeDetention }} année(s) | +{{ calculeData.gainBrut | number:2 }} € |
Charges
| Durée du crédit | {{ calculeData.duree | number:2 }} ans |
| Taux | {{ calculeData.taux | number:2 }} % |
| Mensualité | {{ calculeData.mensualite | number:2 }} € |
| Total interêts après {{calculeData.dureeDetention}} année(s) | {{ calculeData.totalInteret | number:2 }} € |
| Total frais | {{ calculeData.frais | number:2 }} € |
| Total | {{ calculeData.InteretFrais | number:2 }} € |
Gain réel
Rendement sur actif
Cash flow
| Année | Coût | Revenu locatif | Gain |
|---|---|---|---|
| {{ $index }} | {{ ch.payment | number:2 }} € | {{ ch.revenuLocatif | number:2 }} € | {{ - ch.fondPropre | number:2 }} € |
Av. Louise 433 Louizalaan 1050 Bruxelles - Brussel
Drève Richelle, 96 - 1410 Waterloo