Kom ik in aanmerking voor belastingvermindering ?
Elisabethlaan 2
PRIJS : 588 000 €
Type: Maison | Regio: Flandre | Gemeente: Koningin Elisabethlaan
In het hart van de sublieme stad Brugge, een huis met ongelooflijke architectuur dat kan worden gebruikt als kantoorruimte en/of woonruimte. Het gelijkvloers bestaat uit een kantoorgedeelte, een multifunctionele ruimte, een keuken, een bijkeuken en een toilet. Op de eerste verdieping is er een lichrijke woonkamer en een kantoorgedeelte dat uitkomt op een terras. De bovenste verdieping bestaat uit een nachthal met ingebouwde kasten, 2 slaapkamers en een doucheruimte met toilet en dubbele wastafel. Ondergrondse kelder.
Totale Oppervlakte: 156 M²
Woonoppervlak: 130 m²
Slaapkamers: 2
Doucheruimte 1
Terras: 10.75 M²
Kelder: 1
Kantoors: 2
VIDEO PRESENTATIE
Découvrez le bien en visualisant cette vidéo
VIRTUEEL BEZOEK
Vous voulez en voir plus ? Visitez le bien comme si vous y étiez à travers cette visite virtuelle
OMGEVING
Ce bien vous correspond ? Découvrez maintenant si sa localisation vous convient !
Supermarkt
Apotheek
Restaurant
Bakkerij
Kinderdagverblijf
Park
Scholen
Universiteiten
Verplaatsingen
INTERIEUR PLANNEN
Ondergrond
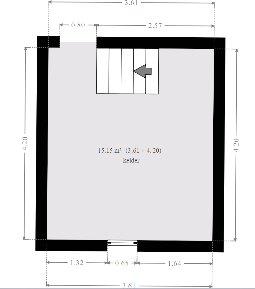
TOTALE OPPERVLAKTE : 15.15 m² | WOONRUIMTE : 15.15 m² | kAMERS : 1
1x Kelder
Kelder
OPPERVLAKTE : 15.16 m²
Gelijkvloers
TOTALE OPPERVLAKTE : 52.14 m² | WOONRUIMTE : 52.14 m² | kAMERS : 7
1x Keuken
1x Woonkamer
1x Hal
1x Stookruimte
1x Hal
1x Kantoor 1
Keuken
OPPERVLAKTE : 9.59 m²
Woonkamer
OPPERVLAKTE : 17.68 m²
Hal
OPPERVLAKTE : 4.85 m²
Stookruimte
OPPERVLAKTE : 3.15 m²
W.C
OPPERVLAKTE : 1.33 m²
Hal
OPPERVLAKTE : 2.73 m²
Kantoor 1
OPPERVLAKTE : 12.86 m²
1e verdieping
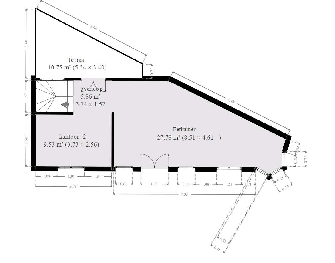
TOTALE OPPERVLAKTE : 53.89 m² | WOONRUIMTE : 43.15 m² | kAMERS : 3
1x Eetkamer
1x Kantoor 2
1x Hal
1x Terras
Eetkamer
OPPERVLAKTE : 27.78 m²
Kantoor 2
OPPERVLAKTE : 9.53 m²
Hal
OPPERVLAKTE : 5.86 m²
Terras
OPPERVLAKTE : 10.75 m²
2e verdieping
TOTALE OPPERVLAKTE : 34.43 m² | WOONRUIMTE : 34.43 m² | kAMERS : 4
1x Nachthal
1x Badkamer
2x SlaapKamer (s)
Nachthal
OPPERVLAKTE : 7.87 m²
Badkamer
OPPERVLAKTE : 8.5 m²
SlaapKamer 2
OPPERVLAKTE : 10.04 m²
SlaapKamer 1
OPPERVLAKTE : 8.04 m²
KADASTRAAL ZOEKEN
Vous souhaitez mieux connaître votre parcelle et connaître la surface dont vous jouirez en achetant ce bien, alors consulter le cadastre est nécessaire !
Oppervlak : 80 m²
Verhaallijn : E859s4
CERTIFICATEN
Informez-vous sur la performance énergétique de ce bien et assurez-vous que ses installations électriques sont bien aux normes !
ENERGIEPRESTATIES
Zeer zuinig
Zeer energieverslindennd
ELEKTRISCH CERTIFICAAT
VERSLAG VAN HET CONFORMITEITSONDERZOEK EN/OF DE INSPECTIE VAN EEN ELEKTRISCHE LAAGSPANNINGSINSTALLATIE
De bestaande installatieConform
Bezoekende
agent
De Kegel N
Datum
12/02/2014
Volgend
controlebezoek
12/02/2039
Audit technique
Door een nauwkeurig budget te verstrekken voor de transformaties en/of reparaties die aan dit eigendom moeten worden uitgevoerd, stelt de expertise van een neutrale en onafhankelijke architect u in staat om de waarde van dit eigendom beter te beoordelen!
ALGEMENE SCORE TOEGEKEND DOOR DE AUDITOR *
Algemene opmerkingen en adviezen van de inspecteur :
De EPC-score D valt voor dit type gebouw nog mee.
Zoals ook het EPC-verslag vermeld zijn de grote punten het dak, de gevels en het buitenschrijnwerk de eerste punten om dit gebouw energetisch op de goede weg te brengen.
Het gegeven ""beschermd monument"" verondersteld wel enkele bijkomende omstandigheden.
- het dak bijkomend isoleren zal op zich geen probleem vormen daar het nu al relatief goed is. De bijkomende isolatie kan langs de binnenkant geplaatst worden wanneer de slaapkamer her ingericht worden.
- het aanpakken van het buitenschrijnwerk zou ik wel als eerste aanpakken. Dit zal wel sowieso deel uitmaken van een aparte studie omdat er advies dient te worden gevraagd aan Monumentenzorg en de stedenbouwkundige dienst van Brugge.
- het isoleren van de gevels is het grootste probleem. Dit zal niet kunnen aan de buitenzijde van de gevel, dus dient de isolatie aan de binnenzijde te worden geplaatst. Let wel: isoleren aan de binnenzijde heeft wel een deel voor- & nadelen.
Het voordeel hier is dat dit ruimte per ruimte kan uitgevoerd worden. Het andere voordeel is dat deze manier van werken de buitenzijde ongewijzigd blijft. Toch zijn er diverse punten die zeer goed dienen te worden in acht genomen. Ter hoogte van de ramen moet de isolatie aansluiten op het raamkader om geen koudebruggen te creëren. het werken met de dubbele ramen zou hier dan ook een goede oplossing kunnen zijn. Ter hoogte van de binnenmuren die aansluiten op de buitenmuur dient de isolatie minstens 1 meter naar binnen worden gebracht om de koude brug te omzeilen. Het grootste probleem is de koudebrug die ontstaat ter hoogte van de vloer en de plafonds. Hier dient ook het isolatievlak 1 meter naar binnen te worden gebracht om de koudebrug te voorkomen. Dit wil ook zeggen dat alle radiatoren en andere technieken die nu op de buitenmuren gemonteerd zijn ook moeten worden aangepast. Bijkomend is het verlies van ruimte binnenin een bijkomend probleem. De dunste oplossing is een isolatie van 10 cm in PUR-platen (U = 0.23 W/m²K) hier dient ook nog de afwerking van de wand in gyproc te worden bijgeteld. Er mag als snel gerekend worden met een verlies van 13 tot 15 cm aan binnenruimte.
Van zodra er iets zal aangepast kan worden zal de EPC-score al snel dalen van D naar C. Wat voor dit gebouw toch al zeer goed zal zijn.
Algemeen advies op het gebied van energieprestaties van gebouwen :
Het betreft hier een zeer charmant gebouw met aangename ruimtes. Sommige energetische aspecten kunnen wel verbeterd worden maar andere zijn nagenoeg onhaalbaar. Bijvoorbeeld het torentje op de hoek kan enkel via de binnenkant bijkomend geïsoleerd worden maar dan zal de ruimte binnen bijna niet meer bruikbaar zijn.
Opmerkingen
De conclusie en het gegeven advies zijn het resultaat van een onafhankelijke inspectie, uitgevoerd door een ervaren architect erkend door ImmoPass.
De budgetramingen in dit rapport worden louter ter informatie gegeven en vormen geen schatting. We raden aan om voor alle of een deel van het uit te voeren werk een bestek op te stellen en de ontvangen offertes te analyseren. De schattingen zijn exclusief belasting.
De inspectie werd op een niet-destructieve manier uitgevoerd, alleen visueel. Dit rapport kan daarom de totale afwezigheid van verborgen technische gebreken niet garanderen.
75 %
Overstromingsgebied, akoestische zone, sectorplan, stedenbouwkundige vergunning ...
100 %
Energiecertificering, conformiteit en elektrisch, olietank, vloer, ...
75 %
Beveiliging, inrichting, buitenconstructies, groenonderhoud, ...
90 %
Gegeneraliseerde vochtigheid, aanwezigheid van asbest, droogrot, termieten ...
88 %
Dak, buitenmuren, kozijnen en deuren, hemelwaterafvoer, ...
93 %
Structurele defecten, plaatselijke vochtigheid, sanitaire voorzieningen, werkende staat ...
93 %
Hallen en trappen, kelders, zolder en zolder, technische lokalen, ...
100 %
Verwarmingssysteem, sanitair warm water, elektriciteit, technisch onderhoud, ...
Het gebouw is gelegen aan de Koningin Elizabethlaan wat een drukke 'ringweg' is in Brugge.
Het EPC werd opgemaakt in Oktober 2021. Het energielabel is D.
Het terras bevindt zich op de eerste verdieping, op het dak van de keuken. het betreft hier een houten terras. Diverse planken blijken niet meer goed ondersteund. Na controle blijkt dat de onderliggende draagstructuur van de terrasbekleding op vele plaatsen verpulverd is. ook het raam dat licht verschaft naar de onderliggende keuken is volledig rot.
De beste oplossing is om het terras volledig opnieuw te plaatsen vooral de draagstructuur dient te worden vervangen. Mogelijks kunnen de terrasplanken gerecupereerd worden.
Tijdens deze werken kan er ook het dak van de keuken gecontroleerd worden en kan er dan ook voldoende geïsoleerd worden zodat dit dak-deel aan de langetermijndoelstelling 2050 kan voldoen.
Op de gelijkvloer is er een klein vochtprobleem in de hoek met de aansluiting van het naburig pand. (de eerste 3 foto's) Mogelijks kan een lekkende afvoer van het aanpalende gebouw een reden zijn. Anders is er niet onmiddellijk een andere aanleiding vast te stellen. Dit dient te worden gecontroleerd.
Ter hoogte van de keuken is er duidelijk vochtinfiltratie ter hoog van het raam in het plafond. Dit werd duidelijk omschreven bij het punt van het terras. Dit is eenvoudig op te lossen door het raam te vervangen samen met de werkzaamheden aan het terras. (foto's 4 tot 6).
De kelder: alle muren zijn vochtig. Dit is echter geen groot probleem, de kelder is voldoende geventileerd en ruikt ook niet. Enkel ter hoogte van het kelderraam zou een cementering wel vernieuwd kunnen worden.
Het dak is moeilijk toegankelijk. Maar wat er kan gezien worden vanuit het dakvenster lijkt er geen probleem met het dak en de dakbedekking.
De ramen op het gelijkvloers en de eerste verdieping zijn nog steeds enkele beglazing. aan de binnenzijde werd een bijkomend raam geplaatst. Dit bijkomende raam is echter ook een enkele beglazing (vermoedelijk 'securit'-glas) wat maar minimaal bijdraagt aan het isolerende effect. Het idee is echter zeer goed. De ramen mogen hoogstwaarschijnlijk niet gewijzigd worden omwille van het feit dat dit een beschermd monument is. Als de ramen die binnen geplaatst zijn zouden vervangen worden door ramen die beter sluiten en ook van dubbel glas kunnen worden voorzien dan zal dit een goede oplossing zijn zowel voor de ongewijzigde look van het gebouw en ook een energetische oplossing. Kostprijs ongeveer 450€ à 550€/m².
Indien het mogelijk is zouden de ramen best vervangen en van dubbel glas worden voorzien. Vraag is of dit zal worden toegestaan door Monumentenzorg.
Er is een branddetectie systeem aanwezig maar dit dient terug in dienst te worden genomen. Momenteel is dit niet aktief.
Ook de brandblussers moeten worden gecontroleerd. Deze zijn al jaren niet meer gecheckt.
Zoals reeds in het vorige punt van het buitenschrijnwerk aangehaald dient er best een specifieke studie te worden gemaakt in samenspraak met Monumentenzorg om na te gaan of het buitenschrijnwerk in de straat gevel kan vervangen worden.
De ramen in de achterzijde van het gebouw werden reeds vervangen en verkeren in goede staat. Voor deze ramen dient te worden gecontroleerd of de u-waarde van het glas voldoet aan de langetermijndoelstelling 2050.
Let wel de problematiek ter hoogte van het raam moet wel aangepakt worden. Dit werd reeds uitvoerig besproken in een vorig item.
Let wel de problematiek ter hoogte van het raam moet wel aangepakt worden. Dit werd reeds uitvoerig besproken in een vorig item.
De omkasting van de sanbloc van het toilet in de badkamer dient opnieuw te worden opgekit zodat terug netjes staat.
De muren in de kelder zijn allen vochtig. er is echter voldoende ventilatie in de kelder zodat er dus geen geurhinder is. Wel dient te worden aangemerkt dat de wand (straatzijde) aan het kelderraam best opnieuw gecementeerd dient te worden.
Op het gelijkvloers is er een technische berging waar de zekeringkast staat. De gaswandketel staat in de berging toegankelijk via een slaapkamer.
DATA ROOM
Nous avons mis tous les documents importants dans la date room, n’hésitez pas à Downloaden ce dont vous avez besoin !
Nous avons mis tous les documents importants dans la date room, n’hésitez pas à télécharger ce dont vous avez besoin !
BEREKEN UW KREDIETBEHOEFTE
Maintenant que vous êtes sûrs d’avoir fait le bon choix, calculez la valeur totale de cette acquisition (valeur du bien et frais annexes) et estimez vos besoins en crédit !
Kredietsimulatie
| Aankoopprijs | € |
| Renovatie | € |
| Renovatie excl. btw | {{ calculeData.renovationHTVA | number:2 }} € |
| BTW | {{ calculeData.tva | number:2 }} € |
| Eigen fondsen | € |
| Te betalen waarborgsom (beschikbaar bij de verkoopovereenkomst) | {{ calculeData.prix * 0.1 | number:2 }} € |
| Resterende liquide middelen (besschikbaar op de verkoop) | {{ calculeData.avance | number:2 }} € |
| Overbruggingskrediet | {{ calculeData.creditPont | number:2 }} € |
| Aankooprijs | € |
| Bestaand tegoed | € |
| Aankooprechten | {{ calculeData.droit + calculeData.fraisNotaire | number:2 }} € |
| Verkooprechten | {{ calculeData.droit | number:2 }} € |
|
Vermindering
Kom ik in aanmerking voor vermindering van het inschrijfgeld? |
|
| Notariskosten | {{ calculeData.fraisNotaire | number:2 }} € |
| Andere kosten | {{ calculeData.inscription + calculeData.fraisDossier + calculeData.autreFrais | number:2 }} € |
| Kosten in verband met de hypotheekakte | {{ calculeData.inscription | number:2 }} € |
| Administratiekosten en bankexpertise | {{ calculeData.fraisDossier | number:2 }} € |
| Andere kosten | € |
| ONTLEEND BEDRAG | {{ calculeData.montantCredit | number:2 }} € | |
Keuze soort krediet
| Tarief | Type | Pet | Maandelijkse betaling | MMaandelijkse betaling Min | Maandelijkse betaling Max | |
|---|---|---|---|---|---|---|
| {{ tx.banque }} | {{ tx.taux | number:2 }}% | {{ tx.type }} | -{{ tx.capNeg }}%/+{{ tx.capPos }}% | {{ tx.mens | number:2 }}€ | {{ tx.min | number:2 }}€ - | {{ tx.max | number:2 }}€ - |
| Tarief | Type | Pet | Maandelijkse betaling | Maandelijkse betaling Min | Maandelijkse betaling Max | |
|---|---|---|---|---|---|---|
| {{ tx.banque }} | {{ tx.taux | number:2 }}% | {{ tx.type }} | -{{ tx.capNeg }}%/+{{ tx.capPos }}% | {{ tx.mens | number:2 }}€ | {{ tx.min | number:2 }}€ - | {{ tx.max | number:2 }}€ - |
| Tarief | Type | Pet | Maandelijkse betaling | Maandelijkse betaling Min | Maandelijkse betaling Max | |
|---|---|---|---|---|---|---|
| {{ tx.banque }} | {{ tx.taux | number:2 }}% | {{ tx.type }} | -{{ tx.capNeg }}%/+{{ tx.capPos }}% | {{ tx.mens | number:2 }}€ | {{ tx.min | number:2 }}€ - | {{ tx.max | number:2 }}€ - |
RENTABILITEIT
Cout total de l’acquisition
| Aankoopprijs | {{ calculeData.prix | number:2 }} € |
| Renovatie | + {{ calculeData.prixTransRenovation | number:2 }} € |
| Kosten | + {{ calculeData.frais | number:2 }} € |
| Totale kostprijs | + {{ calculeData.frais + calculeData.prixTransRenovation + calculeData.prix | number:2 }} € |
| Eigen middelen + overbruggingskrediet | {{ calculeData.totalFP+calculeData.creditPont | number:2 }} € |
| Ontleend bedrag | {{ calculeData.montantCredit | number:2 }} € |
| Totale kostprijs | + {{ calculeData.creditPont + calculeData.totalFP + calculeData.montantCredit | number:2 }} € |
Rendement op activa
Duur van detentie jaar (jaren)
WERKELIJKE WINST {{ calculeData.gainReel | number:0 }} €
RENDEMENT OP ACTIVA {{ calculeData.rendementSurActif | number:2 }} %
Omzet
| Jaarlijkse bruto huurinkomsten | € |
| Jaarlijkse lasten {{ calculeData.pourcentageCharge | number:2 }}% | {{ calculeData.chargeLocatifAnnuel | number:2 }} € |
| Onroerend goed belasting | {{ calculeData.precomteImmo | number:2 }} € |
| Andere jaarlijkse lasten | € |
| Jaarlijkse netto huurinkomsten | {{ calculeData.revenuLocatifAnnuelNet | number:2 }} € |
| Totale huurinkomsten na {{ calculeData.dureeDetention }} jaar rekening houdend met een inflatie van % | {{ calculeData.totalRevenuLocatif | number:2 }} € |
| Niet-gerealiseerde meerwaarde | {{ calculeData.pluvalueLatente | number:2 }} % |
| Meerwaarde van het pand na {{calculeData.dureeDetention}} jaar | {{ calculeData.pluvalueBien | number:2 }} € |
| Totale huurinkomsten na {{ calculeData.dureeDetention }} jaar | {{ calculeData.totalRevenuLocatif | number:2 }} € |
| Bruto winst op de basisprijs na {{ calculeData.dureeDetention }} jaar | +{{ calculeData.gainBrut | number:2 }} € |
Uitgaven
| Looptijd | {{ calculeData.duree | number:2 }} jaar |
| Tarief | {{ calculeData.taux | number:2 }} % |
| Maandlast | {{ calculeData.mensualite | number:2 }} € |
| Totale intrestlast na {{calculeData.dureeDetention}} jaar | {{ calculeData.totalInteret | number:2 }} € |
| Totale kosten | {{ calculeData.frais | number:2 }} € |
| Totaal | {{ calculeData.InteretFrais | number:2 }} € |
Winstrol
Rendement op activa
Cash flow
| Jaar | Kosten | Huurinkomsten | Verdienen |
|---|---|---|---|
| {{ $index }} | {{ ch.payment | number:2 }} € | {{ ch.revenuLocatif | number:2 }} € | {{ - ch.fondPropre | number:2 }} € |
BRUSSEL AGENTSCHAP Louizalaan 433 - 1050 Brussel
LA HULPE AGENTSCHAP Brusselsesteenweg 21 - 1310 Terhulp