Suis-je éligible à une réduction des droits d’enregistrement ?
Drève des pins 6
PRIX : 1 195 000 €
Type: Maison 4 façades | Région: Wallonie | Commune: Braine-l'Alleud
Magnifique villa de +/- 419 m². Composée comme suit : au rez-de-chaussée : hall d'entrée desservant un bureau et un spacieux et lumineux séjour, cuisine full équipée, une pièce donnant accès au garage et à une première chambre.
Au 1er étage : vaste hall de nuit desservant un bureau et 4 chambres possédant chacune sa propre salle de bains.
Idéalement située dans le quartier très recherché des Sept Fontaines, proche des grands axes liant Braine l'Alleud et Rhode-Saint-Genèse.
Surface habitable: 419 m²
Chambres: 5
Salles de bain: 4
Terrasse: 1
Garages: 2
Cave: 1
Parking: 1
Jardin: Oui
Vidéo
Découvrez le bien en visualisant cette vidéo
VISITE VIRTUELLE
Vous voulez en voir plus ? Visitez le bien comme si vous y étiez à travers cette visite virtuelle
Localisation
Ce bien vous correspond ? Découvrez maintenant si sa localisation vous convient !
Commerces
Pharmacies
Restaurants
Boulangeries
Crèches
Parcs
Écoles
Universités
Déplacements
Plans intérieurs
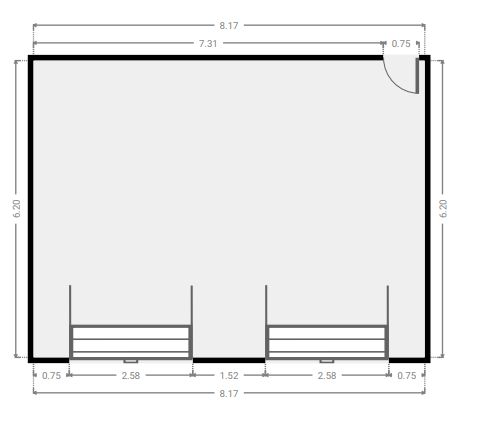
Sous-sol
SURFACE TOTALE : 62.14 m² | SURFACE HABITABLE : 62.14 m² | PIÈCE(S) : 2
1x Chaufferie
2x Caves
1x Escalier
Chaufferie
SURFACE : 20.73 m²
Cave A
SURFACE : 16.4 m²
Cave B
SURFACE : 20.98 m²
Escalier
SURFACE : 2.21 m²
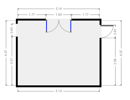
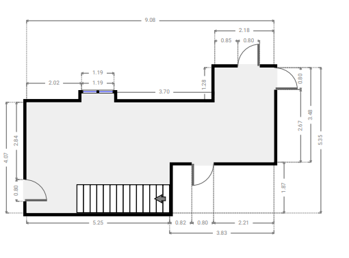
Rez-de-chaussée
SURFACE TOTALE : 259.36 m² | SURFACE HABITABLE : 208.72 m² | PIÈCE(S) : 7
1x Garage
1x Chambre
2x Couloirs
1x Salle de jeu
1x Cuisine
1x Salle à manger
2x Séjours
1x Bureau
1x Hall
Garage
SURFACE : 50.64 m²
Chambre
SURFACE : 20.91 m²
Couloir A
SURFACE : 4.06 m²
Salle de jeu
SURFACE : 16.63 m²
Cuisine
SURFACE : 20.93 m²
Salle à manger
SURFACE : 31.84 m²
Séjour A
SURFACE : 30 m²
Bureau
SURFACE : 23.93 m²
Hall
SURFACE : 22.64 m²
Couloir B
SURFACE : 3.58 m²
Séjour B
SURFACE : 32.6 m²
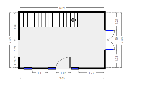
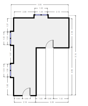
1er étage
SURFACE TOTALE : 159.62 m² | SURFACE HABITABLE : 159.62 m² | PIÈCE(S) : 5
4x Chambres
4x Salle de bains
1x Bureau
1x Couloir
1x Placard
Chambre A
SURFACE : 23.84 m²
S.D.B A
SURFACE : 8.64 m²
Bureau
SURFACE : 13.69 m²
Couloir
SURFACE : 32.98 m²
Chambre B
SURFACE : 14.67 m²
S.D.B B
SURFACE : 4.05 m²
S.D.B C
SURFACE : 4.26 m²
Chambre C
SURFACE : 14.88 m²
Placard
SURFACE : 8.95 m²
Chambre D
SURFACE : 28.23 m²
S.D.B D
SURFACE : 4.41 m²
RECHERCHE CADASTRALE
Vous souhaitez mieux connaître votre parcelle et connaître la surface dont vous jouirez en achetant ce bien, alors consulter le cadastre est nécessaire !
Surface : 4677 m²
Parcelle : K15r4
Certificats
Informez-vous sur la performance énergétique de ce bien et assurez-vous que ses installations électriques sont bien aux normes !
PERFORMANCE ÉNERGÉTIQUE
Économe
Très énergivore
CERTIFICAT ÉLECTRIQUE
PROCES VERBAL D’EXAMEN DE CONFORMITE ET/OU DE VISITE DE CONTROLE D’UNE INSTALLATION ELECTRIQUE BASSE TENSION
La nouvelle installationNon conforme
Agent
visiteur
Mauricio Teixeira Pereira
Date
de certification
02/09/2021
Visite de contrôle
à effectuer avant le
18 mois après la signature de l'acte
Audit technique
En prévoyant un budget précis des transformations et/ou réparations à opérer sur ce bien, l'expertise réalisée par un architecte neutre et indépendant vous permet de mieux évaluer la valeur de ce bien !
Score général attribué par l’auditeur *
Conseils généraux en termes de performances énergétiques du bâtiment :
Le grenier semble isolé au niveau des versants de toiture et du plafond des espaces nuit, mais celle-ci semble insuffisante et/ou lacunaire (+/-10cm). Une couche 20cm de laine minérale pourrait être ajoutée afin d'arriver aux performances énergétiques actuelles.
Les murs et la dalle de sol ne sont probablement pas isolés ou très peu. Il y a toujours possibilité d'isoler les murs par l'extérieur mais bien sur sans oublier le coût (+/-180€/m² pour un crépi isolé) et l'aspect si le parement est fait en crépi ou en briques (voir avec le style de la maison et les possibilités urbanistiques).
Et si l'isolation est renforcée, il y aura lieu d’améliorer la ventilation afin d'éviter l'effet thermos de la maison (risque d'apparition de moisissures si trop de condensation).
Le système de chauffage central est utilisable et présente vraisemblablement un niveau de performance satisfaisant actuellement.
Avis général et conseils de l'inspecteur :
Bien située, proche du golf de Braine l'Alleud et sur la frontière linguistique, implantée dans un quartier calme et résidentiel. L'habitation est dans un bon état général et elle a été bien entretenue. Elle nécessite tout de même une légère rénovation qui permettra de lui apporter un confort et des équipements contemporains mais celle-ci est saine au niveau structurel et est habitable dans l'état.
Au niveau technique général, une révision sera nécessaire afin de rendre l'habitation normée.
DISCLAIMER
La conclusion et les conseils donnés sont le résultat d’une inspection indépendante, réalisée par un architecte expérimenté et agréé par ImmoPass.
Les éventuelles estimations budgétaires contenues dans ce rapport sont données à titre indicatif et ne constituent pas un devis. Nous recommandons de réaliser un Cahier des Charges sur tout ou partie des travaux à entreprendre et une analyse des devis reçus. Les estimations sont exprimées hors taxes.
L’inspection a été réalisée de manière non-destructive, de manière visuelle uniquement. Ce rapport ne peut donc garantir l’absence totale de vices techniques cachés.
100 %
Zone inondable, zone acoustique, plan de secteurs, permis d’urbanisme ...
67 %
Certification énergétique, conformité électrique, cuve à mazout, sol, ...
93 %
Sécurité, aménagements, structures extérieures, entretien végétation, ...
90 %
Humidité généralisée, présence d’amiante, mérule, termites ...
95 %
Toiture, murs extérieurs, châssis et portes, évacuation eau de pluie, ...
88 %
Défauts structurels, humidité localisée, salubrité, état de fonctionnement..
93 %
Halls et escaliers, caves, combles et grenier, locaux techniques, ...
88 %
Système de chauffage, eau chaude sanitaire, électricité, entretiens techniques, ...
Dans l'ensemble, les allées sont dans un bon état, un nettoyage est à prévoir afin de leur rendre un aspect optimal.
Dans l'ensemble le jardin est bien entretenu, celui-ci a par contre souffert de la canicule et devra être suivi afin de lui rendre son aspect d'origine.
Voir ci-dessus.
Il n'y a pas d'humidité généralisée, seuls les bas de mur de la cave sont humides en partie. Voir ci-dessous.
Les menuiseries sont en bois et possèdent généralement un double vitrage. Les joints de vitrage sont, dans l'ensemble en bon état et ont une étanchéité correcte. Les châssis sont malgré tout datés et ne sont plus aux normes actuelles, nous avons d’ailleurs remarqué quelque thermopanes rendues inefficaces. Un remplacement sera à prévoir à moyen terme.
Voir ci-dessus.
Un système de ventilation existe dans l'habitation (type C) et permet une circulation de l'air. Ce système est daté et nécessiterait une vérification/nettoyage afin d'optimiser son utilisation.
Malheureusement, la ventilation n’est pas présente dans les chambres.
La mise en place de ce système de ventilation en chambre sera d'office nécessaire si le propriétaire procède au remplacement des châssis dans le futur; il aura l'obligation d'intégrer un système de ventilation (amenée d'air par les pièces sèches) aux châssis des chambres ou de modifier le système existant par un système de ventilation mécanique à double flux.
Nous n'avons relevé la présence de détecteurs que dans certaines pièces. Nous ne pouvons assurer leur fonctionnement.
Ce point constitue un risque dans la mesure où il est lié au risque d'incendie et de survie des habitant dans le bâtiment.
Estimation financière d'ajout de détecteurs nécessaires : +/- 150€ htva.
Voir ci-dessus.
Voir ci-dessus.
Les meubles portent des traces d'usure au niveau des plaintes et des bas de porte. Un léger entretien permettra de remettre à neuf l'aspect des meubles de la cuisine.
Voir ci-dessus.
Nous avons également remarqué que certains châssis sont difficiles à ouvrir, la chaleur actuelle peut être en cause, à surveiller.
L'habitation possède un système de ventilation en état de marche, nous ne pouvons par contre pas assurer que son fonctionnement est optimal et encore aux normes. Nous remarquons une quantité importante de poussière au niveau des orifices de ventilation, un entretien/nettoyage est à prévoir dans un premier temps.
Voir ci-dessus.
Voir ci-dessus.
Dans l'ensemble les sanitaires sont en état correct, nous remarquons uniquement de légères traces d'usure normales aux vues de leur utilisation.
Voir ci-dessus.
Les traces d'humidité relevées au pied des murs de la cave traduisent une remontée capillaire ou traversante de l'humidité du sol. Ce phénomène est compréhensible compte tenu de la technique de construction du bâtiment qui n'intégrait pas de membrane anticapillaire ou de drain le long des façades.
Nous avons, sur les parois en contact avec la terre, des taux d'humidité importants.
Nous pensons qu'il serait judicieux de freiner le phénomène par l'une ou l'autre technique existante.
1. Appliquer un enduit d’étanchéité ; entre 35 €/m2 et 45 €/m2.
2. Assécher les murs et les injecter de résine ; entre 65 et 110 €/mètres linéaire
3. Poser une membrane étanche à l’extérieur ; entre 150 et 300 €/mètre linéaire.
Selon la méthode choisie, une étude plus précise devra être réalisée par l'entreprise spécialisée avant la réalisation.
Nous avons remarqué également la présence d'un puisard (d'origine dans l'habitation selon le permis). Son entretien est à réaliser afin d'assurer son fonctionnement.
Une ventilation mécanique à été installée au niveau de la cave.
Dans l'ensemble le système à été entretenu par le propriétaire et est fonctionnel.
L'adoucisseur d'eau est fonctionnel.
DATA ROOM
Nous avons mis tous les documents importants dans la date room, n’hésitez pas à télécharger ce dont vous avez besoin !
Nous avons mis tous les documents importants dans la date room, n’hésitez pas à télécharger ce dont vous avez besoin !
Besoin de crédit
Maintenant que vous êtes sûrs d’avoir fait le bon choix, calculez la valeur totale de cette acquisition (valeur du bien et frais annexes) et estimez vos besoins en crédit !
Simulation de crédit
| Prix d'achat | € |
| Rénovation | € |
| Rénovation HTVA | {{ calculeData.renovationHTVA | number:2 }} € |
| TVA | {{ calculeData.tva | number:2 }} € |
| Fonds propres | € |
| Acompte dû (disponible au compromis de vente) | {{ calculeData.prix * 0.1 | number:2 }} € |
| Reste des liquidités (disponible à l'acte) | {{ calculeData.avance | number:2 }} € |
| Crédit pont | {{ calculeData.creditPont | number:2 }} € |
| Prix de vente de votre bien existant | € |
| Solde du crédit existant | € |
| Frais d'acte d'achat | {{ calculeData.droit + calculeData.fraisNotaire | number:2 }} € |
| Droits d'enregistrement | {{ calculeData.droit | number:2 }} € |
|
Abattement
Suis-je éligible à une réduction des droits d’enregistrement ? |
|
| Frais de notaire | {{ calculeData.fraisNotaire | number:2 }} € |
| Autres frais | {{ calculeData.inscription + calculeData.fraisDossier + calculeData.autreFrais | number:2 }} € |
| Frais liés à l'acte hypothécaire | {{ calculeData.inscription | number:2 }} € |
| Frais de dossier et expertise bancaire | {{ calculeData.fraisDossier | number:2 }} € |
| Autres frais | € |
| Montant du crédit | {{ calculeData.montantCredit | number:2 }} € | |
Choix du type de crédit
| Taux | Type | CAP | Mensualité | Mensualité Min | Mensualité Max | |
|---|---|---|---|---|---|---|
| {{ tx.banque }} | {{ tx.taux | number:2 }}% | {{ tx.type }} | -{{ tx.capNeg }}%/+{{ tx.capPos }}% | {{ tx.mens | number:2 }}€ | {{ tx.min | number:2 }}€ | {{ tx.max | number:2 }}€ |
| Taux | Type | CAP | Mensualité | Mensualité Min | Mensualité Max | |
|---|---|---|---|---|---|---|
| {{ tx.banque }} | {{ tx.taux | number:2 }}% | {{ tx.type }} | -{{ tx.capNeg }}%/+{{ tx.capPos }}% | {{ tx.mens | number:2 }}€ | {{ tx.min | number:2 }}€ | {{ tx.max | number:2 }}€ |
| Taux | Type | CAP | Mensualité | Mensualité Min | Mensualité Max | |
|---|---|---|---|---|---|---|
| {{ tx.banque }} | {{ tx.taux | number:2 }}% | {{ tx.type }} | -{{ tx.capNeg }}%/+{{ tx.capPos }}% | {{ tx.mens | number:2 }}€ | {{ tx.min | number:2 }}€ | {{ tx.max | number:2 }}€ |
Rentabilité
Cout total de l’acquisition
| Prix d'achat | {{ calculeData.prix | number:2 }} € |
| Rénovation | + {{ calculeData.prixTransRenovation | number:2 }} € |
| Frais | + {{ calculeData.frais | number:2 }} € |
| Coût total | + {{ calculeData.frais + calculeData.prixTransRenovation + calculeData.prix | number:2 }} € |
| Fonds propres + crédit pont | {{ calculeData.totalFP+calculeData.creditPont | number:2 }} € |
| Montant du crédit | {{ calculeData.montantCredit | number:2 }} € |
| Coût total | + {{ calculeData.creditPont + calculeData.totalFP + calculeData.montantCredit | number:2 }} € |
Rentabilité sur actifs
Durée de détention année(s)
Gain réel {{ calculeData.gainReel | number:0 }} €
Rendement sur actif {{ calculeData.rendementSurActif | number:2 }} %
Revenus
| Revenu locatif annuel Brut | € |
| Charge annuelle {{ calculeData.pourcentageCharge | number:2 }}% | {{ calculeData.chargeLocatifAnnuel | number:2 }} € |
| Précompte immobilier | {{ calculeData.precomteImmo | number:2 }} € |
| Autre charge annuelle | € |
| Revenu locatif annuel net | {{ calculeData.revenuLocatifAnnuelNet | number:2 }} € |
| Total revenu locatif après {{ calculeData.dureeDetention }} année(s) tenant compte d'une inflation de % |
{{ calculeData.totalRevenuLocatif | number:2 }} € |
| Plus-value latente | {{ calculeData.pluvalueLatente | number:2 }} % |
| Plus-value du bien après {{calculeData.dureeDetention}} année(s) | {{ calculeData.pluvalueBien | number:2 }} € |
| Total revenu locatif après {{ calculeData.dureeDetention }} année(s) | {{ calculeData.totalRevenuLocatif | number:2 }} € |
| Gain brut sur le prix de base après {{ calculeData.dureeDetention }} année(s) | +{{ calculeData.gainBrut | number:2 }} € |
Charges
| Durée du crédit | {{ calculeData.duree | number:2 }} ans |
| Taux | {{ calculeData.taux | number:2 }} % |
| Mensualité | {{ calculeData.mensualite | number:2 }} € |
| Total interêts après {{calculeData.dureeDetention}} année(s) | {{ calculeData.totalInteret | number:2 }} € |
| Total frais | {{ calculeData.frais | number:2 }} € |
| Total | {{ calculeData.InteretFrais | number:2 }} € |
Gain réel
Rendement sur actif
Cash flow
| Année | Coût | Revenu locatif | Gain |
|---|---|---|---|
| {{ $index }} | {{ ch.payment | number:2 }} € | {{ ch.revenuLocatif | number:2 }} € | {{ - ch.fondPropre | number:2 }} € |
Av. Louise 433 Louizalaan 1050 Bruxelles - Brussel
Chaussée de Bruxelles 21 1310 La Hulpe
Drève Richelle, 96 - 1410 Waterloo