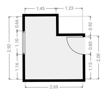
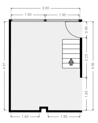
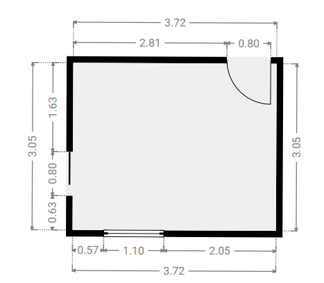
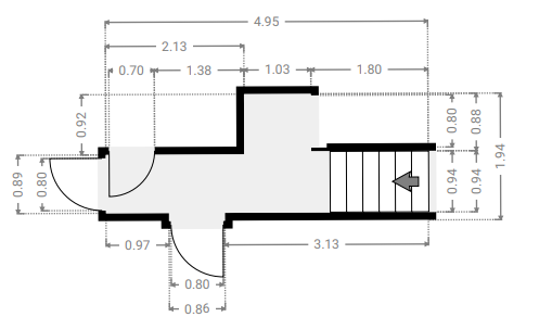
Surface : 253 m²

Parcelle : C6a2

 

 

PERFORMANCE ÉNERGÉTIQUE

ÉconomeTrès énergivore

  A+
A ≤ 0
  A
0 < A ≤ 100
  B
100 < B ≤ 200
  C
200 < C ≤ 300
  D
300 < D ≤ 400
  E
400 < E ≤ 500
  F
F > 500
100 kWh/m².An

 

Consommation d’énergie primaire annuelle totale
23.515 kWh/An
Consommation d’énergie primaire annuelle par m²
100 kWh/m².An

 

CERTIFICAT ÉLECTRIQUE

PROCES VERBAL D’EXAMEN DE CONFORMITE ET/OU DE VISITE DE CONTROLE D’UNE INSTALLATION ELECTRIQUE BASSE TENSION

La nouvelle installationConforme


Agent
visiteur

83- jezoer

Date
de certification

19/08/2011

Visite de contrôle
à effectuer avant le

19/08/2036

FR NL