Suis-je éligible à une réduction des droits d’enregistrement ?
Court Village 7
PRIX : 370 000 €
Type: Appartement | Région: Wallonie | Commune: Court Saint Etienne
Idéalement situé, dans le domaine Court Village, à proximité de la gare et des commerces, By the Way vous présente ce lumineux appartement 2 chambres. Il se situe au 3e étage d’un récent immeuble (de 3 étages) avec ascenseur. La grande baie vitrée dans le séjour apporte une belle luminosité et amène à une terrasse (orientée Ouest) avec vue dégagée sur les jardins (ensoleillement dès le début de l’après-midi jusqu’au soir et vue sur de superbes couchers de soleil). L’appartement comprend un hall d’entrée, un beau séjour avec cuisine ouverte, un WC, une salle de douche, une buanderie et 2 belles chambres (donnant sur une rue calme). Le hall d’entrée est pourvu d’un grand placard de rangement/vestiaire et la grande chambre comprend un spacieux placard encastré (avec emplacement pour une télévision). Localisation : domaine privé, agréable à vivre. Magasins & restaurants à quelques pas. Gare et transports en commun à moins d’1km et nombreux axes routiers à proximité. Court-St-Etienne est une commune dynamique en plein essor, proche de LLN et de Wavre. Cave (de 6m2 avec mezzanine) comprise dans le prix. Parking intérieur (bien situé) en SUPPLEMENT pour 20.000€. Charges communes de la copropriété (moyenne) = 140€/mois. Éléments techniques : Châssis PVC double vitrage / Électricité conforme / Excellent PEB : A (59).é
Surface Totale: 92 M²
Surface habitable: 75 m²
Chambres: 2
Salle de douche: 1
Terrasse: ± 14m2 orientée ouest
Cave: 1
Parking intérieur: 1
Vidéo
Découvrez le bien en visualisant cette vidéo
VISITE VIRTUELLE
Vous voulez en voir plus ? Visitez le bien comme si vous y étiez à travers cette visite virtuelle
Localisation
Ce bien vous correspond ? Découvrez maintenant si sa localisation vous convient !
Commerces
Pharmacies
Restaurants
Boulangeries
Crèches
Parcs
Écoles
Universités
Déplacements
Plans intérieurs
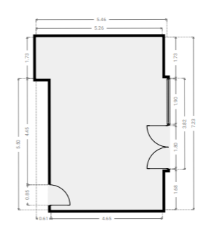
3e étage
SURFACE TOTALE : 74.78 m² | SURFACE HABITABLE : 88.2 m² | PIÈCE(S) : 7
1x Séjour / Cuisine
1x Couloir
1x S.D.D
1x Buanderie
2x Chambre(s)
Séjour / Cuisine
SURFACE : 35.42 m²
Couloir
SURFACE : 7.75 m²
S.D.D
SURFACE : 4.63 m²
Toilettes
SURFACE : 1.23 m²
Buanderie
SURFACE : 3.09 m²
Chambre 2
SURFACE : 10.62 m²
Chambre 1
SURFACE : 12.07 m²
RECHERCHE CADASTRALE
Vous souhaitez mieux connaître votre parcelle et connaître la surface dont vous jouirez en achetant ce bien, alors consulter le cadastre est nécessaire !
Surface : 2747.15 m²
Parcelle : A664a2
Certificats
Informez-vous sur la performance énergétique de ce bien et assurez-vous que ses installations électriques sont bien aux normes !
PERFORMANCE ÉNERGÉTIQUE
Économe
Très énergivore
CERTIFICAT ÉLECTRIQUE
PROCES VERBAL D’EXAMEN DE CONFORMITE ET/OU DE VISITE DE CONTROLE D’UNE INSTALLATION ELECTRIQUE BASSE TENSION
La nouvelle installationConforme
Agent
visiteur
DEHAES VINCENT
Date
de certification
06/04/2017
Visite de contrôle
à effectuer avant le
06/04/2042
SYNTHÈSE DES CHARGES
Des dépenses seront nécessairement engagées pour l’administration de la copropriété, son entretien, l’installation d’équipements et la maintenance de ces derniers. Evaluez dès à présent le montant de vos charges mensuelles !
Assemblées générales
Extrait des derniers procès-Verbaux des assemblées générales
Charges et répartition
1- Charges
Ce tableau des charges comprend : Communs généraux – Chauffage eyt eau – Administration - Assurances et frais privatif
| Année 2020/2021 |
| Total: 1774 € |
| Année 2021/2022 |
| Total: 1043 € |
2- Répartition des charges - APC PANORAMA - 2020/2021-2021/2022
DATA ROOM
Nous avons mis tous les documents importants dans la date room, n’hésitez pas à télécharger ce dont vous avez besoin !
Nous avons mis tous les documents importants dans la date room, n’hésitez pas à télécharger ce dont vous avez besoin !
Besoin de crédit
Maintenant que vous êtes sûrs d’avoir fait le bon choix, calculez la valeur totale de cette acquisition (valeur du bien et frais annexes) et estimez vos besoins en crédit !
Simulation de crédit
| Prix d'achat | € |
| Rénovation | € |
| Rénovation HTVA | {{ calculeData.renovationHTVA | number:2 }} € |
| TVA | {{ calculeData.tva | number:2 }} € |
| Fonds propres | € |
| Acompte dû (disponible au compromis de vente) | {{ calculeData.prix * 0.1 | number:2 }} € |
| Reste des liquidités (disponible à l'acte) | {{ calculeData.avance | number:2 }} € |
| Crédit pont | {{ calculeData.creditPont | number:2 }} € |
| Prix de vente de votre bien existant | € |
| Solde du crédit existant | € |
| Frais d'acte d'achat | {{ calculeData.droit + calculeData.fraisNotaire | number:2 }} € |
| Droits d'enregistrement | {{ calculeData.droit | number:2 }} € |
|
Abattement
Suis-je éligible à une réduction des droits d’enregistrement ? |
|
| Frais de notaire | {{ calculeData.fraisNotaire | number:2 }} € |
| Autres frais | {{ calculeData.inscription + calculeData.fraisDossier + calculeData.autreFrais | number:2 }} € |
| Frais liés à l'acte hypothécaire | {{ calculeData.inscription | number:2 }} € |
| Frais de dossier et expertise bancaire | {{ calculeData.fraisDossier | number:2 }} € |
| Autres frais | € |
| Montant du crédit | {{ calculeData.montantCredit | number:2 }} € | |
La présente simulation se base sur un taux d’intérêt du 20/02/2023. Ce calcul est indicatif et sujet à changement.
Choix du type de crédit
| Taux | Type | CAP | Mensualité | Mensualité Min | Mensualité Max | |
|---|---|---|---|---|---|---|
| {{ tx.banque }} {{ $index+1 }} | {{ tx.taux | number:2 }}% | {{ tx.type }} | -{{ tx.capNeg }}%/+{{ tx.capPos }}% | {{ tx.mens | number:2 }}€ | {{ tx.min | number:2 }}€ | {{ tx.max | number:2 }}€ |
| Taux | Type | CAP | Mensualité | Mensualité Min | Mensualité Max | |
|---|---|---|---|---|---|---|
| {{ tx.banque }} {{ $index+1 }} | {{ tx.taux | number:2 }}% | {{ tx.type }} | -{{ tx.capNeg }}%/+{{ tx.capPos }}% | {{ tx.mens | number:2 }}€ | {{ tx.min | number:2 }}€ | {{ tx.max | number:2 }}€ |
| Taux | Type | CAP | Mensualité | Mensualité Min | Mensualité Max | |
|---|---|---|---|---|---|---|
| {{ tx.banque }} {{ $index+1 }} | {{ tx.taux | number:2 }}% | {{ tx.type }} | -{{ tx.capNeg }}%/+{{ tx.capPos }}% | {{ tx.mens | number:2 }}€ | {{ tx.min | number:2 }}€ | {{ tx.max | number:2 }}€ |
Av. Louise 433 Louizalaan 1050 Bruxelles - Brussel
Drève Richelle, 96 - 1410 Waterloo