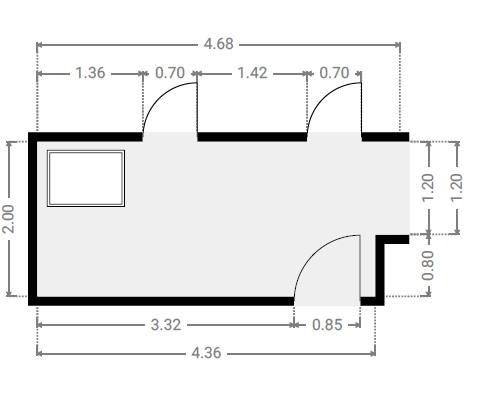
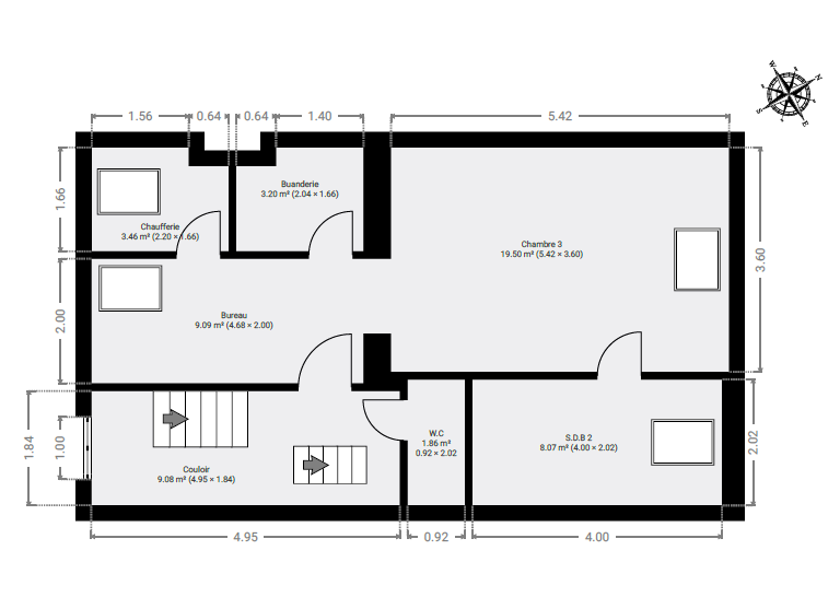
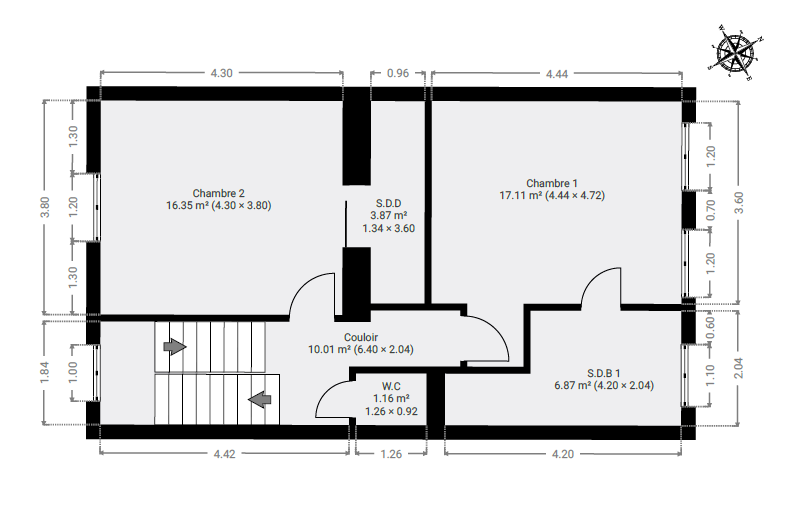
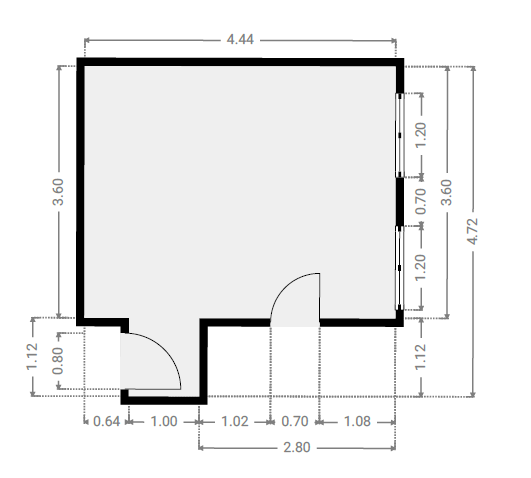
Surface : 114 m²

Parcelle : B411e

 

 

PERFORMANCE ÉNERGÉTIQUE

Économe

A ≤ 45
B 46 - 95
C 96 - 150
D 151 - 210
D +
E 211 - 275
F 276 - 345
G > 345

Très énergivore

 

Consommation d’énergie primaire annuelle totale
30.495 kWh/An
Consommation d’énergie primaire annuelle par m²
160 kWh/m².An

 

CERTIFICAT ÉLECTRIQUE

PROCES VERBAL D’EXAMEN DE CONFORMITE ET/OU DE VISITE DE CONTROLE D’UNE INSTALLATION ELECTRIQUE BASSE TENSION

La nouvelle installation Conforme


Agent
visiteur

Mohamed TAKADDOUMI

Date
de certification

11/01/2023

Visite de contrôle
à effectuer avant le

11/01/2048