Suis-je éligible à une réduction des droits d’enregistrement ?
Charles-Quint 120
PRIX : 1 050 000 €
Type: Maison 2F | Région: Bruxelles | Commune: Bruxelles
Grand maison de maitre du bébut 1900 réaménagée en co-living avec 10 chambres, 4 salles d'eau, cuisine, living et espaces communs, terrasse et jardin à l'arrière,En bon état général, rénovée en 2019
Surface habitable: 300 m²
Chambres: 10
Salles de douche: 4
Terrasse: Oui
Caves: 2
Vidéo
Découvrez le bien en visualisant cette vidéo
VISITE VIRTUELLE
Vous voulez en voir plus ? Visitez le bien comme si vous y étiez à travers cette visite virtuelle
Localisation
Ce bien vous correspond ? Découvrez maintenant si sa localisation vous convient !
Commerces
Pharmacies
Restaurants
Boulangeries
Crèches
Parcs
Écoles
Universités
Déplacements
Plans intérieurs
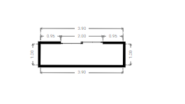
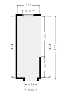
Sous-sol
SURFACE TOTALE : 60.05 m² | SURFACE HABITABLE : 60.05 m² | PIÈCES : 3
2x Chambres
1x Chaufferie
1x Cave
1x S.D.D.
Chambre A
SURFACE : 15.77 m²
Chaufferie
SURFACE : 1.14 m²
Chambre B
SURFACE : 21.11 m²
Cave
SURFACE : 5.8 m²
S.D.D.
SURFACE : 6.19 m²
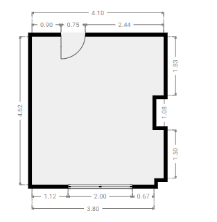
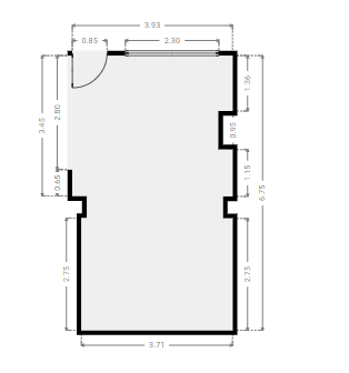
Rez-de-chaussée
SURFACE TOTALE : 69.99 m² | SURFACE HABITABLE : 69.99 m² | PIÈCES : 3
1x Chambre
1x Séjour
1x S.D.D.
1x Entrée
1x Cuisine
Chambre
SURFACE : 18.49 m²
Séjour
SURFACE : 25.28 m²
S.D.D.
SURFACE : 2.89 m²
Entrée
SURFACE : 4.49 m²
Cuisine
SURFACE : 6.57 m²
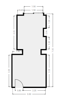
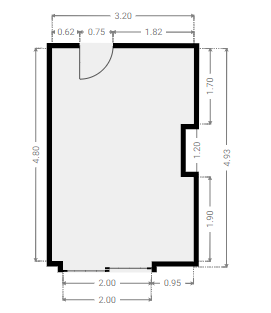
1er étage
SURFACE TOTALE : 70.36 m² | SURFACE HABITABLE : 70.36 m² | PIÈCES : 4
4x Chambres
1x S.D.D.
1x Balcon
Chambre A
SURFACE : 15.26 m²
Chambre B
SURFACE : 19.77 m²
S.D.D.
SURFACE : 2.61 m²
Chambre C
SURFACE : 9.42 m²
Chambre D
SURFACE : 10.98 m²
Balcon
SURFACE : 3.88 m²
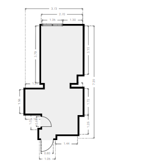
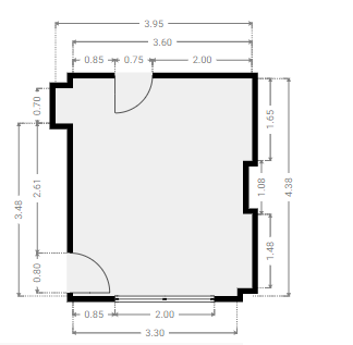
2e étage
SURFACE TOTALE : 51.15 m² | SURFACE HABITABLE : 51.15 m² | PIÈCES : 3
3x Chambres
1x S.D.D.
Chambre A
SURFACE : 14.97 m²
S.D.D.
SURFACE : 2.21 m²
Chambre B
SURFACE : 8.59 m²
Chambre C
SURFACE : 17.4 m²
RECHERCHE CADASTRALE
Vous souhaitez mieux connaître votre parcelle et connaître la surface dont vous jouirez en achetant ce bien, alors consulter le cadastre est nécessaire !
Surface : 209.71 m²
Parcelle : F48W
Certificats
Informez-vous sur la performance énergétique de ce bien et assurez-vous que ses installations électriques sont bien aux normes !
PERFORMANCE ÉNERGÉTIQUE
Économe
Très énergivore
CERTIFICATEUR ÉLECTRIQUE
PROCES VERBAL D’EXAMEN DE CONFORMITE ET/OU DE VISITE DE CONTROLE D’UNE INSTALLATION ELECTRIQUE BASSE TENSION
La nouvelle installation Conforme
Étant donné que des travaux de rénovation ont été effectués dans le bâtiment entre la date du certificat électrique (conforme en date du 10/11/2011) et ce jour, le vendeur s'engage à fournir un certificat de conformité électrique mis à jour et conforme et ce au plus tard pour la date de la signature de l'acte authentique.
Audit technique
En prévoyant un budget précis des transformations et/ou réparations à opérer sur ce bien, l'expertise réalisée par un architecte neutre et indépendant vous permet de mieux évaluer la valeur de ce bien !
Score général attribué par l’auditeur *
Conseils généraux en termes de performances énergétiques du bâtiment :
Nous n'avons pas pu visiter les combles mais nous suspectons ceux-ci insuffisamment isolé au niveau des versants de toiture. Une couche de laine minérale pourrait être ajoutée afin d'arriver aux performances énergétiques actuelles.
Les murs et la dalle de sol ne sont probablement pas isolés.
Il y a toujours possibilité d'isoler les murs par l'extérieur mais bien sur sans oublier le coût (+/-150€/m² pour un crépi isolé) et l'aspect si le parement est fait en crépi ou en briques (voir avec le style de la maison et les possibilités urbanistique).
Et si l'isolation est renforcée, il y aura lieu d'augmenter la ventilation (aérateurs dans les châssis dans les locaux secs (séjour, chambres, bureau) afin d'éviter l'effet thermos de la maison (risque d'apparition de moisissures si trop de condensation).
Le système de chauffage et d'ECS présente vraisemblablement un niveau de performance satisfaisant actuellement mais leur remplacement à moyen terme par un système encore plus performant à mix énergétique (solaire/électrique/géothermique) permettra de réaliser des économies d’énergie.
Avis général et conseils de l'inspecteur :
Bien situé, à proximité du centre de Bruxelles, le bâtiment est dans un bon état général et a été bien entretenu.
Au niveau technique général, une révision sera nécessaire afin d’améliorer le bâtiment tant au niveau électrique que de la salubrité.
Nous recommandons au propriétaire de faire appel à un auditeur énergétique et à un architecte qui disposent des connaissances techniques et légales pour organiser ces travaux en fonction des besoins et des budgets disponibles.
DISCLAIMER
La conclusion et les conseils donnés sont le résultat d’une inspection indépendante, réalisée par un architecte expérimenté et agréé par ImmoPass.
Les éventuelles estimations budgétaires contenues dans ce rapport sont données à titre indicatif et ne constituent pas un devis. Nous recommandons de réaliser un Cahier des Charges sur tout ou partie des travaux à entreprendre et une analyse des devis reçus. Les estimations sont exprimées hors taxes.
L’inspection a été réalisée de manière non-destructive, de manière visuelle uniquement. Ce rapport ne peut donc garantir l’absence totale de vices techniques cachés.
83 %
Zone inondable, zone acoustique, plan de secteurs, permis d’urbanisme ...
100 %
Certification énergétique, conformité électrique, cuve à mazout, sol, ...
83 %
Sécurité, aménagements, structures extérieures, entretien végétation, ...
100 %
Humidité généralisée, présence d’amiante, mérule, termites ...
88 %
Toiture, murs extérieurs, châssis et portes, évacuation eau de pluie, ...
88 %
Défauts structurels, humidité localisée, salubrité, état de fonctionnement..
69 %
Halls et escaliers, caves, combles et grenier, locaux techniques, ...
82 %
Système de chauffage, eau chaude sanitaire, électricité, entretiens techniques, ...
Le bâtiment est reparti en 10 chambres, 4 Wc et 4 Salles de douche et utilisée en tant que colocation, nous n'avons pas d'information sur le dernier état urbanistique autorisé. Pas de soucis majeurs, peu d’aménagements seraient utile à rendre l'habitation ""unifamiliale"".
Nous avons reçu le rapport électrique concernant le rez de chaussée et l'entre sol (demi niveau sous rez de chaussée).
Les murs de clôture du jardin nécessiteront une rénovation :
Murs à décaper puis repeindre, les couvres-murs en terre cuite vernies sont encore en bon état en général.
Le jardin est recouvert d'un revetement gravier, netoyage et entretien à prévoir.
La terrasse nécessite un entretien assez important, beaucoup de mousse et un revêtement assez marqué. Nous avons également relevé le descellement de dalles de terrasse. réparation à effectuer après un nettoyage en profondeur.
L’Abri de jardin est défraichi, un traitement des surfaces est à réaliser afin de garantir son utilisation dans la durée. Nous remarquons également que la toiture est particulièrement recouverte de feuilles et de végétation, un nettoyage est à prévoir. Après celui-ci, la vérification du revêtement de toiture sera possible et son remplacement à prévoir, le cas échéant.
Prix de tôle ondulée moderne : +/-15euro/m².
La toiture de la corp principale na put être vérifiée correctement, l'accès à celle-ci rendue impossible lords de notre visite, à distance, celle-ci semble dans un état correct. Au niveau des toiture plateforme, celles-ci semblent en bon état général, un nettoyage est à prévoir afin de vérifier correctement celle-ci.
Les châssis, en PVC, sont dans l'ensemble récents (dans les 10ans), possèdent généralement du double vitrage mais sans présence de ventilation et les joints de vitrage sont, dans l'ensemble en bon état et ont une étanchéité correcte. Il s’agirait d'étudier un potentiel placement de grille de type OAR dans les pièces de vie. Estimation : +/-400 euros par pièce.
Nous avons également remarqué que les châssis servant de verrière au rez+1 ne sont pas adapté à cette utilisation, pas de fuites constatées malgré la pluie, surveillance à effectuer dans le temps.
La porte d'entrée (visuellement d'époque) en bois, possède du simple vitrage. il est évident que celle-ci ne respecte plus les normes d'isolation actuelles. Esthétiquement, elle est marquée par le temps et mériterait une renovation.
Aucune des pièces de vie ne comporte de système de ventilation. Cela s'explique logiquement par les normes de ventilation plus libertaires au moment de la construction ou de la rénovation du bâtiment.
La mise en place de ce système de ventilation sera d'office nécessaire si le propriétaire procède au remplacement des châssis dans le futur; il aura l'obligation d'intégrer un système de ventilation (amenée d'air par les pièces sèches) aux châssis ou de prévoir un système de ventilation mécanique à double flux. Même si la norme ne l'impose pas et que le propriétaire opte pour la ventilation via les grilles dans les châssis, le système d'extraction d'air par les pièces humides existant mériterais d'être amélioré par des ventilateur à détection automatique.
(Estimation financière pour le placement de systèmes d'extractions mécaniques au départ des locaux humides = +/1600€ htva).
Voir 4.10
Voir 4.10
Chambre Avant gauche combles :
Traces d'humidité dans le coin supérieur gauche coté façade, cela proviendrait nous soupçonnons un nœud thermique à cet endroit le manque de ventilation a pu provoquer des traces de condensation, les murs sont relativement secs.
Chambre avant droite combles :
Traces d'humidité dans le coin supérieur droit coté façade, le problème ici semble plus marqué mais le mur est également sec au toucher et l'indice détecté est bas.
L’amélioration de la ventilation pourra atténuer le problème.
Voir 4.10
Tous les espaces Wc possèdent une ventilation mécanique, celle-ci n'est pas automatique, une amélioration pourra être apportée le cas échéant. Voir 5.3
Voir 4.10
Toutes les salle de douches possèdent une ventilation mécanique, celle-ci n'est pas automatique, une amélioration pourra être apportée le cas échéant. Voir 5.3
Voir 4.10
La rampe est légèrement bancale en certains points, afin d'assurer la sécurité des occupants il est important de prévoir un entretien de celle-ci. Un remplacement est possible mais le budget sera alors bien plus conséquent. (+/-200euro/mct)
Dans l'ensemble le système a été entretenu par le propriétaire précédent et est fonctionnel. Celui-ci doit malgré tout être revu et amélioré afin de l'adapter aux normes actuelles. Nous retrouvons en certains endroits des câbles à nu, pendants, une révision du circuit sera à effectuer après passage du certificateur électrique dans tout le bâtiment.
DATA ROOM
Nous avons mis tous les documents importants dans la date room, n’hésitez pas à télécharger ce dont vous avez besoin !
Nous avons mis tous les documents importants dans la date room, n’hésitez pas à télécharger ce dont vous avez besoin !
Besoin de crédit
Maintenant que vous êtes sûrs d’avoir fait le bon choix, calculez la valeur totale de cette acquisition (valeur du bien et frais annexes) et estimez vos besoins en crédit !
Simulation de crédit
| Prix d'achat | € |
| Rénovation | € |
| Rénovation HTVA | {{ calculeData.renovationHTVA | number:2 }} € |
| TVA | {{ calculeData.tva | number:2 }} € |
| Fonds propres | € |
| Acompte dû (disponible au compromis de vente) | {{ calculeData.prix * 0.1 | number:2 }} € |
| Reste des liquidités (disponible à l'acte) | {{ calculeData.avance | number:2 }} € |
| Crédit pont | {{ calculeData.creditPont | number:2 }} € |
| Prix de vente de votre bien existant | € |
| Solde du crédit existant | € |
| Frais d'acte d'achat | {{ calculeData.droit + calculeData.fraisNotaire | number:2 }} € |
| Droits d'enregistrement | {{ calculeData.droit | number:2 }} € |
|
Abattement
Suis-je éligible à une réduction des droits d’enregistrement ? |
|
| Frais de notaire | {{ calculeData.fraisNotaire | number:2 }} € |
| Autres frais | {{ calculeData.inscription + calculeData.fraisDossier + calculeData.autreFrais | number:2 }} € |
| Frais liés à l'acte hypothécaire | {{ calculeData.inscription | number:2 }} € |
| Frais de dossier et expertise bancaire | {{ calculeData.fraisDossier | number:2 }} € |
| Autres frais | € |
| Montant du crédit | {{ calculeData.montantCredit | number:2 }} € | |
Choix du type de crédit
| Taux | Type | CAP | Mensualité | Mensualité Min | Mensualité Max | |
|---|---|---|---|---|---|---|
| {{ tx.banque }} | {{ tx.taux | number:2 }}% | {{ tx.type }} | -{{ tx.capNeg }}%/+{{ tx.capPos }}% | {{ tx.mens | number:2 }}€ | {{ tx.min | number:2 }}€ - | {{ tx.max | number:2 }}€ - |
| Taux | Type | CAP | Mensualité | Mensualité Min | Mensualité Max | |
|---|---|---|---|---|---|---|
| {{ tx.banque }} | {{ tx.taux | number:2 }}% | {{ tx.type }} | -{{ tx.capNeg }}%/+{{ tx.capPos }}% | {{ tx.mens | number:2 }}€ | {{ tx.min | number:2 }}€ - | {{ tx.max | number:2 }}€ - |
| Taux | Type | CAP | Mensualité | Mensualité Min | Mensualité Max | |
|---|---|---|---|---|---|---|
| {{ tx.banque }} | {{ tx.taux | number:2 }}% | {{ tx.type }} | -{{ tx.capNeg }}%/+{{ tx.capPos }}% | {{ tx.mens | number:2 }}€ | {{ tx.min | number:2 }}€ - | {{ tx.max | number:2 }}€ - |
Rentabilité
Cout total de l’acquisition
| Prix d'achat | {{ calculeData.prix | number:2 }} € |
| Rénovation | + {{ calculeData.prixTransRenovation | number:2 }} € |
| Frais | + {{ calculeData.frais | number:2 }} € |
| Coût total | + {{ calculeData.frais + calculeData.prixTransRenovation + calculeData.prix | number:2 }} € |
| Fonds propres + crédit pont | {{ calculeData.totalFP+calculeData.creditPont | number:2 }} € |
| Montant du crédit | {{ calculeData.montantCredit | number:2 }} € |
| Coût total | + {{ calculeData.creditPont + calculeData.totalFP + calculeData.montantCredit | number:2 }} € |
Rentabilité sur actifs
Durée de détention année(s)
Gain réel {{ calculeData.gainReel | number:0 }} €
Rendement sur actif {{ calculeData.rendementSurActif | number:2 }} %
Revenus
| Revenu locatif annuel Brut | € |
| Charge annuelle {{ calculeData.pourcentageCharge | number:2 }}% | {{ calculeData.chargeLocatifAnnuel | number:2 }} € |
| Précompte immobilier | {{ calculeData.precomteImmo | number:2 }} € |
| Autre charge annuelle | € |
| Revenu locatif annuel net | {{ calculeData.revenuLocatifAnnuelNet | number:2 }} € |
| Total revenu locatif après {{ calculeData.dureeDetention }} année(s) tenant compte d'une inflation de % |
{{ calculeData.totalRevenuLocatif | number:2 }} € |
| Plus-value latente | {{ calculeData.pluvalueLatente | number:2 }} % |
| Plus-value du bien après {{calculeData.dureeDetention}} année(s) | {{ calculeData.pluvalueBien | number:2 }} € |
| Total revenu locatif après {{ calculeData.dureeDetention }} année(s) | {{ calculeData.totalRevenuLocatif | number:2 }} € |
| Gain brut sur le prix de base après {{ calculeData.dureeDetention }} année(s) | +{{ calculeData.gainBrut | number:2 }} € |
Charges
| Durée du crédit | {{ calculeData.duree | number:2 }} ans |
| Taux | {{ calculeData.taux | number:2 }} % |
| Mensualité | {{ calculeData.mensualite | number:2 }} € |
| Total interêts après {{calculeData.dureeDetention}} année(s) | {{ calculeData.totalInteret | number:2 }} € |
| Total frais | {{ calculeData.frais | number:2 }} € |
| Total | {{ calculeData.InteretFrais | number:2 }} € |
Gain réel
Rendement sur actif
Cash flow
| Année | Coût | Revenu locatif | Gain |
|---|---|---|---|
| {{ $index }} | {{ ch.payment | number:2 }} € | {{ ch.revenuLocatif | number:2 }} € | {{ - ch.fondPropre | number:2 }} € |
Av. Louise 433 Louizalaan 1050 Bruxelles - Brussel
Drève Richelle, 96 - 1410 Waterloo