Suis-je éligible à une réduction des droits d’enregistrement ?
Bruyère 73
Faire offre à partir de: 485 000 €
Type: Maison | Région: Wallonie | Commune: Genval
Agréable villa de caractère de 3 chambres avec un espace bureau supplémentaire donnant accès sur une terrasse et jardin privatif orientée Sud-Ouest. Elle bénéficie aussi d'un garage fermé séparé, un espace mezzanine aménageable et un grenier de rangement . La maison a été rénovée en 2016, son installation électrique est conforme, elle est chauffée par une chaudière au gaz Viessmann à condensation et est équipée d'une ventilation double flux à l'étage.
Surface Totale: 176 M²
Surface habitable: 148 m²
Chambres: 3
Salle de bain: 1
Salle de douche: 1
Garage fermé séparé: 1
Caves: 2
Jardin privatif : Orientée Sud-Ouest
Greniers de rangement: Oui
Vidéo
Découvrez le bien en visualisant cette vidéo
VISITE VIRTUELLE
Vous voulez en voir plus ? Visitez le bien comme si vous y étiez à travers cette visite virtuelle
Localisation
Ce bien vous correspond ? Découvrez maintenant si sa localisation vous convient !
Commerces
Pharmacies
Restaurants
Boulangeries
Crèches
Parcs
Écoles
Universités
Déplacements
Plans intérieurs
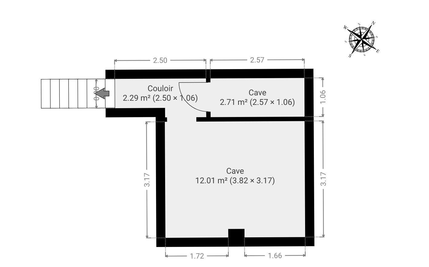
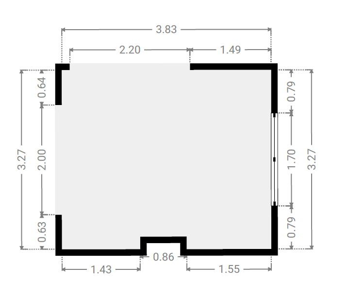
Sous-sol
SURFACE TOTALE : 16.99 m² | SURFACE HABITABLE : 22.7 m² | PIÈCE(S) : 3
2x Cave(s)
1x Couloir
Cave
SURFACE : 12.01 m²
Couloir
SURFACE : 2.29 m²
Cave
SURFACE : 2.72 m²
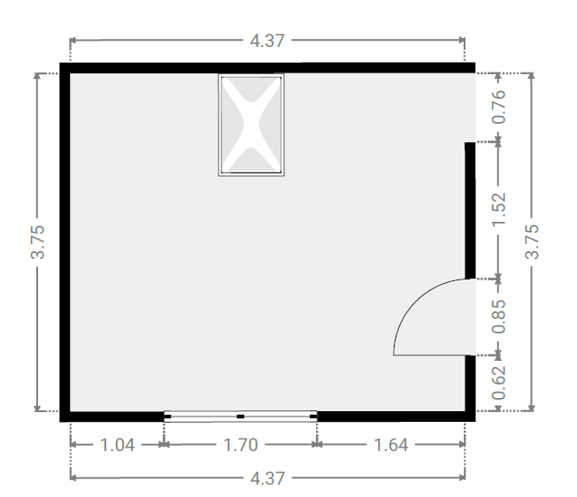
Rez-de-chaussée
SURFACE TOTALE : 100.27 m² | SURFACE HABITABLE : 124.71 m² | PIÈCE(S) : 9
1x Salle à manger
1x Séjour
1x Couloir
1x Hall
1x Buanderie
1x Cuisine
1x Bureau
1x Garage
Salle à manger
SURFACE : 10.18 m²
Séjour
SURFACE : 12.34 m²
Couloir
SURFACE : 9.76 m²
Hall
SURFACE : 5.69 m²
W.C
SURFACE : 1.13 m²
Buanderie
SURFACE : 5.48 m²
Cuisine
SURFACE : 16.7 m²
Bureau
SURFACE : 10.96 m²
Garage
SURFACE : 28.08 m²
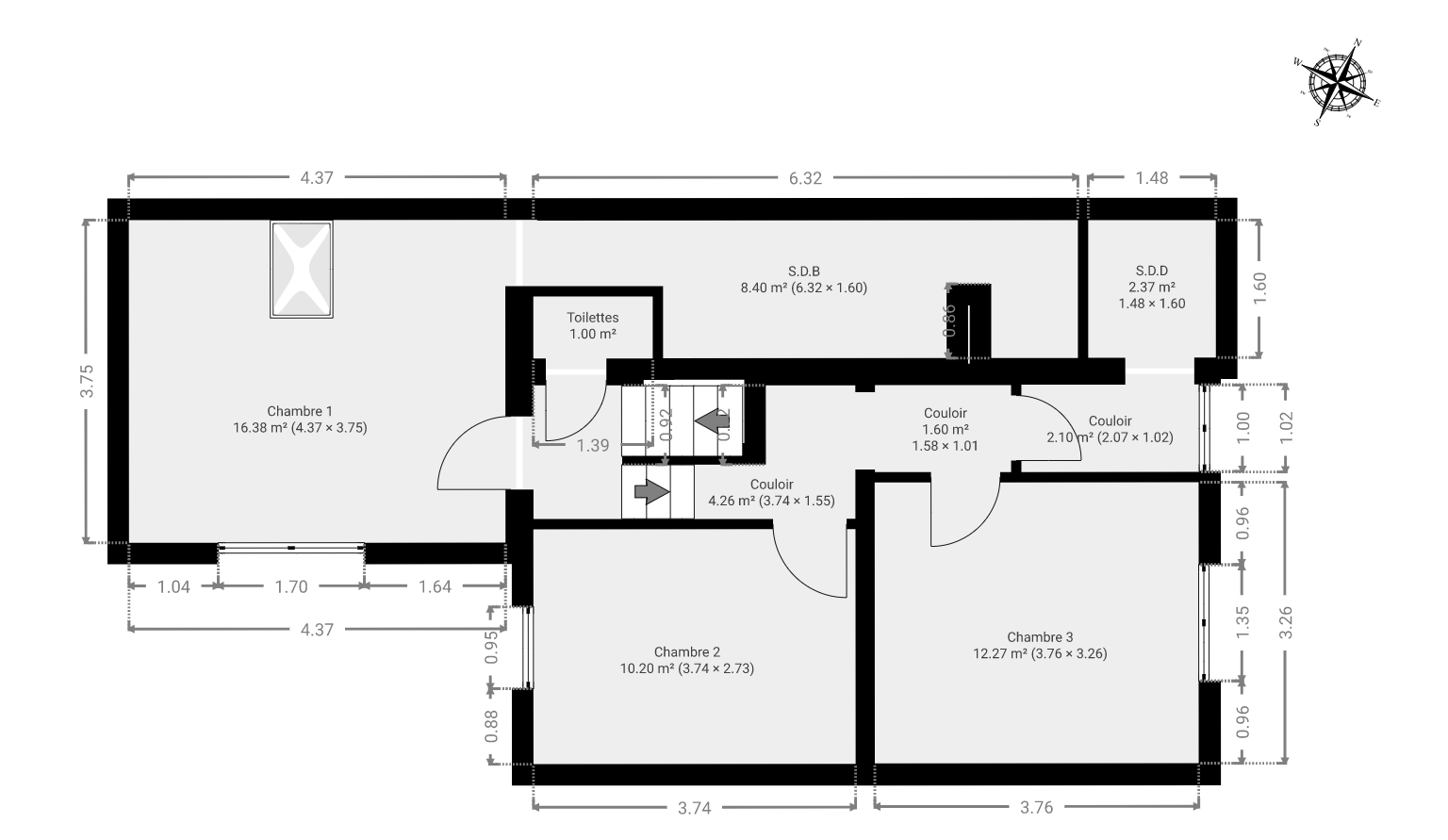
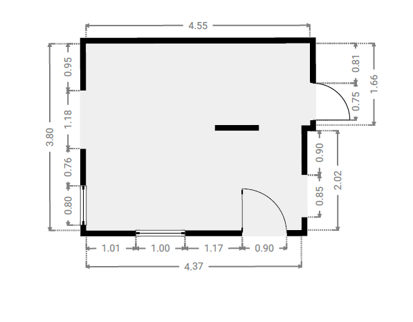
1er étage
SURFACE TOTALE : 58.52 m² | SURFACE HABITABLE : 75.46 m² | PIÈCE(S) : 9
3x Couloir(s)
1x S.D.D
1x S.D.B
3x Chambre(s)
Chambre 3
SURFACE : 12.27 m²
Chambre 2
SURFACE : 10.2 m²
Couloir
SURFACE : 4.26 m²
Couloir
SURFACE : 1.6 m²
Couloir
SURFACE : 2.1 m²
S.D.D
SURFACE : 2.37 m²
S.D.B
SURFACE : 8.4 m²
Toilettes
SURFACE : 1 m²
Chambre 1
SURFACE : 16.38 m²
RECHERCHE CADASTRALE
Vous souhaitez mieux connaître votre parcelle et connaître la surface dont vous jouirez en achetant ce bien, alors consulter le cadastre est nécessaire !
Certificats
Informez-vous sur la performance énergétique de ce bien et assurez-vous que ses installations électriques sont bien aux normes !
PERFORMANCE ÉNERGÉTIQUE
Économe
Très énergivore
CERTIFICAT ÉLECTRIQUE
PROCES VERBAL D’EXAMEN DE CONFORMITE ET/OU DE VISITE DE CONTROLE D’UNE INSTALLATION ELECTRIQUE BASSE TENSION
La nouvelle installationConforme
Agent
visiteur
Leo Vanderstraeten
Date
de certification
09/07/2005
Visite de contrôle
à effectuer avant le
09/07/2030
Audit technique
En prévoyant un budget précis des transformations et/ou réparations à opérer sur ce bien, l'expertise réalisée par un architecte neutre et indépendant vous permet de mieux évaluer la valeur de ce bien !
Score général attribué par l’auditeur *
Conseils généraux en termes de performances énergétiques du bâtiment :
Plusieurs travaux ont déjà été réalisés concernant la performance énergétique :
- La maison est déjà correctement isolée au niveau du plancher du comble avec 20cm de laine de roche.
- Une chaudière gaz condensation couplé à un ballon d'eau chaude sanitaires assurent la production de chauffage et d'eau chaude.
- Une double flux performante a été installée dans l'ensemble de la maison.
- les châssis ont été remplacés.
Il ne reste plus beaucoup de travaux facilement réalisables, les murs pourront être isolés mais cela nécessite un budget plus important.
La toiture du garage pourrait être isolée en cas d'aménagement de la pièce.
Avis général et conseils de l'inspecteur :
La maison est en bon état général et a fait l'objet d'une rénovation de qualité.
La cuisine devra sans doute être changée pour être au goût du jour et le muret arrière dans le jardin devra être réparé.
Il y a également quelques points d'entretien ou de réparation à réaliser (mortex salle de bain, plancher, peinture annexe arrière) pour que tout soit dans un état impeccable.
DISCLAIMER
La conclusion et les conseils donnés sont le résultat d’une inspection indépendante, réalisée par un architecte expérimenté et agréé par ImmoPass.
Les éventuelles estimations budgétaires contenues dans ce rapport sont données à titre indicatif et ne constituent pas un devis. Nous recommandons de réaliser un Cahier des Charges sur tout ou partie des travaux à entreprendre et une analyse des devis reçus. Les estimations sont exprimées hors taxes.
L’inspection a été réalisée de manière non-destructive, de manière visuelle uniquement. Ce rapport ne peut donc garantir l’absence totale de vices techniques cachés.
83 %
Zone inondable, zone acoustique, plan de secteurs, permis d’urbanisme ...
67 %
Certification énergétique, conformité électrique, cuve à mazout, sol, ...
83 %
Sécurité, aménagements, structures extérieures, entretien végétation, ...
90 %
Humidité généralisée, présence d’amiante, mérule, termites ...
90 %
Toiture, murs extérieurs, châssis et portes, évacuation eau de pluie, ...
94 %
Défauts structurels, humidité localisée, salubrité, état de fonctionnement..
90 %
Halls et escaliers, caves, combles et grenier, locaux techniques, ...
71 %
Système de chauffage, eau chaude sanitaire, électricité, entretiens techniques, ...
Repris dans la zone de bruit des axes routiers principaux en 2017 - zone faible à très faible (de 50 à 59 dB).
Permis d'urbanisme reçu pour l'extension arrière sur deux niveaux, réalisée en 2005.
Label D donc dans la moyenne.
Conformité électrique conforme, date de 2005 - valable jusque 2030.
Une chaudière gaz a été installée récemment, c'est donc considéré comme conforme.
Trottoir ancien en pavés béton mais rien de particulier à signaler.
Les joints de la terrasse sont à refaire pour éviter une détérioration du revêtement. Prévoir un budget de 1000€.
Une partie du mur arrière de retenue des terres du jardin s'est affaissé, la partie courbe menace également de partir. Il est conseillé de refaire un nouveau mur dans ces zones en plaçant des armatures afin de renforcer l'ensemble, voir par exemple pour un mur en Stepoc. Prévoir un budget de 2500€.
Jardin en bon état.
Idem point allée extérieure
Il est fort probable que le bardage arrière qui a été peint en blanc, soit de l'amiante. En cas de démontage, ce bardage devra donc être évacué dans des big bag destinés à l'amiante.
Pas de fissures ou décalages constatés au niveau de la maison.
Les murs en bloc peints de la petite annexe arrière sont à repeindre car la peinture se détache à plusieurs endroits. Prévoir un budget de 750€.
La toiture est en relativement bon état , cependant, il n'y a pas de sous-toiture. En règle générale, il n'est pas possible d'isoler une toiture sans sous-toiture depuis l'intérieur. De plus, plusieurs traces d'anciennes infiltrations sont visibles. Par conséquent, il ne sera pas possible d'aménager le grenier, car l'imperméabilisation complète du bâtiment n'étant pas réalisable, il n'est pas possible de finaliser la paroi.
Descentes d'eau en bon état général.
Prévoir un bouchon de réduction au niveau de la descente d'eau en façade avant.
Les corniches sont en parfait état.
Les châssis sont en double vitrage et datent de 2013, ils sont en bon état. La structure du châssis est en bois, revêtu d'un habillage aluminium à l'extérieur.
Les pièces intérieures sont en bon état général.
Les pièces ont été rénovées.
La cuisine est amortie, les meubles et sans doute les équipements devront être remplacés dans quelques années.
Le sol de la chambre enfant est à refermer.
Pièces en parfait état.
Les WC sont équipés d'une extraction commandée via la ventilation double flux.
L'enduit mortex autour de la baignoire présente des défauts, il serait nécessaire de faire une reprise de l'enduit sous peine que cela s'aggrave. Prévoir un budget de 1000€ car il faudra repasser une couche sur tout l'ensemble autour de la baignoire.
Ventilé via la double flux.
Le plancher au premier étage est à réparer à certains endroits. Prévoir un budget de 500€.
Prévoir une peinture de l'escalier. Budget de 500€.
Le grenier n'est pas aménageable étant donné qu'un isolant a été placé sur le sol et que la toiture ne possède pas de sous toiture.
Il y a quelques murs légèrement humides, il serait intéressant de placer un extracteur afin de ventiler la cave.
Le garage situé à l'arrière du jardin est en bon état. La toiture comporte bien une sous-toiture, elle pourra donc être isolée par l'intérieur. La porte de garage est automatique.
Pas d'attestation d'entretien reçue.
Chaudière gaz à condensation de marque Vitodens 200 récente.
Ballon d'eau chaude sanitaire Vitocell de 100litres récent couplé à la chaudière.
État des sols
La pollution du sol a un impact sur l'environnement et sur la santé, les risques d’inondation ont un impact sur votre qualité de vie… Consultez les données relatives à ce bien pour en avoir le cœur net !
ÉTAT DE LA POLLUTION DES SOLS
Aucune remarque particulière pour la parcelle C258
Source : Cliquez-ici
ZONE INONDABLE
Aucune remarque particulière pour la parcelle C258
Source : Cliquez-ici
Légende :
DATA ROOM
Nous avons mis tous les documents importants dans la date room, n’hésitez pas à télécharger ce dont vous avez besoin !
Nous avons mis tous les documents importants dans la date room, n’hésitez pas à télécharger ce dont vous avez besoin !
Besoin de crédit
Maintenant que vous êtes sûrs d’avoir fait le bon choix, calculez la valeur totale de cette acquisition (valeur du bien et frais annexes) et estimez vos besoins en crédit !
Simulation de crédit
| Prix d'achat | € |
| Rénovation | € |
| Rénovation HTVA | {{ calculeData.renovationHTVA | number:2 }} € |
| TVA | {{ calculeData.tva | number:2 }} € |
| Fonds propres | € |
| Acompte dû (disponible au compromis de vente) | {{ calculeData.prix * 0.1 | number:2 }} € |
| Reste des liquidités (disponible à l'acte) | {{ calculeData.avance | number:2 }} € |
| Crédit pont | {{ calculeData.creditPont | number:2 }} € |
| Prix de vente de votre bien existant | € |
| Solde du crédit existant | € |
| Frais d'acte d'achat | {{ calculeData.droit + calculeData.fraisNotaire | number:2 }} € |
| Droits d'enregistrement | {{ calculeData.droit | number:2 }} € |
|
Abattement
Suis-je éligible à une réduction des droits d’enregistrement ? |
|
| Frais de notaire | {{ calculeData.fraisNotaire | number:2 }} € |
| Autres frais | {{ calculeData.inscription + calculeData.fraisDossier + calculeData.autreFrais | number:2 }} € |
| Frais liés à l'acte hypothécaire | {{ calculeData.inscription | number:2 }} € |
| Frais de dossier et expertise bancaire | {{ calculeData.fraisDossier | number:2 }} € |
| Autres frais | € |
| Montant du crédit | {{ calculeData.montantCredit | number:2 }} € | |
La présente simulation se base sur un taux d’intérêt du 04/08/2023. Ce calcul est indicatif et sujet à changement.
Choix du type de crédit
| Taux | Type | CAP | Mensualité | Mensualité Min | Mensualité Max | |
|---|---|---|---|---|---|---|
| {{ tx.banque }} {{ $index+1 }} | {{ tx.taux | number:2 }}% | {{ tx.type }} | -{{ tx.capNeg }}%/+{{ tx.capPos }}% | {{ tx.mens | number:2 }}€ | {{ tx.min | number:2 }}€ | {{ tx.max | number:2 }}€ |
| Taux | Type | CAP | Mensualité | Mensualité Min | Mensualité Max | |
|---|---|---|---|---|---|---|
| {{ tx.banque }} {{ $index+1 }} | {{ tx.taux | number:2 }}% | {{ tx.type }} | -{{ tx.capNeg }}%/+{{ tx.capPos }}% | {{ tx.mens | number:2 }}€ | {{ tx.min | number:2 }}€ | {{ tx.max | number:2 }}€ |
| Taux | Type | CAP | Mensualité | Mensualité Min | Mensualité Max | |
|---|---|---|---|---|---|---|
| {{ tx.banque }} {{ $index+1 }} | {{ tx.taux | number:2 }}% | {{ tx.type }} | -{{ tx.capNeg }}%/+{{ tx.capPos }}% | {{ tx.mens | number:2 }}€ | {{ tx.min | number:2 }}€ | {{ tx.max | number:2 }}€ |
Rentabilité
Cout total de l’acquisition
| Prix d'achat | {{ calculeData.prix | number:2 }} € |
| Rénovation | + {{ calculeData.prixTransRenovation | number:2 }} € |
| Frais | + {{ calculeData.frais | number:2 }} € |
| Coût total | + {{ calculeData.frais + calculeData.prixTransRenovation + calculeData.prix | number:2 }} € |
| Fonds propres + crédit pont | {{ calculeData.totalFP+calculeData.creditPont | number:2 }} € |
| Montant du crédit | {{ calculeData.montantCredit | number:2 }} € |
| Coût total | + {{ calculeData.creditPont + calculeData.totalFP + calculeData.montantCredit | number:2 }} € |
Rentabilité sur actifs
Durée de détention année(s)
Gain réel {{ calculeData.gainReel | number:0 }} €
Rendement sur actif {{ calculeData.rendementSurActif | number:2 }} %
Revenus
| Revenu locatif annuel Brut | € |
| Charge annuelle {{ calculeData.pourcentageCharge | number:2 }}% | {{ calculeData.chargeLocatifAnnuel | number:2 }} € |
| Précompte immobilier | {{ calculeData.precomteImmo | number:2 }} € |
| Autre charge annuelle | € |
| Revenu locatif annuel net | {{ calculeData.revenuLocatifAnnuelNet | number:2 }} € |
| Total revenu locatif après {{ calculeData.dureeDetention }} année(s) tenant compte d'une inflation de % |
{{ calculeData.totalRevenuLocatif | number:2 }} € |
| Plus-value latente | {{ calculeData.pluvalueLatente | number:2 }} % |
| Plus-value du bien après {{calculeData.dureeDetention}} année(s) | {{ calculeData.pluvalueBien | number:2 }} € |
| Total revenu locatif après {{ calculeData.dureeDetention }} année(s) | {{ calculeData.totalRevenuLocatif | number:2 }} € |
| Gain brut sur le prix de base après {{ calculeData.dureeDetention }} année(s) | +{{ calculeData.gainBrut | number:2 }} € |
Charges
| Durée du crédit | {{ calculeData.duree | number:2 }} ans |
| Taux | {{ calculeData.taux | number:2 }} % |
| Mensualité | {{ calculeData.mensualite | number:2 }} € |
| Total interêts après {{calculeData.dureeDetention}} année(s) | {{ calculeData.totalInteret | number:2 }} € |
| Total frais | {{ calculeData.frais | number:2 }} € |
| Total | {{ calculeData.InteretFrais | number:2 }} € |
Gain réel
Rendement sur actif
Cash flow
| Année | Coût | Revenu locatif | Gain |
|---|---|---|---|
| {{ $index }} | {{ ch.payment | number:2 }} € | {{ ch.revenuLocatif | number:2 }} € | {{ - ch.fondPropre | number:2 }} € |
Av. Louise 433 Louizalaan 1050 Bruxelles - Brussel
Drève Richelle, 96 - 1410 Waterloo