Suis-je éligible à une réduction des droits d’enregistrement ?
Bruyère 71
PRIX : 515 000 €
Type: Villa | Région: Wallonie | Commune: Genval
Charmante villa familiale de 1928, qui a été rénovée avec goût. Très agréable à vivre, elle comprend 4 belles chambres (dont un studio), deux salles de bain, avec un jardin privatif, un garage et une cave. La cuisine ouverte est lumineuse et le séjour offre de beaux volumes.la villa est dotée d'un beau jardin privatif orienté sud-ouest de 3a62ca La chaudière au gaz a été remplacée récemment. Il n'y a plus qu'à déposer vos valises!
Surface Totale: 191.69 M²
Surface habitable: 176.49 m²
Chambres: 4
Salle de bain: 1
Salle de douche: 1
Garage: 1
Cave: 1
Parking: 2
Jardin: Oui
Vidéo
Découvrez le bien en visualisant cette vidéo
VISITE VIRTUELLE
Vous voulez en voir plus ? Visitez le bien comme si vous y étiez à travers cette visite virtuelle
Localisation
Ce bien vous correspond ? Découvrez maintenant si sa localisation vous convient !
Commerces
Pharmacies
Restaurants
Boulangeries
Crèches
Parcs
Écoles
Universités
Déplacements
Plans intérieurs
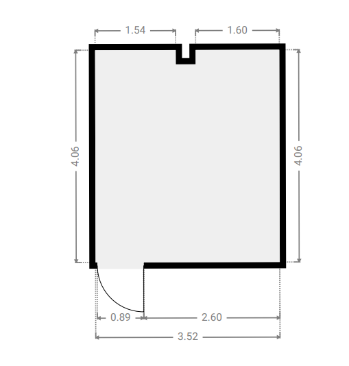
Sous-sol
SURFACE TOTALE : 23.05 m² | SURFACE HABITABLE : 17.56 m² | PIÈCE(S) : 2
1x Cave
1x Couloir
Cave
SURFACE : 14.19 m²
Couloir
SURFACE : 3.39 m²
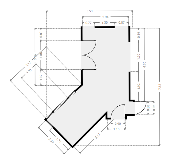
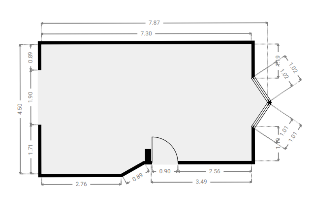
Rez-de-chaussée
SURFACE TOTALE : 113.8 m² | SURFACE HABITABLE : 94.33 m² | PIÈCE(S) : 9
1x Cuisine
1x Garage
1x S.D.B
1x Buanderie
1x Séjour
1x Hall
Cuisine
SURFACE : 22.39 m²
Couloir
SURFACE : 0.96 m²
Garage
SURFACE : 15.2 m²
S.D.B
SURFACE : 5.43 m²
Couloir
SURFACE : 0.84 m²
W.C
SURFACE : 1.57 m²
Buanderie
SURFACE : 12.69 m²
Séjour
SURFACE : 31.41 m²
Hall
SURFACE : 3.89 m²
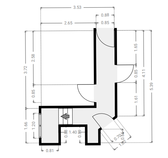
1er étage
SURFACE TOTALE : 64.42 m² | SURFACE HABITABLE : 51.93 m² | PIÈCE(S) : 5
3x Chambre(s)
1x Couloir
1x S.D.D
Chambre 2
SURFACE : 9.12 m²
Couloir
SURFACE : 7.11 m²
S.D.D
SURFACE : 3.53 m²
Chambre 3
SURFACE : 11.85 m²
Chambre 1
SURFACE : 20.36 m²
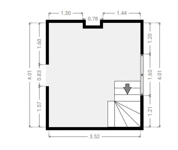
2e étage
SURFACE TOTALE : 34.4 m² | SURFACE HABITABLE : 27.86 m² | PIÈCE(S) : 2
1x Bureau
1x Chambre 4
Bureau
SURFACE : 13.93 m²
Chambre 4
SURFACE : 13.94 m²
RECHERCHE CADASTRALE
Vous souhaitez mieux connaître votre parcelle et connaître la surface dont vous jouirez en achetant ce bien, alors consulter le cadastre est nécessaire !
Surface : 365.76 m²
Parcelle : C581
Certificats
Informez-vous sur la performance énergétique de ce bien et assurez-vous que ses installations électriques sont bien aux normes !
PERFORMANCE ÉNERGÉTIQUE
Économe
Très énergivore
CERTIFICAT ÉLECTRIQUE
PROCES VERBAL D’EXAMEN DE CONFORMITE ET/OU DE VISITE DE CONTROLE D’UNE INSTALLATION ELECTRIQUE BASSE TENSION
La nouvelle installationNon conforme
Agent
visiteur
Amaury Van Daele
Date
de certification
11/04/2023
Visite de contrôle
à effectuer avant le
11/04/2024
Audit technique
En prévoyant un budget précis des transformations et/ou réparations à opérer sur ce bien, l'expertise réalisée par un architecte neutre et indépendant vous permet de mieux évaluer la valeur de ce bien !
Score général attribué par l’auditeur *
Conseils généraux en termes de performances énergétiques du bâtiment :
Nuos conoseillons d'isoler les murs et de vérifier l'isolation de la toiture plate via un sondage et au besoin de renforcer l'isolation.
Les menuiseries extérieures seront à remplacer dans un délais maximum de 5 à 10 ans.
Avis général et conseils de l'inspecteur :
Maison très saine hormis les soucis d'humidité décrit au chapitre concerné.
Cette maison n'a pas subie de rénovation énergétique qui permettrait d'en améliorer la PEB.
DISCLAIMER
La conclusion et les conseils donnés sont le résultat d’une inspection indépendante, réalisée par un architecte expérimenté et agréé par ImmoPass.
Les éventuelles estimations budgétaires contenues dans ce rapport sont données à titre indicatif et ne constituent pas un devis. Nous recommandons de réaliser un Cahier des Charges sur tout ou partie des travaux à entreprendre et une analyse des devis reçus. Les estimations sont exprimées hors taxes.
L’inspection a été réalisée de manière non-destructive, de manière visuelle uniquement. Ce rapport ne peut donc garantir l’absence totale de vices techniques cachés.
83 %
Zone inondable, zone acoustique, plan de secteurs, permis d’urbanisme ...
40 %
Certification énergétique, conformité électrique, cuve à mazout, sol, ...
95 %
Sécurité, aménagements, structures extérieures, entretien végétation, ...
80 %
Humidité généralisée, présence d’amiante, mérule, termites ...
84 %
Toiture, murs extérieurs, châssis et portes, évacuation eau de pluie, ...
90 %
Défauts structurels, humidité localisée, salubrité, état de fonctionnement..
94 %
Halls et escaliers, caves, combles et grenier, locaux techniques, ...
100 %
Système de chauffage, eau chaude sanitaire, électricité, entretiens techniques, ...
Repris dans la zone de bruit des axes routiers principaux en 2017 - zone faible à très faible (de 50 à 59 dB)
Voir rapport de réception Certinergie du 11/04/2023
Un chaudière gaz a été installée récemment, c'est donc considéré comme conforme.
L'ancienne cuve à mazout est encre présente mais n'est plus opérationnelle. Elle n'a pas été condamnée.
Les murs extérieurs nécessiteraient une mise en peinture de rafraîchissement.
Enlever les mauvaises herbes au niveau des joints et si nécessaire refaire les joints qui ne seraient plus en bon état. Nettoyer autour de l'avaloir.
L'ancienne isolation en plâtre sur les canalisations de chauffage comprend probablement de l'amiante. Nous conseillons de l'enlever et de le remplacer par de nouvelles isolations en polyéthylène. Budget entre 500 et 1.000 euros.
La maison est relativement saine mais présente plusieurs points d'attention au niveau de l'humidité.
1) Nous avons constaté au niveau du WC du RDC beaucoup d'humidité sur le mur côté SDB. Nous constatons que cela correspond à la position de la gouttière de la plate-forme au niveau de la rue latérale. Dans un premier temps, nous recommandons de revoir la sortie et de l'allonger via un coude au niveau de la voirie publique, cela permettra d'éloigner l'eau du mur. Budget maximum 500 euros. Si l'humidité persiste, vérifier l'étanchéité du mur extérieur et des raccords au niveau de l'avaloir de la toiture.
2) Nous constatons un peu d'humidité des murs de caves. Rien d'anormal pour des caves d'une bâtisse de construction plus ancienne. Les murs ne sont pas protégés à l'extérieur contre l'humidité. Si l'acquéreur veut assainir les caves, il devra probablement réaliser des infiltrations et des cimentages localisés. Budget de 15.000 à 20.000 euros.
Les caves peuvent également être laissées en état mais nous conseillons de les passer à la brosse métallique et de les peindre avec une peinture prévue à cet effet. Budget de 3.000 à 5.000 euros.
Présences de petites fissures au niveau du revêtement de la façade arrière. Il faudra prévoir une réparation de l'enduit dans un délais de maximum 5 ans afin d'éviter l'accentuation de la fissuration avec les cycles gel/dégel.
Dans le cadre d'une rénovation énergétique la pose d'un enduit sur isolation permettra de remédier au au problème tout en améliorant la PEB du bâtiment. Ces travaux permettront de bénéficier de primes.
Les peintures sont amorties. Il faudra prévoir à terme une peinture sur l'ensemble des maçonneries.
Dans le cadre d'une rénovation énergétique, nous conseillons surtout la pose d'un nouveau revêtement avec isolation. Un système d'enduit sur isolation en polystyrène expansé (budget entre 115 à 130 euros/m2).
Présence de panneaux solaires sur la plus grande partie des la toiture.
Nous recommandons une nouvelle protection des boiseries au niveau des rives.
Voir le problème des rives ci-dessus.
Les châssis datent de 1996 à 2008. Pas de grille d'aération prévue. Elles seront nécessaires en cas de rénovation énergétique afin d'assurer une bonne aération de la maison.
Porte de plus de 20 ans. Faible coupure thermique et présences de traces de moisissures à nettoyer au niveau des charnières.
Il n'y a pas de coupure thermique au droit du seuil dans le living - façade avant. Par faible température il y a des risques de condensation. Le détail est complètement à revoir lors du remplacement de châssis.
Attention à la hauteur des garde-corps. Les fenêtres présentent un léger rebord et le garde-corps extérieur est trop bas par rapport à la fenêtre. Nous conseillons de remplacer la poignée par une poignée à clé pur des raisons de sécurité. Prix de 350 à 500 euros.
Voir rubrique humidité.
Ventilation naturelle - prévoir une ventilation mécanique dans le cadre d'une rénovation énergétique.
Voir rubrique humidité
Les panneaux de faux-plafond sont à remplacer. Nous conseillons d'en profiter pour isoler le plafond du garage. Budget 50 euros/m 2
Pas de remarque particulière. Attention les murs sont habillés de panneaux gyproc.
La chaudière à condensation de marque Bosh date de 2020. Attention à l'évacuation des condensats. Nous recommandons également d'isoler toutes les canalisations de chauffage.
Présence de 37 panneaux solaires couvrant largement la consommation standard d'une habitation pour 4 personnes.
DATA ROOM
Nous avons mis tous les documents importants dans la date room, n’hésitez pas à télécharger ce dont vous avez besoin !
Nous avons mis tous les documents importants dans la date room, n’hésitez pas à télécharger ce dont vous avez besoin !
Besoin de crédit
Maintenant que vous êtes sûrs d’avoir fait le bon choix, calculez la valeur totale de cette acquisition (valeur du bien et frais annexes) et estimez vos besoins en crédit !
Simulation de crédit
| Prix d'achat | € |
| Rénovation | € |
| Rénovation HTVA | {{ calculeData.renovationHTVA | number:2 }} € |
| TVA | {{ calculeData.tva | number:2 }} € |
| Fonds propres | € |
| Acompte dû (disponible au compromis de vente) | {{ calculeData.prix * 0.1 | number:2 }} € |
| Reste des liquidités (disponible à l'acte) | {{ calculeData.avance | number:2 }} € |
| Crédit pont | {{ calculeData.creditPont | number:2 }} € |
| Prix de vente de votre bien existant | € |
| Solde du crédit existant | € |
| Frais d'acte d'achat | {{ calculeData.droit + calculeData.fraisNotaire | number:2 }} € |
| Droits d'enregistrement | {{ calculeData.droit | number:2 }} € |
|
Abattement
Suis-je éligible à une réduction des droits d’enregistrement ? |
|
| Frais de notaire | {{ calculeData.fraisNotaire | number:2 }} € |
| Autres frais | {{ calculeData.inscription + calculeData.fraisDossier + calculeData.autreFrais | number:2 }} € |
| Frais liés à l'acte hypothécaire | {{ calculeData.inscription | number:2 }} € |
| Frais de dossier et expertise bancaire | {{ calculeData.fraisDossier | number:2 }} € |
| Autres frais | € |
| Montant du crédit | {{ calculeData.montantCredit | number:2 }} € | |
Choix du type de crédit
| Taux | Type | CAP | Mensualité | Mensualité Min | Mensualité Max | |
|---|---|---|---|---|---|---|
| {{ tx.banque }} {{ $index+1 }} | {{ tx.taux | number:2 }}% | {{ tx.type }} | -{{ tx.capNeg }}%/+{{ tx.capPos }}% | {{ tx.mens | number:2 }}€ | {{ tx.min | number:2 }}€ | {{ tx.max | number:2 }}€ |
| Taux | Type | CAP | Mensualité | Mensualité Min | Mensualité Max | |
|---|---|---|---|---|---|---|
| {{ tx.banque }} {{ $index+1 }} | {{ tx.taux | number:2 }}% | {{ tx.type }} | -{{ tx.capNeg }}%/+{{ tx.capPos }}% | {{ tx.mens | number:2 }}€ | {{ tx.min | number:2 }}€ | {{ tx.max | number:2 }}€ |
| Taux | Type | CAP | Mensualité | Mensualité Min | Mensualité Max | |
|---|---|---|---|---|---|---|
| {{ tx.banque }} {{ $index+1 }} | {{ tx.taux | number:2 }}% | {{ tx.type }} | -{{ tx.capNeg }}%/+{{ tx.capPos }}% | {{ tx.mens | number:2 }}€ | {{ tx.min | number:2 }}€ | {{ tx.max | number:2 }}€ |
Rentabilité
Cout total de l’acquisition
| Prix d'achat | {{ calculeData.prix | number:2 }} € |
| Rénovation | + {{ calculeData.prixTransRenovation | number:2 }} € |
| Frais | + {{ calculeData.frais | number:2 }} € |
| Coût total | + {{ calculeData.frais + calculeData.prixTransRenovation + calculeData.prix | number:2 }} € |
| Fonds propres + crédit pont | {{ calculeData.totalFP+calculeData.creditPont | number:2 }} € |
| Montant du crédit | {{ calculeData.montantCredit | number:2 }} € |
| Coût total | + {{ calculeData.creditPont + calculeData.totalFP + calculeData.montantCredit | number:2 }} € |
Rentabilité sur actifs
Durée de détention année(s)
Gain réel {{ calculeData.gainReel | number:0 }} €
Rendement sur actif {{ calculeData.rendementSurActif | number:2 }} %
Revenus
| Revenu locatif annuel Brut | € |
| Charge annuelle {{ calculeData.pourcentageCharge | number:2 }}% | {{ calculeData.chargeLocatifAnnuel | number:2 }} € |
| Précompte immobilier | {{ calculeData.precomteImmo | number:2 }} € |
| Autre charge annuelle | € |
| Revenu locatif annuel net | {{ calculeData.revenuLocatifAnnuelNet | number:2 }} € |
| Total revenu locatif après {{ calculeData.dureeDetention }} année(s) tenant compte d'une inflation de % |
{{ calculeData.totalRevenuLocatif | number:2 }} € |
| Plus-value latente | {{ calculeData.pluvalueLatente | number:2 }} % |
| Plus-value du bien après {{calculeData.dureeDetention}} année(s) | {{ calculeData.pluvalueBien | number:2 }} € |
| Total revenu locatif après {{ calculeData.dureeDetention }} année(s) | {{ calculeData.totalRevenuLocatif | number:2 }} € |
| Gain brut sur le prix de base après {{ calculeData.dureeDetention }} année(s) | +{{ calculeData.gainBrut | number:2 }} € |
Charges
| Durée du crédit | {{ calculeData.duree | number:2 }} ans |
| Taux | {{ calculeData.taux | number:2 }} % |
| Mensualité | {{ calculeData.mensualite | number:2 }} € |
| Total interêts après {{calculeData.dureeDetention}} année(s) | {{ calculeData.totalInteret | number:2 }} € |
| Total frais | {{ calculeData.frais | number:2 }} € |
| Total | {{ calculeData.InteretFrais | number:2 }} € |
Gain réel
Rendement sur actif
Cash flow
| Année | Coût | Revenu locatif | Gain |
|---|---|---|---|
| {{ $index }} | {{ ch.payment | number:2 }} € | {{ ch.revenuLocatif | number:2 }} € | {{ - ch.fondPropre | number:2 }} € |
Av. Louise 433 Louizalaan 1050 Bruxelles - Brussel
Drève Richelle, 96 - 1410 Waterloo