Suis-je éligible à une réduction des droits d’enregistrement ?
BRASSEURS 31
PRIX : 250 000,00€
Type: Maison | Région: Wallonie | Commune: Pont-à-Celles
Dans le petit village calme de Viesville, à proximité des écoles, commerces et axes routiers, By The way vous propose ce bâtiment de ferme datant du XIXe siècle +/-142 m2 (net habitable) sise sur un terrain de 7 ares 10 ca. La fermette, aux belles poutres apparentes, se compose comme suit : Au rez-de-chaussée, un hall d'entrée, un vaste salon/salle à manger avec feu ouvert de +/-36m2, donnant sur un grand jardin et une terrasse, orientés au Nord, une cuisine équipée de +/-14,50m2 s'ouvrant également sur la terrasse et le jardin, une belle grande buanderie de +/-10m2 et une salle de douche avec un WC. A l'étage, un espace bureau/de détente, une chambre de +/-21,50m2, une chambre de +/-14m2, une salle de bain avec douche séparée et WC. Grenier accessible par un escalier et aménageable en 2 belles chambres supplémentaires. Au sous-sol, 2 caves voûtées, dont une avec un ancien four à pain. La maison dispose également d'une annexe (ancienne grange) aux multiples potentiels (atelier, espace de travail, appartement indépendant, profession libérale). Grande capacité de parkings extérieurs. Châssis en bois et PVC double vitrage. Chauffage au gaz. PEB : G. Electricité non conforme. Revenu cadastral : 361 euros.
Surface habitable: 256 m²
Surface terrain: 7 ares 10 ca
Greniers: 3
Jardin: oui
Chambres: 2
Salle de bain: 1
Salle de douche: 1
Parking Extérieures: 4
Cave: 1
Bureau: 1
Vidéo
Découvrez le bien en visualisant cette vidéo
VISITE VIRTUELLE
Vous voulez en voir plus ? Visitez le bien comme si vous y étiez à travers cette visite virtuelle
Localisation
Ce bien vous correspond ? Découvrez maintenant si sa localisation vous convient !
Commerces
Pharmacies
Restaurants
Boulangeries
Crèches
Parcs
Écoles
Universités
Déplacements
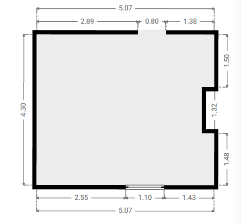
Plans intérieurs
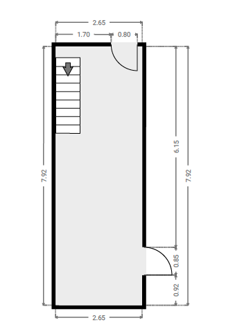
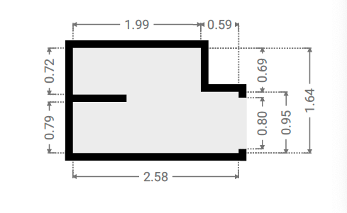
Sous-sol
SURFACE TOTALE : 32.86 m² | SURFACE HABITABLE : 32.86 m² | PIÈCE(S) : 1
1x Cave
Cave
SURFACE : 32.87 m²
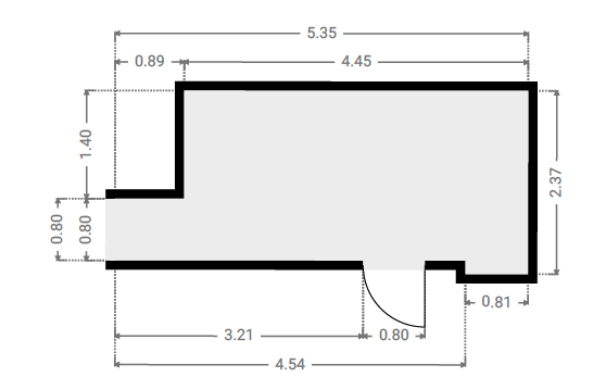
Rez-de-chaussée
SURFACE TOTALE : 99.06 m² | SURFACE HABITABLE : 78.10 m² | PIÈCE(S) : 7
1x Salle à manger / Séjour
1x Couloir
1x Cuisine
1x Hall
1x S.D.D
1x Buanderie
1x Grange
Salle à manger / Séjour
SURFACE : 38.12 m²
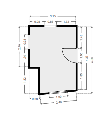
Couloir
SURFACE : 1.89 m²
Cuisine
SURFACE : 12.88 m²
Hall
SURFACE : 11.15 m²
S.D.D
SURFACE : 3.73 m²
Buanderie
SURFACE : 10.39 m²
Grange
SURFACE : 20.97 m²
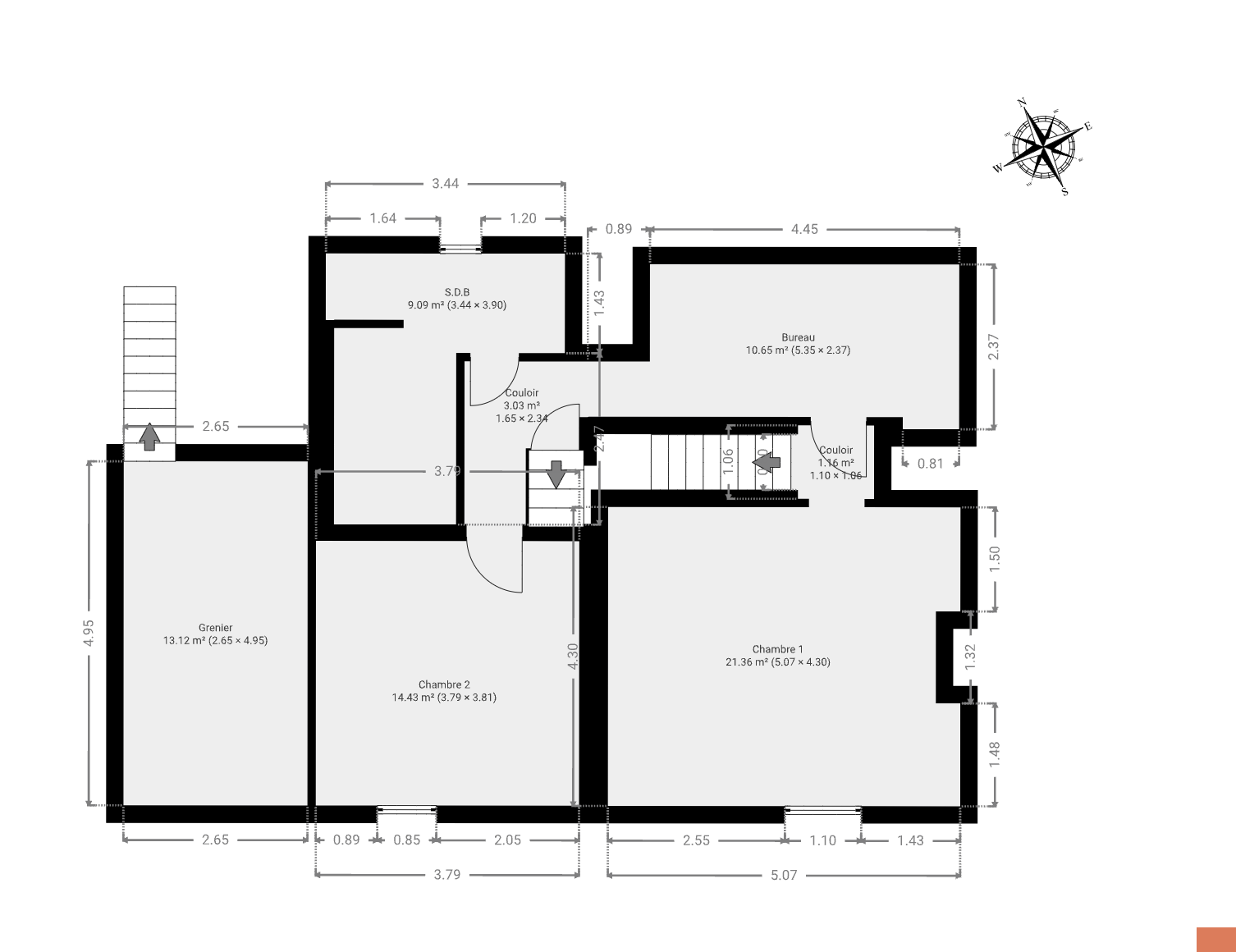
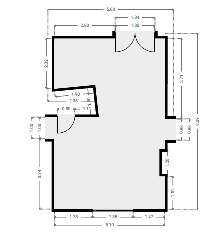
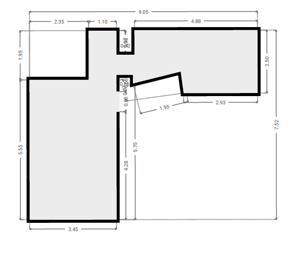
1er étage
SURFACE TOTALE : 72.8 m² | SURFACE HABITABLE : 72.8 m² | PIÈCE(S) : 7
2x Chambre(s)
2x Couloir(s)
1x Bureau
1x S.D.B
1x Grenier
Chambre 1
SURFACE : 21.36 m²
Couloir
SURFACE : 1.16 m²
Bureau
SURFACE : 10.65 m²
Chambre 2
SURFACE : 14.43 m²
Couloir
SURFACE : 3.03 m²
S.D.B
SURFACE : 9.09 m²
Grenier
SURFACE : 13.12 m²
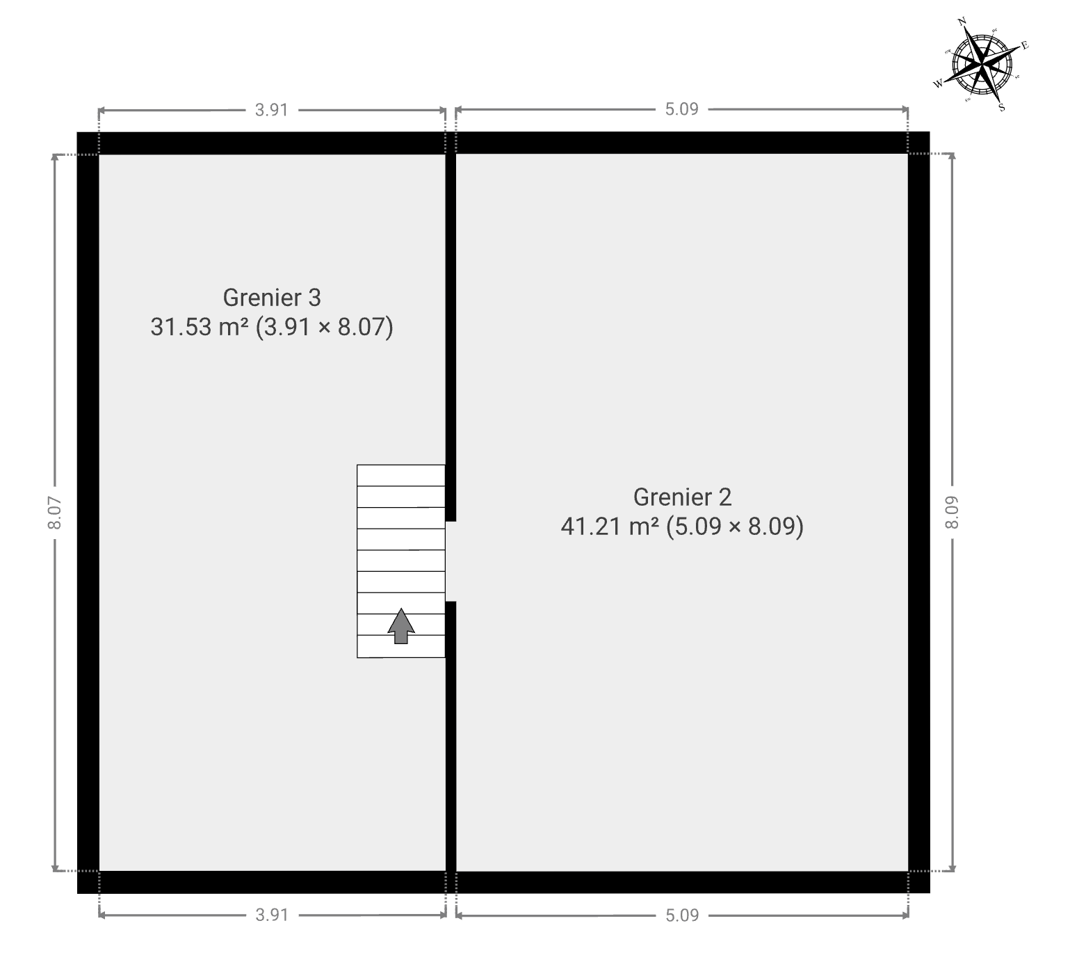
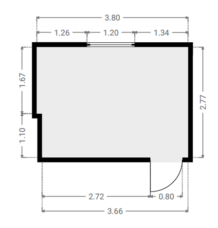
2e étage
SURFACE TOTALE : 72.72 m² | SURFACE HABITABLE : 72.72 m² | PIÈCE(S) : 2
2x Grenier(s)
Grenier 3
SURFACE : 31.54 m²
Grenier 2
SURFACE : 41.21 m²
RECHERCHE CADASTRALE
Vous souhaitez mieux connaître votre parcelle et connaître la surface dont vous jouirez en achetant ce bien, alors consulter le cadastre est nécessaire !
État des sols
La pollution du sol a un impact sur l'environnement et sur la santé, les risques d’inondation ont un impact sur votre qualité de vie… Consultez les données relatives à ce bien pour en avoir le cœur net !
ÉTAT DE LA POLLUTION DES SOLS
Aucune remarque particulière pour la parcelle A580r
Source : Cliquez-ici
Légende :
ZONE INONDABLE
Aucune remarque particulière pour la parcelle A580r
Source : Cliquez-ici
Légende :
Certificats
Informez-vous sur la performance énergétique de ce bien et assurez-vous que ses installations électriques sont bien aux normes !
PERFORMANCE ÉNERGÉTIQUE
Économe
Très énergivore
CERTIFICAT ÉLECTRIQUE
PROCES VERBAL D’EXAMEN DE CONFORMITE ET/OU DE VISITE DE CONTROLE D’UNE INSTALLATION ELECTRIQUE BASSE TENSION
La nouvelle installationNon conforme
Agent
visiteur
Xavier Lepage
Date
de certification
01/02/2023
Visite de contrôle
à effectuer avant le
01/02/2024
Audit technique
En prévoyant un budget précis des transformations et/ou réparations à opérer sur ce bien, l'expertise réalisée par un architecte neutre et indépendant vous permet de mieux évaluer la valeur de ce bien !
Score général attribué par l’auditeur *
Conseils généraux en termes de performances énergétiques du bâtiment :
Le bâtiment n'a visiblement jamais fait l'objet de rénovation en terme énergétique.
Il faudra mettre la priorité sur l'isolation du volume de la maison.
Une isolation des façades depuis l'extérieur permettrait non seulement de donner une unité à l'appareillage chaotique des maçonneries mais également de camoufler les différentes interventions de renforcement structurel proposées par la note de l'ingénieur.
Cette intervention est à combiner avec le remplacement des anciens châssis restants.
Ensuite, le remplacement et l'isolation de la toiture permettront d'améliorer nettement la performance énergétique de l'enveloppe du bâtiment.
L'application d'une isolation de sol viendra compléter l'isolation de l'enveloppe, il s'agira dès lors de procéder à l'amélioration de la partie technique.
L'installation d'une pompe à chaleur air-eau pour la fourniture et la production de chauffage et d'eau chaude sanitaire peut être envisagée dès lors que l'enveloppe est suffisamment isolée.
Un appareil de ventilation double flux sera alors nécessaire à la bonne ventilation hygiénique des espaces et une installation de panneaux solaires sur la toiture à versants de la façade avant assurera la production électrique de l'installation technique, surtout en ce qui concerne la Pompe à Chaleur.
Avis général et conseils de l'inspecteur :
Le bâtiment souffre de quelques problématiques assez importantes :
- problèmes de stabilité tels que décrits dans le rapport de stabilité de M. Posty.
- présence d'amiante en toiture et charpente affaiblie.
- présence d'humidité au rez-de-chaussée et en cave.
Ces dernières sont toutefois remédiables et le bien bénéficie d'un grand potentiel en termes d'espace et de volume.
De plus, la plupart des postes sujets à rénovation sont éligibles à des primes à la rénovation, à condition de s'assurer du passage d'un auditeur logement.
DISCLAIMER
La conclusion et les conseils donnés sont le résultat d’une inspection indépendante, réalisée par un architecte expérimenté et agréé par ImmoPass.
Les éventuelles estimations budgétaires contenues dans ce rapport sont données à titre indicatif et ne constituent pas un devis. Nous recommandons de réaliser un Cahier des Charges sur tout ou partie des travaux à entreprendre et une analyse des devis reçus. Les estimations sont exprimées hors taxes.
L’inspection a été réalisée de manière non-destructive, de manière visuelle uniquement. Ce rapport ne peut donc garantir l’absence totale de vices techniques cachés.
75 %
Zone inondable, zone acoustique, plan de secteurs, permis d’urbanisme ...
50 %
Certification énergétique, conformité électrique, cuve à mazout, sol, ...
69 %
Sécurité, aménagements, structures extérieures, entretien végétation, ...
40 %
Humidité généralisée, présence d’amiante, mérule, termites ...
58 %
Toiture, murs extérieurs, châssis et portes, évacuation eau de pluie, ...
86 %
Défauts structurels, humidité localisée, salubrité, état de fonctionnement..
60 %
Halls et escaliers, caves, combles et grenier, locaux techniques, ...
75 %
Système de chauffage, eau chaude sanitaire, électricité, entretiens techniques, ...
L'habitation se trouve en zone de 50 à 54 dB (zone calme) d'influence de la E420/A54
(source: Walonmap)
En bordure de zone d'aléa moyen de ""débordement""
(source: Walonmap)
Score PEB G(523)
Résultat en corrélation avec l'âge du bâtiment, ses techniques et l'absence d'isolation particulière.
certificat électrique non conforme
L'installation de gaz est utilisée pour le système de chauffage.
La chaudière gaz atmosphérique était en fonctionnement lors de la visite.
La maison se trouve en contre-haut de la chaussée et l'accès est possible soit depuis la Rue des Brasseurs par un escalier de 8 marches assez raides en pierre, soit depuis l'aire de stationnement de véhicule le long de la Rue de Thiméon par un escalier plus praticable de 11 marches habillées de bankirai.
L'accès aux parties extérieures de la propriété est libre et non délimitée par des barrières ou autre type d'éléments de clôture.
Les trottoirs et la route sont en très bon état.
La structure des murs de reprises de terre qui délimitent la zone de terre-plein en façade avant semblent poser un problème (voir note de stabilité suite à la visite du 08-12-2022 de l'ingénieur S. Posty)
La route de Thiméon et l'autoroute A54 peuvent également occasionner une gène éventuelle lors de trafic dense.
La présence de la membrane platon (membrane à pastilles servant à la protection d'étanchéité enterrée) en pied de mur de la façade arrière semble indiqué qu'elle ait été sujette à des interventions d'amélioration de l'étanchéité et du drainage.
Aucun cimentage ou étanchéité particulière n'est pourtant observable.
La note de M. Posty, expert en stabilité, indique en page 7 que cette intervention aurait aidé à résoudre le problème de présence d'humidité en cave. (voir point 3.05 concernant ce sujet)
Les marches en pierre de l'entrée Rue des Brasseurs sont en bon état.
Les revêtements de sol en gravier et en dalles béton 30*30 sont marqués par le temps et l'entrée en revêtement de bankirai est en relativement bon état bien qu'un entretien sera nécessaire à court terme.
La structure des murs de reprises de terre qui délimitent la zone de terre-plein en façade avant semble poser un problème (voir note de stabilité suite à la visite du 08-12-2022 de l'ingénieur S. Posty) et certaines pierre se sont désolidarisées de l'appareillage du mur à l'entrée côté Rue des Brasseurs.
Le mur type stépoc de reprise des terre sur la zone de stationnement en contrebas semble en parfait état.
Un parterre de genèvrier rampant se trouve devant l'entrée en façade avant et une haie de charmes côté parterre publique limite la propriété.
Le jardin présente majoritairement une zone engazonnée.
La souche d'un pommier est encore présente et pourrait être éliminée, un acacias et un érable sont présents à l'arrière.
Un cyprès assez massif s'est développé en bordure de la façade de l'extension cuisine et devra être taillé afin qu'il ne s'étende pas outre mesure.
Le jardin est assez bien entretenu.
Un lierre a établi ses racines dans l'angle de la zone de stationnement.
Il faudra s'assurer qu'il ne mette pas en péril la bonne stabilité de ce mur de reprise de terre qui à son tour assure la bonne stabilité des terres sur lesquelles repose une partie des fondations de la maison.
Le revêtement en dalles béton de la terrasse en contact avec l'extension cuisine pourrait profiter d'un nettoyage intensif voire du remplacement de cette surface.
Le revêtement de la toiture du corps principal est en ardoise d'amiante.
Pour cette surface de toiture, l'enlèvement et évacuation des ardoises amiantées sont estimés à 4600€.
Aucune présence de mérule observée.
Les éléments en bois de la charpente de toiture sont piqués en de nombreux endroits.
Un remplacement des éléments ligneux de charpente de toiture semble judicieux et pourra être effectuer en concomitance avec l'enlèvement des ardoises d'amiante évoquée au point 3.01
Le remplacement des tuyauteries métalliques (sans doute en plomb) par des tuyauteries en polyéthylène a été effectué depuis le compteur jusqu'à l'entrée de la cave.
Les circuits encastrés n'ont pas pu être vérifiés.
Au rez-de-chaussée, les pieds de mur en contact avec les caves et la terre sont touchés par de l'humidité ascensionnelle.
Les zones de cave sont également fortement humides.
Des injections en bas des murs des espaces touchés au rez-de-chaussée devraient améliorer significativement la situation.
Un chantier de cuvelage des éléments en cave pourra être envisagé afin d'assainir la cave, cette technique toutefois empêche l'eau de pénétrer dans les espaces mais n'élimine pas l'humidité qui se trouve dans les éléments de maçonneries.
De plus, et vu les problèmes structurels du bâtiment évoqués dans la note de l'expert stabilité, les interventions de cuvelage pourraient s'abimer prématurément en cas de mouvement de la maison et compromettre son efficacité.
Les murs de façade avant et arrière présentent des défauts d'aplomb, bombage et courbures assez importants.
Plus d'informations et détails, voir note de stabilité de M Posty du 08-12-2022.
Les murs de façade présentent des fissures assez importantes.
Plus d'informations et détails, voir note de stabilité de M Posty du 08-12-2022.
Les façades sont en briques pleines sur une épaisseur d'une quarantaine de centimètres et ont plus de 200 ans.
Elles présentent quelques modifications et transformations dont des fermetures de baies, des ouvertures de porte, des agrandissements, des rehausse de mur.
En général, le revêtement semble avoir gardé son intégrité même si son appareillage garde les traces des différentes transformations dans le temps.
Des fissures se sont toutefois déclarées en différents endroits de la façade et il serait judicieux pour en garder la pérennité d'appliquer les recommandations de la note de stabilité.
Les éléments en bois des charpentes montrent certains signes d'affaiblissement surtout en ce qui concerne la partie de droite.
Certains chevrons et pannes semblent piqués et un remplacement serait judicieux.
Une estimation du remplacement de cette charpente (méthode non traditionnelle avec des éléments standardisés) s'élève à 23500€.
Bien qu'il ne soit pas récent et qu'il ne soit pas équipé d'une membrane pare-pluie, le revêtement de la toiture principale semble avoir gardé une certaine étanchéité.
Il est toutefois constitué d'éléments en amiante qui devront à terme être évacués.
Le chantier de pose d'une nouvelle tuile de toiture avec pare-pluie est estimé à 18000€.
Les mêmes remarques qu'au point précédent s'appliquent.
La gouttière en façade arrière présente un affaissement sur le dernier mètre avant la descente d'eau de pluie.
Les eaux de pluie du versant avant de la toiture rejoignent la descente de récolte des eaux de la toiture de l'extension cuisine.
Bien qu'obsolète, l'ensemble des dispositifs a l'air fonctionnel.
Le coin arrière droite de la façade a souffert de la mauvaise évacuation des eaux de pluie.
La peinture de la brique sur toute cette zone y est d'ailleurs complètement délavée.
Le remplacement du système d'évacuation des eaux coûtera environ 4500€
La plupart des châssis des zones de vie ont été remplacés récemment par des châssis PVC dont le Ug 1,1 du vitrage correspond aux exigences actuelles en terme de performance énergétique.
La partie gauche de grange
Certains châssis en bois double vitrage sont encore en état acceptable mais seront à terme à remplacer
Il s'agit des châssis en façade arrière de la buanderie, de la cuisine, de la salle de bain du 1er étage et de la pièce pour y arriver.
En façade avant il s'agit du châssis de la cuisine et celui de la chambre de gauche du 1er étage.
Le budget pour remplacer ces derniers châssis s'éleve à 5000€.
La partie grange non chauffée est également équipée d'huisseries non performantes.
La porte arrière vers la grange n'est pas entièrement sécurisée.
Les autres portes semblent en bon état et assez sécurisées.
Mis à part les murs de la chambre du 1er étage à gauche qui ont été rectifiés par doublage intérieur, les murs ne sont pas d'aplomb et certains déformations sont visibles.
Voir également note de stabilité
Les voûtes en briques des plafonds du rez semblent manquer de cohésion par endroit surtout à l'entrée.
Un resserrage devra être effectué afin d'assurer la pérennité des éléments.
Voir également note de stabilité.
La buanderie présente une forte présence d'humidité tel qu'évoqué au point 3.05 sans toutefois en menacer la salubrité.
La hauteur sous plafond de la partie droite du 1er étage est de moins de 2 mètres.
Voir point 3.05 concernant l'humidité des pieds de mur du rez-de-chaussée.
Un insert au gaz est présent dans l'espace de salle à manger, il semble inutilisé depuis longtemps.
Avant toute mise en fonction, il est recommandé d'en effectuer un entretien complet et un ramonage de la cheminée.
Un faux-plafond empêche l'observation des éléments de la charpente et un lambris contre les murs ne permettent pas de voir l'état des maçonneries.
Les équipements de la cuisine sont fonctionnels et semblent avoir quelques années.
La taque de cuisson est récemment neuve.
Une tache d'humidité se trouve au bas de la fenêtre de la chambre de droite en façade avant du 1er étage.
Cette tache est sèche et l'infiltration semble avoir été résolue lors de la pose de la nouvelle huisserie.
Les salles de douche ont visiblement fait l'objet de chantier assez récents et sont en parfait état.
Aucune ventilation dédiée n'est présente dans les salles d'eau.
Les équipements sont en excellent état.
Les escaliers en bois du rez vers le 1er sont abimés et ne sont pas équipés de main courante; le tirant métallique qui retient les façades avant et arrière traverse l'espace de cage d'escalier, cet élément en cas de travaux devra être maintenu.
Un nouvel escalier rejoint vers les espaces de combles, l'installation d'une rambarde serait judicieuse afin d'assurer la protection contre les chutes au niveau de la trémie depuis le grenier.
Voir point 3.03 concernant les piqûres dans les structures en bois de la charpente.
Le plancher des combles en partie droite de la façade avant couvre partiellement sur le système de claveaux et voussettes briques et n'est pas aisément praticable, à l'arrière, un panneautage permet l'accès malgré des zones non couvertes.
La partie de gauche est couverte de panneau et praticable.
voir point 3.05
La ventilation de la cave devra être assurée afin de créer un courant d'air qui permettra un flux continu de l'air.
Pour se faire, le soupirail en façade avant ne suffit pas, il serait utile d'ouvrir également une entrée d'air en façade arrière ou, le cas échéant, de permettre l'extraction de l'air vers une colonne verticale qui rejoindrait la toiture.
Les enduits des murs et voûtes sont en très mauvais état, cela ne semble cependant pas en avoir affecté la structure.
Il s'agit de la partie derrière la porte de grange qui est resté dans son état d'origine mis à part la construction de la plateforme de mezzanine.
La porte de grange n'est pas actionnable, la porte vers le jardin est composée d'une porte en bois avec un simple vitrage sur 40% de sa surface.
L'entretien de la chaudière a été effectuée en datée du 29-11-2022 (suivant facture d'intervention)
La chaudière date de 1994 selon plaquette signalétique à l'intérieur de la jaquette.
Cette chaudière atmosphérique gaz était en fonctionnement lors de la visite; la veilleuse était allumée.
Elle dessert les espaces du rez-de-chaussée et les 2 pièces de droite du 1er étage, les tuyaux de chauffage de la zone d'entrée devront être remplacés afin d'éviter que les parties oxydées n'occasionnent un dégât des eaux; le reste de l'installation semble être en bon état.
Les espaces de gauche (chambre et sdd) du 1er étage sont chauffés par des convecteurs électriques qui étaient fonctionnelles lors de la visite.
Un boiler d'eau chaude sanitaire se trouve derrière la chaudière dans la partie grange et alimente les sdd des rez et 1er étage.
La cuisine possède son propre ballon d'eau chaude.
Le compteur d'eau a été remplacé récemment.
Système d'égouttage présent, un sondage de éléments enfouis est à prévoie selon le rapport de l'expert en stabilité.
Les compteurs sont dans une armoire dans l'entrée, les différentiels semblent en bon état.
Certaines interventions semblent avoir été effectuées sans avoir pour autant été clôturées.
DATA ROOM
Nous avons mis tous les documents importants dans la date room, n’hésitez pas à télécharger ce dont vous avez besoin !
Nous avons mis tous les documents importants dans la date room, n’hésitez pas à télécharger ce dont vous avez besoin !
Besoin de crédit
Maintenant que vous êtes sûrs d’avoir fait le bon choix, calculez la valeur totale de cette acquisition (valeur du bien et frais annexes) et estimez vos besoins en crédit !
Simulation de crédit
| Prix d'achat | € |
| Rénovation | € |
| Rénovation HTVA | {{ calculeData.renovationHTVA | number:2 }} € |
| TVA | {{ calculeData.tva | number:2 }} € |
| Fonds propres | € |
| Acompte dû (disponible au compromis de vente) | {{ calculeData.prix * 0.1 | number:2 }} € |
| Reste des liquidités (disponible à l'acte) | {{ calculeData.avance | number:2 }} € |
| Crédit pont | {{ calculeData.creditPont | number:2 }} € |
| Prix de vente de votre bien existant | € |
| Solde du crédit existant | € |
| Frais d'acte d'achat | {{ calculeData.droit + calculeData.fraisNotaire | number:2 }} € |
| Droits d'enregistrement | {{ calculeData.droit | number:2 }} € |
|
Abattement
Suis-je éligible à une réduction des droits d’enregistrement ? |
|
| Frais de notaire | {{ calculeData.fraisNotaire | number:2 }} € |
| Autres frais | {{ calculeData.inscription + calculeData.fraisDossier + calculeData.autreFrais | number:2 }} € |
| Frais liés à l'acte hypothécaire | {{ calculeData.inscription | number:2 }} € |
| Frais de dossier et expertise bancaire | {{ calculeData.fraisDossier | number:2 }} € |
| Autres frais | € |
| Montant du crédit | {{ calculeData.montantCredit | number:2 }} € | |
La présente simulation se base sur un taux d’intérêt du 05/10/2023. Ce calcul est indicatif et sujet à changement.
Choix du type de crédit
| Taux | Type | CAP | Mensualité | Mensualité Min | Mensualité Max | |
|---|---|---|---|---|---|---|
| {{ tx.banque }} {{ $index+1 }} | {{ tx.taux | number:2 }}% | {{ tx.type }} | -{{ tx.capNeg }}%/+{{ tx.capPos }}% | {{ tx.mens | number:2 }}€ | {{ tx.min | number:2 }}€ | {{ tx.max | number:2 }}€ |
| Taux | Type | CAP | Mensualité | Mensualité Min | Mensualité Max | |
|---|---|---|---|---|---|---|
| {{ tx.banque }} {{ $index+1 }} | {{ tx.taux | number:2 }}% | {{ tx.type }} | -{{ tx.capNeg }}%/+{{ tx.capPos }}% | {{ tx.mens | number:2 }}€ | {{ tx.min | number:2 }}€ | {{ tx.max | number:2 }}€ |
| Taux | Type | CAP | Mensualité | Mensualité Min | Mensualité Max | |
|---|---|---|---|---|---|---|
| {{ tx.banque }} {{ $index+1 }} | {{ tx.taux | number:2 }}% | {{ tx.type }} | -{{ tx.capNeg }}%/+{{ tx.capPos }}% | {{ tx.mens | number:2 }}€ | {{ tx.min | number:2 }}€ | {{ tx.max | number:2 }}€ |
Rentabilité
Cout total de l’acquisition
| Prix d'achat | {{ calculeData.prix | number:2 }} € |
| Rénovation | + {{ calculeData.prixTransRenovation | number:2 }} € |
| Frais | + {{ calculeData.frais | number:2 }} € |
| Coût total | + {{ calculeData.frais + calculeData.prixTransRenovation + calculeData.prix | number:2 }} € |
| Fonds propres + crédit pont | {{ calculeData.totalFP+calculeData.creditPont | number:2 }} € |
| Montant du crédit | {{ calculeData.montantCredit | number:2 }} € |
| Coût total | + {{ calculeData.creditPont + calculeData.totalFP + calculeData.montantCredit | number:2 }} € |
Rentabilité sur actifs
Durée de détention année(s)
Gain réel {{ calculeData.gainReel | number:0 }} €
Rendement sur actif {{ calculeData.rendementSurActif | number:2 }} %
Revenus
| Revenu locatif annuel Brut | € |
| Charge annuelle {{ calculeData.pourcentageCharge | number:2 }}% | {{ calculeData.chargeLocatifAnnuel | number:2 }} € |
| Précompte immobilier | {{ calculeData.precomteImmo | number:2 }} € |
| Autre charge annuelle | € |
| Revenu locatif annuel net | {{ calculeData.revenuLocatifAnnuelNet | number:2 }} € |
| Total revenu locatif après {{ calculeData.dureeDetention }} année(s) tenant compte d'une inflation de % |
{{ calculeData.totalRevenuLocatif | number:2 }} € |
| Plus-value latente | {{ calculeData.pluvalueLatente | number:2 }} % |
| Plus-value du bien après {{calculeData.dureeDetention}} année(s) | {{ calculeData.pluvalueBien | number:2 }} € |
| Total revenu locatif après {{ calculeData.dureeDetention }} année(s) | {{ calculeData.totalRevenuLocatif | number:2 }} € |
| Gain brut sur le prix de base après {{ calculeData.dureeDetention }} année(s) | +{{ calculeData.gainBrut | number:2 }} € |
Charges
| Durée du crédit | {{ calculeData.duree | number:2 }} ans |
| Taux | {{ calculeData.taux | number:2 }} % |
| Mensualité | {{ calculeData.mensualite | number:2 }} € |
| Total interêts après {{calculeData.dureeDetention}} année(s) | {{ calculeData.totalInteret | number:2 }} € |
| Total frais | {{ calculeData.frais | number:2 }} € |
| Total | {{ calculeData.InteretFrais | number:2 }} € |
Gain réel
Rendement sur actif
Cash flow
| Année | Coût | Revenu locatif | Gain |
|---|---|---|---|
| {{ $index }} | {{ ch.payment | number:2 }} € | {{ ch.revenuLocatif | number:2 }} € | {{ - ch.fondPropre | number:2 }} € |
Av. Louise 433 Louizalaan 1050 Bruxelles - Brussel
Drève Richelle, 96 - 1410 Waterloo