Suis-je éligible à une réduction des droits d’enregistrement ?
Bois Chapelain 15
PRIX : 420 000 €
Type: Maison | Région: Wallonie | Commune: Orbais
Dans le joli village d'Orbais, dans un environnement 'Campagne', By The Way vous présente cette charmante villa (Type de construction : OKAL), d'une superficie net habitable de +/- 150 m2 sise sur un terrain de 9 ares 06 ca. Elle se compose comme suit : Au rez-de-chaussée, un hall d'entrée, une cuisine équipée de +/- 9m2, une salle à manger de +/-12m2, un vaste séjour avec feu ouvert de +/- 28,50 m2, s'ouvrant sur une belle terrasse et un grand jardin, joliment arboré orientés au Sud-Est, un hall de nuit, une chambre de +/- 15m2, une chambre de +/- 10m2 et une salle de bain avec WC de +/- 6m2. A l'étage, un hall de nuit, 3 chambres de +/- 13m2, 15m2 et 19m2, une salle d'eau avec un évier et un WC (possibilité de l'aménager en une 2ème salle de bain). Grenier de rangement. Au sous-sol, un garage 2 voitures (porte sectionnelle automatique) avec coin buanderie, cave. Panneaux photovoltaïques. Châssis en PVC double vitrage. Volets au rez-de-chaussée. Chauffage au mazout (5000L). Chaudière Viessmann (2017) Citerne d'eau de pluie. Chalet de jardin. 3 emplacements de parking.
Surface habitable: 212 m²
Surface terrain: 906 M²
Chambres: 5
Salle de bain: 1
Garage: 2 voitures
Cave: 1
Parking: 3
Jardin: Orientés au Sud-Est
Grenier :1
Vidéo
Découvrez le bien en visualisant cette vidéo
VISITE VIRTUELLE
Vous voulez en voir plus ? Visitez le bien comme si vous y étiez à travers cette visite virtuelle
Localisation
Ce bien vous correspond ? Découvrez maintenant si sa localisation vous convient !
Commerces
Pharmacies
Restaurants
Boulangeries
Crèches
Parcs
Écoles
Universités
Déplacements
Plans intérieurs
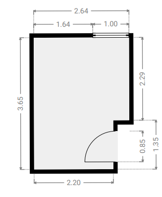
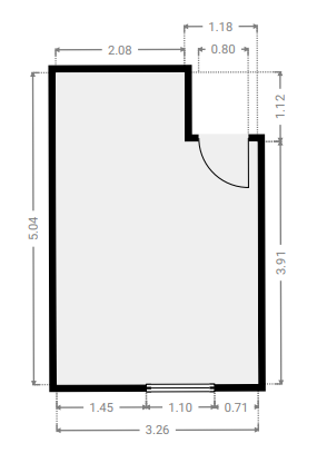
Sous-sol
SURFACE TOTALE : 61.98 m² | SURFACE HABITABLE : 61.98 m² | PIÈCE(S) : 3
1x Cave
1x Garage
1x Chaufferie
garage
SURFACE : 34.4 m²
Chaufferie
SURFACE : 5.12 m²
Cave
SURFACE : 22.49 m²
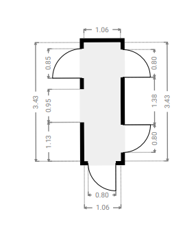
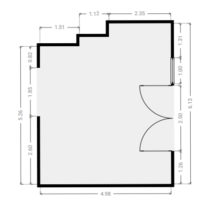
Rez-de-chaussée
SURFACE TOTALE : 90.13 m² | SURFACE HABITABLE : 90.1 m² | PIÈCE(S) : 8
2x Chambre(s)
1x Haull de nuit
1x S.D.B
1x Salle à manger
1x Cuisine
1x Hall d'entrée
1x Séjour
Chambre 1
SURFACE : 15.2 m²
Haull de nuit
SURFACE : 4.88 m²
S.D.B
SURFACE : 6.24 m²
Chambre 2
SURFACE : 10.25 m²
Salle à manger
SURFACE : 11.81 m²
Cuisine
SURFACE : 8.71 m²
Hall d'entrée
SURFACE : 4.42 m²
Séjour
SURFACE : 28.66 m²
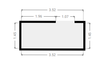
1er étage
SURFACE TOTALE : 59.94 m² | SURFACE HABITABLE : 59.94 m² | PIÈCE(S) : 5
1x Salle d'eau
1x Couloir
3x Chambre(s)
Salle d'eau
SURFACE : 9.05 m²
Couloir
SURFACE : 3.63 m²
Chambre 3
SURFACE : 13.03 m²
Chambre 5
SURFACE : 19.18 m²
Chambre 4
SURFACE : 15.08 m²
RECHERCHE CADASTRALE
Vous souhaitez mieux connaître votre parcelle et connaître la surface dont vous jouirez en achetant ce bien, alors consulter le cadastre est nécessaire !
Surface : 987.87 m²
Parcelle : B203e
Certificats
Informez-vous sur la performance énergétique de ce bien et assurez-vous que ses installations électriques sont bien aux normes !
PERFORMANCE ÉNERGÉTIQUE
Économe
Très énergivore
CERTIFICAT ÉLECTRIQUE
PROCES VERBAL D’EXAMEN DE CONFORMITE ET/OU DE VISITE DE CONTROLE D’UNE INSTALLATION ELECTRIQUE BASSE TENSION
La nouvelle installationNon conforme
Agent
visiteur
Julien Terorde
Date
de certification
15/11/2022
Visite de contrôle
à effectuer avant le
18 mois prenant cours le jour de l'acte de vente
PANNEAUX PHOTOVOLTAIQUES
PROCES VERBAL D’EXAMEN DE CONFORMITE ET/OU DE VISITE DE CONTROLE D’UNE INSTALLATION ELECTRIQUE BASSE TENSION
La nouvelle installationConforme
Agent
visiteur
VAST(3487)
Date
de certification
29/05/2016
Visite de contrôle
à effectuer avant le
29/05/2043
Audit technique
En prévoyant un budget précis des transformations et/ou réparations à opérer sur ce bien, l'expertise réalisée par un architecte neutre et indépendant vous permet de mieux évaluer la valeur de ce bien !
Score général attribué par l’auditeur *
Conseils généraux en termes de performances énergétiques du bâtiment :
Suivant le certificat PEB analysé, la maison est assez correctement isolée au regard des pratiques de l'époque de sa construction de 1977.
Un renforcement de cette isolation devra être mis en place pour arriver aux exigences actuelles, une isolation en fibres naturelles (type ouate de cellulose) sera préférable afin de déphaser l'éventuel surchauffe de l'été et palier le manque d'inertie thermique de la structure bois.
Vu les panneaux photovoltaïques en fonction, une installation de Pompe à Chaleur est à envisager pour venir en remplacement du système actuelle au mazout pour le chauffage et l'eau chaude sanitaire dont certaines conduites ne sont pas actuellement isolées par ailleurs.
Comme précédemment indiqué, les éclairages pourraient être remplacés par du LED.
Avis général et conseils de l'inspecteur :
La maison est en excellent état, dans un cadre verdoyant et bien localisée, à quelques enjambées d'une voie de communication importante.
Malgré son année de construction peu récente, l'isolation de la maison est relativement bonne, les installations techniques (chaudière et photovoltaïques) sont récentes.
La maison sera sans trop de difficulté modernisable dans ses mobiliers, par exemple pour la cuisine ou encore la salle d'eau du 1er étage facilement transformable en salle de douche.
La mise en conformité électrique devra également être respecté.
Le point le plus délicat reste la présence d'amiante dans les panneaux de parement de la façade du rez-de-chaussée.
Si un chantier de renforcement d'isolation de l'enveloppe devait avoir lieu, le désamiantage sera à programmer (en remplaçant par un bardage plus naturel en bois par exemple, suivant les directive de l'urbanisme de la commune et du Codt) en concomitance ainsi que le remplacement des quelques châssis qui restent d'époque.
L'isolation par le bas du plancher vers la cave rendrait également la maison plus efficace thermiquement.
La réalisation de la connexion de la citerne d'eau de pluie à la maison permettrait des économies en eau non négligeable.
DISCLAIMER
La conclusion et les conseils donnés sont le résultat d’une inspection indépendante, réalisée par un architecte expérimenté et agréé par ImmoPass.
Les éventuelles estimations budgétaires contenues dans ce rapport sont données à titre indicatif et ne constituent pas un devis. Nous recommandons de réaliser un Cahier des Charges sur tout ou partie des travaux à entreprendre et une analyse des devis reçus. Les estimations sont exprimées hors taxes.
L’inspection a été réalisée de manière non-destructive, de manière visuelle uniquement. Ce rapport ne peut donc garantir l’absence totale de vices techniques cachés.
100 %
Zone inondable, zone acoustique, plan de secteurs, permis d’urbanisme ...
75 %
Certification énergétique, conformité électrique, cuve à mazout, sol, ...
98 %
Sécurité, aménagements, structures extérieures, entretien végétation, ...
80 %
Humidité généralisée, présence d’amiante, mérule, termites ...
95 %
Toiture, murs extérieurs, châssis et portes, évacuation eau de pluie, ...
92 %
Défauts structurels, humidité localisée, salubrité, état de fonctionnement..
96 %
Halls et escaliers, caves, combles et grenier, locaux techniques, ...
88 %
Système de chauffage, eau chaude sanitaire, électricité, entretiens techniques, ...
La proximité de l'autoroute place le terrain en zone de peu de pollution sonore.
Le terrain ne se trouve pas en zone d'aléas d'inondation.
Certificat valide jusqu'en 2032 et label C.
Le bâtiment n'est pas en conformité électrique.
Pas d'installation gaz présente.
Aucun certificat de Qualité des sols disponible.
L'accès à la maison est assuré par une allée jusqu'à la porte d'entrée, la descente de garage possède des dalles anti-glisse et le côté de la maison est dallé en pierre sur une quarantaine de centimètres.
L'accès au jardin arrière est possible par des barrières basse des deux côtés de la maison dans le plan de la façade arrière.
Le trottoir s'arrête dans l'axe de l'entrée de la maison qui clôture la zone résidentiel.
La maison est bordée d'un champs sur sa gauche, les moments de labour, de récolte et d'épandage peuvent éventuellement être plus problématiques et bruyants.
Les eaux de ruissellement vers l'entrée de garage sont arrêtées par un caniveau en bas de la descente de même largeur que la porte de garage.
Les eaux de pluie des toitures sont récoltées vers une citerne.
Cette dernière n'est pas reliée à la maison.
Les allées sont propres, dégagées et exemptes de végétations,
Les barrières basses en bois d'accès au jardin latéralement à la maison sont plutôt qualifiées de dissuasives.
Une installation plus sécurisée pourrait être mise en place.
Le jardin est très bien entretenu.
L'entrée est bien fournie de végétation permettant d'ailleurs une barrière naturelle pour l'accès sur la gauche de la maison.
Une série d'arbres palissés se trouve en bordure droite de la propriété, juste devant la haie de charme.
Un grand arbre se trouve au milieu arrière du jardin, un parterre d'herbes aromatiques se trouve en fond de parcelle.
Le grand arbre se trouve à bonne distance de la construction.
Pas d'élément remarquable protégé selon site WAlonMap
Aucun problème, la terrasse est en pierre bleue et en très bon état.
L'abri de jardin en bois est fonctionnel, en ordre et en très bon état.
Surface approximative 4m².
Les revêtements peints en blanc sur toutes les façades extérieures sont composés d'amiante.
Un panneau en cave contre l'escalier vers la maison est également en amiante, installé là à l'époque pour ses propriétés ignifuges.
Aucune trace de mérule suspectée ni observée.
Aucune trace de termite observée.
Aucune trace de plomb suspectée.
Aucune trace d'humidité observée.
Aucune déformation du bâtiment observée.
Aucune fissure au bâtiment observée.
Mis à part la présence d'amiante dans la composiiton des panneaux de parements du rez-de-chaussée, le pignon droit à l'étage a récemment été remplacé et surisolé par l'extérieur.
(preuve à l'appui: facture Dohet Rénove du 03-04-2014, isolation: installation de 8cm de styrodur)
La toiture ne présente aucune déformation visible.
Le revêtement de toiture est en excellent état.
Les éléments de toiture sont en très bon état.
Présence d'une citerne d'eau de pluie en partie gauche de la maison
Selon la propriétaire, la taque de l'accès à la citerne serait à 80 cm du niveau actuel de la terre.
Cette citerne est fonctionnelle mais n'est pas reliée à la maison pour l'alimenter en eau de pluie.
A l'exception de châssis de porte d'entrée, de cuisine et de la chambre arrière gauche, tous les châssis ont été remplacés: 4 châssis en 2006, 2 en 2018 (avec Ug 1,0) et le reste en 2015 (avec Ug 1,0) , la porte de garage en 2017 (avec Uw 1,5).
La porte d'entrée date de 1977 est en métal et le double vitrage est armé.
Cette porte pourrait faire l'objet d'un remplacement.
Les portes vitrées du salon à l'arrière sont munies de béquilles avec serrure.
Les murs et plafond intérieurs sont en excellent état sans déformation.
Aucune fissure importante n'a été observée dans les murs et plafond.
L'installation de détecteur incendie devra être effectuée.
Pour rappel, ce point doit respecter la décision de l'AGW du 21 octobre 2004 entrée en vigueur le 1er juillet 2006.
la fenêtre est en bois Double Vitrage de 1977, encore en bon état
La cuisine est en bon état général, une modernisation du mobilier peut être à prévoir.
Voir point châssis précédent: chambre arrière gauche, châssis en bois double vitrage de 1977.
Une extraction d'air efficace est à prévoir.
Une extraction d'air efficace est à prévoir.
La salle d'eau du 1er étage n'est pas équipée de baignoire ou de douche.
L'installation de cette salle de bain serait un plus pour la maison.
L'escalier en bois est en excellent état.
Dans les combles ont été aménagées trois chambres et une salle d'eau.
Une trappe d'accès à la sous-pente montre la présence d'isolation sur les cloisons vers les pièces.
Une fenêtre et la porte de garage assure la ventilation, sur la droite le bâtiment se trouve sur un vide ventilé - accessible depuis l'espace cave - dont les grilles de ventilation sont visible en soubassement.
La porte de garage a été remplacée récemment et est isolée (Uw 1,5)
Présence d'un panneau composé d'amiante fixé contre l'escalier.
La date indiquée sur la plaquette de la chaudière est 2017, son installation est assez récente et le système semble en excellent état.
Un thermostat se trouve au salon et une sonde extérieure jouxte la porte de garage, tous les radiateurs sont munis de vannes thermostatiques.
Un âtre est présent au salon permettant également un apport plus ponctuel et d'ambiance. (aucune observation n'a été faite concernant l'état de la cheminée)
L'eau chaude sanitaire est fournie par la chaudière avec un réservoir de 130 litres incorporé à la jaquette de l'appareil.
La maison est reliée à une fosse septique, le quartier a été récemment relié aux système d'égoûttage public.
Malgré le contrôle non conforme de l'installation, l'ensemble de l'installation semble être fonctionnel dès lors que la propriétaire actuelle en fait usage quotidiennement.
L'ensemble pourrait profiter du remplacement des éclairages par du LED dans un souci environnementale.
L'installation photovoltaïque est en fonction depuis 2018 pour un total de 14 panneaux de 4,48 kWc.
Un décompte du fournisseur d'énergie pour la période du 18-06-2021 au 29-05-2022 fait état d'un décompte à faveur de l'installation de près de 300€.
DATA ROOM
Nous avons mis tous les documents importants dans la date room, n’hésitez pas à télécharger ce dont vous avez besoin !
Nous avons mis tous les documents importants dans la date room, n’hésitez pas à télécharger ce dont vous avez besoin !
Besoin de crédit
Maintenant que vous êtes sûrs d’avoir fait le bon choix, calculez la valeur totale de cette acquisition (valeur du bien et frais annexes) et estimez vos besoins en crédit !
Simulation de crédit
| Prix d'achat | € |
| Rénovation | € |
| Rénovation HTVA | {{ calculeData.renovationHTVA | number:2 }} € |
| TVA | {{ calculeData.tva | number:2 }} € |
| Fonds propres | € |
| Acompte dû (disponible au compromis de vente) | {{ calculeData.prix * 0.1 | number:2 }} € |
| Reste des liquidités (disponible à l'acte) | {{ calculeData.avance | number:2 }} € |
| Crédit pont | {{ calculeData.creditPont | number:2 }} € |
| Prix de vente de votre bien existant | € |
| Solde du crédit existant | € |
| Frais d'acte d'achat | {{ calculeData.droit + calculeData.fraisNotaire | number:2 }} € |
| Droits d'enregistrement | {{ calculeData.droit | number:2 }} € |
|
Abattement
Suis-je éligible à une réduction des droits d’enregistrement ? |
|
| Frais de notaire | {{ calculeData.fraisNotaire | number:2 }} € |
| Autres frais | {{ calculeData.inscription + calculeData.fraisDossier + calculeData.autreFrais | number:2 }} € |
| Frais liés à l'acte hypothécaire | {{ calculeData.inscription | number:2 }} € |
| Frais de dossier et expertise bancaire | {{ calculeData.fraisDossier | number:2 }} € |
| Autres frais | € |
| Montant du crédit | {{ calculeData.montantCredit | number:2 }} € | |
La présente simulation se base sur un taux d’intérêt du 19/06/2023. Ce calcul est indicatif et sujet à changement.
Choix du type de crédit
| Taux | Type | CAP | Mensualité | Mensualité Min | Mensualité Max | |
|---|---|---|---|---|---|---|
| {{ tx.banque }} {{ $index+1 }} | {{ tx.taux | number:2 }}% | {{ tx.type }} | -{{ tx.capNeg }}%/+{{ tx.capPos }}% | {{ tx.mens | number:2 }}€ | {{ tx.min | number:2 }}€ | {{ tx.max | number:2 }}€ |
| Taux | Type | CAP | Mensualité | Mensualité Min | Mensualité Max | |
|---|---|---|---|---|---|---|
| {{ tx.banque }} {{ $index+1 }} | {{ tx.taux | number:2 }}% | {{ tx.type }} | -{{ tx.capNeg }}%/+{{ tx.capPos }}% | {{ tx.mens | number:2 }}€ | {{ tx.min | number:2 }}€ | {{ tx.max | number:2 }}€ |
| Taux | Type | CAP | Mensualité | Mensualité Min | Mensualité Max | |
|---|---|---|---|---|---|---|
| {{ tx.banque }} {{ $index+1 }} | {{ tx.taux | number:2 }}% | {{ tx.type }} | -{{ tx.capNeg }}%/+{{ tx.capPos }}% | {{ tx.mens | number:2 }}€ | {{ tx.min | number:2 }}€ | {{ tx.max | number:2 }}€ |
Rentabilité
Cout total de l’acquisition
| Prix d'achat | {{ calculeData.prix | number:2 }} € |
| Rénovation | + {{ calculeData.prixTransRenovation | number:2 }} € |
| Frais | + {{ calculeData.frais | number:2 }} € |
| Coût total | + {{ calculeData.frais + calculeData.prixTransRenovation + calculeData.prix | number:2 }} € |
| Fonds propres + crédit pont | {{ calculeData.totalFP+calculeData.creditPont | number:2 }} € |
| Montant du crédit | {{ calculeData.montantCredit | number:2 }} € |
| Coût total | + {{ calculeData.creditPont + calculeData.totalFP + calculeData.montantCredit | number:2 }} € |
Rentabilité sur actifs
Durée de détention année(s)
Gain réel {{ calculeData.gainReel | number:0 }} €
Rendement sur actif {{ calculeData.rendementSurActif | number:2 }} %
Revenus
| Revenu locatif annuel Brut | € |
| Charge annuelle {{ calculeData.pourcentageCharge | number:2 }}% | {{ calculeData.chargeLocatifAnnuel | number:2 }} € |
| Précompte immobilier | {{ calculeData.precomteImmo | number:2 }} € |
| Autre charge annuelle | € |
| Revenu locatif annuel net | {{ calculeData.revenuLocatifAnnuelNet | number:2 }} € |
| Total revenu locatif après {{ calculeData.dureeDetention }} année(s) tenant compte d'une inflation de % |
{{ calculeData.totalRevenuLocatif | number:2 }} € |
| Plus-value latente | {{ calculeData.pluvalueLatente | number:2 }} % |
| Plus-value du bien après {{calculeData.dureeDetention}} année(s) | {{ calculeData.pluvalueBien | number:2 }} € |
| Total revenu locatif après {{ calculeData.dureeDetention }} année(s) | {{ calculeData.totalRevenuLocatif | number:2 }} € |
| Gain brut sur le prix de base après {{ calculeData.dureeDetention }} année(s) | +{{ calculeData.gainBrut | number:2 }} € |
Charges
| Durée du crédit | {{ calculeData.duree | number:2 }} ans |
| Taux | {{ calculeData.taux | number:2 }} % |
| Mensualité | {{ calculeData.mensualite | number:2 }} € |
| Total interêts après {{calculeData.dureeDetention}} année(s) | {{ calculeData.totalInteret | number:2 }} € |
| Total frais | {{ calculeData.frais | number:2 }} € |
| Total | {{ calculeData.InteretFrais | number:2 }} € |
Gain réel
Rendement sur actif
Cash flow
| Année | Coût | Revenu locatif | Gain |
|---|---|---|---|
| {{ $index }} | {{ ch.payment | number:2 }} € | {{ ch.revenuLocatif | number:2 }} € | {{ - ch.fondPropre | number:2 }} € |
Av. Louise 433 Louizalaan 1050 Bruxelles - Brussel
Drève Richelle, 96 - 1410 Waterloo