Suis-je éligible à une réduction des droits d’enregistrement ?
BOIGNEES 22
PRIX : 445 000,00€
Type: Maison | Région: Wallonie | Commune: Braine-le-Château
Dans un cadre bucolique, calme et verdoyant de Wauthier-Braine, By the Way vous présente cette sympathique maison 4 façades,
d'une superficie net habitable de +/- 155 m2 sise sur un magnifique terrain de +/- 17 ares .
Elle se présente en demi niveau et est composée comme suit :
Rez-de-chaussée : hall d'entrée donnant accès d'une part à une chambre et d'autre part un grand garage 2 voitures de +/- 30m2.
En demi niveau inférieur, le rez-de-jardin avec un WC séparé et un petit vestiaire, une cuisine équipée, un grand séjour de +/- 41m2 s'ouvrant sur une terrasse et un grand jardin orienté au Sud-Ouest traversé par une petite rivière.
En demi niveau supérieur, l'étage avec un hall de nuit, 3 chambres de belles dimensions avec parquet en chêne (+/- 25,15 et 12m2), une salle de bain avec un bain et une douche séparée et un 2ème WC.
Sous-sol : buanderie et nombreuses caves.
Châssis double vitrage en bois.
Chauffage électrique.
Production d'eau chaude par boiler électrique.
Surface totale: 308 m²
Jardin orienté au Sud-Ouest traversé par une petite rivière
Chambres: 4
Salle de bain: 1
Terrasse: oui
Garages: 2
Caves: 4
Chauffage électrique
Vidéo
Découvrez le bien en visualisant cette vidéo
VISITE VIRTUELLE
Vous voulez en voir plus ? Visitez le bien comme si vous y étiez à travers cette visite virtuelle
Localisation
Ce bien vous correspond ? Découvrez maintenant si sa localisation vous convient !
Commerces
Pharmacies
Restaurants
Boulangeries
Crèches
Parcs
Écoles
Universités
Déplacements
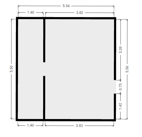
Plans intérieurs
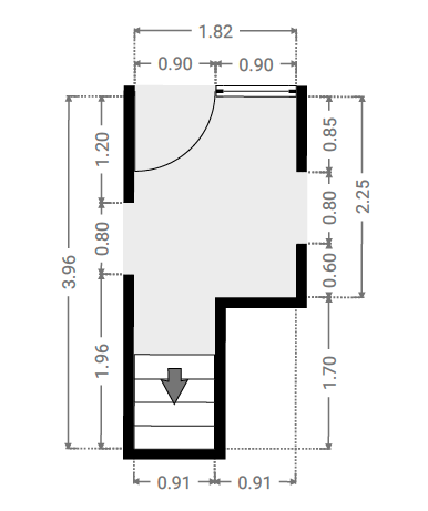
Sous-sol
SURFACE TOTALE : 88.69 m² | SURFACE HABITABLE : 53.78 m² | PIÈCE(S) : 6
La surface totale résulte de l’addition de la surface intérieure (c’est à dire calculée depuis l’intérieur des murs extérieurs) et des surfaces externes (balcons, terrains, jardins..).
4x Cave(s)
1x Couloir
1x Garage
Cave 1
SURFACE : 29.11 m²
Cave 2
SURFACE : 2.64 m²
Couloir
SURFACE : 3.95 m²
Cave 3
SURFACE : 9.35 m²
Cave 4
SURFACE : 8.78 m²
Garage 2
SURFACE : 34.91 m²
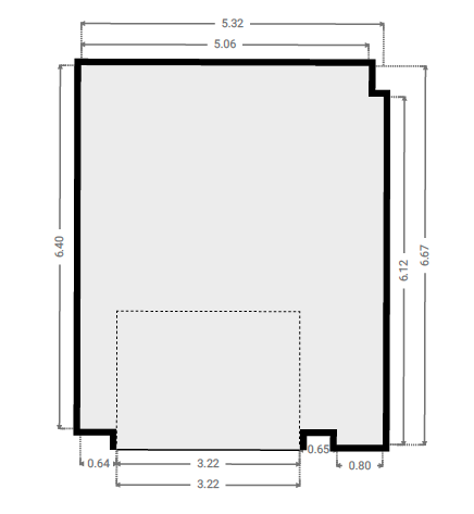
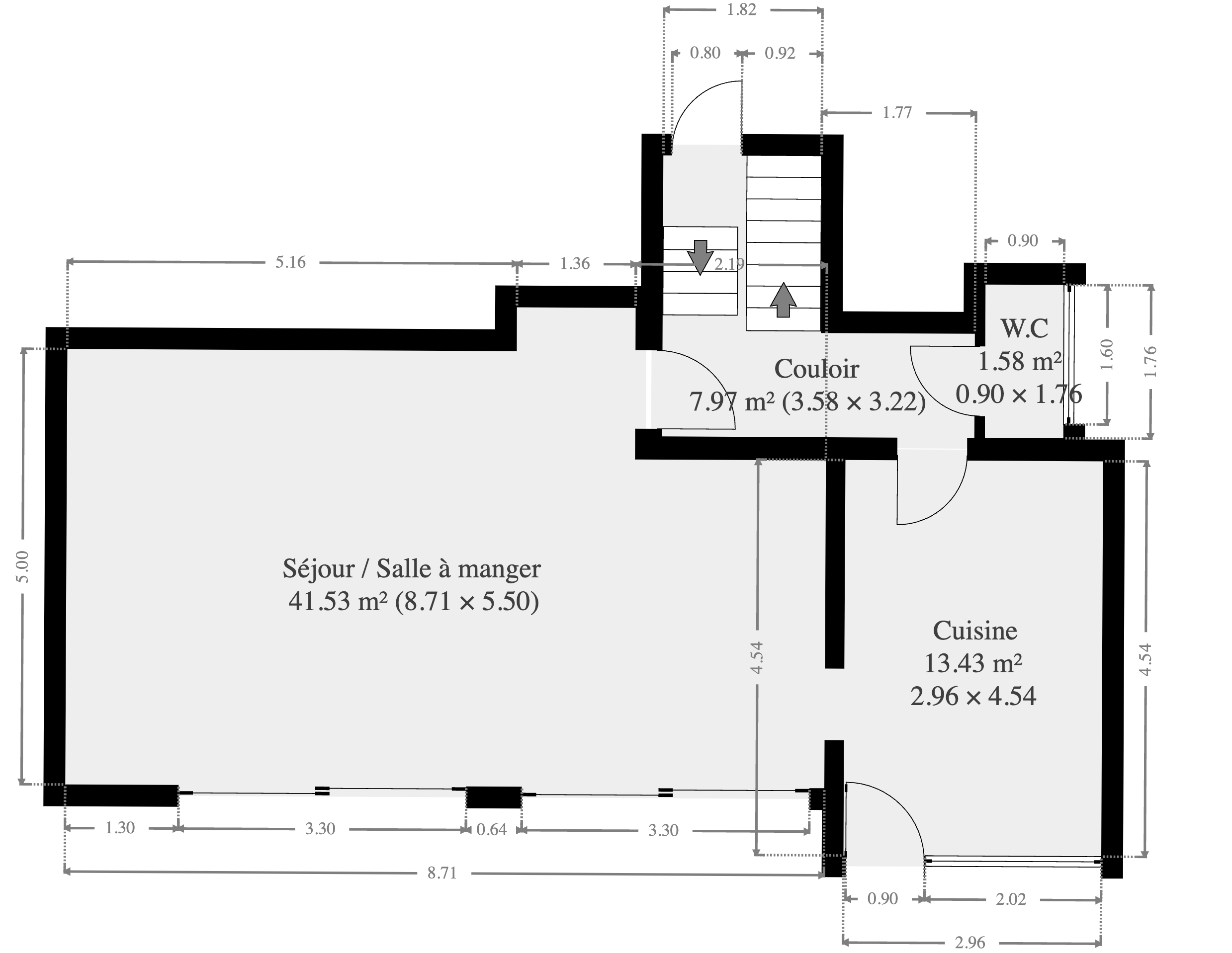
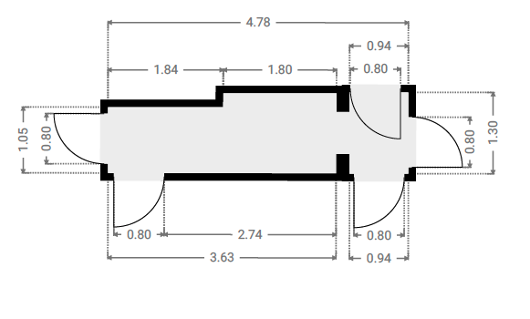
Rez-de-jardin
SURFACE TOTALE : 64.48 m² | SURFACE HABITABLE : 64.48 m² | PIÈCE(S) : 4
La surface totale résulte de l’addition de la surface intérieure (c’est à dire calculée depuis l’intérieur des murs extérieurs) et des surfaces externes (balcons, terrains, jardins..).
1x Couloir
1x W.C
1x Cuisine
1x Séjour / Salle à manger
Couloir
SURFACE : 7.97 m²
W.C
SURFACE : 1.58 m²
Cuisine
SURFACE : 13.43 m²
Séjour / Salle à manger
SURFACE : 41.53 m²
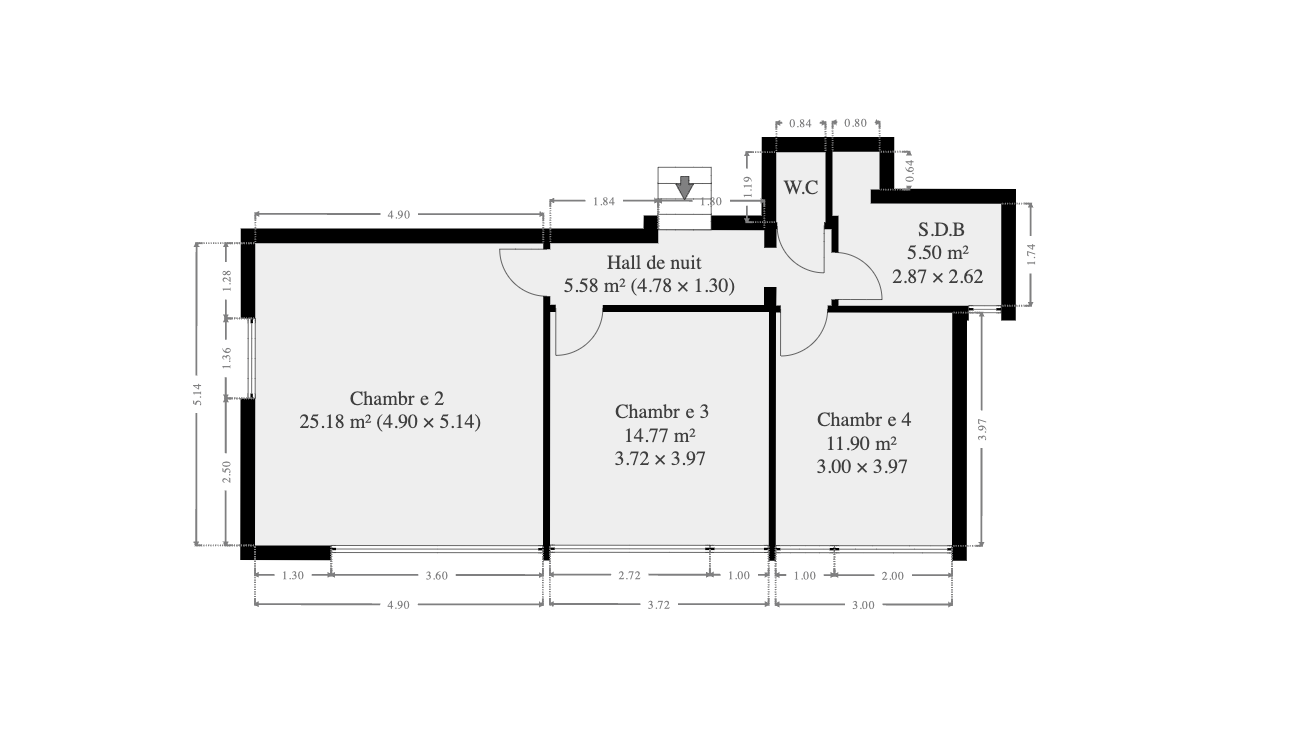
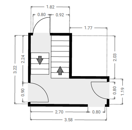
Rez-de-chaussée
SURFACE TOTALE : 90.98 m² | SURFACE HABITABLE : 23.96 m² | PIÈCE(S) : 4
La surface totale résulte de l’addition de la surface intérieure (c’est à dire calculée depuis l’intérieur des murs extérieurs) et des surfaces externes (balcons, terrains, jardins..).
1x Garage
1x Chambre
1x Hall
1x Couloir
Garage 1
SURFACE : 67.02 m²
Chambre 1
SURFACE : 15.66 m²
Hall
SURFACE : 2.7 m²
Couloir
SURFACE : 5.64 m²
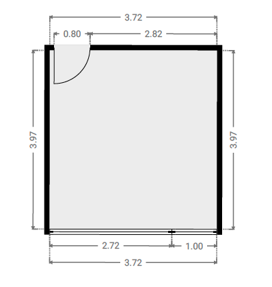
1er étage
SURFACE TOTALE : 63.88 m² | SURFACE HABITABLE : 63.88 m² | PIÈCE(S) : 6
La surface totale résulte de l’addition de la surface intérieure (c’est à dire calculée depuis l’intérieur des murs extérieurs) et des surfaces externes (balcons, terrains, jardins..).
1x Hall de nuit
1x W.C
1x S.D.B
3x Chambre(s)
Hall de nuit
SURFACE : 5.58 m²
W.C
SURFACE : 1 m²
S.D.B
SURFACE : 5.5 m²
Chambre 2
SURFACE : 25.18 m²
Chambre 3
SURFACE : 14.77 m²
Chambre 4
SURFACE : 11.9 m²
RECHERCHE CADASTRALE
Vous souhaitez mieux connaître votre parcelle et connaître la surface dont vous jouirez en achetant ce bien, alors consulter le cadastre est nécessaire !
Surface : 725 m²
Parcelle : C51w3
Surface : 1037 m²
Parcelle : A343w2
État des sols
La pollution du sol a un impact sur l'environnement et sur la santé, les risques d’inondation ont un impact sur votre qualité de vie… Consultez les données relatives à ce bien pour en avoir le cœur net !
ÉTAT DE LA POLLUTION DES SOLS
Aucune remarque particulière pour les parcelles C51W3/A343w2
Source : Cliquez-ici
Légende :
ZONE INONDABLE
Aucune remarque particulière pour les parcelles C51W3/A343w2
Source : Cliquez-ici
Légende :
Certificats
Informez-vous sur la performance énergétique de ce bien et assurez-vous que ses installations électriques sont bien aux normes !
PERFORMANCE ÉNERGÉTIQUE
Économe
Très énergivore
CERTIFICAT ÉLECTRIQUE
PROCES VERBAL D’EXAMEN DE CONFORMITE ET/OU DE VISITE DE CONTROLE D’UNE INSTALLATION ELECTRIQUE BASSE TENSION
La nouvelle installationNon conforme
INDICATEURS SPÉCIFIQUES
| Besoins en chaleur du lanhement | ||||
| excessifts | élevés | moyens | faible | minimes |
| Performance des installations de chauffage | ||||
| médicore | insuffisante | satisfaisante | bonne | excellente |
| Performance des installations d'eau chaude sanitaire | ||||
| médicore | insuffisante | satisfaisante | bonne | excellente |
| Système de ventillation | ||||
| absent | très partiel | partiel | incomplet | complate |
DATA ROOM
Nous avons mis tous les documents importants dans la date room, n’hésitez pas à télécharger ce dont vous avez besoin !
Nous avons mis tous les documents importants dans la date room, n’hésitez pas à télécharger ce dont vous avez besoin !
Besoin de crédit
Maintenant que vous êtes sûrs d’avoir fait le bon choix, calculez la valeur totale de cette acquisition (valeur du bien et frais annexes) et estimez vos besoins en crédit !
Simulation de crédit
| Prix d'achat | € |
| Rénovation | € |
| Rénovation HTVA | {{ calculeData.renovationHTVA | number:2 }} € |
| TVA | {{ calculeData.tva | number:2 }} € |
| Fonds propres | € |
| Acompte dû (disponible au compromis de vente) | {{ calculeData.prix * 0.1 | number:2 }} € |
| Reste des liquidités (disponible à l'acte) | {{ calculeData.avance | number:2 }} € |
| Crédit pont | {{ calculeData.creditPont | number:2 }} € |
| Prix de vente de votre bien existant | € |
| Solde du crédit existant | € |
| Frais d'acte d'achat | {{ calculeData.droit + calculeData.fraisNotaire | number:2 }} € |
| Droits d'enregistrement | {{ calculeData.droit | number:2 }} € |
|
Abattement
Suis-je éligible à une réduction des droits d’enregistrement ? |
|
| Frais de notaire | {{ calculeData.fraisNotaire | number:2 }} € |
| Autres frais | {{ calculeData.inscription + calculeData.fraisDossier + calculeData.autreFrais | number:2 }} € |
| Frais liés à l'acte hypothécaire | {{ calculeData.inscription | number:2 }} € |
| Frais de dossier et expertise bancaire | {{ calculeData.fraisDossier | number:2 }} € |
| Autres frais | € |
| Montant du crédit | {{ calculeData.montantCredit | number:2 }} € | |
La présente simulation se base sur un taux d’intérêt du 29/01/2024. Ce calcul est indicatif et sujet à changement.
Choix du type de crédit
| Taux | Type | CAP | Mensualité | Mensualité Min | Mensualité Max | |
|---|---|---|---|---|---|---|
| {{ tx.banque }} {{ $index+1 }} | {{ tx.taux | number:2 }}% | {{ tx.type }} | -{{ tx.capNeg }}%/+{{ tx.capPos }}% | {{ tx.mens | number:2 }}€ | {{ tx.min | number:2 }}€ | {{ tx.max | number:2 }}€ |
| Taux | Type | CAP | Mensualité | Mensualité Min | Mensualité Max | |
|---|---|---|---|---|---|---|
| {{ tx.banque }} {{ $index+1 }} | {{ tx.taux | number:2 }}% | {{ tx.type }} | -{{ tx.capNeg }}%/+{{ tx.capPos }}% | {{ tx.mens | number:2 }}€ | {{ tx.min | number:2 }}€ | {{ tx.max | number:2 }}€ |
| Taux | Type | CAP | Mensualité | Mensualité Min | Mensualité Max | |
|---|---|---|---|---|---|---|
| {{ tx.banque }} {{ $index+1 }} | {{ tx.taux | number:2 }}% | {{ tx.type }} | -{{ tx.capNeg }}%/+{{ tx.capPos }}% | {{ tx.mens | number:2 }}€ | {{ tx.min | number:2 }}€ | {{ tx.max | number:2 }}€ |
Rentabilité
Cout total de l’acquisition
| Prix d'achat | {{ calculeData.prix | number:2 }} € |
| Rénovation | + {{ calculeData.prixTransRenovation | number:2 }} € |
| Frais | + {{ calculeData.frais | number:2 }} € |
| Coût total | + {{ calculeData.frais + calculeData.prixTransRenovation + calculeData.prix | number:2 }} € |
| Fonds propres + crédit pont | {{ calculeData.totalFP+calculeData.creditPont | number:2 }} € |
| Montant du crédit | {{ calculeData.montantCredit | number:2 }} € |
| Coût total | + {{ calculeData.creditPont + calculeData.totalFP + calculeData.montantCredit | number:2 }} € |
Rentabilité sur actifs
Durée de détention année(s)
Gain réel {{ calculeData.gainReel | number:0 }} €
Rendement sur actif {{ calculeData.rendementSurActif | number:2 }} %
Revenus
| Revenu locatif annuel Brut | € |
| Charge annuelle {{ calculeData.pourcentageCharge | number:2 }}% | {{ calculeData.chargeLocatifAnnuel | number:2 }} € |
| Précompte immobilier | {{ calculeData.precomteImmo | number:2 }} € |
| Autre charge annuelle | € |
| Revenu locatif annuel net | {{ calculeData.revenuLocatifAnnuelNet | number:2 }} € |
| Total revenu locatif après {{ calculeData.dureeDetention }} année(s) tenant compte d'une inflation de % |
{{ calculeData.totalRevenuLocatif | number:2 }} € |
| Plus-value latente | {{ calculeData.pluvalueLatente | number:2 }} % |
| Plus-value du bien après {{calculeData.dureeDetention}} année(s) | {{ calculeData.pluvalueBien | number:2 }} € |
| Total revenu locatif après {{ calculeData.dureeDetention }} année(s) | {{ calculeData.totalRevenuLocatif | number:2 }} € |
| Gain brut sur le prix de base après {{ calculeData.dureeDetention }} année(s) | +{{ calculeData.gainBrut | number:2 }} € |
Charges
| Durée du crédit | {{ calculeData.duree | number:2 }} ans |
| Taux | {{ calculeData.taux | number:2 }} % |
| Mensualité | {{ calculeData.mensualite | number:2 }} € |
| Total interêts après {{calculeData.dureeDetention}} année(s) | {{ calculeData.totalInteret | number:2 }} € |
| Total frais | {{ calculeData.frais | number:2 }} € |
| Total | {{ calculeData.InteretFrais | number:2 }} € |
Gain réel
Rendement sur actif
Cash flow
| Année | Coût | Revenu locatif | Gain |
|---|---|---|---|
| {{ $index }} | {{ ch.payment | number:2 }} € | {{ ch.revenuLocatif | number:2 }} € | {{ - ch.fondPropre | number:2 }} € |
Av. Louise 433 Louizalaan 1050 Bruxelles - Brussel
Drève Richelle, 96 - 1410 Waterloo