Suis-je éligible à une réduction des droits d’enregistrement ?
Bien mixte - Ch. Waterloo 417
PRIX : 999 000,00€
Type: Bien mixte | Région: Bruxelles | Commune: Ixelles
Entre la place Brugmann et le Châtelain, à Ixelles, se trouve ce magnifique et vaste immeuble, d’un volume de plus de 400m2. Cet immeuble offre de nombreuses possibilités d’aménagement, pour du logement, un commerce, (voire même du bureau).
Cet immeuble était initialement un logement à l’avant, avec une cour (extérieure) au milieu et un entrepôt à l’arrière. Sa configuration a changé, depuis environs 30 ans.
Aujourd’hui, l’avant du bâtiment, ainsi que le rez-de-chaussée est un commerce. Le milieu de l’immeuble (l’ancienne cour extérieure), est devenu un magnifique patio sur lequel se trouve un escalier (ouvert et lumineux), le tout protégé par une belle verrière.
Cet escalier atypique, lumineux et de charme permet de passer de l’avant du bâtiment à l’arrière (à chaque étage).
Enfin, le bâtiment arrière est un logement en duplex (au 1e étage et au 2e étage).Le logement est composé comme suit :
Au 1er étage : séjour avec cuisine ouverte, donnant accès à une terrasse.
Au 2éme étage : 1 grande chambre (séparée en 2 petites), une salle de bain avec WC, une buanderie et une 2e chambre.
Venez découvrir cet immeuble unique, lumineux, aux nombreuses opportunités.
Grenier: 1
Surface totale: 434 m²
Chambres: 2
Salle de bain: 1
Terrasse: 1
Bureaux: 2
Balcon: 1
Vidéo
Découvrez le bien en visualisant cette vidéo
VISITE VIRTUELLE
Vous voulez en voir plus ? Visitez le bien comme si vous y étiez à travers cette visite virtuelle
Localisation
Ce bien vous correspond ? Découvrez maintenant si sa localisation vous convient !
Commerces
Pharmacies
Restaurants
Boulangeries
Crèches
Parcs
Écoles
Universités
Déplacements
Plans intérieurs
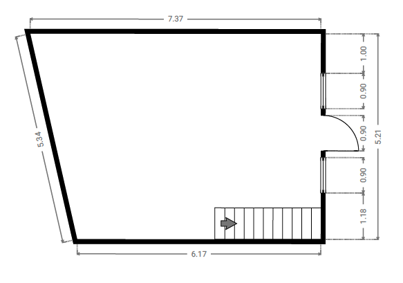
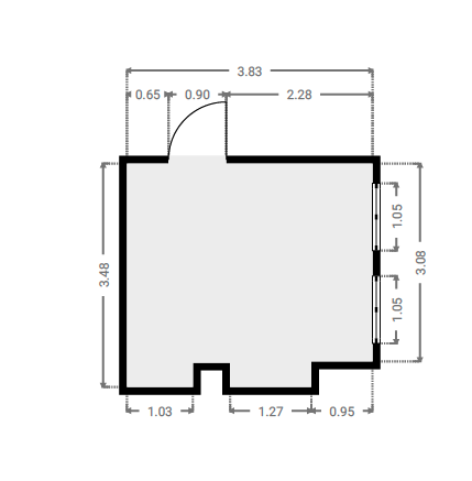
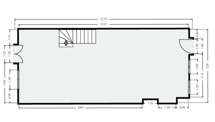
Rez-de-chaussée
SURFACE TOTALE : 172.50 m² | SURFACE HABITABLE : 137.26 m² | PIÈCE(S) : 11
2x Couloir(s)
1x Hall
1x Espace commercial
1x Cour intérieure
2x W.C(s)
1x Rangement
1x Chaufferie
2x Bureau(s)
1x Terrasse
Couloir
SURFACE : 8.97 m²
Hall
SURFACE : 4.32 m²
Espace commercial
SURFACE : 29.53 m²
Cour intérieure
SURFACE : 30.77 m²
Couloir
SURFACE : 14.58 m²
Annexe bureau
SURFACE : 20.44 m²
W.C
SURFACE : 1.51 m²
W.C
SURFACE : 1.1 m²
Rangement
SURFACE : 2.68 m²
Chaufferie
SURFACE : 4.41 m²
Bureau
SURFACE : 13.88 m²
Terrasse
SURFACE : 35.25 m²
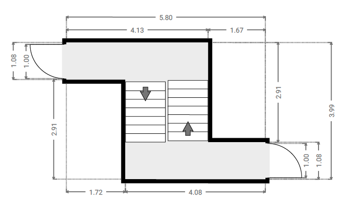
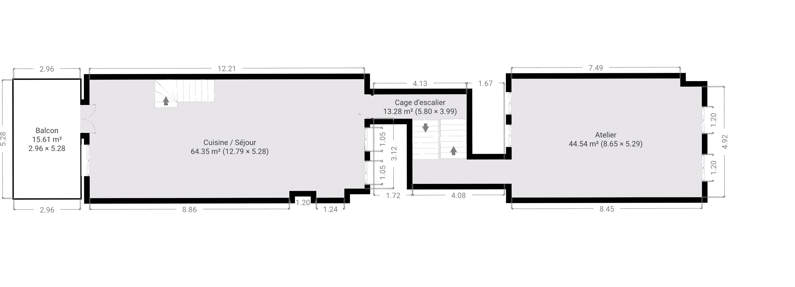
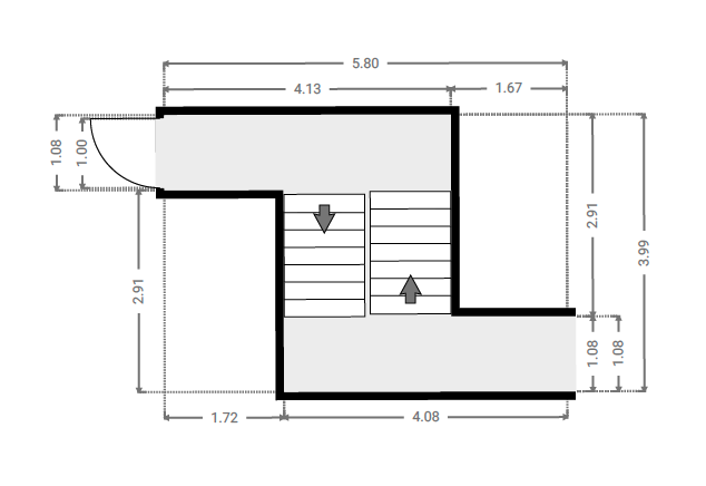
1er étage
SURFACE TOTALE : 138.00 m² | SURFACE HABITABLE : 109.12 m² | PIÈCE(S) : 3
1x Cuisine / Séjour
1x Atelier
1x Cage d’escalier
1x Balcon
Cuisine / Séjour
SURFACE : 64.35 m²
Atelier
SURFACE : 44.54 m²
Cage d’escalier
SURFACE : 13.28 m²
Balcon
SURFACE : 15.61 m²
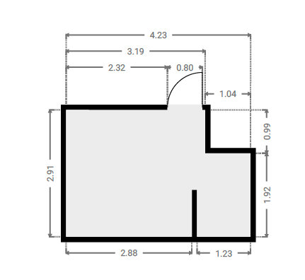
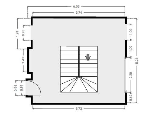
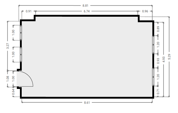
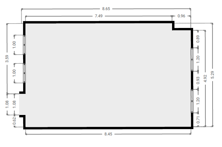
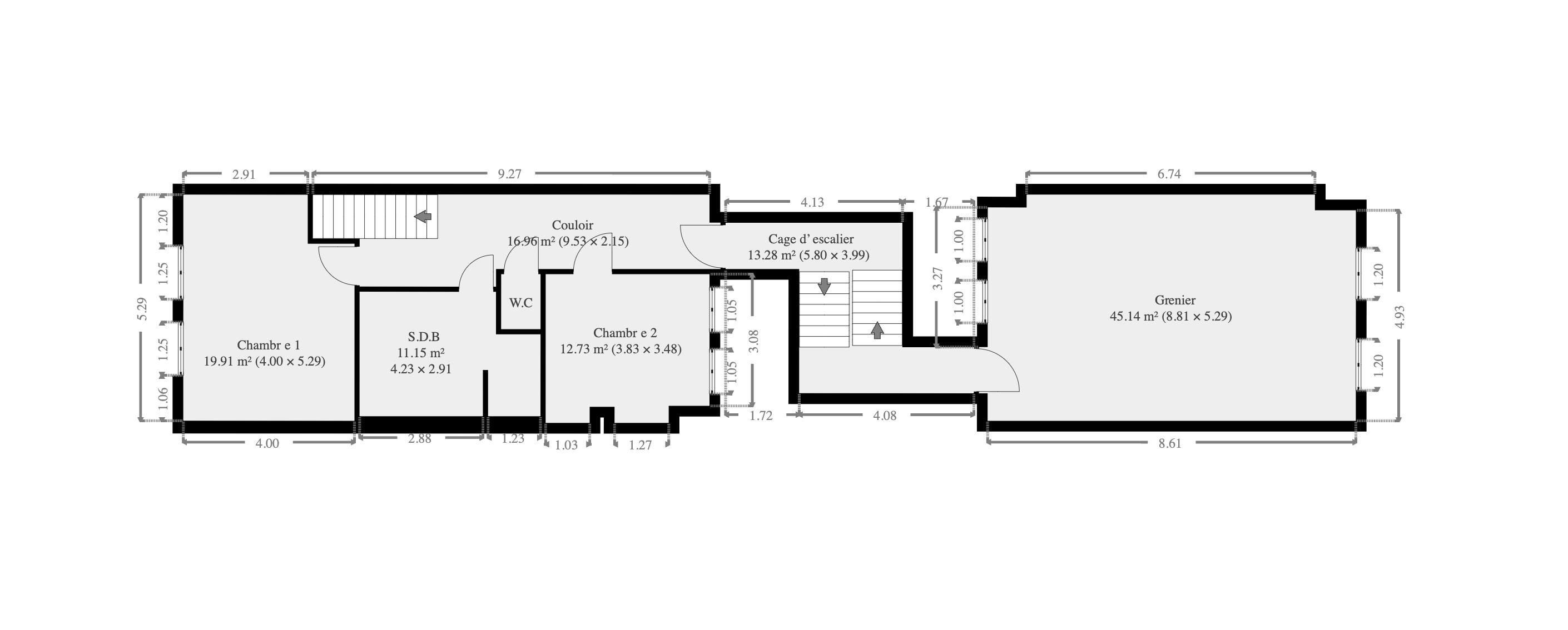
2e étage
SURFACE TOTALE : 123.13 m² | SURFACE HABITABLE : 109.85 m² | PIÈCE(S) : 7
1x Cage d’escalier
1x Couloir
1x W.C
2x Chambre(s)
1x S.D.B
1x Grenier
Cage d’escalier
SURFACE : 13.28 m²
Couloir
SURFACE : 16.96 m²
W.C
SURFACE : 1.19 m²
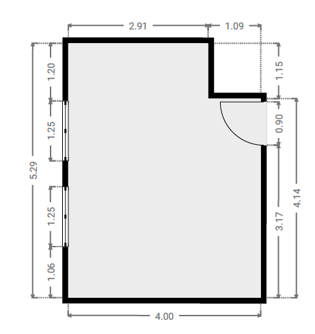
Chambre 2
SURFACE : 12.73 m²
S.D.B
SURFACE : 11.15 m²
Chambre 1
SURFACE : 19.91 m²
Grenier
SURFACE : 45.14 m²
RECHERCHE CADASTRALE
Vous souhaitez mieux connaître votre parcelle et connaître la surface dont vous jouirez en achetant ce bien, alors consulter le cadastre est nécessaire !
État des sols
La pollution du sol a un impact sur l'environnement et sur la
santé, les risques d’inondation ont un impact sur votre qualité de vie… Consultez les données
relatives à ce bien pour en avoir le cœur net !
ÉTAT DE LA POLLUTION DES SOLS
Aucune remarque particulière pour la parcelle B306k42
Source : Cliquez-ici
Légende :
ZONE INONDABLE
Aucune remarque particulière pour la parcelle B306k42
Source : Cliquez-ici
Légende :
Certificats
Informez-vous sur la performance énergétique de ce bien et assurez-vous que ses installations électriques sont bien aux normes !
PERFORMANCE ÉNERGÉTIQUE
Économe
Très énergivore
CERTIFICAT ÉLECTRIQUE
PROCES VERBAL D’EXAMEN DE CONFORMITE ET/OU DE VISITE DE CONTROLE D’UNE INSTALLATION ELECTRIQUE BASSE TENSION
La nouvelle installationNon conforme
Agent
visiteur
Jeremy Cassinadri
Date
de certification
08/09/2019
Visite de contrôle
à effectuer avant le
26/04/2023
DATA ROOM
Nous avons mis tous les documents importants dans la date room, n’hésitez pas à télécharger ce dont vous avez besoin !
Nous avons mis tous les documents importants dans la date room, n’hésitez pas à télécharger ce dont vous avez besoin !
Besoin de crédit
Maintenant que vous êtes sûrs d’avoir fait le bon choix, calculez la valeur totale de cette acquisition (valeur du bien et frais annexes) et estimez vos besoins en crédit !
Simulation de crédit
| Prix d'achat | € |
| Rénovation | € |
| Rénovation HTVA | {{ calculeData.renovationHTVA | number:2 }} € |
| TVA | {{ calculeData.tva | number:2 }} € |
| Fonds propres | € |
| Acompte dû (disponible au compromis de vente) | {{ calculeData.prix * 0.1 | number:2 }} € |
| Reste des liquidités (disponible à l'acte) | {{ calculeData.avance | number:2 }} € |
| Crédit pont | {{ calculeData.creditPont | number:2 }} € |
| Prix de vente de votre bien existant | € |
| Solde du crédit existant | € |
| Frais d'acte d'achat | {{ calculeData.droit + calculeData.fraisNotaire | number:2 }} € |
| Droits d'enregistrement | {{ calculeData.droit | number:2 }} € |
|
Abattement
Suis-je éligible à une réduction des droits d’enregistrement ? |
|
| Frais de notaire | {{ calculeData.fraisNotaire | number:2 }} € |
| Autres frais | {{ calculeData.inscription + calculeData.fraisDossier + calculeData.autreFrais | number:2 }} € |
| Frais liés à l'acte hypothécaire | {{ calculeData.inscription | number:2 }} € |
| Frais de dossier et expertise bancaire | {{ calculeData.fraisDossier | number:2 }} € |
| Autres frais | € |
| Montant du crédit | {{ calculeData.montantCredit | number:2 }} € | |
La présente simulation se base sur un taux d’intérêt du 05/02/2024. Ce calcul est indicatif et sujet à changement.
Choix du type de crédit
| Taux | Type | CAP | Mensualité | Mensualité Min | Mensualité Max | |
|---|---|---|---|---|---|---|
| {{ tx.banque }} {{ $index+1 }} | {{ tx.taux | number:2 }}% | {{ tx.type }} | -{{ tx.capNeg }}%/+{{ tx.capPos }}% | {{ tx.mens | number:2 }}€ | {{ tx.min | number:2 }}€ | {{ tx.max | number:2 }}€ |
| Taux | Type | CAP | Mensualité | Mensualité Min | Mensualité Max | |
|---|---|---|---|---|---|---|
| {{ tx.banque }} {{ $index+1 }} | {{ tx.taux | number:2 }}% | {{ tx.type }} | -{{ tx.capNeg }}%/+{{ tx.capPos }}% | {{ tx.mens | number:2 }}€ | {{ tx.min | number:2 }}€ | {{ tx.max | number:2 }}€ |
| Taux | Type | CAP | Mensualité | Mensualité Min | Mensualité Max | |
|---|---|---|---|---|---|---|
| {{ tx.banque }} {{ $index+1 }} | {{ tx.taux | number:2 }}% | {{ tx.type }} | -{{ tx.capNeg }}%/+{{ tx.capPos }}% | {{ tx.mens | number:2 }}€ | {{ tx.min | number:2 }}€ | {{ tx.max | number:2 }}€ |
Rentabilité
Cout total de l’acquisition
| Prix d'achat | {{ calculeData.prix | number:2 }} € |
| Rénovation | + {{ calculeData.prixTransRenovation | number:2 }} € |
| Frais | + {{ calculeData.frais | number:2 }} € |
| Coût total | + {{ calculeData.frais + calculeData.prixTransRenovation + calculeData.prix | number:2 }} € |
| Fonds propres + crédit pont | {{ calculeData.totalFP+calculeData.creditPont | number:2 }} € |
| Montant du crédit | {{ calculeData.montantCredit | number:2 }} € |
| Coût total | + {{ calculeData.creditPont + calculeData.totalFP + calculeData.montantCredit | number:2 }} € |
Rentabilité sur actifs
Durée de détention année(s)
Gain réel {{ calculeData.gainReel | number:0 }} €
Rendement sur actif {{ calculeData.rendementSurActif | number:2 }} %
Revenus
| Revenu locatif annuel Brut | € |
| Charge annuelle {{ calculeData.pourcentageCharge | number:2 }}% | {{ calculeData.chargeLocatifAnnuel | number:2 }} € |
| Précompte immobilier | {{ calculeData.precomteImmo | number:2 }} € |
| Autre charge annuelle | € |
| Revenu locatif annuel net | {{ calculeData.revenuLocatifAnnuelNet | number:2 }} € |
| Total revenu locatif après {{ calculeData.dureeDetention }} année(s) tenant compte d'une inflation de % |
{{ calculeData.totalRevenuLocatif | number:2 }} € |
| Plus-value latente | {{ calculeData.pluvalueLatente | number:2 }} % |
| Plus-value du bien après {{calculeData.dureeDetention}} année(s) | {{ calculeData.pluvalueBien | number:2 }} € |
| Total revenu locatif après {{ calculeData.dureeDetention }} année(s) | {{ calculeData.totalRevenuLocatif | number:2 }} € |
| Gain brut sur le prix de base après {{ calculeData.dureeDetention }} année(s) | +{{ calculeData.gainBrut | number:2 }} € |
Charges
| Durée du crédit | {{ calculeData.duree | number:2 }} ans |
| Taux | {{ calculeData.taux | number:2 }} % |
| Mensualité | {{ calculeData.mensualite | number:2 }} € |
| Total interêts après {{calculeData.dureeDetention}} année(s) | {{ calculeData.totalInteret | number:2 }} € |
| Total frais | {{ calculeData.frais | number:2 }} € |
| Total | {{ calculeData.InteretFrais | number:2 }} € |
Gain réel
Rendement sur actif
Cash flow
| Année | Coût | Revenu locatif | Gain |
|---|---|---|---|
| {{ $index }} | {{ ch.payment | number:2 }} € | {{ ch.revenuLocatif | number:2 }} € | {{ - ch.fondPropre | number:2 }} € |
Av. Louise 433 1050 Bruxelles - 02 648 01 20
Drève Richelle 96 1410 Waterloo - 02 354 29 39
Av. Prekelinden 83 1200 Woluwe-St-Lambert - 02 734 00 36