Suis-je éligible à une réduction des droits d’enregistrement ?
Banning 23
PRIX : 775 000,00€
Type: Maison | Région: Bruxelles | Commune: Ixelles
Située à deux pas du célèbre quartier du Cimetière d'Ixelles, à proximité de l'ULB, de la VUB et du Bois de la Cambre, By the Way vous propose cette maison unifamiliale avec petit jardin de ville, de +/- 294m2 (selon PEB), actuellement utilisée comme immeuble de rapport. Elle se compose comme suit : Au rez-de-chaussée 'surélevé' : grand hall d'entrée, première unité de logement de type appartement 1 chambre (+/- 56m2) et salle de douche appartenant à l'unité du rez-de-jardin. Au 1er étage : salle de douche à l'entresol, deux unités de logement de type chambre avec kitchenette (+/- 19m2) et studio avec mezzanine, petit balcon, salle de douche/WC et cuisine (+/- 24m2). Au 2ème et dernier étage, deux unités de logement de type chambre avec kitchenette (+/- 19m2 et +/- 16m2) et une salle de douche séparée. Au rez-de-jardin, une unité de logement de type studio avec jardin (+/- 60m2) et un espace de rangement/cave. Toutes les unités sont actuellement louées. Rendement annuel net : 5,3%. PEB G. Électricité non conforme. Chaudière commune au gaz à condensation Vaillant (2012).
Surface habitable: 247.38 m² NET
Jardin oui
Chambres: 6
Salles de douche: 5
Vidéo
Découvrez le bien en visualisant cette vidéo
VISITE VIRTUELLE
Vous voulez en voir plus ? Visitez le bien comme si vous y étiez à travers cette visite virtuelle
Localisation
Ce bien vous correspond ? Découvrez maintenant si sa localisation vous convient !
Commerces
Pharmacies
Restaurants
Boulangeries
Crèches
Parcs
Écoles
Universités
Déplacements
Plans intérieurs
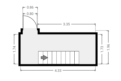
Sous-sol
SURFACE TOTALE : 67.13 m² | SURFACE HABITABLE : 83.35 m² | PIÈCE(S) : 6
1x Séjour 1
1x Salle à manger
1x Cuisine 1
1x Chambre 1
1x W.C
1x Couloir
Séjour 1
SURFACE : 18.95 m²
Salle à manger
SURFACE : 9.94 m²
Cuisine 1
SURFACE : 11.31 m²
Chambre 1
SURFACE : 17.81 m²
W.C
SURFACE : 1.48 m²
Couloir
SURFACE : 7.7 m²
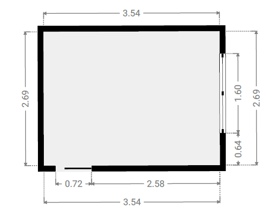
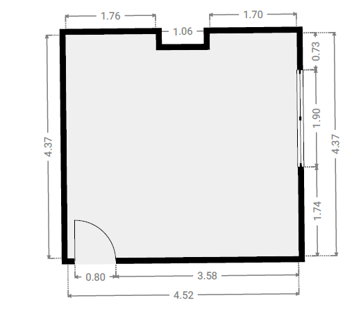
Rez-de-chaussée
SURFACE TOTALE : 73.39 m² | SURFACE HABITABLE : 73.39 m² | PIÈCE(S) : 8
1x Hall
1x Cuisine 2
1x Séjour 2
1x Couloir
2x S.D.D (s)
1x W.C
1x Chambre 2
Hall
SURFACE : 12.73 m²
Cuisine 2
SURFACE : 18.8 m²
Séjour 2
SURFACE : 18.37 m²
Couloir
SURFACE : 1.32 m²
S.D.D 1
SURFACE : 3.07 m²
S.D.D 2
SURFACE : 8.08 m²
W.C
SURFACE : 1.54 m²
Chambre 2
SURFACE : 9.52 m²
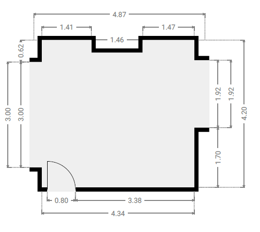
1er étage
SURFACE TOTALE : 54.93 m² | SURFACE HABITABLE : 54.93 m² | PIÈCE(S) : 7
2x Couloir(s)
1x Cuisine 3
2x S.D.D (s)
2x Chambre
Couloir
SURFACE : 8.09 m²
Couloir
SURFACE : 1.34 m²
Cuisine 3
SURFACE : 5.29 m²
S.D.D 3
SURFACE : 1.81 m²
Chambre 3
SURFACE : 15.86 m²
S.D.D 4
SURFACE : 3.16 m²
Chambre 4
SURFACE : 19.42 m²
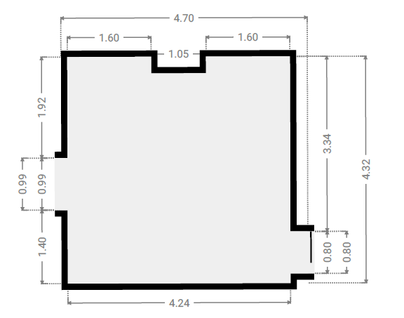
2e étage
SURFACE TOTALE : 51.94 m² | SURFACE HABITABLE : 51.94 m² | PIÈCE(S) : 4
1x Couloir
1x S.D.D 5
2x Chambre 5
Couloir
SURFACE : 8.77 m²
S.D.D 5
SURFACE : 7.6 m²
Chambre 5
SURFACE : 16.26 m²
Chambre 6
SURFACE : 19.34 m²
RECHERCHE CADASTRALE
Vous souhaitez mieux connaître votre parcelle et connaître la surface dont vous jouirez en achetant ce bien, alors consulter le cadastre est nécessaire !
État des sols
La pollution du sol a un impact sur l'environnement et sur la
santé, les risques d’inondation ont un impact sur votre qualité de vie… Consultez les données
relatives à ce bien pour en avoir le cœur net !
ÉTAT DE LA POLLUTION DES SOLS
Aucune remarque particulière pour la parcelle C234w15
Source : Cliquez-ici
Légende :
ZONE INONDABLE
Aucune remarque particulière pour la parcelle C234w15
Source : Cliquez-ici
Légende :
Certificats
Informez-vous sur la performance énergétique de ce bien et assurez-vous que ses installations électriques sont bien aux normes !
PERFORMANCE ÉNERGÉTIQUE
Économe
Très énergivore
CERTIFICAT ÉLECTRIQUE (étage 00 ) + (étage Sous-sol +01+02)
PROCES VERBAL D’EXAMEN DE CONFORMITE ET/OU DE VISITE DE CONTROLE D’UNE INSTALLATION ELECTRIQUE BASSE TENSION
La nouvelle installationNon conforme
Agent
visiteur
Mohamed Izmar
Date
de certification
13/06/2024
Visite de contrôle
à effectuer avant le
13/06/2025
DATA ROOM
Nous avons mis tous les documents importants dans la date room, n’hésitez pas à télécharger ce dont vous avez besoin !
Nous avons mis tous les documents importants dans la date room, n’hésitez pas à télécharger ce dont vous avez besoin !
Besoin de crédit
Maintenant que vous êtes sûrs d’avoir fait le bon choix, calculez la valeur totale de cette acquisition (valeur du bien et frais annexes) et estimez vos besoins en crédit !
Simulation de crédit
| Prix d'achat | € |
| Rénovation | € |
| Rénovation HTVA | {{ calculeData.renovationHTVA | number:2 }} € |
| TVA | {{ calculeData.tva | number:2 }} € |
| Fonds propres | € |
| Acompte dû (disponible au compromis de vente) | {{ calculeData.prix * 0.1 | number:2 }} € |
| Reste des liquidités (disponible à l'acte) | {{ calculeData.avance | number:2 }} € |
| Crédit pont | {{ calculeData.creditPont | number:2 }} € |
| Prix de vente de votre bien existant | € |
| Solde du crédit existant | € |
| Frais d'acte d'achat | {{ calculeData.droit + calculeData.fraisNotaire | number:2 }} € |
| Droits d'enregistrement | {{ calculeData.droit | number:2 }} € |
|
Abattement
Suis-je éligible à une réduction des droits d’enregistrement ? |
|
| Frais de notaire | {{ calculeData.fraisNotaire | number:2 }} € |
| Autres frais | {{ calculeData.inscription + calculeData.fraisDossier + calculeData.autreFrais | number:2 }} € |
| Frais liés à l'acte hypothécaire | {{ calculeData.inscription | number:2 }} € |
| Frais de dossier et expertise bancaire | {{ calculeData.fraisDossier | number:2 }} € |
| Autres frais | € |
| Montant du crédit | {{ calculeData.montantCredit | number:2 }} € | |
La présente simulation se base sur un taux d’intérêt du 16/07/2024. Ce calcul est indicatif et sujet à changement.
Choix du type de crédit
| Taux | Type | CAP | Mensualité | Mensualité Min | Mensualité Max | |
|---|---|---|---|---|---|---|
| {{ tx.banque }} {{ $index+1 }} | {{ tx.taux | number:2 }}% | {{ tx.type }} | -{{ tx.capNeg }}%/+{{ tx.capPos }}% | {{ tx.mens | number:2 }}€ | {{ tx.min | number:2 }}€ | {{ tx.max | number:2 }}€ |
| Taux | Type | CAP | Mensualité | Mensualité Min | Mensualité Max | |
|---|---|---|---|---|---|---|
| {{ tx.banque }} {{ $index+1 }} | {{ tx.taux | number:2 }}% | {{ tx.type }} | -{{ tx.capNeg }}%/+{{ tx.capPos }}% | {{ tx.mens | number:2 }}€ | {{ tx.min | number:2 }}€ | {{ tx.max | number:2 }}€ |
| Taux | Type | CAP | Mensualité | Mensualité Min | Mensualité Max | |
|---|---|---|---|---|---|---|
| {{ tx.banque }} {{ $index+1 }} | {{ tx.taux | number:2 }}% | {{ tx.type }} | -{{ tx.capNeg }}%/+{{ tx.capPos }}% | {{ tx.mens | number:2 }}€ | {{ tx.min | number:2 }}€ | {{ tx.max | number:2 }}€ |
Rentabilité
Cout total de l’acquisition
| Prix d'achat | {{ calculeData.prix | number:2 }} € |
| Rénovation | + {{ calculeData.prixTransRenovation | number:2 }} € |
| Frais | + {{ calculeData.frais | number:2 }} € |
| Coût total | + {{ calculeData.frais + calculeData.prixTransRenovation + calculeData.prix | number:2 }} € |
| Fonds propres + crédit pont | {{ calculeData.totalFP+calculeData.creditPont | number:2 }} € |
| Montant du crédit | {{ calculeData.montantCredit | number:2 }} € |
| Coût total | + {{ calculeData.creditPont + calculeData.totalFP + calculeData.montantCredit | number:2 }} € |
Rentabilité sur actifs
Durée de détention année(s)
Gain réel {{ calculeData.gainReel | number:0 }} €
Rendement sur actif {{ calculeData.rendementSurActif | number:2 }} %
Revenus
| Revenu locatif annuel Brut | € |
| Charge annuelle {{ calculeData.pourcentageCharge | number:2 }}% | {{ calculeData.chargeLocatifAnnuel | number:2 }} € |
| Précompte immobilier | {{ calculeData.precomteImmo | number:2 }} € |
| Autre charge annuelle | € |
| Revenu locatif annuel net | {{ calculeData.revenuLocatifAnnuelNet | number:2 }} € |
| Total revenu locatif après {{ calculeData.dureeDetention }} année(s) tenant compte d'une inflation de % |
{{ calculeData.totalRevenuLocatif | number:2 }} € |
| Plus-value latente | {{ calculeData.pluvalueLatente | number:2 }} % |
| Plus-value du bien après {{calculeData.dureeDetention}} année(s) | {{ calculeData.pluvalueBien | number:2 }} € |
| Total revenu locatif après {{ calculeData.dureeDetention }} année(s) | {{ calculeData.totalRevenuLocatif | number:2 }} € |
| Gain brut sur le prix de base après {{ calculeData.dureeDetention }} année(s) | +{{ calculeData.gainBrut | number:2 }} € |
Charges
| Durée du crédit | {{ calculeData.duree | number:2 }} ans |
| Taux | {{ calculeData.taux | number:2 }} % |
| Mensualité | {{ calculeData.mensualite | number:2 }} € |
| Total interêts après {{calculeData.dureeDetention}} année(s) | {{ calculeData.totalInteret | number:2 }} € |
| Total frais | {{ calculeData.frais | number:2 }} € |
| Total | {{ calculeData.InteretFrais | number:2 }} € |
Gain réel
Rendement sur actif
Cash flow
| Année | Coût | Revenu locatif | Gain |
|---|---|---|---|
| {{ $index }} | {{ ch.payment | number:2 }} € | {{ ch.revenuLocatif | number:2 }} € | {{ - ch.fondPropre | number:2 }} € |
Av. Louise 433 1050 Bruxelles - 02 648 01 20
Drève Richelle 96 1410 Waterloo - 02 354 29 39
Av. Prekelinden 83 1200 Woluwe-St-Lambert - 02 734 00 36