Suis-je éligible à une réduction d’impôt ?
Ban Eik 9
PRIX : 420 000 €
Type: Maison | Région: Flandre | Commune: Wezembeek-Oppem
Maison 3F, 3CH + bureau ,garage, cave, véranda, joli jardin orienté sud-est.
Surface habitable: 144 m²
Surface terrain: 176 m²
Chambres: 3
Salle de douche: 1
Garage: 1
Cave: 1
Dressing: 1
Jardin: Orienté sud-est
Vidéo
Découvrez le bien en visualisant cette vidéo
VISITE VIRTUELLE
Vous voulez en voir plus ? Visitez le bien comme si vous y étiez à travers cette visite virtuelle
Localisation
Ce bien vous correspond ? Découvrez maintenant si sa localisation vous convient !
Commerces
Pharmacies
Restaurants
Boulangeries
Crèches
Parcs
Écoles
Universités
Déplacements
Plans intérieurs
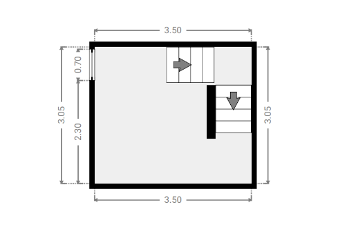
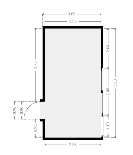
Sous-sol
SURFACE TOTALE : 41.41 m² | SURFACE HABITABLE : 10.66 m² | PIÈCE(S) : 2
1x Garage
1x Cave
Garage
SURFACE : 31.05 m²
Cave
SURFACE : 10.68 m²
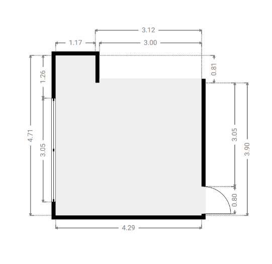
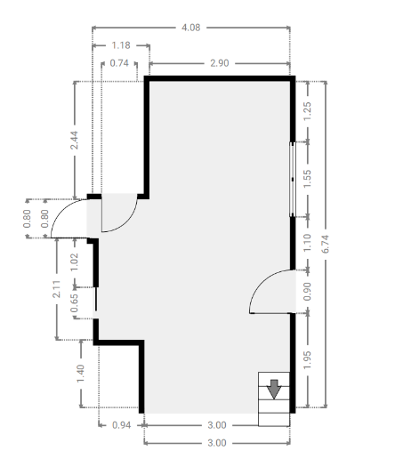
Rez-de-chaussée
SURFACE TOTALE : 86.73 m² | SURFACE HABITABLE : 86.73 m² | PIÈCE(S) : 9
1x Véranda
1x Salle à manger
1x Hall
1x Cuisine
1x Séjour
1x Chambre 1
Véranda
SURFACE : 16.25 m²
Salle à manger
SURFACE : 22.85 m²
SURFACE : 1.92 m²
Hall
SURFACE : 8.37 m²
Cuisine
SURFACE : 6.21 m²
Séjour
SURFACE : 17.69 m²
Chambre 1
SURFACE : 11.03 m²
SURFACE : 1.37 m²
W.C.
SURFACE : 1.1 m²
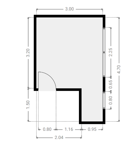
1er étage
SURFACE TOTALE : 37.75 m² | SURFACE HABITABLE : 37.57 m² | PIÈCE(S) : 6
2x Chambre(s)
1x Dressing
1x S.D.D.
Chambre 2
SURFACE : 11.87 m²
SURFACE : 4.24 m²
Dressing
SURFACE : 5.98 m²
Chambre 3
SURFACE : 9.49 m²
S.D.D.
SURFACE : 5.36 m²
Toilettes
SURFACE : 0.82 m²
RECHERCHE CADASTRALE
Vous souhaitez mieux connaître votre parcelle et connaître la surface dont vous jouirez en achetant ce bien, alors consulter le cadastre est nécessaire !
Surface : 171.67 m²
Parcelle : B497t8
Certificats
Informez-vous sur la performance énergétique de ce bien et assurez-vous que ses installations électriques sont bien aux normes !
PERFORMANCE ÉNERGÉTIQUE
Économe
Très énergivore
CERTIFICAT ÉLECTRIQUE
PROCES VERBAL D’EXAMEN DE CONFORMITE ET/OU DE VISITE DE CONTROLE D’UNE INSTALLATION ELECTRIQUE BASSE TENSION
La nouvelle installationNon conforme
Agent
visiteur
Edip Sehan
Date
de certification
31/01/2023
Visite de contrôle
à effectuer avant le
06/01/2024
Audit technique
En prévoyant un budget précis des transformations et/ou réparations à opérer sur ce bien, l'expertise réalisée par un architecte neutre et indépendant vous permet de mieux évaluer la valeur de ce bien !
Score général attribué par l’auditeur *
Conseils généraux en termes de performances énergétiques du bâtiment :
Le plancher du grenier est isolé par une couche de laine de roche en pose libre.
Le renouvellement de cette couche maintiendra l'espace thermique tampon fonctionnel.
Cet espace est difficile à utiliser comme grenier de rangement vu la structure de fermettes supportant la couverture.
Les châssis datent de 1988 et sont encore en bon état. Envisager de remplacer les vitrages par de plus performants n'améliore pas sensiblement la performance thermique de la maison.
Par contre, l'installation d’un système de ventilation double-flux assainir les pièces humides qui manquent de ventilation.
Avis général et conseils de l'inspecteur :
La maison est saine et présente les défauts classiques de son âge : vétusté des mobiliers sanitaires et de cuisine, finitions datées.
Il sera primordial de refaire entièrement les installations électriques ainsi que l'alimentation en eau.
DISCLAIMER
La conclusion et les conseils donnés sont le résultat d’une inspection indépendante, réalisée par un architecte expérimenté et agréé par ImmoPass.
Les éventuelles estimations budgétaires contenues dans ce rapport sont données à titre indicatif et ne constituent pas un devis. Nous recommandons de réaliser un Cahier des Charges sur tout ou partie des travaux à entreprendre et une analyse des devis reçus. Les estimations sont exprimées hors taxes.
L’inspection a été réalisée de manière non-destructive, de manière visuelle uniquement. Ce rapport ne peut donc garantir l’absence totale de vices techniques cachés.
67 %
Zone inondable, zone acoustique, plan de secteurs, permis d’urbanisme ...
75 %
Certification énergétique, conformité électrique, cuve à mazout, sol, ...
80 %
Sécurité, aménagements, structures extérieures, entretien végétation, ...
70 %
Humidité généralisée, présence d’amiante, mérule, termites ...
86 %
Toiture, murs extérieurs, châssis et portes, évacuation eau de pluie, ...
84 %
Défauts structurels, humidité localisée, salubrité, état de fonctionnement..
83 %
Halls et escaliers, caves, combles et grenier, locaux techniques, ...
54 %
Système de chauffage, eau chaude sanitaire, électricité, entretiens techniques, ...
Zone orange dans le plan de charge sonore dû à la circulation routière (niveau 5 /10)
Risque potentiel selon cartographie
Vu plans 1973
Conclusion à tirer : refaire toute l'installation électrique
Compléter cet audit par un rapport d'entretien et d'analyse des gaz brûlés.
Enlever les mauvaises herbes qui poussent dans les joints des klinkers.
Terrasse extérieure en bois, lattage ancien à rénover
Porte difficile à faire coulisser.
Nettoyage des guides et des galets à prévoir.
État décrépitude, besoin de nouvelles protection et renforts.
Fuite suspectée au droit de l'arrivée d'eau, dans l'angle interieur gauche du meuble cuisine
Risque d’incendie.
Cloison légère entre séjour et cuisine, sous le papier peint.
Réparation à reprendre en façade avant, côté maison mitoyenne, au-dessus du premier nichoir à hirondelles en partant de la gauche.
Oui, à l'abri de jardin. A nettoyer régulièrement.
Nettoyer les chambres de décompression et les évacuations.
Aucun détecteur installé. A faire absolument. 1 détecteur par niveau, 1 dans le garage, soit 5 en tout.
Graphite pour les charnières, paumelles et serrures
A dégraisser.
Problème de fuite aux canalisations au fond du meuble de cuisine.
RISQUE D’INCENDIE.
Mobilier vétuste et endommagé par les fuites d'eau. Voir points précédents.
Manque de ventilation aux deux toilettes
Robinet lave-mains du rez bloqué fermé.
L'escalier intérieur au séjour ne dispose pas de garde-corps.
Trappe d'accès difficile à ouvrir, serrure à remplacer
Rien d'anormal dans une cave mal ventilée. Problème facile à résoudre.
Ventilation par le soupirant. À ne pas maintenir fermé en permanence pour éviter les problèmes dont question plus haut.
Attention : plafond bas et structure de porte sectionelle sous plafonds !
Vide ventilé à nettoyer
L'entrepreneur a indiqué son passage, mais nous ne disposons pas des rapports au moment de la rédaction de l'audit.
Dernier entretien 23/11/21 - nouvel entretien à programmer avant l'hiver.
Fuite probable. Taux anormal d'humidité et mobilier endommagé.
Voir points précédents évoquant ce problème.
Installation vétuste voire dangereuse en cuisine. A refaire impérativement.
DATA ROOM
Nous avons mis tous les documents importants dans la date room, n’hésitez pas à télécharger ce dont vous avez besoin !
Nous avons mis tous les documents importants dans la date room, n’hésitez pas à télécharger ce dont vous avez besoin !
Besoin de crédit
Maintenant que vous êtes sûrs d’avoir fait le bon choix, calculez la valeur totale de cette acquisition (valeur du bien et frais annexes) et estimez vos besoins en crédit !
Simulation de crédit
| Prix d'achat | € |
| Rénovation | € |
| Rénovation HTVA | {{ calculeData.renovationHTVA | number:2 }} € |
| TVA | {{ calculeData.tva | number:2 }} € |
| Fonds propres | € |
| Acompte dû (disponible au compromis de vente) | {{ calculeData.prix * 0.1 | number:2 }} € |
| Reste des liquidités (disponible à l'acte) | {{ calculeData.avance | number:2 }} € |
| Crédit pont | {{ calculeData.creditPont | number:2 }} € |
| Prix de vente de votre bien existant | € |
| Solde du crédit existant | € |
| Frais d'acte d'achat | {{ calculeData.droit + calculeData.fraisNotaire | number:2 }} € |
| Droits d'enregistrement | {{ calculeData.droit | number:2 }} € |
|
Abattement
Suis-je éligible à une réduction des droits d’enregistrement ? |
|
| Frais de notaire | {{ calculeData.fraisNotaire | number:2 }} € |
| Autres frais | {{ calculeData.inscription + calculeData.fraisDossier + calculeData.autreFrais | number:2 }} € |
| Frais liés à l'acte hypothécaire | {{ calculeData.inscription | number:2 }} € |
| Frais de dossier et expertise bancaire | {{ calculeData.fraisDossier | number:2 }} € |
| Autres frais | € |
| Montant du crédit | {{ calculeData.montantCredit | number:2 }} € | |
Choix du type de crédit
| Taux | Type | CAP | Mensualité | Mensualité Min | Mensualité Max | |
|---|---|---|---|---|---|---|
| {{ tx.banque }} {{ $index+1 }} | {{ tx.taux | number:2 }}% | {{ tx.type }} | -{{ tx.capNeg }}%/+{{ tx.capPos }}% | {{ tx.mens | number:2 }}€ | {{ tx.min | number:2 }}€ | {{ tx.max | number:2 }}€ |
| Taux | Type | CAP | Mensualité | Mensualité Min | Mensualité Max | |
|---|---|---|---|---|---|---|
| {{ tx.banque }} {{ $index+1 }} | {{ tx.taux | number:2 }}% | {{ tx.type }} | -{{ tx.capNeg }}%/+{{ tx.capPos }}% | {{ tx.mens | number:2 }}€ | {{ tx.min | number:2 }}€ | {{ tx.max | number:2 }}€ |
| Taux | Type | CAP | Mensualité | Mensualité Min | Mensualité Max | |
|---|---|---|---|---|---|---|
| {{ tx.banque }} {{ $index+1 }} | {{ tx.taux | number:2 }}% | {{ tx.type }} | -{{ tx.capNeg }}%/+{{ tx.capPos }}% | {{ tx.mens | number:2 }}€ | {{ tx.min | number:2 }}€ | {{ tx.max | number:2 }}€ |
Rentabilité
Cout total de l’acquisition
| Prix d'achat | {{ calculeData.prix | number:2 }} € |
| Rénovation | + {{ calculeData.prixTransRenovation | number:2 }} € |
| Frais | + {{ calculeData.frais | number:2 }} € |
| Coût total | + {{ calculeData.frais + calculeData.prixTransRenovation + calculeData.prix | number:2 }} € |
| Fonds propres + crédit pont | {{ calculeData.totalFP+calculeData.creditPont | number:2 }} € |
| Montant du crédit | {{ calculeData.montantCredit | number:2 }} € |
| Coût total | + {{ calculeData.creditPont + calculeData.totalFP + calculeData.montantCredit | number:2 }} € |
Rentabilité sur actifs
Durée de détention année(s)
Gain réel {{ calculeData.gainReel | number:0 }} €
Rendement sur actif {{ calculeData.rendementSurActif | number:2 }} %
Revenus
| Revenu locatif annuel Brut | € |
| Charge annuelle {{ calculeData.pourcentageCharge | number:2 }}% | {{ calculeData.chargeLocatifAnnuel | number:2 }} € |
| Précompte immobilier | {{ calculeData.precomteImmo | number:2 }} € |
| Autre charge annuelle | € |
| Revenu locatif annuel net | {{ calculeData.revenuLocatifAnnuelNet | number:2 }} € |
| Total revenu locatif après {{ calculeData.dureeDetention }} année(s) tenant compte d'une inflation de % |
{{ calculeData.totalRevenuLocatif | number:2 }} € |
| Plus-value latente | {{ calculeData.pluvalueLatente | number:2 }} % |
| Plus-value du bien après {{calculeData.dureeDetention}} année(s) | {{ calculeData.pluvalueBien | number:2 }} € |
| Total revenu locatif après {{ calculeData.dureeDetention }} année(s) | {{ calculeData.totalRevenuLocatif | number:2 }} € |
| Gain brut sur le prix de base après {{ calculeData.dureeDetention }} année(s) | +{{ calculeData.gainBrut | number:2 }} € |
Charges
| Durée du crédit | {{ calculeData.duree | number:2 }} ans |
| Taux | {{ calculeData.taux | number:2 }} % |
| Mensualité | {{ calculeData.mensualite | number:2 }} € |
| Total interêts après {{calculeData.dureeDetention}} année(s) | {{ calculeData.totalInteret | number:2 }} € |
| Total frais | {{ calculeData.frais | number:2 }} € |
| Total | {{ calculeData.InteretFrais | number:2 }} € |
Gain réel
Rendement sur actif
Cash flow
| Année | Coût | Revenu locatif | Gain |
|---|---|---|---|
| {{ $index }} | {{ ch.payment | number:2 }} € | {{ ch.revenuLocatif | number:2 }} € | {{ - ch.fondPropre | number:2 }} € |
Av. Louise 433 Louizalaan 1050 Bruxelles - Brussel
Drève Richelle, 96 - 1410 Waterloo