Suis-je éligible à une réduction des droits d’enregistrement ?
Balkans 11
PRIX : 695 000,00 €
Type: Immeuble de rapport | Région: Bruxelles | Commune: Uccle
Situé dans une rue perpendiculaire à l'Avenue de Messidor, non loin de la Chaussée d'Alsemberg et de toutes ses commodités,
By the Way vous présente cet immeuble de rapport sans ascenseur composé de 2 appartements bien entretenus et un grand garage 3 voitures.
Les 3 unités sont louées. Composition :
au rez-de-chaussée, grand garage 3 voitures +/- 65m2, pouvant servir également d'atelier.
Au 1er étage, appartement 1 chambre +/- 66m2 (selon PEB), séjour, cuisine séparée menant à une jolie terrasse +/- 11,5m2, salle de bains et WC séparé.
Chaudière individuelle au gaz. PEB G. Électricité non conforme.
Au 2ème et dernier étage, appartement 1 chambre +/- 69m2 (selon PEB), séjour, cuisine séparée menant à une terrasse, salle de bains et WC séparé.
Chaudière individuelle au gaz Vaillant. PEB F.
Électricité non conforme.
Au sous-sol, caves.
Toiture isolée en 2018.
Surface total: 252.45 m²
Chambres: 2
Salles de bain: 2
Terrasses: 2
Garage: 1
Caves: 5
Appartements :2
Vidéo
Découvrez le bien en visualisant cette vidéo
VISITE VIRTUELLE
Vous voulez en voir plus ? Visitez le bien comme si vous y étiez à travers cette visite virtuelle
Localisation
Ce bien vous correspond ? Découvrez maintenant si sa localisation vous convient !
Commerces
Pharmacies
Restaurants
Boulangeries
Crèches
Parcs
Écoles
Universités
Déplacements
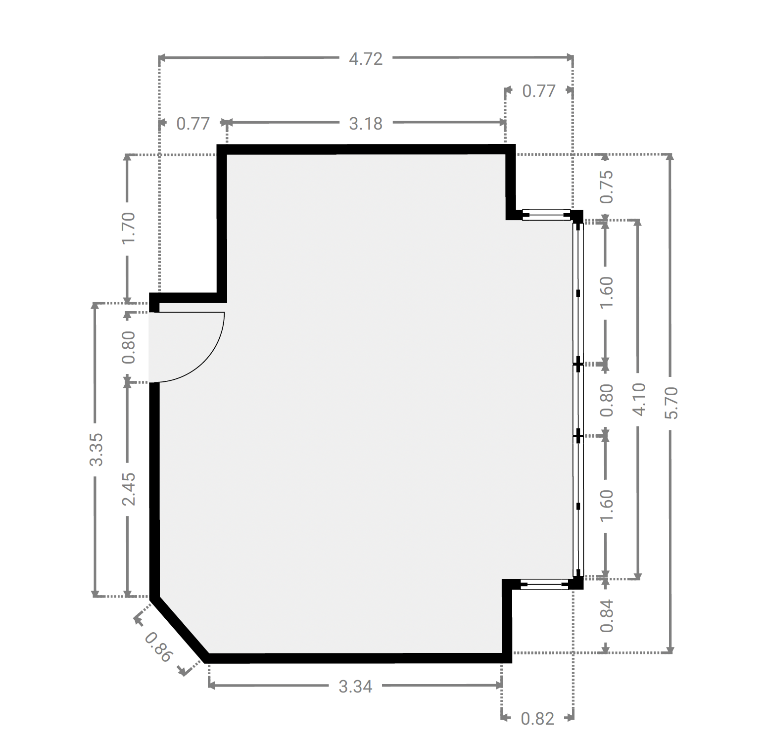
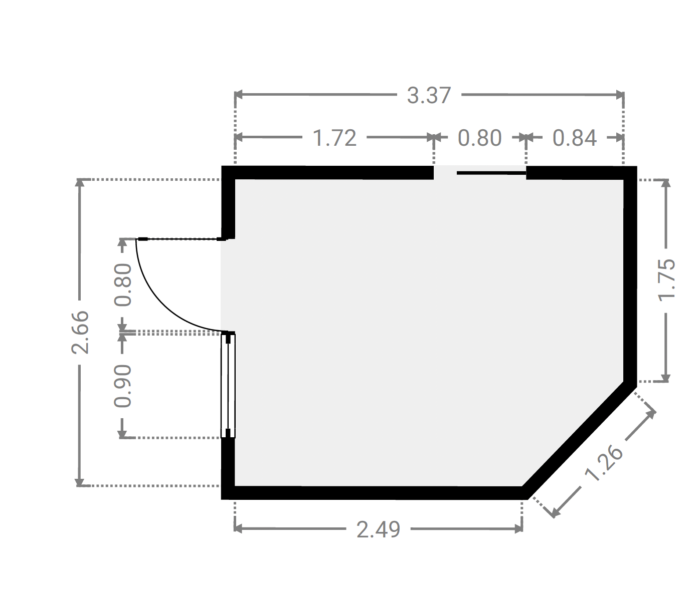
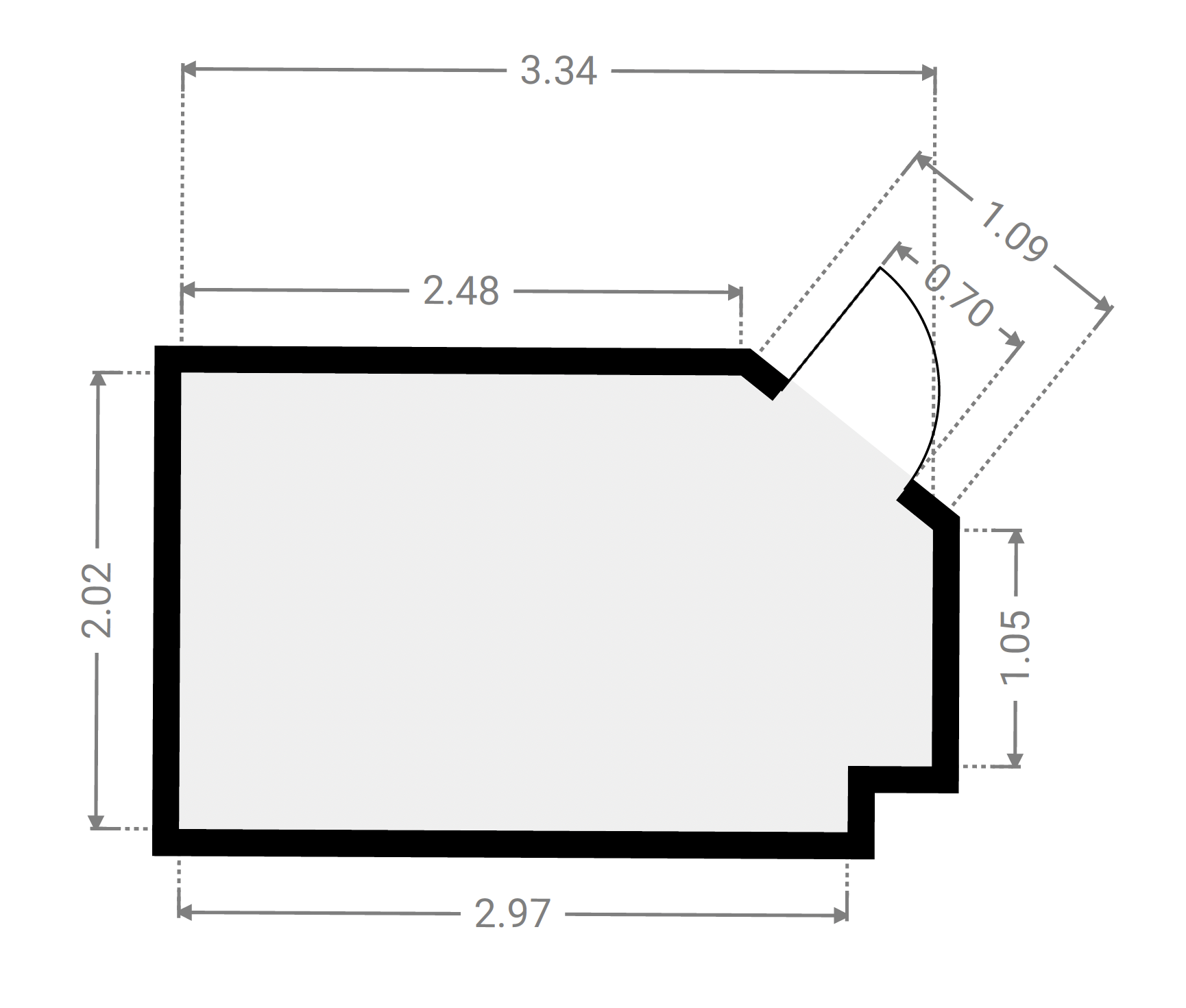
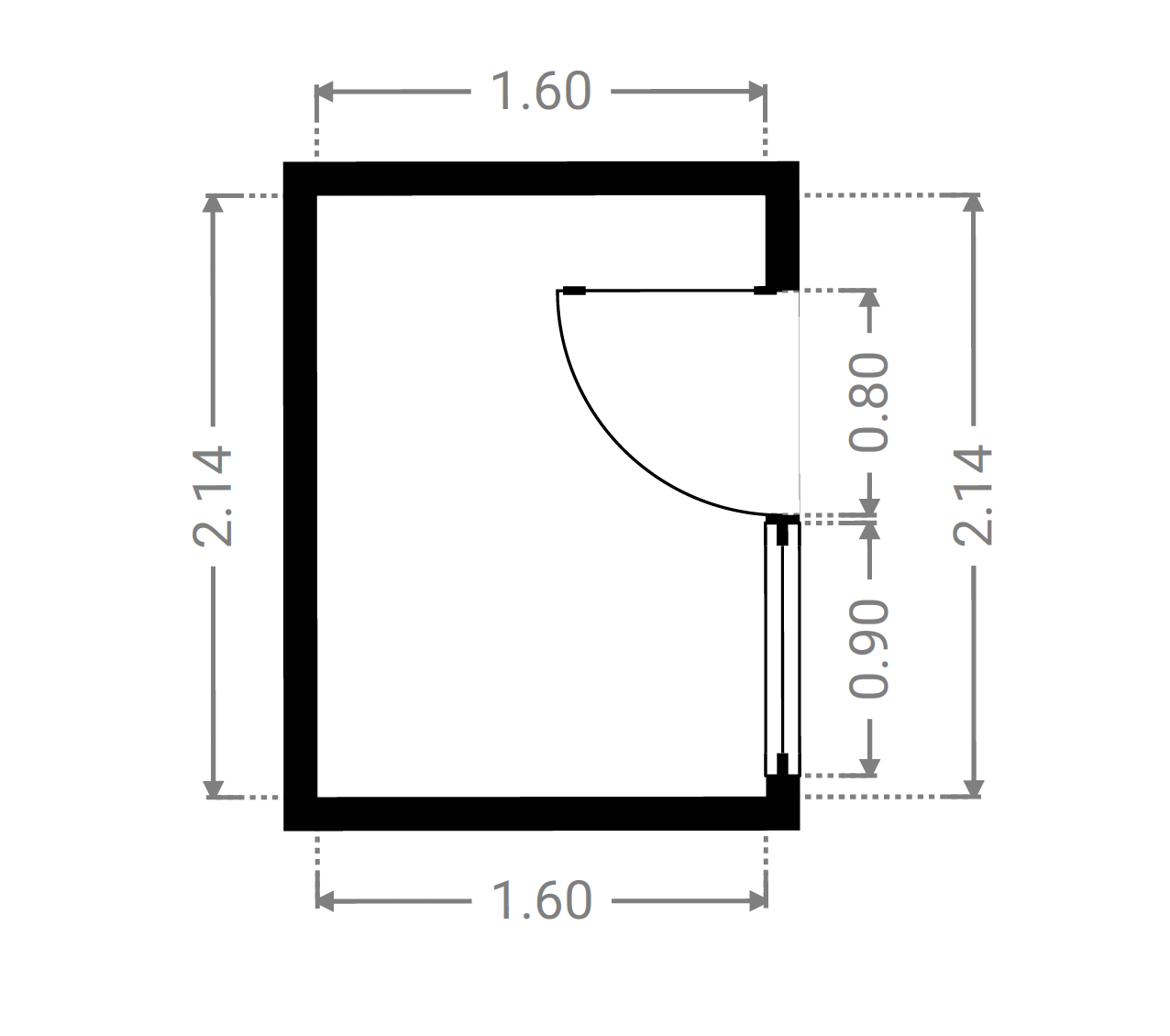
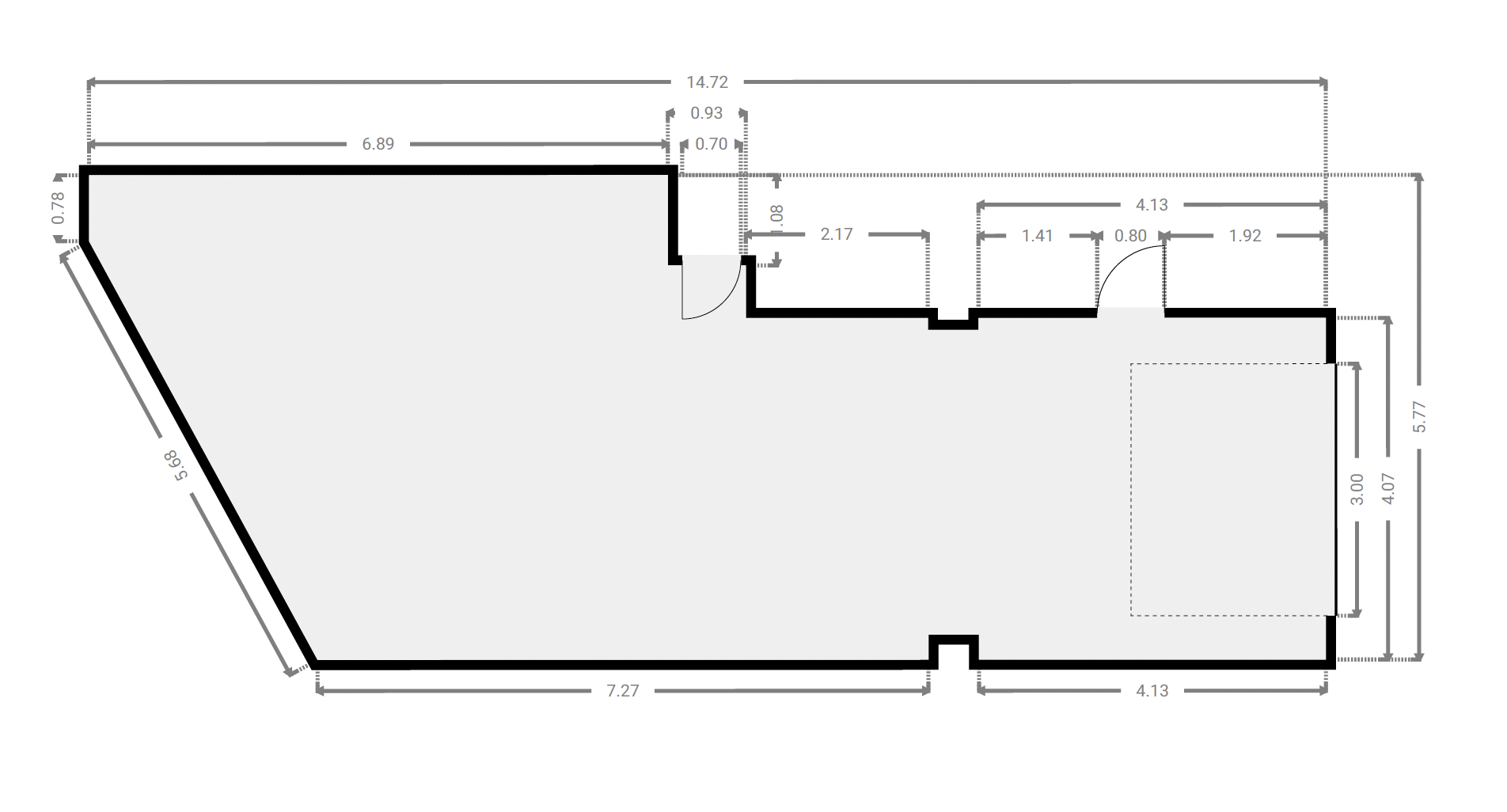
Plans intérieurs
Sous-sol
SURFACE TOTALE : 38.84 m² | SURFACE HABITABLE : 38.84 m² | PIÈCE(S) : 6
5x Cave(s)
Cave 1
SURFACE : 2.93 m²
Cave 2
SURFACE : 5.77 m²
Cave 3
SURFACE : 6.36 m²
Cave 4
SURFACE : 3.54 m²
Cave 5
SURFACE : 9.97 m²
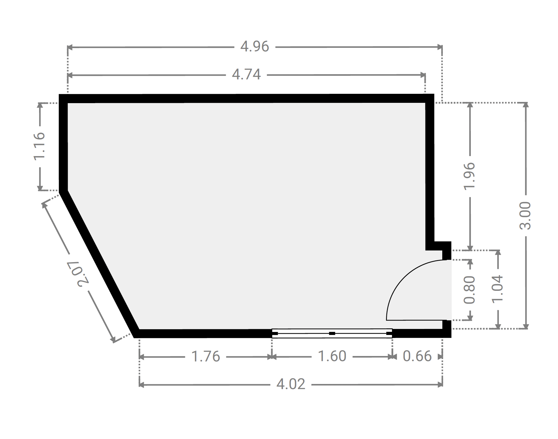
Rez-de-chaussée
SURFACE TOTALE : 75.79 m² | SURFACE HABITABLE : 10.65 m² | PIÈCE(S) : 3
1x Hall
1x Garage/Atelier
Hall
SURFACE : 9.91 m²
Garage/Atelier
SURFACE : 65.15 m²
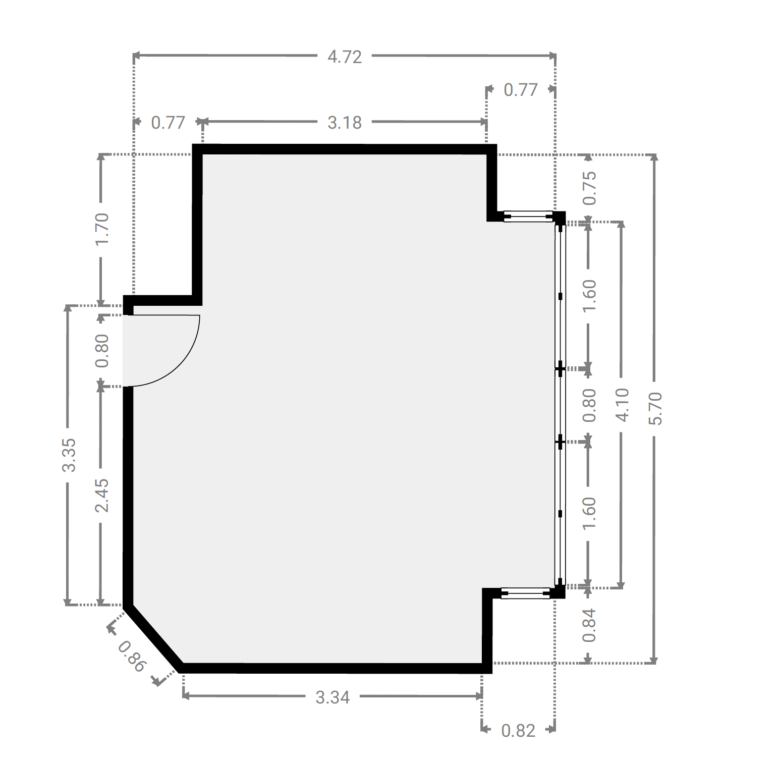
1er étage
SURFACE TOTALE : 73.27 m² | SURFACE HABITABLE : 61.54 m² | PIÈCE(S) : 8
1x Séjour 1
1x Cuisine 1
1x W.C
1x S.D.B 1
1x Chambre 1
1x Terrasse
Séjour 1
SURFACE : 24.14 m²
Cuisine 1
SURFACE : 8.55 m²
W.C
SURFACE : 1.21 m²
S.D.B 1
SURFACE : 3.16 m²
Chambre 1
SURFACE : 13.56 m²
Terrasse
SURFACE : 11.73 m²
2e étage
SURFACE TOTALE : 64.55 m² | SURFACE HABITABLE : 61.14 m² | PIÈCE(S) : 8
1x Séjour 2
1x Cuisine 2
1x W.C
1x S.D.B 2
1x Chambre 2
1x Terrasse
Séjour 2
SURFACE : 24.14 m²
Cuisine 2
SURFACE : 8.55 m²
W.C
SURFACE : 0.81 m²
S.D.B 2
SURFACE : 3.16 m²
Chambre 2
SURFACE : 13.56 m²
Terrasse
SURFACE : 3.41 m²
RECHERCHE CADASTRALE
Vous souhaitez mieux connaître votre parcelle et connaître la surface dont vous jouirez en achetant ce bien, alors consulter le cadastre est nécessaire !
État des sols
La pollution du sol a un impact sur l'environnement et sur la santé, les risques d’inondation ont un impact sur votre qualité de vie… Consultez les données relatives à ce bien pour en avoir le cœur net !
ÉTAT DE LA POLLUTION DES SOLS
Aucune remarque particulière pour la parcelle B215a3
Source : Cliquez-ici
Légende :
ZONE INONDABLE
Aucune remarque particulière pour la parcelle B215a3
Source : Cliquez-ici
Légende :
Certificats
Informez-vous sur la performance énergétique de ce bien et assurez-vous que ses installations électriques sont bien aux normes !
PERFORMANCE ÉNERGÉTIQUE 1ER Étage
Économe
Très énergivore
PERFORMANCE ÉNERGÉTIQUE 2ÈME ÉTAGE
Économe
Très énergivore
CERTIFICAT ÉLECTRIQUE 1ER Étage
PROCES VERBAL D’EXAMEN DE CONFORMITE ET/OU DE VISITE DE CONTROLE D’UNE INSTALLATION ELECTRIQUE BASSE TENSION
La nouvelle installationNon conforme
Agent
visiteur
Quentin Delhaye
Date
de certification
10/07/2023
Visite de contrôle
à effectuer avant le
au terme du délai de 18 mois prenant cours le jour de l’acte de vente
CERTIFICAT ÉLECTRIQUE 2ÉME ÉTAGE
PROCES VERBAL D’EXAMEN DE CONFORMITE ET/OU DE VISITE DE CONTROLE D’UNE INSTALLATION ELECTRIQUE BASSE TENSION
La nouvelle installationNon conforme
Agent
visiteur
Quentin Delhaye
Date
de certification
10/07/2023
Visite de contrôle
à effectuer avant le
au terme du délai de 18 mois prenant cours le jour de l’acte de vente
CERTIFICAT D’ÉTANCHÉITÉ DE LA CUVE À MAZOUT
PROCES VERBAL D’EXAMEN D’ÉTANCHÉITÉ ET/OU DE VISITE DE CONTROLE DE LA CUVE À MAZOUT
L'installation existanteÉtanche
Agent
visiteur
Geert Decorte
Date
de certification
21/08/2023
DATA ROOM
Nous avons mis tous les documents importants dans la date room, n’hésitez pas à télécharger ce dont vous avez besoin !
Nous avons mis tous les documents importants dans la date room, n’hésitez pas à télécharger ce dont vous avez besoin !
Besoin de crédit
Maintenant que vous êtes sûrs d’avoir fait le bon choix, calculez la valeur totale de cette acquisition (valeur du bien et frais annexes) et estimez vos besoins en crédit !
Simulation de crédit
| Prix d'achat | € |
| Rénovation | € |
| Rénovation HTVA | {{ calculeData.renovationHTVA | number:2 }} € |
| TVA | {{ calculeData.tva | number:2 }} € |
| Fonds propres | € |
| Acompte dû (disponible au compromis de vente) | {{ calculeData.prix * 0.1 | number:2 }} € |
| Reste des liquidités (disponible à l'acte) | {{ calculeData.avance | number:2 }} € |
| Crédit pont | {{ calculeData.creditPont | number:2 }} € |
| Prix de vente de votre bien existant | € |
| Solde du crédit existant | € |
| Frais d'acte d'achat | {{ calculeData.droit + calculeData.fraisNotaire | number:2 }} € |
| Droits d'enregistrement | {{ calculeData.droit | number:2 }} € |
|
Abattement
Suis-je éligible à une réduction des droits d’enregistrement ? |
|
| Frais de notaire | {{ calculeData.fraisNotaire | number:2 }} € |
| Autres frais | {{ calculeData.inscription + calculeData.fraisDossier + calculeData.autreFrais | number:2 }} € |
| Frais liés à l'acte hypothécaire | {{ calculeData.inscription | number:2 }} € |
| Frais de dossier et expertise bancaire | {{ calculeData.fraisDossier | number:2 }} € |
| Autres frais | € |
| Montant du crédit | {{ calculeData.montantCredit | number:2 }} € | |
La présente simulation se base sur un taux d’intérêt du 26/01/2024. Ce calcul est indicatif et sujet à changement.
Choix du type de crédit
| Taux | Type | CAP | Mensualité | Mensualité Min | Mensualité Max | |
|---|---|---|---|---|---|---|
| {{ tx.banque }} | {{ tx.taux | number:2 }}% | {{ tx.type }} | -{{ tx.capNeg }}%/+{{ tx.capPos }}% | {{ tx.mens | number:2 }}€ | {{ tx.min | number:2 }}€ | {{ tx.max | number:2 }}€ |
| Taux | Type | CAP | Mensualité | Mensualité Min | Mensualité Max | |
|---|---|---|---|---|---|---|
| {{ tx.banque }} | {{ tx.taux | number:2 }}% | {{ tx.type }} | -{{ tx.capNeg }}%/+{{ tx.capPos }}% | {{ tx.mens | number:2 }}€ | {{ tx.min | number:2 }}€ | {{ tx.max | number:2 }}€ |
| Taux | Type | CAP | Mensualité | Mensualité Min | Mensualité Max | |
|---|---|---|---|---|---|---|
| {{ tx.banque }} | {{ tx.taux | number:2 }}% | {{ tx.type }} | -{{ tx.capNeg }}%/+{{ tx.capPos }}% | {{ tx.mens | number:2 }}€ | {{ tx.min | number:2 }}€ | {{ tx.max | number:2 }}€ |
Rentabilité
Cout total de l’acquisition
| Prix d'achat | {{ calculeData.prix | number:2 }} € |
| Rénovation | + {{ calculeData.prixTransRenovation | number:2 }} € |
| Frais | + {{ calculeData.frais | number:2 }} € |
| Coût total | + {{ calculeData.frais + calculeData.prixTransRenovation + calculeData.prix | number:2 }} € |
| Fonds propres + crédit pont | {{ calculeData.totalFP+calculeData.creditPont | number:2 }} € |
| Montant du crédit | {{ calculeData.montantCredit | number:2 }} € |
| Coût total | + {{ calculeData.creditPont + calculeData.totalFP + calculeData.montantCredit | number:2 }} € |
Rentabilité sur actifs
Durée de détention année(s)
Gain réel {{ calculeData.gainReel | number:0 }} €
Rendement sur actif {{ calculeData.rendementSurActif | number:2 }} %
Revenus
| Revenu locatif annuel Brut | € |
| Charge annuelle {{ calculeData.pourcentageCharge | number:2 }}% | {{ calculeData.chargeLocatifAnnuel | number:2 }} € |
| Précompte immobilier | {{ calculeData.precomteImmo | number:2 }} € |
| Autre charge annuelle | € |
| Revenu locatif annuel net | {{ calculeData.revenuLocatifAnnuelNet | number:2 }} € |
| Total revenu locatif après {{ calculeData.dureeDetention }} année(s) tenant compte d'une inflation de % |
{{ calculeData.totalRevenuLocatif | number:2 }} € |
| Plus-value latente | {{ calculeData.pluvalueLatente | number:2 }} % |
| Plus-value du bien après {{calculeData.dureeDetention}} année(s) | {{ calculeData.pluvalueBien | number:2 }} € |
| Total revenu locatif après {{ calculeData.dureeDetention }} année(s) | {{ calculeData.totalRevenuLocatif | number:2 }} € |
| Gain brut sur le prix de base après {{ calculeData.dureeDetention }} année(s) | +{{ calculeData.gainBrut | number:2 }} € |
Charges
| Durée du crédit | {{ calculeData.duree | number:2 }} ans |
| Taux | {{ calculeData.taux | number:2 }} % |
| Mensualité | {{ calculeData.mensualite | number:2 }} € |
| Total interêts après {{calculeData.dureeDetention}} année(s) | {{ calculeData.totalInteret | number:2 }} € |
| Total frais | {{ calculeData.frais | number:2 }} € |
| Total | {{ calculeData.InteretFrais | number:2 }} € |
Gain réel
Rendement sur actif
Cash flow
| Année | Coût | Revenu locatif | Gain |
|---|---|---|---|
| {{ $index }} | {{ ch.payment | number:2 }} € | {{ ch.revenuLocatif | number:2 }} € | {{ - ch.fondPropre | number:2 }} € |
Av. Louise 433 Louizalaan 1050 Bruxelles - Brussel
Drève Richelle, 96 - 1410 Waterloo