Suis-je éligible à une réduction des droits d’enregistrement ?
Arthur
Prix : 1.350.000 €
Type: Maison | Région: Wallonie | Commune: LIMAL (Wavre)
Grande maison de charme de 430m2, composée comme suit :
Au rez-de-chaussée : hall d’entrée, grand salon avec avec feu ouvert (insert avec récupérateur de chaleur), salle à manger, cuisine hyper-équipée dont 2 grands frigos USA, buanderie- lingerie (Miele) , cave, salle de jeux, toilette invités, espace de bureaux (5 pers).
A l’étage : 5 belles chambres chacune disposant de sa salle de bain ou douche et wc privatif. Les deux plus grandes chambres disposent d’un dressing et d’une télévision murale.
La maison est entièrement meublée et décorée avec soin.
A l’extérieur : carport (2places) + emplacements de parking 4 voitures à l’extérieur, portail électrique, système d’alarme, chauffage mazout, espace extérieur couvert (coin barbecue).
Jardin de 30 ares arboré, sans vis-à-vis, piscine avec volet électrique, système de pompe à chaleur.
Surface total: 430 m²
Salles de bains: 2
Salles de douche: 3
Cave: 1
Bureaux: 2
Parking: 4 emplacements
Chambres: 5
carport : 2 places
Jardin: 30 ares arboré
Piscine avec volet électrique
Système d’alarme
Système de pompe à chaleur
Vidéo
Découvrez le bien en visualisant cette vidéo
Localisation
Ce bien vous correspond ? Découvrez maintenant si sa localisation vous convient !
Commerces
Pharmacies
Restaurants
Boulangeries
Crèches
Parcs
Écoles
Universités
Déplacements
Plans intérieurs
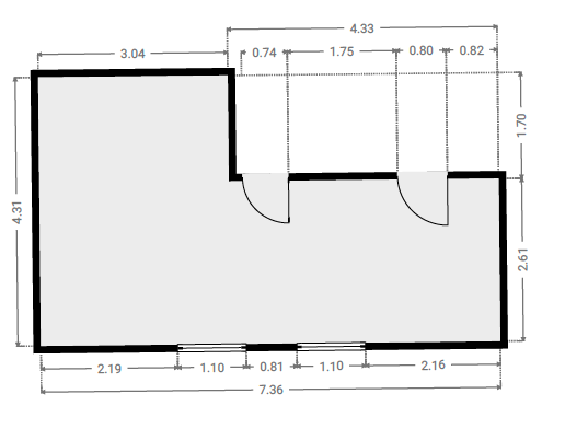
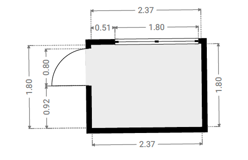
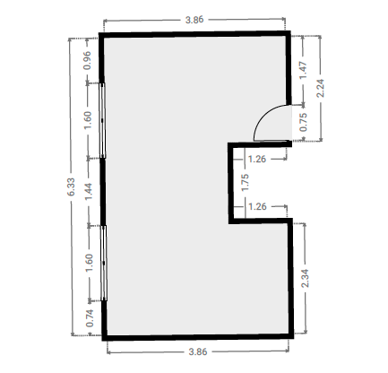
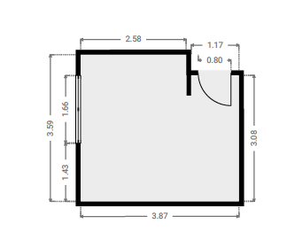
Sous-sol
SURFACE TOTALE : 13.36 m² | SURFACE HABITABLE : 13.36 m² | PIÈCE(S) : 1
La surface totale résulte de l’addition de la surface intérieure (c’est à dire calculée depuis l’intérieur des murs extérieurs) et des surfaces externes (Balcons,terrains, jardins..).
1x Cave
Cave
SURFACE : 13.36 m²
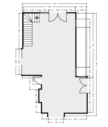
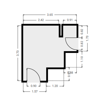
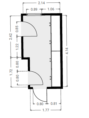
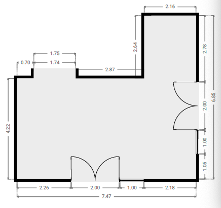
Rez-de-chaussée
SURFACE TOTALE : 192.8 m² | SURFACE HABITABLE : 192.8 m² | PIÈCE(S) : 8
La surface totale résulte de l’addition de la surface intérieure (c’est à dire calculée depuis l’intérieur des murs extérieurs) et des surfaces externes (Balcons,terrains, jardins..).
2x Bureau(x)
1x Hall
1x W.C
1x Séjour / Salle à manger
1x Séjour
1x Cuisine
1x Buanderie
Bureau 1
SURFACE : 25.18 m²
Bureau 2
SURFACE : 13.2 m²
Hall
SURFACE : 12.32 m²
W.C
SURFACE : 1.64 m²
Séjour 1/ Salle à manger
SURFACE : 64.02 m²
Séjour 2
SURFACE : 37.72 m²
Cuisine
SURFACE : 28.28 m²
Buanderie
SURFACE : 10.52 m²
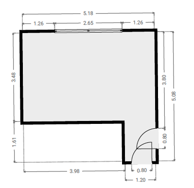
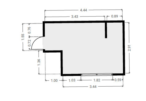
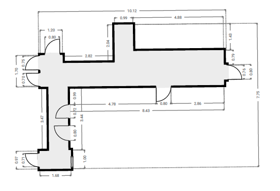
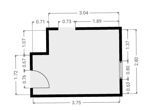
1er étage
SURFACE TOTALE : 172.25 m² | SURFACE HABITABLE : 172.25 m² | PIÈCE(S) : 18
La surface totale résulte de l’addition de la surface intérieure (c’est à dire calculée depuis l’intérieur des murs extérieurs) et des surfaces externes (Balcons,terrains, jardins..).
1x Couloir
5x Chambre(s)
3x W.C
3x S.D.D
2x Douche(s)
2x S.D.B
1x Dressing
1x Placard
Couloir
SURFACE : 23.35 m²
Chambre 4
SURFACE : 9.74 m²
W.C
SURFACE : 1.16 m²
S.D.D 3
SURFACE : 2.31 m²
Douche
SURFACE : 1.17 m²
Chambre 1
SURFACE : 19.93 m²
S.D.D 1
SURFACE : 4.27 m²
S.D.B 1
SURFACE : 11.46 m²
W.C
SURFACE : 1.1 m²
Chambre principale
SURFACE : 20.21 m²
Dressing
SURFACE : 8.24 m²
W.C
SURFACE : 1.36 m²
S.D.B 2
SURFACE : 24.36 m²
Douche
SURFACE : 2.12 m²
Chambre 2
SURFACE : 22.23 m²
Placard
SURFACE : 0.88 m²
Chambre 3
SURFACE : 14.11 m²
S.D.D 2
SURFACE : 4.36 m²
RECHERCHE CADASTRALE
Vous souhaitez mieux connaître votre parcelle et connaître la surface dont vous jouirez en achetant ce bien, alors consulter le cadastre est nécessaire !
État des sols
La pollution du sol a un impact sur l'environnement et sur la santé, les risques d’inondation ont un impact sur votre qualité de vie… Consultez les données relatives à ce bien pour en avoir le cœur net !
ÉTAT DE LA POLLUTION DES SOLS
Aucune remarque particulière pour la parcelle D432b2
Source : Cliquez-ici
Légende :
Zone inondable
Aucune remarque particulière pour la parcelle D432b2
Source : Cliquez-ici
Légende :
Certificats
Informez-vous sur la performance énergétique de ce bien et assurez-vous que ses installations électriques sont bien aux normes !
PERFORMANCE ÉNERGÉTIQUE
Économe
Très énergivore
Certification électrique
PROCES VERBAL D’EXAMEN DE CONFORMITE ET/OU DE VISITE DE CONTROLE D’UNE INSTALLATION ELECTRIQUE BASSE TENSION
L’installation Conforme
DATA ROOM
Nous avons mis tous les documents importants dans la date room, n’hésitez pas à télécharger ce dont vous avez besoin !
Nous avons mis tous les documents importants dans la date room, n’hésitez pas à télécharger ce dont vous avez besoin !
Besoin de crédit
Maintenant que vous êtes sûrs d’avoir fait le bon choix, calculez la valeur totale de cette acquisition (valeur du bien et frais annexes) et estimez vos besoins en crédit !
Simulation de crédit
| Prix d'achat | € |
| Rénovation | € |
| Rénovation HTVA | {{ calculeData.renovationHTVA | number:2 }} € |
| TVA | {{ calculeData.tva | number:2 }} € |
| Fonds propres | € |
| Acompte dû (disponible au compromis de vente) | {{ calculeData.prix * 0.1 | number:2 }} € |
| Reste des liquidités (disponible à l'acte) | {{ calculeData.avance | number:2 }} € |
| Crédit pont | {{ calculeData.creditPont | number:2 }} € |
| Prix de vente de votre bien existant | € |
| Solde du crédit existant | € |
| Frais d'acte d'achat | {{ calculeData.droit + calculeData.fraisNotaire | number:2 }} € |
| Droits d'enregistrement | {{ calculeData.droit | number:2 }} € |
|
Abattement
Suis-je éligible à une réduction des droits d’enregistrement ? |
|
| Frais de notaire | {{ calculeData.fraisNotaire | number:2 }} € |
| Autres frais | {{ calculeData.inscription + calculeData.fraisDossier + calculeData.autreFrais | number:2 }} € |
| Frais liés à l'acte hypothécaire | {{ calculeData.inscription | number:2 }} € |
| Frais de dossier et expertise bancaire | {{ calculeData.fraisDossier | number:2 }} € |
| Autres frais | € |
| Montant du crédit | {{ calculeData.montantCredit | number:2 }} € | |
La présente simulation se base sur un taux d’intérêt du 20/10/2023. Ce calcul est indicatif et sujet à changement.
Choix du type de crédit
| Taux | Type | CAP | Mensualité | Mensualité Min | Mensualité Max | |
|---|---|---|---|---|---|---|
| {{ tx.banque }} {{ $index+1 }} | {{ tx.taux | number:2 }}% | {{ tx.type }} | -{{ tx.capNeg }}%/+{{ tx.capPos }}% | {{ tx.mens | number:2 }}€ | {{ tx.min | number:2 }}€ | {{ tx.max | number:2 }}€ |
| Taux | Type | CAP | Mensualité | Mensualité Min | Mensualité Max | |
|---|---|---|---|---|---|---|
| {{ tx.banque }} {{ $index+1 }} | {{ tx.taux | number:2 }}% | {{ tx.type }} | -{{ tx.capNeg }}%/+{{ tx.capPos }}% | {{ tx.mens | number:2 }}€ | {{ tx.min | number:2 }}€ | {{ tx.max | number:2 }}€ |
| Taux | Type | CAP | Mensualité | Mensualité Min | Mensualité Max | |
|---|---|---|---|---|---|---|
| {{ tx.banque }} {{ $index+1 }} | {{ tx.taux | number:2 }}% | {{ tx.type }} | -{{ tx.capNeg }}%/+{{ tx.capPos }}% | {{ tx.mens | number:2 }}€ | {{ tx.min | number:2 }}€ | {{ tx.max | number:2 }}€ |
Rentabilité
Cout total de l’acquisition
| Prix d'achat | {{ calculeData.prix | number:2 }} € |
| Rénovation | + {{ calculeData.prixTransRenovation | number:2 }} € |
| Frais | + {{ calculeData.frais | number:2 }} € |
| Coût total | + {{ calculeData.frais + calculeData.prixTransRenovation + calculeData.prix | number:2 }} € |
| Fonds propres + crédit pont | {{ calculeData.totalFP+calculeData.creditPont | number:2 }} € |
| Montant du crédit | {{ calculeData.montantCredit | number:2 }} € |
| Coût total | + {{ calculeData.creditPont + calculeData.totalFP + calculeData.montantCredit | number:2 }} € |
Rentabilité sur actifs
Durée de détention année(s)
Gain réel {{ calculeData.gainReel | number:0 }} €
Rendement sur actif {{ calculeData.rendementSurActif | number:2 }} %
Revenus
| Revenu locatif annuel Brut | € |
| Charge annuelle {{ calculeData.pourcentageCharge | number:2 }}% | {{ calculeData.chargeLocatifAnnuel | number:2 }} € |
| Précompte immobilier | {{ calculeData.precomteImmo | number:2 }} € |
| Autre charge annuelle | € |
| Revenu locatif annuel net | {{ calculeData.revenuLocatifAnnuelNet | number:2 }} € |
| Total revenu locatif après {{ calculeData.dureeDetention }} année(s) tenant compte d'une inflation de % |
{{ calculeData.totalRevenuLocatif | number:2 }} € |
| Plus-value latente | {{ calculeData.pluvalueLatente | number:2 }} % |
| Plus-value du bien après {{calculeData.dureeDetention}} année(s) | {{ calculeData.pluvalueBien | number:2 }} € |
| Total revenu locatif après {{ calculeData.dureeDetention }} année(s) | {{ calculeData.totalRevenuLocatif | number:2 }} € |
| Gain brut sur le prix de base après {{ calculeData.dureeDetention }} année(s) | +{{ calculeData.gainBrut | number:2 }} € |
Charges
| Durée du crédit | {{ calculeData.duree | number:2 }} ans |
| Taux | {{ calculeData.taux | number:2 }} % |
| Mensualité | {{ calculeData.mensualite | number:2 }} € |
| Total interêts après {{calculeData.dureeDetention}} année(s) | {{ calculeData.totalInteret | number:2 }} € |
| Total frais | {{ calculeData.frais | number:2 }} € |
| Total | {{ calculeData.InteretFrais | number:2 }} € |
Gain réel
Rendement sur actif
Cash flow
| Année | Coût | Revenu locatif | Gain |
|---|---|---|---|
| {{ $index }} | {{ ch.payment | number:2 }} € | {{ ch.revenuLocatif | number:2 }} € | {{ - ch.fondPropre | number:2 }} € |
Av. Louise 461 1050 Bruxelles - 02 648 01 20
Drève Richelle 96 1410 Waterloo - 02 354 29 39
Av. Prekelinden 83 1200 Woluwe-St-Lambert - 02 734 00 36