Suis-je éligible à une réduction des droits d’enregistrement ?
Archibald
PRIX : 1 410 000,00€
Type: Maison | Région: Bruxelles | Commune: Uccle
L'architecture, caractérisée par des volumes épurés et des lignes simples du mouvement moderne, met l'accent sur la connexion avec la nature. Les pièces principales, orientées vers le jardin et exposées plein sud, s'étendent de manière horizontale au rez-de-chaussée, avec de grandes baies vitrées offrant une luminosité optimale. Le jardin dispose de terrasses, d'espaces boisés et de parterres fleuris, invitant à la détente en plein air. Parmi les caractéristiques, on trouve un vaste séjour de +/- 54 m², une cuisine avec bow-window, et des chambres réparties sur deux niveaux de +/-25, +/-17, +/-25 et de 21 m², bénéficiant chacune d'un accès direct au jardin. Le bien dispose également d'un garage pour deux voitures. L'étage inférieur comprend également, un bureau pouvant être transformer en chambre. En extérieur, la propriété dispose d'une grande terrasse de +/- 145 m², , d'un portail sécurisé, d'un parking, ainsi que de diverses installations telles qu'une cabane de jardin et une piste de pétanque. La maison nécessite quelques rénovations pour répondre aux normes actuelles, mais son immense potentiel et son cadre naturel exceptionnel en font une propriété rare.
Surface habitable: 239,21 m² NET
Jardin : Oui
Chambres: 4
Salles de bain: 2
Terrasse: Oui
Parking ouvert : Oui
Garage: 1
Bureau: 1
Balcon: 1
Vidéo
Découvrez le bien en visualisant cette vidéo
VISITE VIRTUELLE
Vous voulez en voir plus ? Visitez le bien comme si vous y étiez à travers cette visite virtuelle
Localisation
Ce bien vous correspond ? Découvrez maintenant si sa localisation vous convient !
Commerces
Pharmacies
Restaurants
Boulangeries
Crèches
Parcs
Écoles
Universités
Déplacements
Plans intérieurs
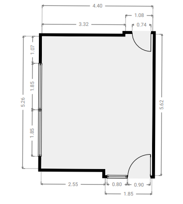
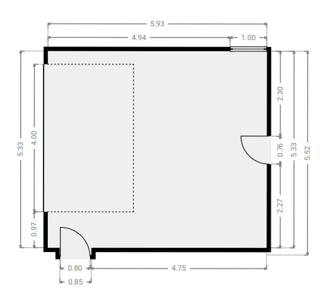
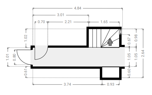
Sous-sol semi-enterré
SURFACE TOTALE : 70.47 m² | SURFACE HABITABLE : 70.47 m² | PIÈCE(S) : 5
1x Couloir
1x S.D.B 2
1x Bureau
2x Chambres
Couloir
SURFACE : 8.79 m²
S.D.B 2
SURFACE : 3.28 m²
Chambre 4
SURFACE : 26.27 m²
Bureau
SURFACE : 6.83 m²
Chambre 3
SURFACE : 23.73 m²
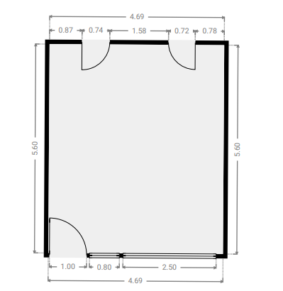
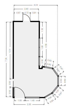
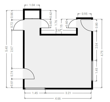
Rez-de-chaussée
SURFACE TOTALE : 215.06 m² | SURFACE HABITABLE : 193.28 m² | PIÈCE(S) : 20
1x Séjour
1x Hall
2x Couloir(s)
2x Chambres
1x Dressing
1x S.D.B 1
3x Degagements
1x W.C
5x Rangement(s)
1x Cuisine
1x Buanderie
1x Garage
Séjour
SURFACE : 53.45 m²
Hall
SURFACE : 6.64 m²
Couloir
SURFACE : 4.66 m²
Degagement
SURFACE : 7.14 m²
Chambre principale
SURFACE : 19.91 m²
Dressing
SURFACE : 3.98 m²
S.D.B 1
SURFACE : 11.28 m²
Degagement
SURFACE : 3.07 m²
Chambre 2
SURFACE : 16.7 m²
W.C
SURFACE : 1.23 m²
Rangement
SURFACE : 0.64 m²
Cuisine
SURFACE : 21.72 m²
Couloir
SURFACE : 12.17 m²
Buanderie
SURFACE : 5.74 m²
Garage
SURFACE : 31.78 m²
Rangement
SURFACE : 6.3 m²
Rangement
SURFACE : 2.6 m²
Rangement
SURFACE : 2.19 m²
Rangement
SURFACE : 1.72 m²
Degagement
SURFACE : 2.92 m²
RECHERCHE CADASTRALE
Vous souhaitez mieux connaître votre parcelle et connaître la surface dont vous jouirez en achetant ce bien, alors consulter le cadastre est nécessaire !
État des sols
La pollution du sol a un impact sur l'environnement et sur la
santé, les risques d’inondation ont un impact sur votre qualité de vie… Consultez les données
relatives à ce bien pour en avoir le cœur net !
ÉTAT DE LA POLLUTION DES SOLS
Aucune remarque particulière pour la parcelle F222r5 et F222f6
Source : Cliquez-ici
Légende :
ZONE INONDABLE
Aucune remarque particulière pour la parcelle F222r5 et F222f6
Source : Cliquez-ici
Légende :
Certificats
Informez-vous sur la performance énergétique de ce bien et assurez-vous que ses installations électriques sont bien aux normes !
PERFORMANCE ÉNERGÉTIQUE
Économe
Très énergivore
CERTIFICAT ÉLECTRIQUE
PROCES VERBAL D’EXAMEN DE CONFORMITE ET/OU DE VISITE DE CONTROLE D’UNE INSTALLATION ELECTRIQUE BASSE TENSION
La nouvelle installationNon conforme
Agent
visiteur
Quentin Delhaye
Date
de certification
11/09/2024
Visite de contrôle
à effectuer avant le
11/09/2025
DATA ROOM
Nous avons mis tous les documents importants dans la date room, n’hésitez pas à télécharger ce dont vous avez besoin !
Nous avons mis tous les documents importants dans la date room, n’hésitez pas à télécharger ce dont vous avez besoin !
Besoin de crédit
Maintenant que vous êtes sûrs d’avoir fait le bon choix, calculez la valeur totale de cette acquisition (valeur du bien et frais annexes) et estimez vos besoins en crédit !
Simulation de crédit
| Prix d'achat | € |
| Rénovation | € |
| Rénovation HTVA | {{ calculeData.renovationHTVA | number:2 }} € |
| TVA | {{ calculeData.tva | number:2 }} € |
| Fonds propres | € |
| Acompte dû (disponible au compromis de vente) | {{ calculeData.prix * 0.1 | number:2 }} € |
| Reste des liquidités (disponible à l'acte) | {{ calculeData.avance | number:2 }} € |
| Crédit pont | {{ calculeData.creditPont | number:2 }} € |
| Prix de vente de votre bien existant | € |
| Solde du crédit existant | € |
| Frais d'acte d'achat | {{ calculeData.droit + calculeData.fraisNotaire | number:2 }} € |
| Droits d'enregistrement | {{ calculeData.droit | number:2 }} € |
|
Abattement
Suis-je éligible à une réduction des droits d’enregistrement ? |
|
| Frais de notaire | {{ calculeData.fraisNotaire | number:2 }} € |
| Autres frais | {{ calculeData.inscription + calculeData.fraisDossier + calculeData.autreFrais | number:2 }} € |
| Frais liés à l'acte hypothécaire | {{ calculeData.inscription | number:2 }} € |
| Frais de dossier et expertise bancaire | {{ calculeData.fraisDossier | number:2 }} € |
| Autres frais | € |
| Montant du crédit | {{ calculeData.montantCredit | number:2 }} € | |
La présente simulation se base sur un taux d’intérêt du 21/06/2024. Ce calcul est indicatif et sujet à changement.
Choix du type de crédit
| Taux | Type | CAP | Mensualité | Mensualité Min | Mensualité Max | |
|---|---|---|---|---|---|---|
| {{ tx.banque }} {{ $index+1 }} | {{ tx.taux | number:2 }}% | {{ tx.type }} | -{{ tx.capNeg }}%/+{{ tx.capPos }}% | {{ tx.mens | number:2 }}€ | {{ tx.min | number:2 }}€ | {{ tx.max | number:2 }}€ |
| Taux | Type | CAP | Mensualité | Mensualité Min | Mensualité Max | |
|---|---|---|---|---|---|---|
| {{ tx.banque }} {{ $index+1 }} | {{ tx.taux | number:2 }}% | {{ tx.type }} | -{{ tx.capNeg }}%/+{{ tx.capPos }}% | {{ tx.mens | number:2 }}€ | {{ tx.min | number:2 }}€ | {{ tx.max | number:2 }}€ |
| Taux | Type | CAP | Mensualité | Mensualité Min | Mensualité Max | |
|---|---|---|---|---|---|---|
| {{ tx.banque }} {{ $index+1 }} | {{ tx.taux | number:2 }}% | {{ tx.type }} | -{{ tx.capNeg }}%/+{{ tx.capPos }}% | {{ tx.mens | number:2 }}€ | {{ tx.min | number:2 }}€ | {{ tx.max | number:2 }}€ |
Rentabilité
Cout total de l’acquisition
| Prix d'achat | {{ calculeData.prix | number:2 }} € |
| Rénovation | + {{ calculeData.prixTransRenovation | number:2 }} € |
| Frais | + {{ calculeData.frais | number:2 }} € |
| Coût total | + {{ calculeData.frais + calculeData.prixTransRenovation + calculeData.prix | number:2 }} € |
| Fonds propres + crédit pont | {{ calculeData.totalFP+calculeData.creditPont | number:2 }} € |
| Montant du crédit | {{ calculeData.montantCredit | number:2 }} € |
| Coût total | + {{ calculeData.creditPont + calculeData.totalFP + calculeData.montantCredit | number:2 }} € |
Rentabilité sur actifs
Durée de détention année(s)
Gain réel {{ calculeData.gainReel | number:0 }} €
Rendement sur actif {{ calculeData.rendementSurActif | number:2 }} %
Revenus
| Revenu locatif annuel Brut | € |
| Charge annuelle {{ calculeData.pourcentageCharge | number:2 }}% | {{ calculeData.chargeLocatifAnnuel | number:2 }} € |
| Précompte immobilier | {{ calculeData.precomteImmo | number:2 }} € |
| Autre charge annuelle | € |
| Revenu locatif annuel net | {{ calculeData.revenuLocatifAnnuelNet | number:2 }} € |
| Total revenu locatif après {{ calculeData.dureeDetention }} année(s) tenant compte d'une inflation de % |
{{ calculeData.totalRevenuLocatif | number:2 }} € |
| Plus-value latente | {{ calculeData.pluvalueLatente | number:2 }} % |
| Plus-value du bien après {{calculeData.dureeDetention}} année(s) | {{ calculeData.pluvalueBien | number:2 }} € |
| Total revenu locatif après {{ calculeData.dureeDetention }} année(s) | {{ calculeData.totalRevenuLocatif | number:2 }} € |
| Gain brut sur le prix de base après {{ calculeData.dureeDetention }} année(s) | +{{ calculeData.gainBrut | number:2 }} € |
Charges
| Durée du crédit | {{ calculeData.duree | number:2 }} ans |
| Taux | {{ calculeData.taux | number:2 }} % |
| Mensualité | {{ calculeData.mensualite | number:2 }} € |
| Total interêts après {{calculeData.dureeDetention}} année(s) | {{ calculeData.totalInteret | number:2 }} € |
| Total frais | {{ calculeData.frais | number:2 }} € |
| Total | {{ calculeData.InteretFrais | number:2 }} € |
Gain réel
Rendement sur actif
Cash flow
| Année | Coût | Revenu locatif | Gain |
|---|---|---|---|
| {{ $index }} | {{ ch.payment | number:2 }} € | {{ ch.revenuLocatif | number:2 }} € | {{ - ch.fondPropre | number:2 }} € |
Av. Louise 433 1050 Bruxelles - 02 648 01 20
Drève Richelle 96 1410 Waterloo - 02 354 29 39
Av. Prekelinden 83 1200 Woluwe-St-Lambert - 02 734 00 36