Suis-je éligible à une réduction des droits d’enregistrement ?
Aquarium 69
PRIX : 1 050 000,00€
Type: Maison | Région: Wallonie | Commune: Bierges
Sur les hauteurs de Bierges, proche du centre de Wavre et de la gare, By The Way vous invite à découvrir cette magnifique villa moderne de 2019 avec piscine alliant modernité, confort et prestations haut de gamme. Elle se compose d'un hall d'entrée menant à un séjour lumineux de ± 80 m² avec vue sur le jardin et la piscine, cuisine ouverte haut de gamme, salon avec écran plat, home cinéma et grand aquarium à l'eau de mer intégré dans le mûr. La maison dispose également d'une vaste buanderie avec de nombreux rangements faisant office de local technique pour l'aquarium et donnant accès à un garage chauffé et plafonné avec deux places de parking. Le garage offre un accès direct au jardin et abrite toutes les installations techniques de la maison. Un WC complète le rez-de-chaussée. À l'étage, un plancher en verre vous guide vers deux chambres reliées par une salle de douche moderne avec évier et à une superbe suite parentale traversante. Cette dernière est munie d'un dressing aménagé, de sa salle de bains équipée d’une baignoire, d’une douche ouverte, de doubles vasques, la partie chambre est entièrement vitrée offrant une vue imprenable sur les champs environnants. Un WC supplémentaire et un local technique complètent cet étage. Le jardin est soigneusement entretenu grâce à un robot tondeuse automatique et comprend une grande piscine de 4,5 x 11 m. Techniques: PEB B, installation électrique conforme, système de domotique complet avec caméras et alarme, chaudière au gaz à condensation, citerne d'eau de pluie de 15.000L (alimentant les robinets extérieurs, machine à laver et WC), châssis double vitrage en aluminium, compteur bi-horaire et ventilation mécanique double flux.
Surface habitable: 227.01 m² NET
Jardin Oui
Chambres: 3
Salle de bain: 1
Salle de douche: 1
Terrasse: 1
Garage : 1
Piscine: oui
Vidéo
Découvrez le bien en visualisant cette vidéo
VISITE VIRTUELLE
Vous voulez en voir plus ? Visitez le bien comme si vous y étiez à travers cette visite virtuelle
Localisation
Ce bien vous correspond ? Découvrez maintenant si sa localisation vous convient !
Commerces
Pharmacies
Restaurants
Boulangeries
Crèches
Parcs
Écoles
Universités
Déplacements
Plans intérieurs
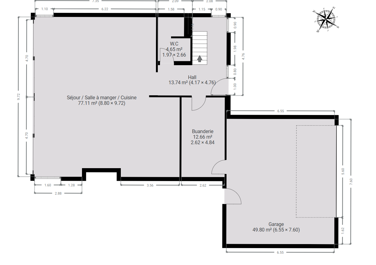
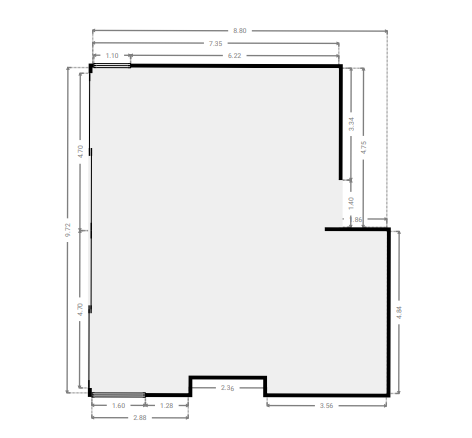
Rez-de-chaussée
SURFACE TOTALE : 157.91 m² | SURFACE HABITABLE : 178.05 m² | PIÈCE(S) : 5
1x Séjour / Salle à manger / Cuisine
1x Hall
1x Buanderie
1x Garage
1x W.C
Séjour / Salle à manger / Cuisine
SURFACE : 77.11 m²
Hall
SURFACE : 13.74 m²
Buanderie
SURFACE : 12.66 m²
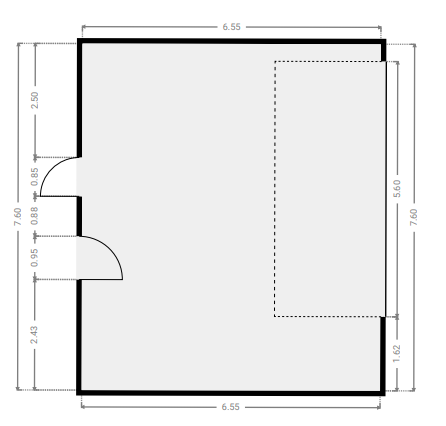
Garage
SURFACE : 49.8 m²
W.C
SURFACE : 4.65 m²
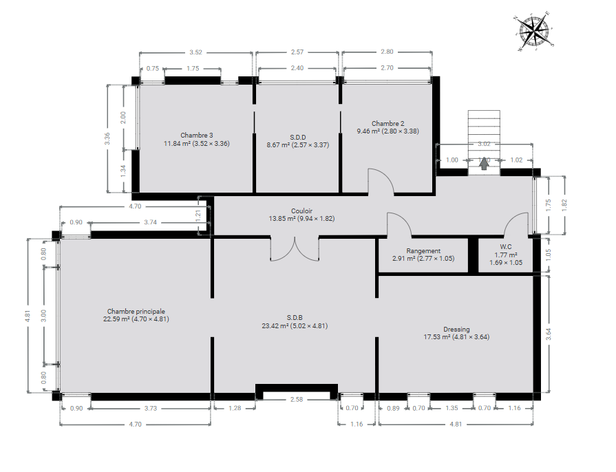
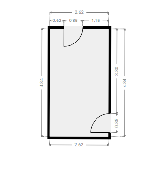
1er étage
SURFACE TOTALE : 111.97 m² | SURFACE HABITABLE : 130.72 m² | PIÈCE(S) : 9
1x Couloir
1x S.D.D
1x W.C
1x Dressing
1x Rangement
1x S.D.B
3x Chambres
Couloir
SURFACE : 13.85 m²
Chambre 2
SURFACE : 9.46 m²
S.D.D
SURFACE : 8.67 m²
Chambre 3
SURFACE : 11.84 m²
W.C
SURFACE : 1.77 m²
Dressing
SURFACE : 17.53 m²
Rangement
SURFACE : 2.91 m²
S.D.B
SURFACE : 23.42 m²
Chambre principale
SURFACE : 22.59 m²
RECHERCHE CADASTRALE
Vous souhaitez mieux connaître votre parcelle et connaître la surface dont vous jouirez en achetant ce bien, alors consulter le cadastre est nécessaire !
État des sols
La pollution du sol a un impact sur l'environnement et sur la santé, les risques d’inondation ont un impact sur votre qualité de vie… Consultez les données relatives à ce bien pour en avoir le cœur net !
ÉTAT DE LA POLLUTION DES SOLS
Aucune remarque particulière pour la parcelle D132e
Source : Cliquez-ici
Légende :
ZONE INONDABLE
Aucune remarque particulière pour la parcelle D132e
Source : Cliquez-ici
Légende :
Certificats
Informez-vous sur la performance énergétique de ce bien et assurez-vous que ses installations électriques sont bien aux normes !
PERFORMANCE ÉNERGÉTIQUE
Économe
Très énergivore
CERTIFICAT ÉLECTRIQUE
PROCES VERBAL D’EXAMEN DE CONFORMITE ET/OU DE VISITE DE CONTROLE D’UNE INSTALLATION ELECTRIQUE BASSE TENSION
La nouvelle installation CONFORME
INDICATEURS SPÉCIFIQUES
| Besoins en chaleur du logement | ||||
| excessifs | élevés | moyens | faibles | minimes |
| Performance des installations de chauffage | ||||
| médiocre | insuffisante | satisfaisante | bonne | excellente |
| Performance des installations d'eau chaude sanitaire | ||||
| médiocre | insuffisante | satisfaisante | bonne | excellente |
| Système de ventillation | ||||
| absent | très partiel | partiel | incomplet | complet |
DATA ROOM
Nous avons mis tous les documents importants dans la date room, n’hésitez pas à télécharger ce dont vous avez besoin !
Nous avons mis tous les documents importants dans la date room, n’hésitez pas à télécharger ce dont vous avez besoin !
Besoin de crédit
Maintenant que vous êtes sûrs d’avoir fait le bon choix, calculez la valeur totale de cette acquisition (valeur du bien et frais annexes) et estimez vos besoins en crédit !
Simulation de crédit
| Prix d'achat | € |
| Rénovation | € |
| Rénovation HTVA | {{ calculeData.renovationHTVA | number:2 }} € |
| TVA | {{ calculeData.tva | number:2 }} € |
| Fonds propres | € |
| Acompte dû (disponible au compromis de vente) | {{ calculeData.prix * 0.1 | number:2 }} € |
| Reste des liquidités (disponible à l'acte) | {{ calculeData.avance | number:2 }} € |
| Crédit pont | {{ calculeData.creditPont | number:2 }} € |
| Prix de vente de votre bien existant | € |
| Solde du crédit existant | € |
| Frais d'acte d'achat | {{ calculeData.droit + calculeData.fraisNotaire | number:2 }} € |
| Droits d'enregistrement | {{ calculeData.droit | number:2 }} € |
|
Abattement
Suis-je éligible à une réduction des droits d’enregistrement ? |
|
| Frais de notaire | {{ calculeData.fraisNotaire | number:2 }} € |
| Autres frais | {{ calculeData.inscription + calculeData.fraisDossier + calculeData.autreFrais | number:2 }} € |
| Frais liés à l'acte hypothécaire | {{ calculeData.inscription | number:2 }} € |
| Frais de dossier et expertise bancaire | {{ calculeData.fraisDossier | number:2 }} € |
| Autres frais | € |
| Montant du crédit | {{ calculeData.montantCredit | number:2 }} € | |
La présente simulation se base sur un taux d’intérêt du 21/06/2024. Ce calcul est indicatif et sujet à changement.
Choix du type de crédit
| Taux | Type | CAP | Mensualité | Mensualité Min | Mensualité Max | |
|---|---|---|---|---|---|---|
| {{ tx.banque }} {{ $index+1 }} | {{ tx.taux | number:2 }}% | {{ tx.type }} | -{{ tx.capNeg }}%/+{{ tx.capPos }}% | {{ tx.mens | number:2 }}€ | {{ tx.min | number:2 }}€ | {{ tx.max | number:2 }}€ |
| Taux | Type | CAP | Mensualité | Mensualité Min | Mensualité Max | |
|---|---|---|---|---|---|---|
| {{ tx.banque }} {{ $index+1 }} | {{ tx.taux | number:2 }}% | {{ tx.type }} | -{{ tx.capNeg }}%/+{{ tx.capPos }}% | {{ tx.mens | number:2 }}€ | {{ tx.min | number:2 }}€ | {{ tx.max | number:2 }}€ |
| Taux | Type | CAP | Mensualité | Mensualité Min | Mensualité Max | |
|---|---|---|---|---|---|---|
| {{ tx.banque }} {{ $index+1 }} | {{ tx.taux | number:2 }}% | {{ tx.type }} | -{{ tx.capNeg }}%/+{{ tx.capPos }}% | {{ tx.mens | number:2 }}€ | {{ tx.min | number:2 }}€ | {{ tx.max | number:2 }}€ |
Rentabilité
Cout total de l’acquisition
| Prix d'achat | {{ calculeData.prix | number:2 }} € |
| Rénovation | + {{ calculeData.prixTransRenovation | number:2 }} € |
| Frais | + {{ calculeData.frais | number:2 }} € |
| Coût total | + {{ calculeData.frais + calculeData.prixTransRenovation + calculeData.prix | number:2 }} € |
| Fonds propres + crédit pont | {{ calculeData.totalFP+calculeData.creditPont | number:2 }} € |
| Montant du crédit | {{ calculeData.montantCredit | number:2 }} € |
| Coût total | + {{ calculeData.creditPont + calculeData.totalFP + calculeData.montantCredit | number:2 }} € |
Rentabilité sur actifs
Durée de détention année(s)
Gain réel {{ calculeData.gainReel | number:0 }} €
Rendement sur actif {{ calculeData.rendementSurActif | number:2 }} %
Revenus
| Revenu locatif annuel Brut | € |
| Charge annuelle {{ calculeData.pourcentageCharge | number:2 }}% | {{ calculeData.chargeLocatifAnnuel | number:2 }} € |
| Précompte immobilier | {{ calculeData.precomteImmo | number:2 }} € |
| Autre charge annuelle | € |
| Revenu locatif annuel net | {{ calculeData.revenuLocatifAnnuelNet | number:2 }} € |
| Total revenu locatif après {{ calculeData.dureeDetention }} année(s) tenant compte d'une inflation de % |
{{ calculeData.totalRevenuLocatif | number:2 }} € |
| Plus-value latente | {{ calculeData.pluvalueLatente | number:2 }} % |
| Plus-value du bien après {{calculeData.dureeDetention}} année(s) | {{ calculeData.pluvalueBien | number:2 }} € |
| Total revenu locatif après {{ calculeData.dureeDetention }} année(s) | {{ calculeData.totalRevenuLocatif | number:2 }} € |
| Gain brut sur le prix de base après {{ calculeData.dureeDetention }} année(s) | +{{ calculeData.gainBrut | number:2 }} € |
Charges
| Durée du crédit | {{ calculeData.duree | number:2 }} ans |
| Taux | {{ calculeData.taux | number:2 }} % |
| Mensualité | {{ calculeData.mensualite | number:2 }} € |
| Total interêts après {{calculeData.dureeDetention}} année(s) | {{ calculeData.totalInteret | number:2 }} € |
| Total frais | {{ calculeData.frais | number:2 }} € |
| Total | {{ calculeData.InteretFrais | number:2 }} € |
Gain réel
Rendement sur actif
Cash flow
| Année | Coût | Revenu locatif | Gain |
|---|---|---|---|
| {{ $index }} | {{ ch.payment | number:2 }} € | {{ ch.revenuLocatif | number:2 }} € | {{ - ch.fondPropre | number:2 }} € |
Av. Louise 433 1050 Bruxelles - 02 648 01 20
Drève Richelle 96 1410 Waterloo - 02 354 29 39
Av. Prekelinden 83 1200 Woluwe-St-Lambert - 02 734 00 36