Suis-je éligible à une réduction des droits d’enregistrement ?
Alsemberg 738
PRIX : 1 385 000,00
Type: Immeuble | Région: Bruxelles | Commune: Uccle
Situé sur la célèbre Chaussée d'Alsemberg, dans le quartier Globe, à deux pas des magasins et des transports en commun, By the Way vous présente cet immeuble mixte, composé d'un rez-de-chaussée commercial et de 4 appartements. Tous les appartements sont loués. Le rez-de-chaussée commercial est en cours de location. Composition : au rez-de-chaussée, commerce +/- 92m2 avec entrée séparée en cours de location (anciennement Neckermann). Aux trois premiers étages, 3 appartements 2 chambres avec balcon, de respectivement +/- 91m2, 96m2 et 97m2 (selon PEB). Au 4ème et dernier étage, appartement 1 chambre avec terrasse +/- 75m2 (selon PEB). Au sous-sol, caves et chaufferie. Chaudière commune au gaz à condensation Buderus de 2021. Rénovation et isolation de la toiture en 2020. Électricité non conforme.
Surface habitable: 485.14 m²
Surface totale: 501.31 m²
Chambres: 7
Salles de bain: 4
Terrasse: 1
Caves: 3
Balcon: 3
Commerce: 1
Appartements : 4
Vidéo
Découvrez le bien en visualisant cette vidéo
VISITE VIRTUELLE
Vous voulez en voir plus ? Visitez le bien comme si vous y étiez à travers cette visite virtuelle
Localisation
Ce bien vous correspond ? Découvrez maintenant si sa localisation vous convient !
Commerces
Pharmacies
Restaurants
Boulangeries
Crèches
Parcs
Écoles
Universités
Déplacements
Plans intérieurs
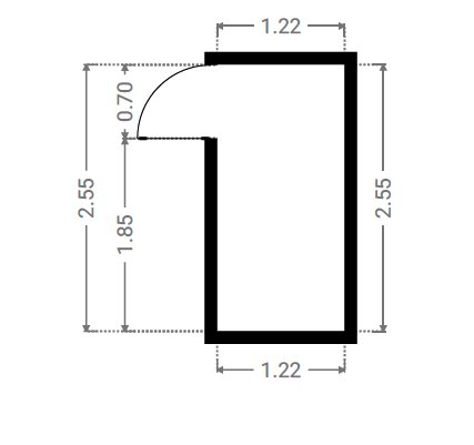
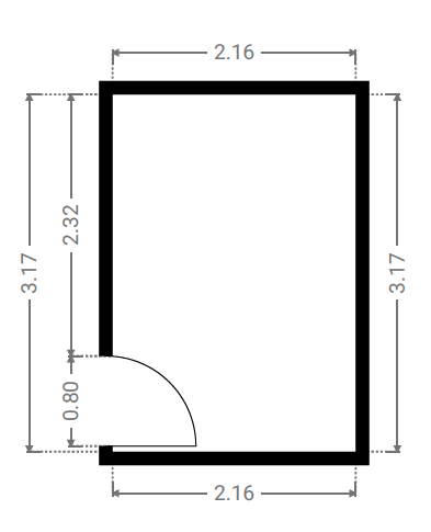
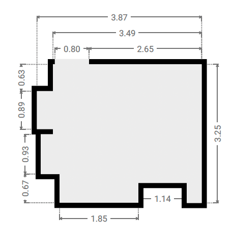
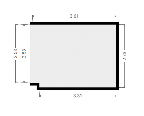
Sous-sol
SURFACE TOTALE : 54.58 m² | SURFACE HABITABLE : 54.58 m² | PIÈCE(S) : 5
2x Couloir(s)
3x Cave(s)
Couloir
SURFACE : 20.63 m²
Cave 1
SURFACE : 11.31 m²
Cave 2
SURFACE : 11.98 m²
Cave 3
SURFACE : 6.68 m²
Couloir
SURFACE : 4.02 m²
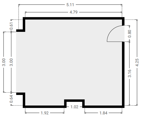
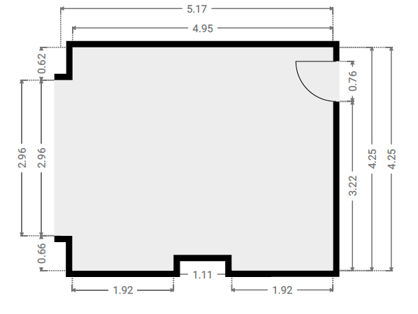
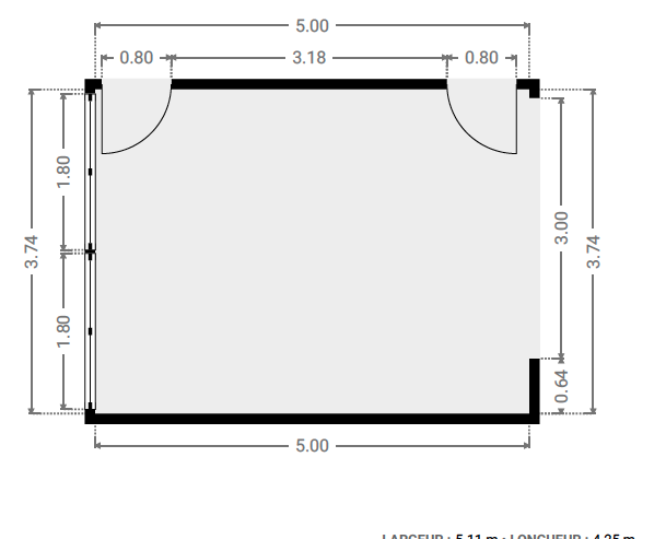
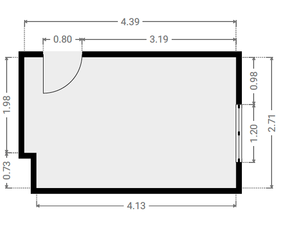
Rez-de-chaussée
SURFACE TOTALE : 111.22 m² | SURFACE HABITABLE : 111.22 m² | PIÈCE(S) : 8
1x Commerce
3x Couloir(s)
1x Bureau
1x W.C
1x Autre
1x Hall
Commerce
SURFACE : 49.91 m²
Couloir
SURFACE : 4.36 m²
Bureau
SURFACE : 9.81 m²
Couloir
SURFACE : 15.33 m²
W.C
SURFACE : 1.23 m²
Autre
SURFACE : 9.94 m²
Couloir
SURFACE : 2.28 m²
Hall
SURFACE : 18.42 m²
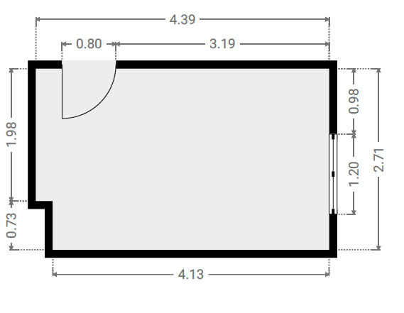
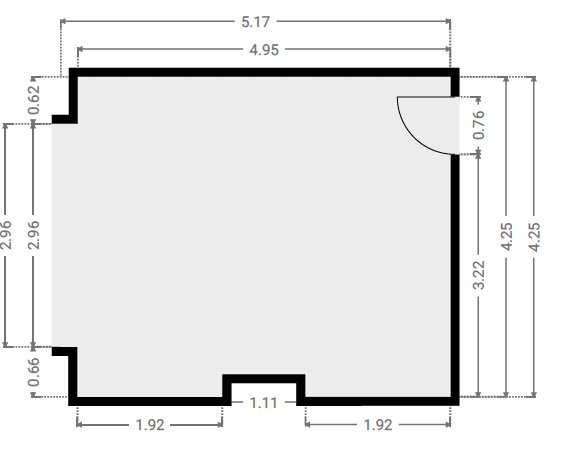
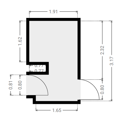
1er étage
SURFACE TOTALE : 85.38 m² | SURFACE HABITABLE : 82.27 m² | PIÈCE(S) : 9
1x Cage d’escalier
2x Couloir(s)
1x Séjour 1
1x Salle à manger 1
1x Cuisine 1
1x S.D.B
2x Chambre(s)
1x Balcon
Cage d’escalier
SURFACE : 8.35 m²
Couloir
SURFACE : 2.16 m²
Séjour 1
SURFACE : 21.02 m²
Salle à manger 1
SURFACE : 18.71 m²
Cuisine 1
SURFACE : 8.24 m²
Couloir
SURFACE : 1.99 m²
S.D.B
SURFACE : 2.72 m²
Chambre 1
SURFACE : 8.47 m²
Chambre 2
SURFACE : 10.67 m²
Balcon
SURFACE : 3.11 m²
2e étage
SURFACE TOTALE : 87.94 m² | SURFACE HABITABLE : 84.83 m² | PIÈCE(S) : 9
1x Cage d’escalier
2x Couloir(s)
1x Séjour 2
1x Salle à manger 2
1x Cuisine 2
1x S.D.B 2
2x Chambre(s)
1x Balcon
Cage d’escalier
SURFACE : 8.6 m²
Couloir
SURFACE : 2.16 m²
Séjour 2
SURFACE : 21.35 m²
Salle à manger 2
SURFACE : 19.47 m²
Cuisine 2
SURFACE : 8.45 m²
Couloir
SURFACE : 2.11 m²
S.D.B 2
SURFACE : 2.73 m²
Chambre 3
SURFACE : 8.32 m²
Chambre 4
SURFACE : 11.7 m²
Balcon
SURFACE : 3.11 m²
3e étage
SURFACE TOTALE : 87.94 m² | SURFACE HABITABLE : 84.83 m² | PIÈCE(S) : 9
1x Cage d’escalier
2x Couloir(s)
1x Séjour 3
1x Salle à manger 3
1x Cuisine 3
1x S.D.B 3
2x Chambre(s)
1x Balcon
Cage d’escalier
SURFACE : 8.6 m²
Couloir
SURFACE : 2.16 m²
Séjour 3
SURFACE : 21.35 m²
Salle à manger 3
SURFACE : 19.47 m²
Cuisine 3
SURFACE : 8.45 m²
Couloir
SURFACE : 2.11 m²
S.D.B 2
SURFACE : 2.73 m²
Chambre 5
SURFACE : 8.32 m²
Chambre 6
SURFACE : 11.7 m²
Balcon
SURFACE : 3.11 m²
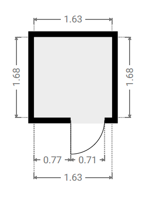
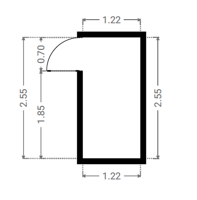
4e étage
SURFACE TOTALE : 74.25 m² | SURFACE HABITABLE : 67.41 m² | PIÈCE(S) : 6
1x Séjour 4
1x Cuisine 4
1x Couloir
1x Cage d’escalier
1x Chambre
1x S.D.B 4
1x Terrasse
Séjour 4
SURFACE : 20.11 m²
Cuisine 4
SURFACE : 8.97 m²
Couloir
SURFACE : 4.71 m²
Cage d’escalier
SURFACE : 6.55 m²
Chambre 7
SURFACE : 21.5 m²
S.D.B 4
SURFACE : 5.6 m²
Terrasse
SURFACE : 6.85 m²
RECHERCHE CADASTRALE
Vous souhaitez mieux connaître votre parcelle et connaître la surface dont vous jouirez en achetant ce bien, alors consulter le cadastre est nécessaire !
État des sols
La pollution du sol a un impact sur l'environnement et sur la santé, les risques d’inondation ont un impact sur votre qualité de vie… Consultez les données relatives à ce bien pour en avoir le cœur net !
ÉTAT DE LA POLLUTION DES SOLS
Aucune remarque particulière pour la parcelle B6v
Source : Cliquez-ici
Légende :
ZONE INONDABLE
La parcelle B6v est dans la zone d'Aléa moyen
Source : Cliquez-ici
Légende :
Certificats
Informez-vous sur la performance énergétique de ce bien et assurez-vous que ses installations électriques sont bien aux normes !
PERFORMANCE ÉNERGÉTIQUE 1er Etage
Économe
Très énergivore
PERFORMANCE ÉNERGÉTIQUE 2éme Etage
Économe
Très énergivore
PERFORMANCE ÉNERGÉTIQUE 3éme Etage
Économe
Très énergivore
PERFORMANCE ÉNERGÉTIQUE 4 éme Etage
Économe
Très énergivore
CERTIFICAT ÉLECTRIQUE 1er / 2éme / 3éme / 4éme Etage
PROCES VERBAL D’EXAMEN DE CONFORMITE ET/OU DE VISITE DE CONTROLE D’UNE INSTALLATION ELECTRIQUE BASSE TENSION
La nouvelle installationNon conforme
Agent
visiteur
Hichem Benchaib
Date
de certification
05/09/2023
Visite de contrôle
à effectuer avant le
18 mois prenant cours le jour de l’acte de vente
DATA ROOM
Nous avons mis tous les documents importants dans la date room, n’hésitez pas à télécharger ce dont vous avez besoin !
Nous avons mis tous les documents importants dans la date room, n’hésitez pas à télécharger ce dont vous avez besoin !
Besoin de crédit
Maintenant que vous êtes sûrs d’avoir fait le bon choix, calculez la valeur totale de cette acquisition (valeur du bien et frais annexes) et estimez vos besoins en crédit !
Simulation de crédit
| Prix d'achat | € |
| Rénovation | € |
| Rénovation HTVA | {{ calculeData.renovationHTVA | number:2 }} € |
| TVA | {{ calculeData.tva | number:2 }} € |
| Fonds propres | € |
| Acompte dû (disponible au compromis de vente) | {{ calculeData.prix * 0.1 | number:2 }} € |
| Reste des liquidités (disponible à l'acte) | {{ calculeData.avance | number:2 }} € |
| Crédit pont | {{ calculeData.creditPont | number:2 }} € |
| Prix de vente de votre bien existant | € |
| Solde du crédit existant | € |
| Frais d'acte d'achat | {{ calculeData.droit + calculeData.fraisNotaire | number:2 }} € |
| Droits d'enregistrement | {{ calculeData.droit | number:2 }} € |
|
Abattement
Suis-je éligible à une réduction des droits d’enregistrement ? |
|
| Frais de notaire | {{ calculeData.fraisNotaire | number:2 }} € |
| Autres frais | {{ calculeData.inscription + calculeData.fraisDossier + calculeData.autreFrais | number:2 }} € |
| Frais liés à l'acte hypothécaire | {{ calculeData.inscription | number:2 }} € |
| Frais de dossier et expertise bancaire | {{ calculeData.fraisDossier | number:2 }} € |
| Autres frais | € |
| Montant du crédit | {{ calculeData.montantCredit | number:2 }} € | |
La présente simulation se base sur un taux d’intérêt du 08/03/2024. Ce calcul est indicatif et sujet à changement.
Choix du type de crédit
| Taux | Type | CAP | Mensualité | Mensualité Min | Mensualité Max | |
|---|---|---|---|---|---|---|
| {{ tx.banque }} {{ $index+1 }} | {{ tx.taux | number:2 }}% | {{ tx.type }} | -{{ tx.capNeg }}%/+{{ tx.capPos }}% | {{ tx.mens | number:2 }}€ | {{ tx.min | number:2 }}€ | {{ tx.max | number:2 }}€ |
| Taux | Type | CAP | Mensualité | Mensualité Min | Mensualité Max | |
|---|---|---|---|---|---|---|
| {{ tx.banque }} {{ $index+1 }} | {{ tx.taux | number:2 }}% | {{ tx.type }} | -{{ tx.capNeg }}%/+{{ tx.capPos }}% | {{ tx.mens | number:2 }}€ | {{ tx.min | number:2 }}€ | {{ tx.max | number:2 }}€ |
| Taux | Type | CAP | Mensualité | Mensualité Min | Mensualité Max | |
|---|---|---|---|---|---|---|
| {{ tx.banque }} {{ $index+1 }} | {{ tx.taux | number:2 }}% | {{ tx.type }} | -{{ tx.capNeg }}%/+{{ tx.capPos }}% | {{ tx.mens | number:2 }}€ | {{ tx.min | number:2 }}€ | {{ tx.max | number:2 }}€ |
Rentabilité
Cout total de l’acquisition
| Prix d'achat | {{ calculeData.prix | number:2 }} € |
| Rénovation | + {{ calculeData.prixTransRenovation | number:2 }} € |
| Frais | + {{ calculeData.frais | number:2 }} € |
| Coût total | + {{ calculeData.frais + calculeData.prixTransRenovation + calculeData.prix | number:2 }} € |
| Fonds propres + crédit pont | {{ calculeData.totalFP+calculeData.creditPont | number:2 }} € |
| Montant du crédit | {{ calculeData.montantCredit | number:2 }} € |
| Coût total | + {{ calculeData.creditPont + calculeData.totalFP + calculeData.montantCredit | number:2 }} € |
Rentabilité sur actifs
Durée de détention année(s)
Gain réel {{ calculeData.gainReel | number:0 }} €
Rendement sur actif {{ calculeData.rendementSurActif | number:2 }} %
Revenus
| Revenu locatif annuel Brut | € |
| Charge annuelle {{ calculeData.pourcentageCharge | number:2 }}% | {{ calculeData.chargeLocatifAnnuel | number:2 }} € |
| Précompte immobilier | {{ calculeData.precomteImmo | number:2 }} € |
| Autre charge annuelle | € |
| Revenu locatif annuel net | {{ calculeData.revenuLocatifAnnuelNet | number:2 }} € |
| Total revenu locatif après {{ calculeData.dureeDetention }} année(s) tenant compte d'une inflation de % |
{{ calculeData.totalRevenuLocatif | number:2 }} € |
| Plus-value latente | {{ calculeData.pluvalueLatente | number:2 }} % |
| Plus-value du bien après {{calculeData.dureeDetention}} année(s) | {{ calculeData.pluvalueBien | number:2 }} € |
| Total revenu locatif après {{ calculeData.dureeDetention }} année(s) | {{ calculeData.totalRevenuLocatif | number:2 }} € |
| Gain brut sur le prix de base après {{ calculeData.dureeDetention }} année(s) | +{{ calculeData.gainBrut | number:2 }} € |
Charges
| Durée du crédit | {{ calculeData.duree | number:2 }} ans |
| Taux | {{ calculeData.taux | number:2 }} % |
| Mensualité | {{ calculeData.mensualite | number:2 }} € |
| Total interêts après {{calculeData.dureeDetention}} année(s) | {{ calculeData.totalInteret | number:2 }} € |
| Total frais | {{ calculeData.frais | number:2 }} € |
| Total | {{ calculeData.InteretFrais | number:2 }} € |
Gain réel
Rendement sur actif
Cash flow
| Année | Coût | Revenu locatif | Gain |
|---|---|---|---|
| {{ $index }} | {{ ch.payment | number:2 }} € | {{ ch.revenuLocatif | number:2 }} € | {{ - ch.fondPropre | number:2 }} € |
Av. Louise 433 1050 Bruxelles - 02 648 01 20
Drève Richelle 96 1410 Waterloo - 02 354 29 39
Av. Prekelinden 83 1200 Woluwe-St-Lambert - 02 734 00 36