Suis-je éligible à une réduction des droits d’enregistrement ?
Albert 1er - 86
PRIX : Faire offre à partir de 500k
sous réserve d'acceptation
des propriétaires vendeurs
Le prix indiqué est renseigné
comme étant le prix de départ
Type: Maison 4F | Région: Wallonie | Commune: Genval
Spacieuse maison de 306.84 m² avec cinq chambres, deux salles de bain, à rénover , sise sur un jardin de 8 ares 57 avec terrasse, orientée Sud. Son grand grenier a été aménagé avec une chambre et salle de bain. Elle dispose aussi d'un garage fermé et des grandes caves/ avec buanderie en sous-sol. Cette villa vous séduira par ses beaux volumes et pourra accueillir une grande famille et/ou une profession libérale.
Surface habitable: 306.84 m²
Chambres: 5
Salle de bain: 1
Salle de douche: 1
Garage: 1
Parkings: 2
Vidéo
Découvrez le bien en visualisant cette vidéo
VISITE VIRTUELLE
Vous voulez en voir plus ? Visitez le bien comme si vous y étiez à travers cette visite virtuelle
Localisation
Ce bien vous correspond ? Découvrez maintenant si sa localisation vous convient !
Commerces
Pharmacies
Restaurants
Boulangeries
Crèches
Parcs
Écoles
Universités
Déplacements
Plans intérieurs
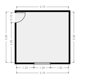
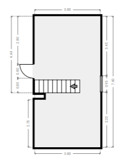
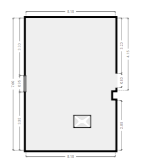
Sous-sol
SURFACE TOTALE : 105.51 m² | SURFACE HABITABLE : 58.78 m² | PIÈCES : 4
1x Garage
1x Cave
1x Buanderie
Garage
SURFACE : 46.72 m²
Cave
SURFACE : 23.63 m²
Buanderie
SURFACE : 20.93 m²
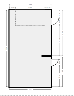
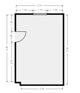
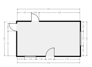
Rez-de-chaussée
SURFACE TOTALE : 104.56 m² | SURFACE HABITABLE : 57.83 m² | PIÈCES : 6
1x Séjour
1x Entrée
1x Cuisine
1x Bureau
Séjour
SURFACE : 46.73 m²
Entrée
SURFACE : 14.29 m²
Cuisine
SURFACE : 23.68 m²
Bureau
SURFACE : 14.77 m²
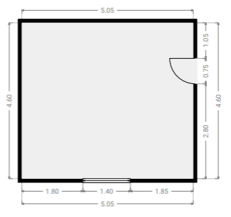
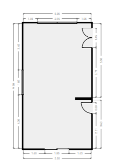
1er étage
SURFACE TOTALE : 102.88 m² | SURFACE HABITABLE : 102.88 m² | PIÈCES : 7
4x Chambres
1x S.D.D.
Chambre 1
SURFACE : 23.23 m²
Chambre 2
SURFACE : 23.23 m²
Chambre 3
SURFACE : 16.69 m²
S.D.D.
SURFACE : 6.72 m²
Chambre 4
SURFACE : 13.51 m²
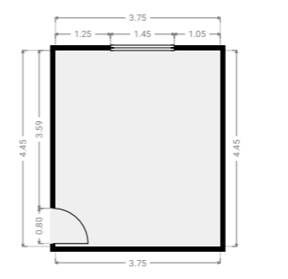
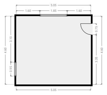
2e étage
SURFACE TOTALE : 87.34 m² | SURFACE HABITABLE : 87.34 m² | PIÈCES : 3
1x Chambre
1x S.D.B.
1x Atelier
Chambre
SURFACE : 39.02 m²
S.D.B.
SURFACE : 19.76 m²
Atelier
SURFACE : 28.59 m²
RECHERCHE CADASTRALE
Vous souhaitez mieux connaître votre parcelle et connaître la surface dont vous jouirez en achetant ce bien, alors consulter le cadastre est nécessaire !
Surface : 851.25 m²
Parcelle : D25w2
Certificats
Informez-vous sur la performance énergétique de ce bien et assurez-vous que ses installations électriques sont bien aux normes !
PERFORMANCE ÉNERGÉTIQUE
Économe
Très énergivore
CERTIFICATEUR ÉLECTRIQUE
PROCES VERBAL D’EXAMEN DE CONFORMITE ET/OU DE VISITE DE CONTROLE D’UNE INSTALLATION ELECTRIQUE BASSE TENSION
La nouvelle installation Non conforme
Agent
visiteur
Amaury Van Daele
Date
de certification
09/11/2021
Doit être
contrôlée avant
18 mois après la signature de l'acte
Audit technique
En prévoyant un budget précis des transformations et/ou réparations à opérer sur ce bien, l'expertise réalisée par un architecte neutre et indépendant vous permet de mieux évaluer la valeur de ce bien !
Score général attribué par l’auditeur *
Conseils généraux en termes de performances énergétiques du bâtiment :
Pour être maintenue dans un bon état sain, la maison doit être isolée, chauffée et ventilée.
La performance énergétique peut être améliorée sur plusieurs points, à peu près dans cet ordre de priorité : remplacement de la chaudière, isolation de la toiture par l'intérieur ou par l'extérieur lors du remplacement du revêtement, isolation du plafond des caves, remplacement éventuel des châssis, pose d'extracteurs dans les locaux humides et bien ventiler les locaux secs manuellement.
Une meilleure isolation et étanchéité permettra de diminuer les pertes de chaleur vers l'extérieur et donc de diminuer les consommations énergétiques.
Avis général et conseils de l'inspecteur :
La maison est dans un bon état général. Il n'y a pas de remarque particulière en plus de celles déjà décrites.
DISCLAIMER
La conclusion et les conseils donnés sont le résultat d’une inspection indépendante, réalisée par un architecte expérimenté et agréé par ImmoPass.
Les éventuelles estimations budgétaires contenues dans ce rapport sont données à titre indicatif et ne constituent pas un devis. Nous recommandons de réaliser un Cahier des Charges sur tout ou partie des travaux à entreprendre et une analyse des devis reçus. Les estimations sont exprimées hors taxes.
L’inspection a été réalisée de manière non-destructive, de manière visuelle uniquement. Ce rapport ne peut donc garantir l’absence totale de vices techniques cachés.
100 %
Zone inondable, zone acoustique, plan de secteurs, permis d’urbanisme ...
100 %
Certification énergétique, conformité électrique, cuve à mazout, sol, ...
98 %
Sécurité, aménagements, structures extérieures, entretien végétation, ...
90 %
Humidité généralisée, présence d’amiante, mérule, termites ...
98 %
Toiture, murs extérieurs, châssis et portes, évacuation eau de pluie, ...
100 %
Défauts structurels, humidité localisée, salubrité, état de fonctionnement..
96 %
Halls et escaliers, caves, combles et grenier, locaux techniques, ...
82 %
Système de chauffage, eau chaude sanitaire, électricité, entretiens techniques, ...
La chaudière gaz ne fonctionne plus côté chauffage. L'eau chaude sanitaire est encore fonctionnelle.
La bordure des klinkers se laisse aller, il faudrait remettre cela à niveau au sable stabilisé avec la 1ère rangée des klinkers. Budget estimé entre 25€ et 40€/m²
Le revêtement de toiture en ardoises date de 1973. Les ardoises artificielles pourraient contenir de l'amiante si celles-ci ont été posées avant 1997. Tant que les toitures ne sont pas modifiées, il n'y a pas de risque. Lors du remplacement de la toiture, il y aura un poste supplémentaire de mise en décharge spécial amiante.
Le n° de référence sur les ardoises (E KOB NT CLA 18.11.99) permet de vérifier la date de production, 1999 et la garantie que celles-ci ne contiennent pas d'amiante (NT=nouvelle technologie).
- Les ardoises artificielles sont couvertes de mousses mais l'amiante présente dans les ardoises ne permet pas d'effectuer un démoussage. Pas de nettoyage haute pression qui risque de libérer des fibres d'amiante. Éventuellement faire appel à une firme spécialisée (https://www.gravaservices.be/ardoise-artificielle-nettoyage-et-traitement/) ou ne toucher à rien et enlever les mousses qui tombent dans les gouttières. Jusqu'au moment où il sera temps de remplacer la couverture complète de toiture et d'isoler en même temps (Budget estimé entre 180€ et 250€/m²).
- Les châssis sont en aluminium anodisé datant de la construction, sans coupure thermique et avec double vitrage. Il ne sont plus aux normes actuelles tant au niveau des châssis (avec coupure thermique) qu'au niveau des vitrages (k1.1 au lieu de k3.1 d'époque). Mais ils sont encore en bon état, châssis, quincaillerie et vitrages. Pas de traces visibles de condensation visible.
- Les fenêtres de toit sont encore dans un état correct. A remplacer lors du remplacement du revêtement de toiture.
Une fenêtre ouvrante permet d'aérer le wc en l'absence de ventilation.
Il est toujours conseillé d'installer un extracteur mécanique dans les wc et salles de bain/buanderie afin d'éviter les problèmes d'odeurs, d'humidité et de manque de ventilation dans ces locaux. Budget estimé entre 350 € et 500€
Une fenêtre ouvrante permet d'aérer la salle de bain en l'absence de ventilation au grenier.
Il est toujours conseillé d'installer un extracteur mécanique dans les wc et salles de bain/buanderie afin d'éviter les problèmes d'odeurs, d'humidité et de manque de ventilation dans ces locaux. Budget estimé entre 350 € et 500€
Le mur contre terres à l'avant est humide. Pour y remédier, il sera possible de procéder à des injections afin de créer une barrière étanche qui protègera les murs de cave. Budget estimé entre 75€ et 100€/m
Ceci est une possibilité, il en existe d'autres : ouvrir côté extérieur et protéger le mur par un cimentage et platon avec pose de drain en fond de fouille raccordé à un caniveau ou une chambre de visite. Travail plus conséquent mais qui permet d'assainir le mur en évitant que l'eau ne trouve son chemin plus haut dans le mur. Budget estimé entre 100€ et 150€/m²
La chaudière ne fonctionne plus en mode chauffage, celle-ci sera probablement à remplacer. Budget estimé entre 3000€ et 4500€
voir 7.1
DATA ROOM
Nous avons mis tous les documents importants dans la date room, n’hésitez pas à télécharger ce dont vous avez besoin !
Nous avons mis tous les documents importants dans la date room, n’hésitez pas à télécharger ce dont vous avez besoin !
Besoin de crédit
Maintenant que vous êtes sûrs d’avoir fait le bon choix, calculez la valeur totale de cette acquisition (valeur du bien et frais annexes) et estimez vos besoins en crédit !
Simulation de crédit
| Prix d'achat | € |
| Rénovation | € |
| Rénovation HTVA | {{ calculeData.renovationHTVA | number:2 }} € |
| TVA | {{ calculeData.tva | number:2 }} € |
| Fonds propres | € |
| Acompte dû (disponible au compromis de vente) | {{ calculeData.prix * 0.1 | number:2 }} € |
| Reste des liquidités (disponible à l'acte) | {{ calculeData.avance | number:2 }} € |
| Crédit pont | {{ calculeData.creditPont | number:2 }} € |
| Prix de vente de votre bien existant | € |
| Solde du crédit existant | € |
| Frais d'acte d'achat | {{ calculeData.droit + calculeData.fraisNotaire | number:2 }} € |
| Droits d'enregistrement | {{ calculeData.droit | number:2 }} € |
|
Abattement
Suis-je éligible à une réduction des droits d’enregistrement ? |
|
| Frais de notaire | {{ calculeData.fraisNotaire | number:2 }} € |
| Autres frais | {{ calculeData.inscription + calculeData.fraisDossier + calculeData.autreFrais | number:2 }} € |
| Frais liés à l'acte hypothécaire | {{ calculeData.inscription | number:2 }} € |
| Frais de dossier et expertise bancaire | {{ calculeData.fraisDossier | number:2 }} € |
| Autres frais | € |
| Montant du crédit | {{ calculeData.montantCredit | number:2 }} € | |
Choix du type de crédit
| Taux | Type | CAP | Mensualité | Mensualité Min | Mensualité Max | |
|---|---|---|---|---|---|---|
| {{ tx.banque }} | {{ tx.taux | number:2 }}% | {{ tx.type }} | -{{ tx.capNeg }}%/+{{ tx.capPos }}% | {{ tx.mens | number:2 }}€ | {{ tx.min | number:2 }}€ - | {{ tx.max | number:2 }}€ - |
| Taux | Type | CAP | Mensualité | Mensualité Min | Mensualité Max | |
|---|---|---|---|---|---|---|
| {{ tx.banque }} | {{ tx.taux | number:2 }}% | {{ tx.type }} | -{{ tx.capNeg }}%/+{{ tx.capPos }}% | {{ tx.mens | number:2 }}€ | {{ tx.min | number:2 }}€ - | {{ tx.max | number:2 }}€ - |
| Taux | Type | CAP | Mensualité | Mensualité Min | Mensualité Max | |
|---|---|---|---|---|---|---|
| {{ tx.banque }} | {{ tx.taux | number:2 }}% | {{ tx.type }} | -{{ tx.capNeg }}%/+{{ tx.capPos }}% | {{ tx.mens | number:2 }}€ | {{ tx.min | number:2 }}€ - | {{ tx.max | number:2 }}€ - |
Rentabilité
Cout total de l’acquisition
| Prix d'achat | {{ calculeData.prix | number:2 }} € |
| Rénovation | + {{ calculeData.prixTransRenovation | number:2 }} € |
| Frais | + {{ calculeData.frais | number:2 }} € |
| Coût total | + {{ calculeData.frais + calculeData.prixTransRenovation + calculeData.prix | number:2 }} € |
| Fonds propres + crédit pont | {{ calculeData.totalFP+calculeData.creditPont | number:2 }} € |
| Montant du crédit | {{ calculeData.montantCredit | number:2 }} € |
| Coût total | + {{ calculeData.creditPont + calculeData.totalFP + calculeData.montantCredit | number:2 }} € |
Rentabilité sur actifs
Durée de détention année(s)
Gain réel {{ calculeData.gainReel | number:0 }} €
Rendement sur actif {{ calculeData.rendementSurActif | number:2 }} %
Revenus
| Revenu locatif annuel Brut | € |
| Charge annuelle {{ calculeData.pourcentageCharge | number:2 }}% | {{ calculeData.chargeLocatifAnnuel | number:2 }} € |
| Précompte immobilier | {{ calculeData.precomteImmo | number:2 }} € |
| Autre charge annuelle | € |
| Revenu locatif annuel net | {{ calculeData.revenuLocatifAnnuelNet | number:2 }} € |
| Total revenu locatif après {{ calculeData.dureeDetention }} année(s) tenant compte d'une inflation de % |
{{ calculeData.totalRevenuLocatif | number:2 }} € |
| Plus-value latente | {{ calculeData.pluvalueLatente | number:2 }} % |
| Plus-value du bien après {{calculeData.dureeDetention}} année(s) | {{ calculeData.pluvalueBien | number:2 }} € |
| Total revenu locatif après {{ calculeData.dureeDetention }} année(s) | {{ calculeData.totalRevenuLocatif | number:2 }} € |
| Gain brut sur le prix de base après {{ calculeData.dureeDetention }} année(s) | +{{ calculeData.gainBrut | number:2 }} € |
Charges
| Durée du crédit | {{ calculeData.duree | number:2 }} ans |
| Taux | {{ calculeData.taux | number:2 }} % |
| Mensualité | {{ calculeData.mensualite | number:2 }} € |
| Total interêts après {{calculeData.dureeDetention}} année(s) | {{ calculeData.totalInteret | number:2 }} € |
| Total frais | {{ calculeData.frais | number:2 }} € |
| Total | {{ calculeData.InteretFrais | number:2 }} € |
Gain réel
Rendement sur actif
Cash flow
| Année | Coût | Revenu locatif | Gain |
|---|---|---|---|
| {{ $index }} | {{ ch.payment | number:2 }} € | {{ ch.revenuLocatif | number:2 }} € | {{ - ch.fondPropre | number:2 }} € |
Av. Louise 433 Louizalaan 1050 Bruxelles - Brussel
Drève Richelle, 96 - 1410 Waterloo