Kom ik in aanmerking voor belastingvermindering ?
Smis
PRIJS : 335 000,00 €
Type: Maison | Regio: Flandre | Gemeente: Mechelen
Op minder dan anderhalve kilometer van het station van Mechelen, en vlakbij de E19, stelt By the Way u dit charmante huis voor van ongeveer 153m2 (volgens EPC). Indeling woning : -1 : drie kelders, gerenoveerde badkamer met WC, toegang tot Zuidoost georiënteerde tuin - Gelijkvloers : Inkomhal, woon/eetkamer, grote aparte super uitgeruste keuken met ontbijthoek, veranda met een trap die leidt naar de tuin - 1ste verdieping : twee slaapkamers (+/- 9,5m2 en +/- 14,5m2) - 2de verdieping : een derde slaapkamer (+/- 13m2), studieruimte (+/- 6,5m2) en een afzonderlijk toilet. EPC : C. Elektriciteit conform tot 2043.
Totale Oppervlakte: 153 M²
Slaapkamers: 3
badkamer: 1
Kelders: 3
Kantoor: 1
Tuin:Op het zuidoosten
VIDEO PRESENTATIE
Découvrez le bien en visualisant cette vidéo
VIRTUEEL BEZOEK
Vous voulez en voir plus ? Visitez le bien comme si vous y étiez à travers cette visite virtuelle
OMGEVING
Ce bien vous correspond ? Découvrez maintenant si sa localisation vous convient !
Supermarkt
Apotheek
Restaurant
Bakkerij
Kinderdagverblijf
Park
Scholen
Universiteiten
Verplaatsingen
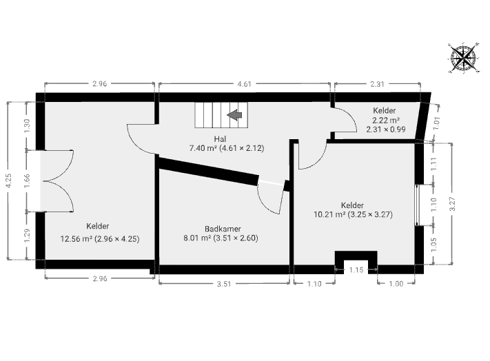
INTERIEUR PLANNEN
ondergrond
TOTALE OPPERVLAKTE : 40.37 m² | WOONRUIMTE : 40.37 m² | KAMER(S) : 5
De totale oppervlakte is de som van de interne oppervlakte (d.w.z. berekend vanaf de binnenkant van de buitenmuren) en de externe oppervlakken (balkons, terreinen, tuinen, enz.).
3x Kelder (s)
1x Hal
1x Badkamer
Kelder 1
oppervlak : 10.21 m²
Hal
oppervlak : 7.4 m²
Kelder 2
oppervlak : 2.22 m²
Badkamer
oppervlak : 8.01 m²
Kelder 3
oppervlak : 12.56 m²
GELIJKVLOERS
TOTALE OPPERVLAKTE : 51.67 m² | WOONRUIMTE : 51.67 m² | KAMER(S) : 5
De totale oppervlakte is de som van de interne oppervlakte (d.w.z. berekend vanaf de binnenkant van de buitenmuren) en de externe oppervlakken (balkons, terreinen, tuinen, enz.).
1x Hal
1x Woonkamer
1x Eetkamer
1x Keuken
1x veranda
Hal
oppervlak : 9.6 m²
Woonkamer
oppervlak : 11.74 m²
Eetkamer
oppervlak : 9.47 m²
Keuken
oppervlak : 10.58 m²
veranda
oppervlak : 10.32 m²
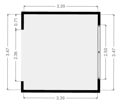
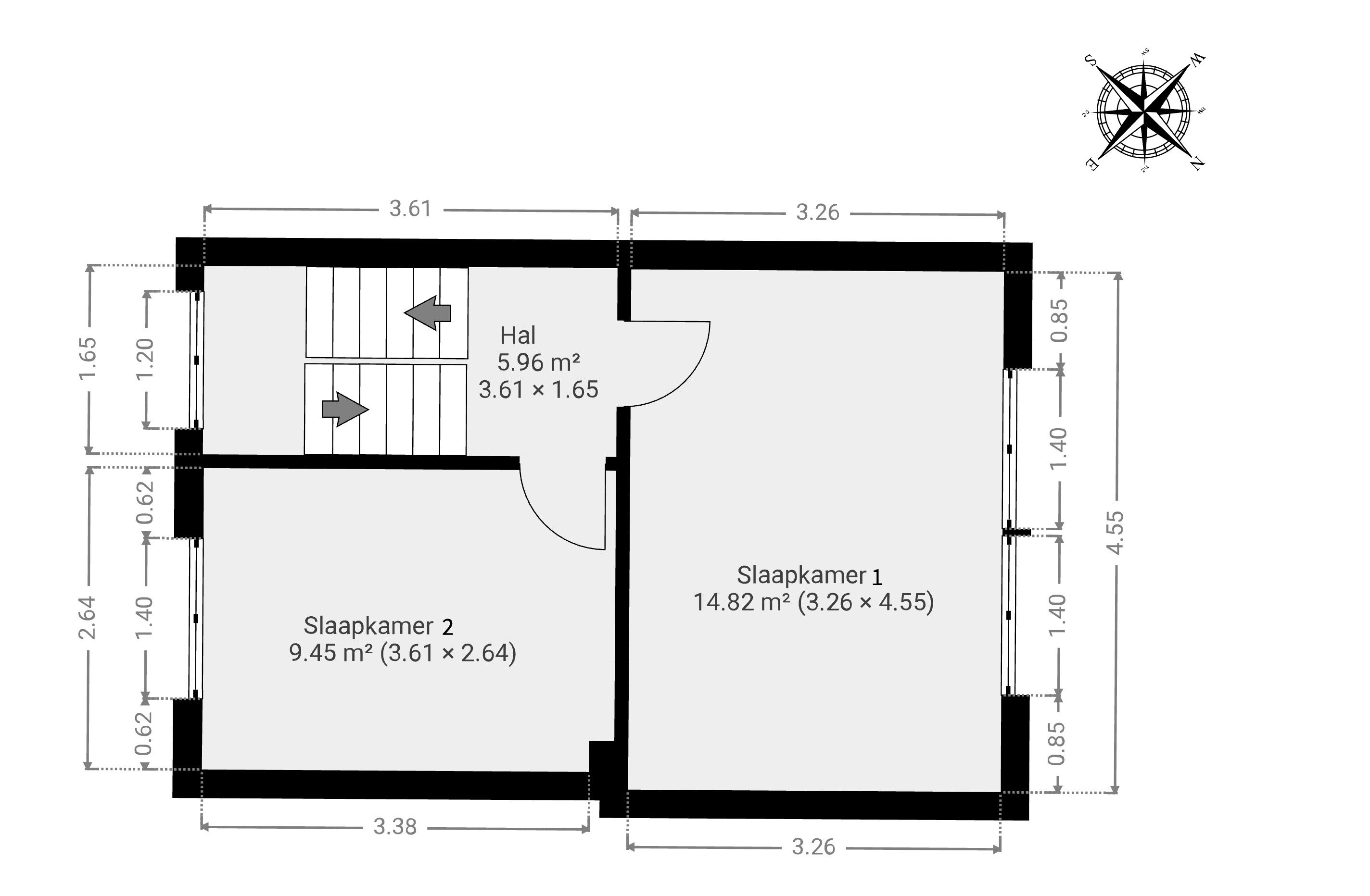
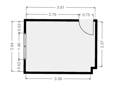
1e verdieping
TOTALE OPPERVLAKTE : 30.21 m² | WOONRUIMTE : 30.21 m² | KAMER(S) : 3
De totale oppervlakte is de som van de interne oppervlakte (d.w.z. berekend vanaf de binnenkant van de buitenmuren) en de externe oppervlakken (balkons, terreinen, tuinen, enz.).
2x Slaapkamer(s)
1x Hal
Slaapkamer 1
oppervlak : 14.82 m²
Slaapkamer 2
oppervlak : 9.45 m²
Hal
oppervlak : 5.96 m²
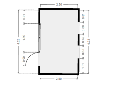
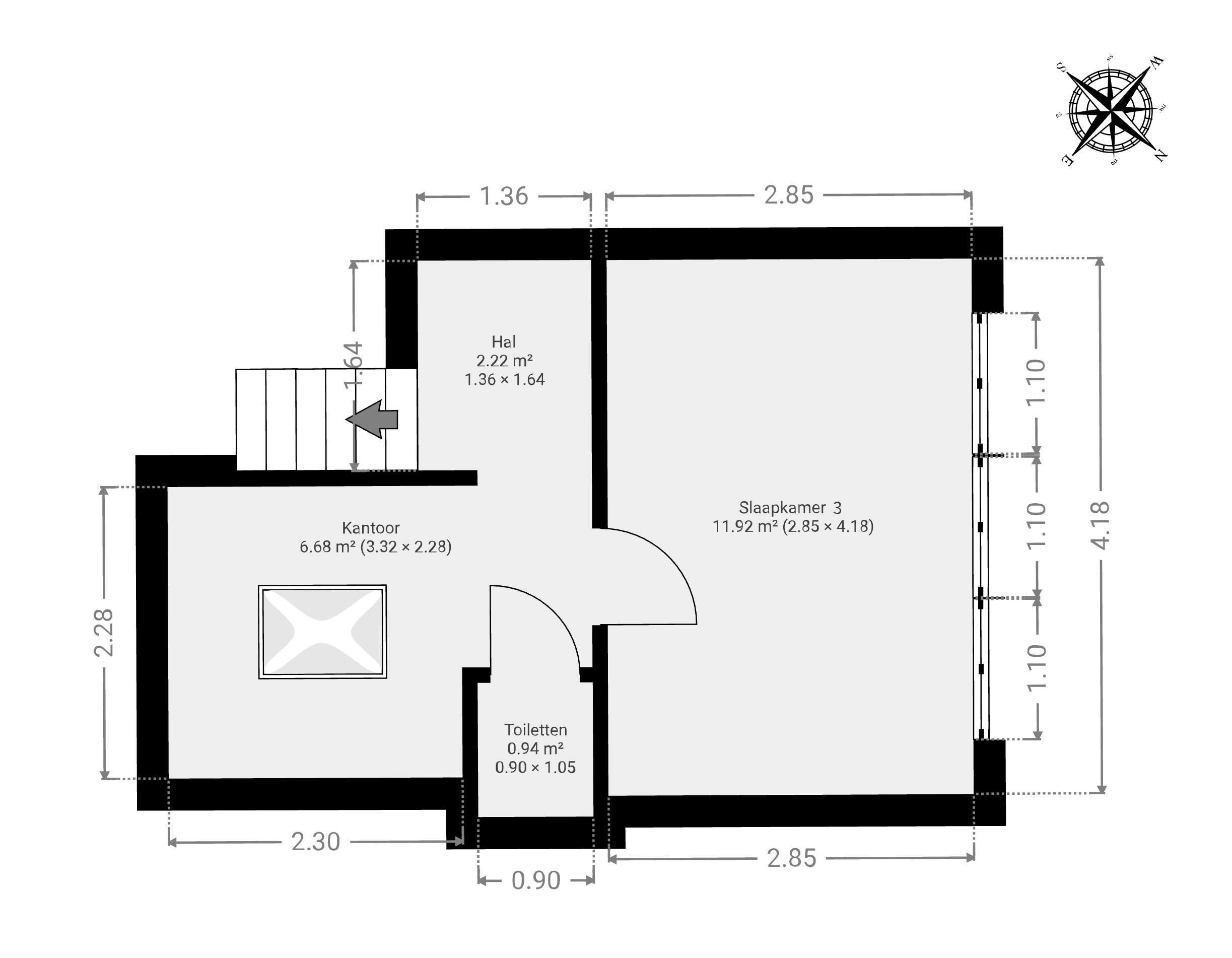
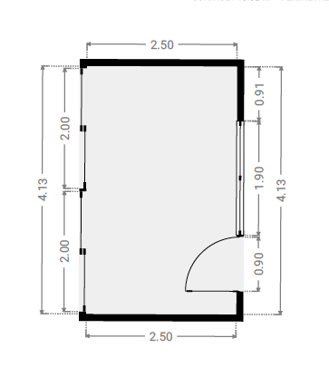
2e verdieping
TOTALE OPPERVLAKTE : 21.74 m² | WOONRUIMTE : 21.74 m² | KAMER(S) : 4
De totale oppervlakte is de som van de interne oppervlakte (d.w.z. berekend vanaf de binnenkant van de buitenmuren) en de externe oppervlakken (balkons, terreinen, tuinen, enz.).
1x Hal
1x Slaapkamer
1x Kantoor
1x Toiletten
Hal
oppervlak : 2.22 m²
Slaapkamer
oppervlak : 11.92 m²
Kantoor
oppervlak : 6.68 m²
Toiletten
oppervlak : 0.94 m²
KADASTRAAL ZOEKEN
Vous souhaitez mieux connaître votre parcelle et connaître la surface dont vous jouirez en achetant ce bien, alors consulter le cadastre est nécessaire !
BODEMGESTELDHEID
La pollution du sol a un impact sur l'environnement et sur la santé, les risques d’inondation ont un impact sur votre qualité de vie… Consultez les données relatives à ce bien pour en avoir le cœur net !
STAAT VAN BODEMVERONTREINIGING
Geen specifieke opmerkingen over parceel D291h3
Perceel: Klik hier
Legende :
Overstromingsgebied
Geen specifieke opmerkingen over parceel D291h3
Perceel: Klik hier
Legende :
CERTIFICATEN
Informez-vous sur la performance énergétique de ce bien et assurez-vous que ses installations électriques sont bien aux normes !
ENERGIEPRESTATIES
Zeer zuinig
Zeer energieverslindennd
ELEKTRISCH CERTIFICAAT
VERSLAG VAN HET CONFORMITEITSONDERZOEK EN/OF DE INSPECTIE VAN EEN ELEKTRISCHE LAAGSPANNINGSINSTALLATIE
De bestaande installatieConform
Bezoekende
agent
JEROEN VAN GORP
Datum
26/01/2018
Volgend
controlebezoek
26/01/2043
ASBESTCERTIFICAAT
Eindconclusie volgens de wetgeving:
Asbestveilig
Tijdens de inspectie vastgesteld:
Asbestmaterialen
2Beperking
1Uitsluitingen
0Het pand voldoet nu al aan de doelstelling van de Vlaamse overheid om asbestveilig te zijn.
Bezoekende agent
Ismail El Mourabet - DES-D1BX7
Uitgegeven op :
01.08.2023
Geldig tot
01.08.2033
Attestnummer
20230801-000410.000
DATA ROOM
Nous avons mis tous les documents importants dans la date room, n’hésitez pas à Downloaden ce dont vous avez besoin !
Nous avons mis tous les documents importants dans la date room, n’hésitez pas à télécharger ce dont vous avez besoin !
BEREKEN UW KREDIETBEHOEFTE
Maintenant que vous êtes sûrs d’avoir fait le bon choix, calculez la valeur totale de cette acquisition (valeur du bien et frais annexes) et estimez vos besoins en crédit !
Kredietsimulatie
| Aankoopprijs | € |
| Renovatie | € |
| Renovatie excl. btw | {{ calculeData.renovationHTVA | number:2 }} € |
| BTW | {{ calculeData.tva | number:2 }} € |
| Eigen fondsen | € |
| Te betalen waarborgsom (beschikbaar bij de verkoopovereenkomst) | {{ calculeData.prix * 0.1 | number:2 }} € |
| Resterende liquide middelen (besschikbaar op de verkoop) | {{ calculeData.avance | number:2 }} € |
| Overbruggingskrediet | {{ calculeData.creditPont | number:2 }} € |
| Aankooprijs | € |
| Bestaand tegoed | € |
| Aankooprechten | {{ calculeData.droit + calculeData.fraisNotaire | number:2 }} € |
| Verkooprechten | {{ calculeData.droit | number:2 }} € |
|
Vermindering
Kom ik in aanmerking voor vermindering van het inschrijfgeld? |
|
| Notariskosten | {{ calculeData.fraisNotaire | number:2 }} € |
| Andere kosten | {{ calculeData.inscription + calculeData.fraisDossier + calculeData.autreFrais | number:2 }} € |
| Kosten in verband met de hypotheekakte | {{ calculeData.inscription | number:2 }} € |
| Administratiekosten en bankexpertise | {{ calculeData.fraisDossier | number:2 }} € |
| Andere kosten | € |
| ONTLEEND BEDRAG | {{ calculeData.montantCredit | number:2 }} € | |
Deze simulatie is gebaseerd op een rentevoet van 10/10/2023, die indicatief is en onderhevig aan verandering
Keuze soort krediet
| Tarief | Type | Pet | Maandelijkse betaling | MMaandelijkse betaling Min | Maandelijkse betaling Max | |
|---|---|---|---|---|---|---|
| {{ tx.banque }} | {{ tx.taux | number:2 }}% | {{ tx.type }} | -{{ tx.capNeg }}%/+{{ tx.capPos }}% | {{ tx.mens | number:2 }}€ | {{ tx.min | number:2 }}€ - | {{ tx.max | number:2 }}€ - |
| Tarief | Type | Pet | Maandelijkse betaling | Maandelijkse betaling Min | Maandelijkse betaling Max | |
|---|---|---|---|---|---|---|
| {{ tx.banque }} | {{ tx.taux | number:2 }}% | {{ tx.type }} | -{{ tx.capNeg }}%/+{{ tx.capPos }}% | {{ tx.mens | number:2 }}€ | {{ tx.min | number:2 }}€ - | {{ tx.max | number:2 }}€ - |
| Tarief | Type | Pet | Maandelijkse betaling | Maandelijkse betaling Min | Maandelijkse betaling Max | |
|---|---|---|---|---|---|---|
| {{ tx.banque }} | {{ tx.taux | number:2 }}% | {{ tx.type }} | -{{ tx.capNeg }}%/+{{ tx.capPos }}% | {{ tx.mens | number:2 }}€ | {{ tx.min | number:2 }}€ - | {{ tx.max | number:2 }}€ - |
RENTABILITEIT
Cout total de l’acquisition
| Aankoopprijs | {{ calculeData.prix | number:2 }} € |
| Renovatie | + {{ calculeData.prixTransRenovation | number:2 }} € |
| Kosten | + {{ calculeData.frais | number:2 }} € |
| Totale kostprijs | + {{ calculeData.frais + calculeData.prixTransRenovation + calculeData.prix | number:2 }} € |
| Eigen middelen + overbruggingskrediet | {{ calculeData.totalFP+calculeData.creditPont | number:2 }} € |
| Ontleend bedrag | {{ calculeData.montantCredit | number:2 }} € |
| Totale kostprijs | + {{ calculeData.creditPont + calculeData.totalFP + calculeData.montantCredit | number:2 }} € |
Rendement op activa
Duur van detentie jaar (jaren)
WERKELIJKE WINST {{ calculeData.gainReel | number:0 }} €
RENDEMENT OP ACTIVA {{ calculeData.rendementSurActif | number:2 }} %
Omzet
| Jaarlijkse bruto huurinkomsten | € |
| Jaarlijkse lasten {{ calculeData.pourcentageCharge | number:2 }}% | {{ calculeData.chargeLocatifAnnuel | number:2 }} € |
| Onroerend goed belasting | {{ calculeData.precomteImmo | number:2 }} € |
| Andere jaarlijkse lasten | € |
| Jaarlijkse netto huurinkomsten | {{ calculeData.revenuLocatifAnnuelNet | number:2 }} € |
| Totale huurinkomsten na {{ calculeData.dureeDetention }} jaar rekening houdend met een inflatie van % | {{ calculeData.totalRevenuLocatif | number:2 }} € |
| Niet-gerealiseerde meerwaarde | {{ calculeData.pluvalueLatente | number:2 }} % |
| Meerwaarde van het pand na {{calculeData.dureeDetention}} jaar | {{ calculeData.pluvalueBien | number:2 }} € |
| Totale huurinkomsten na {{ calculeData.dureeDetention }} jaar | {{ calculeData.totalRevenuLocatif | number:2 }} € |
| Bruto winst op de basisprijs na {{ calculeData.dureeDetention }} jaar | +{{ calculeData.gainBrut | number:2 }} € |
Uitgaven
| Looptijd | {{ calculeData.duree | number:2 }} jaar |
| Tarief | {{ calculeData.taux | number:2 }} % |
| Maandlast | {{ calculeData.mensualite | number:2 }} € |
| Totale intrestlast na {{calculeData.dureeDetention}} jaar | {{ calculeData.totalInteret | number:2 }} € |
| Totale kosten | {{ calculeData.frais | number:2 }} € |
| Totaal | {{ calculeData.InteretFrais | number:2 }} € |
Winstrol
Rendement op activa
Cash flow
| Jaar | Kosten | Huurinkomsten | Verdienen |
|---|---|---|---|
| {{ $index }} | {{ ch.payment | number:2 }} € | {{ ch.revenuLocatif | number:2 }} € | {{ - ch.fondPropre | number:2 }} € |
BRUSSEL AGENTSCHAP Louizalaan 433 - 1050 Brussel
LA HULPE AGENTSCHAP Brusselsesteenweg 21 - 1310 Terhulp