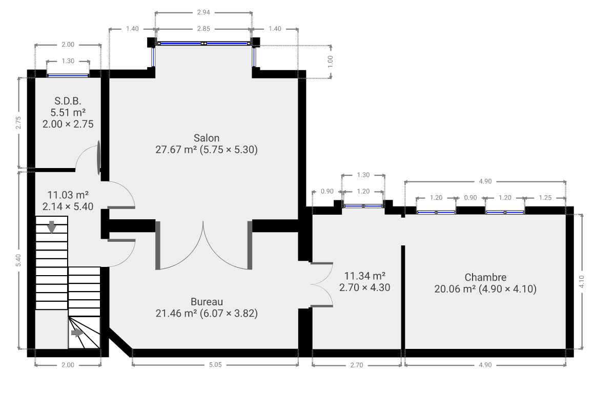
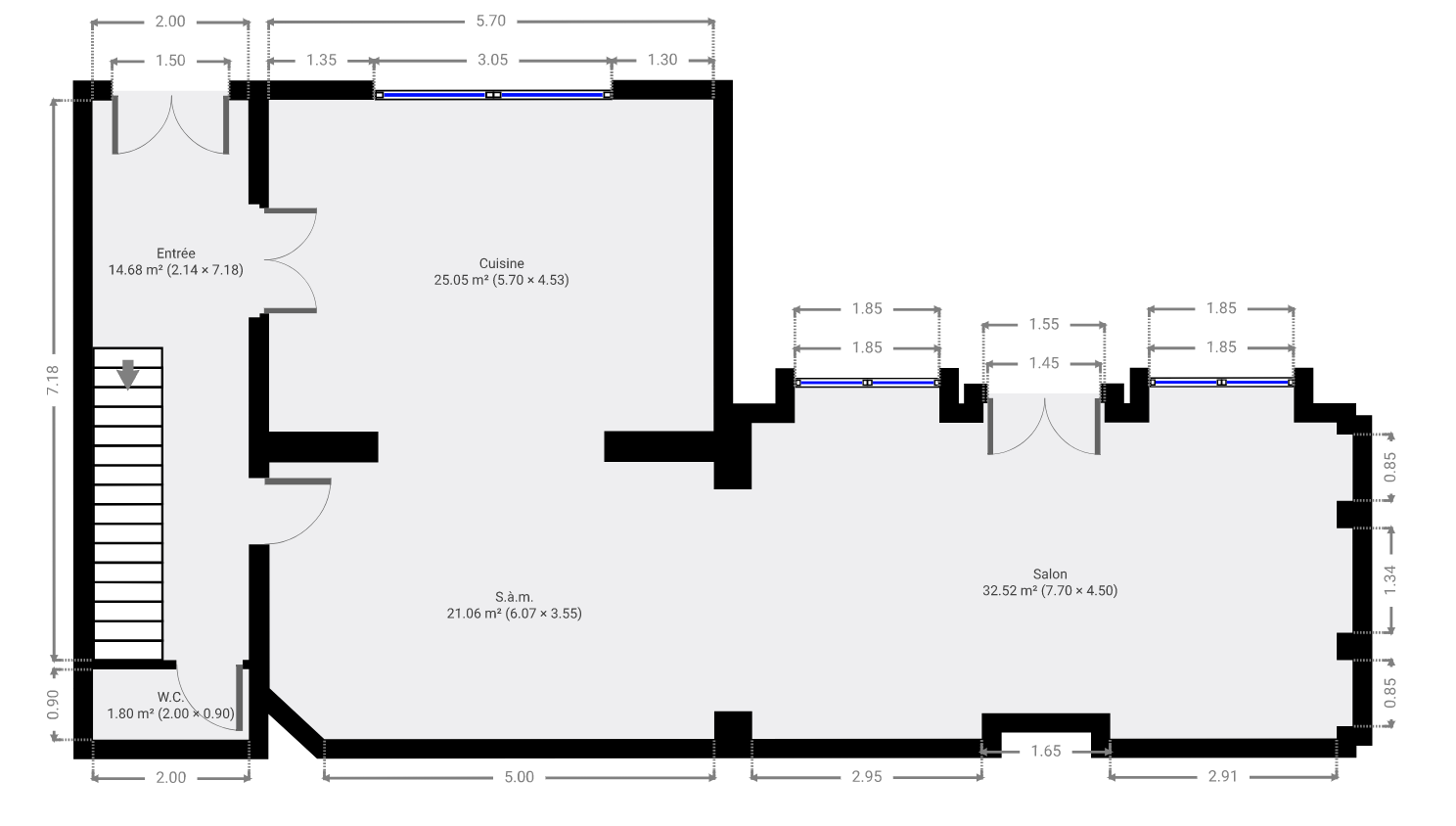
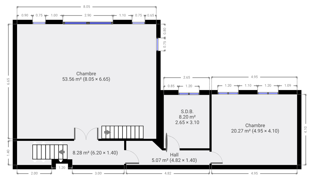
Surface : 135.23 m²

Parcelle : D344r9

État de la pollution des sols
Aucune remarque particulière.
Source : Cliquer ici
Zone inondable
Aucune remarque particulière.
Source : Cliquer ici

 

 

PERFORMANCE ÉNERGÉTIQUE

Économe

A ≤ 45
B 46 - 95
C 96 - 150
D 151 - 210
E 211 - 275
F 276 - 345
F
G > 345

Très énergivore

 

Consommation d’énergie primaire annuelle totale
114.659 kWh/An
Consommation d’énergie primaire annuelle par m²
338 kWh/m².An

 

Certificateur électrique

PROCES VERBAL D’EXAMEN DE CONFORMITE ET/OU DE VISITE DE CONTROLE D’UNE INSTALLATION ELECTRIQUE BASSE TENSION

La nouvelle installation Conforme


Agent visiteur

B. Gallée

Date de certification

01/02/2002

Prochaine visite avant le

01/02/2027

 

CERTIFICATEUR GAZ

PPROCES VERBAL D’EXAMEN DE CONFORMITE ET/OU DE VISITE DE CONTROLE D’UNE INSTALLATION DE GAZ

L’installation existante Conforme


Date de certification

27/11/2013

Prochaine visite de contrôle

27/11/2038