Kom ik in aanmerking voor belastingvermindering ?
Kleine Molen
PRIJS : 305 000,00 €
Type: Appartement | Regio: Flandre | Gemeente: Vilvorde
Gelegen in het centrum van Vilvoorde, op minder dan een kilometer van het station, in een rustige eenrichtingsstraat, biedt By the Way u dit mooie appartement +/- 114m2 (volgens EPC).
Het is gelegen op de 1ste verdieping van de 4 in een goed onderhouden gebouw met lift.
Het appartement bestaat uit :
inkomhal, lichte woonkamer +/- 33m2, volledig uitgeruste semi-open keuken, 3 slaapkamers (+/- 12,5, 11 & 10,5m2), badkamer met bad en douche, wasruimte, 2 aparte toiletten.
EPC : B. Elektriciteit conform tot 2039. Asbestveilig.
Kosten : provisie +/- 300€/maand (gemeenschappelijke kosten voor het gebouw en privé verbruik van verwarming en warm water).
Privékelder. Overdekte parkeerplaats.
Extra overdekte parkeerplaats nodig : €25.000.
Totale Oppervlakte: 114m²
Slaapkamers: 3
badkamer: 1
Kelder: 1
Overdekte parkeerplaats: 1
Toiletten: 2
Wasruimte:1
VIDEO PRESENTATIE
Découvrez le bien en visualisant cette vidéo
VIRTUEEL BEZOEK
Vous voulez en voir plus ? Visitez le bien comme si vous y étiez à travers cette visite virtuelle
OMGEVING
Ce bien vous correspond ? Découvrez maintenant si sa localisation vous convient !
Supermarkt
Apotheek
Restaurant
Bakkerij
Kinderdagverblijf
Park
Scholen
Universiteiten
Verplaatsingen
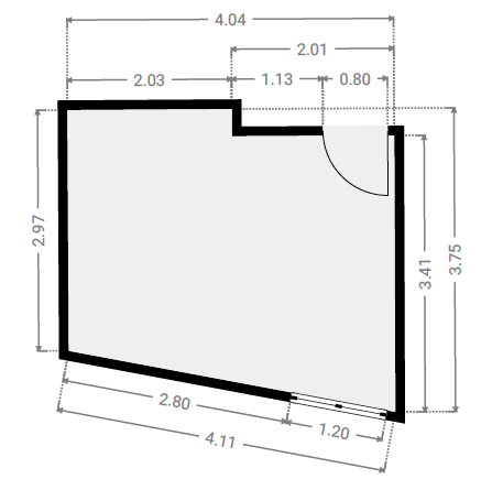
Plans intérieurs
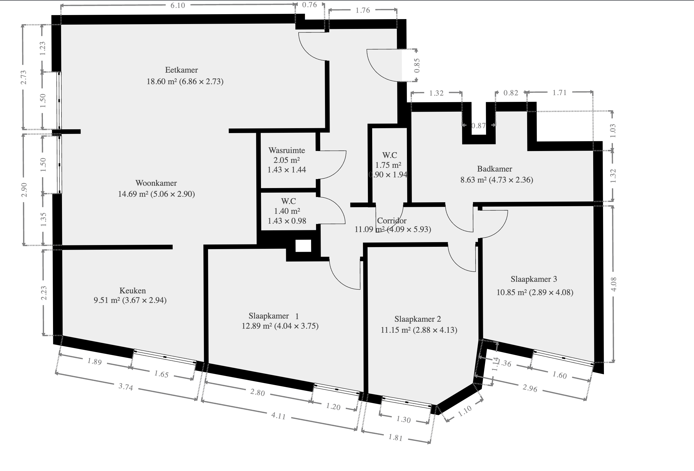
1E VERDIEPING
STOTALE OPPERVLAKTE : 108.13 m² | WOONRUIMTE: 108.13 m² | kAMERS : 11
1x Eetkamer
1x Woonkamer
1x Keuken
1x Couloir
1x Wasruimte
2x W.C(s)
3x Slaapkamers(s)
1x Badkamer
Eetkamer
SURFACE : 18.6 m²
Woonkamer
SURFACE : 14.69 m²
Keuken
SURFACE : 9.51 m²
Couloir
SURFACE : 11.09 m²
Wasruimte
SURFACE : 2.05 m²
W.C
SURFACE : 1.4 m²
Slaapkamers 1
SURFACE : 12.89 m²
Slaapkamers 3
SURFACE : 10.85 m²
Slaapkamers 2
SURFACE : 11.15 m²
Badkamer
SURFACE : 8.63 m²
W.C
SURFACE : 1.75 m²
KADASTRAAL ZOEKEN
Vous souhaitez mieux connaître votre parcelle et connaître la surface dont vous jouirez en achetant ce bien, alors consulter le cadastre est nécessaire !
BODEMGESTELDHEID
La pollution du sol a un impact sur l'environnement et sur la santé, les risques d’inondation ont un impact sur votre qualité de vie… Consultez les données relatives à ce bien pour en avoir le cœur net !
STAAT VAN BODEMVERONTREINIGING
Geen bijzondere opmerkingen voor perceel D467p
Bron : Klik hier
Legende :
Overstromingsgebied
Geen overstroming gemodelleerd voor perceel D467p
Bron : Klik hier
Legende :
CERTIFICATEN
Informez-vous sur la performance énergétique de ce bien et assurez-vous que ses installations électriques sont bien aux normes !
ENERGIEPRESTATIES
Zeer zuinig
Zeer energieverslindennd
ELEKTRISCH CERTIFICAAT
VERSLAG VAN HET CONFORMITEITSONDERZOEK EN/OF DE INSPECTIE VAN EEN ELEKTRISCHE LAAGSPANNINGSINSTALLATIE
De bestaande installatieConform
Bezoekende
agent
Peter Van Geel
Datum
29/10/2014
Volgend
controlebezoek
29/10/2039
ASBEST CERTIFICAAT
EINDCONCLUSIE VAN DE WETGEVING:
Vastgesteld tijdens inspectie
Asbestmaterialen
0Beperkingen
0Uitsluitingen
0Het pand voldoet nu al aan de doelstelling van de Vlaamse overheid om asbestveilig te zijn.
Bezoekende agent
Paul Verschueren - DES-
Datum
19.06.2023
Volgend controlebezoek
19.06.2033
DATA ROOM
Nous avons mis tous les documents importants dans la date room, n’hésitez pas à Downloaden ce dont vous avez besoin !
Nous avons mis tous les documents importants dans la date room, n’hésitez pas à télécharger ce dont vous avez besoin !
BEREKEN UW KREDIETBEHOEFTE
Maintenant que vous êtes sûrs d’avoir fait le bon choix, calculez la valeur totale de cette acquisition (valeur du bien et frais annexes) et estimez vos besoins en crédit !
Kredietsimulatie
| Aankoopprijs | € |
| Renovatie | € |
| Renovatie excl. btw | {{ calculeData.renovationHTVA | number:2 }} € |
| BTW | {{ calculeData.tva | number:2 }} € |
| Eigen fondsen | € |
| Te betalen waarborgsom (beschikbaar bij de verkoopovereenkomst) | {{ calculeData.prix * 0.1 | number:2 }} € |
| Resterende liquide middelen (besschikbaar op de verkoop) | {{ calculeData.avance | number:2 }} € |
| Overbruggingskrediet | {{ calculeData.creditPont | number:2 }} € |
| Aankooprijs | € |
| Bestaand tegoed | € |
| Aankooprechten | {{ calculeData.droit + calculeData.fraisNotaire | number:2 }} € |
| Verkooprechten | {{ calculeData.droit | number:2 }} € |
|
Vermindering
Kom ik in aanmerking voor vermindering van het inschrijfgeld? |
|
| Notariskosten | {{ calculeData.fraisNotaire | number:2 }} € |
| Andere kosten | {{ calculeData.inscription + calculeData.fraisDossier + calculeData.autreFrais | number:2 }} € |
| Kosten in verband met de hypotheekakte | {{ calculeData.inscription | number:2 }} € |
| Administratiekosten en bankexpertise | {{ calculeData.fraisDossier | number:2 }} € |
| Andere kosten | € |
| ONTLEEND BEDRAG | {{ calculeData.montantCredit | number:2 }} € | |
Deze simulatie is gebaseerd op een rentevoet van 07/08/2023, die indicatief is en onderhevig aan verandering
Keuze soort krediet
| Tarief | Type | Pet | Maandelijkse betaling | MMaandelijkse betaling Min | Maandelijkse betaling Max | |
|---|---|---|---|---|---|---|
| {{ tx.banque }} | {{ tx.taux | number:2 }}% | {{ tx.type }} | -{{ tx.capNeg }}%/+{{ tx.capPos }}% | {{ tx.mens | number:2 }}€ | {{ tx.min | number:2 }}€ - | {{ tx.max | number:2 }}€ - |
| Tarief | Type | Pet | Maandelijkse betaling | Maandelijkse betaling Min | Maandelijkse betaling Max | |
|---|---|---|---|---|---|---|
| {{ tx.banque }} | {{ tx.taux | number:2 }}% | {{ tx.type }} | -{{ tx.capNeg }}%/+{{ tx.capPos }}% | {{ tx.mens | number:2 }}€ | {{ tx.min | number:2 }}€ - | {{ tx.max | number:2 }}€ - |
| Tarief | Type | Pet | Maandelijkse betaling | Maandelijkse betaling Min | Maandelijkse betaling Max | |
|---|---|---|---|---|---|---|
| {{ tx.banque }} | {{ tx.taux | number:2 }}% | {{ tx.type }} | -{{ tx.capNeg }}%/+{{ tx.capPos }}% | {{ tx.mens | number:2 }}€ | {{ tx.min | number:2 }}€ - | {{ tx.max | number:2 }}€ - |
RENTABILITEIT
Cout total de l’acquisition
| Aankoopprijs | {{ calculeData.prix | number:2 }} € |
| Renovatie | + {{ calculeData.prixTransRenovation | number:2 }} € |
| Kosten | + {{ calculeData.frais | number:2 }} € |
| Totale kostprijs | + {{ calculeData.frais + calculeData.prixTransRenovation + calculeData.prix | number:2 }} € |
| Eigen middelen + overbruggingskrediet | {{ calculeData.totalFP+calculeData.creditPont | number:2 }} € |
| Ontleend bedrag | {{ calculeData.montantCredit | number:2 }} € |
| Totale kostprijs | + {{ calculeData.creditPont + calculeData.totalFP + calculeData.montantCredit | number:2 }} € |
Rendement op activa
Duur van detentie jaar (jaren)
WERKELIJKE WINST {{ calculeData.gainReel | number:0 }} €
RENDEMENT OP ACTIVA {{ calculeData.rendementSurActif | number:2 }} %
Omzet
| Jaarlijkse bruto huurinkomsten | € |
| Jaarlijkse lasten {{ calculeData.pourcentageCharge | number:2 }}% | {{ calculeData.chargeLocatifAnnuel | number:2 }} € |
| Onroerend goed belasting | {{ calculeData.precomteImmo | number:2 }} € |
| Andere jaarlijkse lasten | € |
| Jaarlijkse netto huurinkomsten | {{ calculeData.revenuLocatifAnnuelNet | number:2 }} € |
| Totale huurinkomsten na {{ calculeData.dureeDetention }} jaar rekening houdend met een inflatie van % | {{ calculeData.totalRevenuLocatif | number:2 }} € |
| Niet-gerealiseerde meerwaarde | {{ calculeData.pluvalueLatente | number:2 }} % |
| Meerwaarde van het pand na {{calculeData.dureeDetention}} jaar | {{ calculeData.pluvalueBien | number:2 }} € |
| Totale huurinkomsten na {{ calculeData.dureeDetention }} jaar | {{ calculeData.totalRevenuLocatif | number:2 }} € |
| Bruto winst op de basisprijs na {{ calculeData.dureeDetention }} jaar | +{{ calculeData.gainBrut | number:2 }} € |
Uitgaven
| Looptijd | {{ calculeData.duree | number:2 }} jaar |
| Tarief | {{ calculeData.taux | number:2 }} % |
| Maandlast | {{ calculeData.mensualite | number:2 }} € |
| Totale intrestlast na {{calculeData.dureeDetention}} jaar | {{ calculeData.totalInteret | number:2 }} € |
| Totale kosten | {{ calculeData.frais | number:2 }} € |
| Totaal | {{ calculeData.InteretFrais | number:2 }} € |
Winstrol
Rendement op activa
Cash flow
| Jaar | Kosten | Huurinkomsten | Verdienen |
|---|---|---|---|
| {{ $index }} | {{ ch.payment | number:2 }} € | {{ ch.revenuLocatif | number:2 }} € | {{ - ch.fondPropre | number:2 }} € |
BRUSSEL AGENTSCHAP Louizalaan 433 - 1050 Brussel
Drève Richelle, 96 - 1410 Waterloo