Kom ik in aanmerking voor belastingvermindering ?
Dijck 15
PRIJS : 621 347,00 €
Type: Thuis | Regio: vlaanderen | Gemeente: Wemmel
Charmante, ruime eengezinswoning met zeer veel lichtinval, met goed doordachte ruimtes en kwaliteitsafwerkingen. Op de begane grond vindt u een garage, een wasruimte, een wijnkelder en een toilet. Op de eerste verdieping is er een gezellige woonkamer met open haard, een eetkamer, een moderne, volledig uitgeruste open keuken met kookeiland, evenals een terras en een tuin op het zuiden, perfect om van de zon te genieten. Op de tweede verdieping beschikt het huis over 3 comfortabele slaapkamers, een apart toilet en een badkamer met een bad en een douche. De zolder is omgevormd tot een extra slaapkamer met een aangrenzende douchekamer. Elektriciteit volgens de normen. Zonnepanelen met batterij. Gelegen in een rustige en aangename wijk, is dit huis ideaal voor een gezin dat op zoek is naar comfort, ruimte en licht. Het huis bevindt zich in een rustige zone die zowel een dorpssfeer biedt als gemakkelijk toegang heeft tot de belangrijkste verkeersaders. Slechts een paar minuten rijden van het centrum van Brussel. Goede vervoersinfrastructuur. Ideaal voor wie op zoek is naar een rustige levensomgeving, maar toch dichtbij de Belgische hoofdstad wil blijven.
Totale Oppervlakte: 206.57 M²
Woonoppervlak: 179.79 m²
Slaapkamers: 4
badkamer: 1
Doucheruimte 1
Terras :op het zuiden
Garage: ja
Tuin: op het zuiden
VIDEO PRESENTATIE
Découvrez le bien en visualisant cette vidéo
VIRTUEEL BEZOEK
Vous voulez en voir plus ? Visitez le bien comme si vous y étiez à travers cette visite virtuelle
OMGEVING
Ce bien vous correspond ? Découvrez maintenant si sa localisation vous convient !
Supermarkt
Apotheek
Restaurant
Bakkerij
Kinderdagverblijf
Park
Scholen
Universiteiten
Verplaatsingen
Interne Plannen
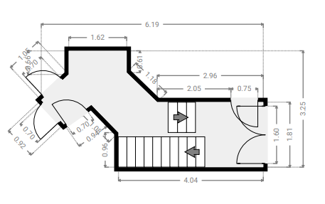
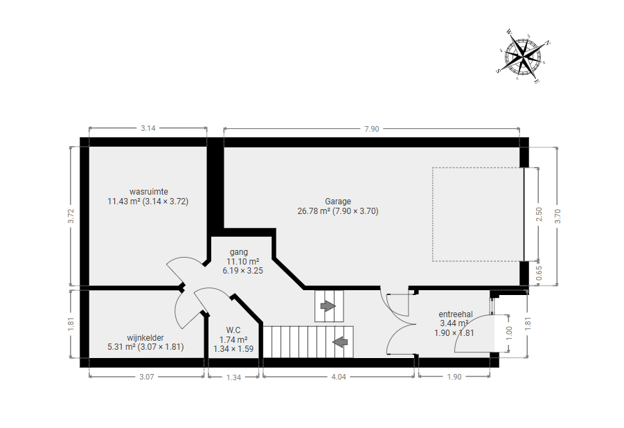
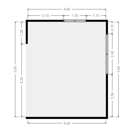
GELIJKVLOERS
TOTALE OPPERVLAKTE : 59.76 m² | WOONRUIMTE : 32.98 m² | KAMERS : 6
1x Wasruimte
1x Wijnkelder
1x Garage
1x Entree, hal
1x Hal
1x WC.
Wasruimte
OPPERVLAKTE : 11.43 m²
Wijnkelder
OPPERVLAKTE : 5.31 m²
Garage
OPPERVLAKTE : 26.78 m²
Entree, hal
OPPERVLAKTE : 3.44 m²
Hal
OPPERVLAKTE : 11.1 m²
WC.
OPPERVLAKTE : 1.75 m²
1E VERDIEPING
TOTALE OPPERVLAKTE : 62.16 m² | WOONRUIMTE : 62.16 m² | KAMERS : 3
1x Verblijf
1x Eetkamer
1x Keuken
Verblijf
OPPERVLAKTE : 25.76 m²
Eetkamer
OPPERVLAKTE : 19.66 m²
Keuken
OPPERVLAKTE : 16.75 m²
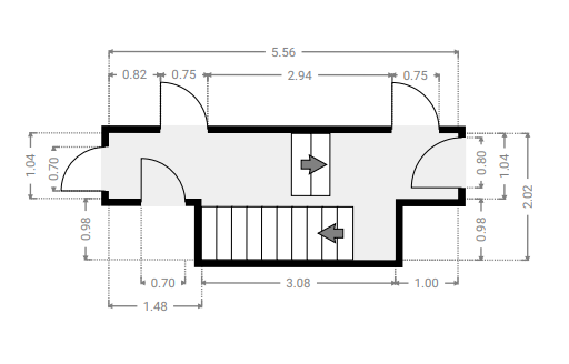
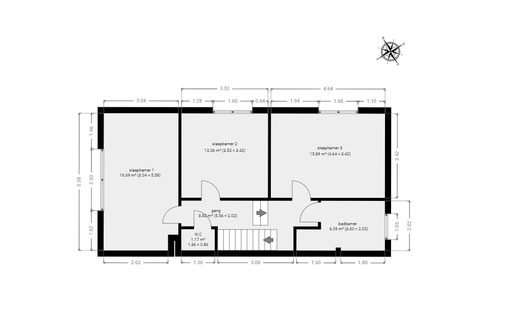
2E VERDIEPING
TOTALE OPPERVLAKTE : 60.69 m² | WOONRUIMTE : 60.69 m² | KAMERS : 6
3x slaapkamer(s)
1x SDB
1x Hal
1x WC.
slaapkamer 1
OPPERVLAKTE : 16.69 m²
slaapkamer 2
OPPERVLAKTE : 12.06 m²
slaapkamer 3
OPPERVLAKTE : 15.89 m²
SDB
OPPERVLAKTE : 6.1 m²
Hal
OPPERVLAKTE : 8.82 m²
WC.
OPPERVLAKTE : 1.17 m²
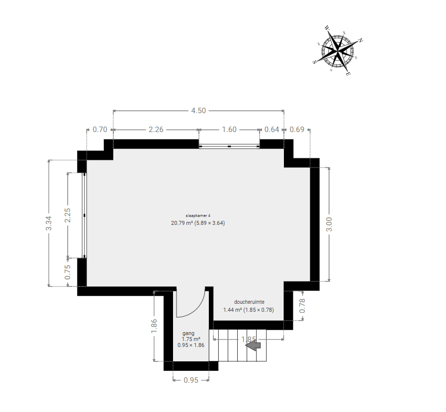
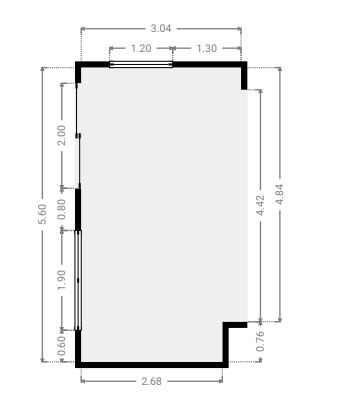
3E VERDIEPING
TOTALE OPPERVLAKTE : 23.96 m² | WOONRUIMTE : 23.96 m² | KAMERS : 3
1x slaapkamer(s)
1x SDD
1x Hal
slaapkamer 4
OPPERVLAKTE : 20.79 m²
SDD
OPPERVLAKTE : 1.44 m²
Hal
OPPERVLAKTE : 1.76 m²
KADASTRAAL ZOEKEN
Vous souhaitez mieux connaître votre parcelle et connaître la surface dont vous jouirez en achetant ce bien, alors consulter le cadastre est nécessaire !
BODEMGESTELDHEID
La pollution du sol a un impact sur l'environnement et sur la santé, les risques d’inondation ont un impact sur votre qualité de vie… Consultez les données relatives à ce bien pour en avoir le cœur net !
STAAT VAN BODEMVERONTREINIGING
Geen bijzondere opmerkingen voor perceel B497y11
Bron : Klik hier
Légende :
Overstromingsgebied
Geen overstroming gemodelleerd voor perceel B497y11
Bron : Klik hier
Légende :
CERTIFICATEN
Informez-vous sur la performance énergétique de ce bien et assurez-vous que ses installations électriques sont bien aux normes !
ELEKTRISCH CERTIFICAAT
VERSLAG VAN HET CONFORMITEITSONDERZOEK EN/OF DE INSPECTIE VAN EEN ELEKTRISCHE LAAGSPANNINGSINSTALLATIE
De bestaande installatieConform
Bezoekende
agent
Vander
Datum
27/11/2013
Volgend
controlebezoek
27/11/2038
DATA ROOM
Nous avons mis tous les documents importants dans la date room, n’hésitez pas à Downloaden ce dont vous avez besoin !
Nous avons mis tous les documents importants dans la date room, n’hésitez pas à télécharger ce dont vous avez besoin !
BEREKEN UW KREDIETBEHOEFTE
Maintenant que vous êtes sûrs d’avoir fait le bon choix, calculez la valeur totale de cette acquisition (valeur du bien et frais annexes) et estimez vos besoins en crédit !
Kredietsimulatie
| Aankoopprijs | € |
| Renovatie | € |
| Renovatie excl. btw | {{ calculeData.renovationHTVA | number:2 }} € |
| BTW | {{ calculeData.tva | number:2 }} € |
| Eigen fondsen | € |
| Te betalen waarborgsom (beschikbaar bij de verkoopovereenkomst) | {{ calculeData.prix * 0.1 | number:2 }} € |
| Resterende liquide middelen (besschikbaar op de verkoop) | {{ calculeData.avance | number:2 }} € |
| Overbruggingskrediet | {{ calculeData.creditPont | number:2 }} € |
| Aankooprijs | € |
| Bestaand tegoed | € |
| Aankooprechten | {{ calculeData.droit + calculeData.fraisNotaire | number:2 }} € |
| Verkooprechten | {{ calculeData.droit | number:2 }} € |
|
Vermindering
Kom ik in aanmerking voor vermindering van het inschrijfgeld? |
|
| Notariskosten | {{ calculeData.fraisNotaire | number:2 }} € |
| Andere kosten | {{ calculeData.inscription + calculeData.fraisDossier + calculeData.autreFrais | number:2 }} € |
| Kosten in verband met de hypotheekakte | {{ calculeData.inscription | number:2 }} € |
| Administratiekosten en bankexpertise | {{ calculeData.fraisDossier | number:2 }} € |
| Andere kosten | € |
| ONTLEEND BEDRAG | {{ calculeData.montantCredit | number:2 }} € | |
Deze simulatie is gebaseerd op een rentevoet van 09/07/2024, die indicatief is en onderhevig aan verandering
Keuze soort krediet
| Tarief | Type | Pet | Maandelijkse betaling | MMaandelijkse betaling Min | Maandelijkse betaling Max | |
|---|---|---|---|---|---|---|
| {{ tx.banque }} | {{ tx.taux | number:2 }}% | {{ tx.type }} | -{{ tx.capNeg }}%/+{{ tx.capPos }}% | {{ tx.mens | number:2 }}€ | {{ tx.min | number:2 }}€ - | {{ tx.max | number:2 }}€ - |
| Tarief | Type | Pet | Maandelijkse betaling | Maandelijkse betaling Min | Maandelijkse betaling Max | |
|---|---|---|---|---|---|---|
| {{ tx.banque }} | {{ tx.taux | number:2 }}% | {{ tx.type }} | -{{ tx.capNeg }}%/+{{ tx.capPos }}% | {{ tx.mens | number:2 }}€ | {{ tx.min | number:2 }}€ - | {{ tx.max | number:2 }}€ - |
| Tarief | Type | Pet | Maandelijkse betaling | Maandelijkse betaling Min | Maandelijkse betaling Max | |
|---|---|---|---|---|---|---|
| {{ tx.banque }} | {{ tx.taux | number:2 }}% | {{ tx.type }} | -{{ tx.capNeg }}%/+{{ tx.capPos }}% | {{ tx.mens | number:2 }}€ | {{ tx.min | number:2 }}€ - | {{ tx.max | number:2 }}€ - |
RENTABILITEIT
Cout total de l’acquisition
| Aankoopprijs | {{ calculeData.prix | number:2 }} € |
| Renovatie | + {{ calculeData.prixTransRenovation | number:2 }} € |
| Kosten | + {{ calculeData.frais | number:2 }} € |
| Totale kostprijs | + {{ calculeData.frais + calculeData.prixTransRenovation + calculeData.prix | number:2 }} € |
| Eigen middelen + overbruggingskrediet | {{ calculeData.totalFP+calculeData.creditPont | number:2 }} € |
| Ontleend bedrag | {{ calculeData.montantCredit | number:2 }} € |
| Totale kostprijs | + {{ calculeData.creditPont + calculeData.totalFP + calculeData.montantCredit | number:2 }} € |
Rendement op activa
Duur van detentie jaar (jaren)
WERKELIJKE WINST {{ calculeData.gainReel | number:0 }} €
RENDEMENT OP ACTIVA {{ calculeData.rendementSurActif | number:2 }} %
Omzet
| Jaarlijkse bruto huurinkomsten | € |
| Jaarlijkse lasten {{ calculeData.pourcentageCharge | number:2 }}% | {{ calculeData.chargeLocatifAnnuel | number:2 }} € |
| Onroerend goed belasting | {{ calculeData.precomteImmo | number:2 }} € |
| Andere jaarlijkse lasten | € |
| Jaarlijkse netto huurinkomsten | {{ calculeData.revenuLocatifAnnuelNet | number:2 }} € |
| Totale huurinkomsten na {{ calculeData.dureeDetention }} jaar rekening houdend met een inflatie van % | {{ calculeData.totalRevenuLocatif | number:2 }} € |
| Niet-gerealiseerde meerwaarde | {{ calculeData.pluvalueLatente | number:2 }} % |
| Meerwaarde van het pand na {{calculeData.dureeDetention}} jaar | {{ calculeData.pluvalueBien | number:2 }} € |
| Totale huurinkomsten na {{ calculeData.dureeDetention }} jaar | {{ calculeData.totalRevenuLocatif | number:2 }} € |
| Bruto winst op de basisprijs na {{ calculeData.dureeDetention }} jaar | +{{ calculeData.gainBrut | number:2 }} € |
Uitgaven
| Looptijd | {{ calculeData.duree | number:2 }} jaar |
| Tarief | {{ calculeData.taux | number:2 }} % |
| Maandlast | {{ calculeData.mensualite | number:2 }} € |
| Totale intrestlast na {{calculeData.dureeDetention}} jaar | {{ calculeData.totalInteret | number:2 }} € |
| Totale kosten | {{ calculeData.frais | number:2 }} € |
| Totaal | {{ calculeData.InteretFrais | number:2 }} € |
Winstrol
Rendement op activa
Cash flow
| Jaar | Kosten | Huurinkomsten | Verdienen |
|---|---|---|---|
| {{ $index }} | {{ ch.payment | number:2 }} € | {{ ch.revenuLocatif | number:2 }} € | {{ - ch.fondPropre | number:2 }} € |
Av. Louise 433 1050 Bruxelles - 02 648 01 20
Drève Richelle 96 1410 Waterloo - 02 354 29 39
Av. Prekelinden 83 1200 Woluwe-St-Lambert - 02 734 00 36